招商云澜湾(售楼处)官方网站-招商云澜湾销售中心(营销中心)-招商云澜湾楼盘欢迎您-小区环境-户型-价格-地址-楼盘详情-周边配套-售楼处电话-交房时间
扫描到手机,新闻随时看
扫一扫,用手机看文章
更加方便分享给朋友
✅本项目暂不接受临时到访,过来参观样板房请记得提前来电预约!


招商云澜湾官方售楼处电话:400-8787-740
招商云澜湾官方售楼处电话☎:400-8787-740(预约热线)✔✔✔
如有问题欢迎来电咨询,专业一对一热情服务,让您用专业眼光去买房。
招商云澜湾官方售楼处电话:400-8787-740
招商云澜湾官方售楼处电话☎:400-8787-740(预约热线)✔✔✔
【招商-云澜湾】以对生活的自然赤诚之心,匠心筑造
建面约96-100-126㎡3-4房
建面约135㎡-141㎡叠墅
过会均价45769元/m²
高层总价398万起、叠墅总价788万起
招商云澜湾售楼处电话:400-8787-740【预约看房热线】招商云澜湾官方售楼处电话:400-8787-740【售楼处电话/地址】招商云澜湾售楼处电话:400-8787-740【开发商认证】
户型图赏鉴
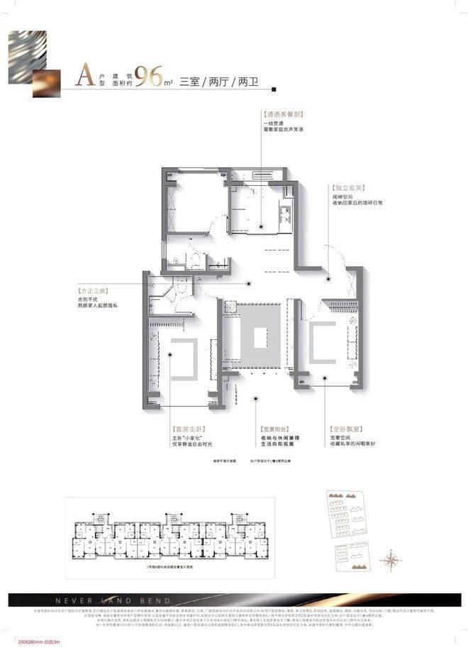
建面约96㎡精质三房,一步到位舒适人居:该户型方正格局、南北通透无连廊,既容纳二人世界的浪漫,也可将三口之家的幸福一并珍藏。
在这里,随心拓展家庭社交空间,孩子们在客厅里玩乐,三五挚友围席对饮,或全家人坐在沙发上观影,其乐融融;
在空间功能的叠加与随心转换中,轻松满足未来居家生活的变化趋势,及家庭成员增长的需求,让欢乐尽情释放。
实景图
招商云澜湾售楼处电话:400-8787-740【预约看房热线】招商云澜湾官方售楼处电话:400-8787-740【售楼处电话/地址】招商云澜湾售楼处电话:400-8787-740【开发商认证】
建面约100㎡宽厅三房,改善家庭至优选:在南向三开间的基础上,该户型“创新横向宽厅,营造百平米少有的客厅尺度“打造3.5南向面宽。
餐客公共空间由经典竖厅创新演变为“横向宽厅”,大开间短进深,扩大视觉观感,增加采光面,营造温暖舒适的家庭空间。
家庭成员可处于同一场域,实现更多情感互动,陪伴交流。
实景图
建面约126㎡真四房,进一步强化功能性,户型方正,四开间朝南,南北通透,南向卧室均带有大飘窗设计,拓宽了室内景观视野的同时,增加了实际空间使用率,有效避免面积浪费。
主卧带独立卫生间,预留了衣帽间空间,私密性加强,保护业主隐私。对于当代二胎家庭来说,是一步到位的首选。
招商云澜湾售楼处电话:400-8787-740【预约看房热线】招商云澜湾官方售楼处电话:400-8787-740【售楼处电话/地址】招商云澜湾售楼处电话:400-8787-740【开发商认证】
叠加户型图:
建面约135m²上叠户型的星空露台,可以是孩子探索浩瀚星河的专属基地,满足他们对宇宙的好奇与向往;也可以是太太的空中花园,莳花弄草或呼朋引伴,在星空下举办烧烤派对。
建面约141m²下叠户型,尊享挑高多功能空间,可作为书房,工作室,孩子的童趣空间、私人影院、酒窖等,满足全家人的个性化生活所需,自然流露出高雅不凡的墅居品味。
招商云澜湾售楼处电话:400-8787-740【预约看房热线】招商云澜湾官方售楼处电话:400-8787-740【售楼处电话/地址】招商云澜湾售楼处电话:400-8787-740【开发商认证】
土拍回顾及规划
2023年7月11日,第二轮土拍,招商蛇口以总价184790万元价格,竞得松江区永丰街道SJC10011单元H02-16、H02-18号地块,地块占地面积45160㎡,容积率1.6,楼板价25574元/㎡,溢价率10%,房地联动价4.9万/m²
项目四至范围:东至三新路,南至荣乐西路,西至中桥港,北至H02-15地块。
项目由两幅小地块组成(H02-16、H02-18),根据设计方案显示,项目总共将建17幢4-13F的商品住宅,以及1幢配套用房,其中:
H02-16地块(北地块)容积1.66,拟建5幢13F小高层,6幢多层住宅(大概率是叠加别墅),共计449套(含保障住房65套)。
H02-18号,容积1.43,拟建3幢13F小高层,3幢4F多层,共计233套房源。两幅地块,高层间最大栋距约34.5米。
自然是天生的设计师。当繁华的都市满足了人们物质上的需求,却让纯粹而静谧的自然生活变得疏远,如何让都市的生活回归自然的空间,是招商·云澜湾“启幕更好的松江”的设计追求。
项目南北地块坐拥两大滨水景观,依水而建,与邻为伴,以梦幻油画般的色彩,辉映千年松江古韵,呈现一片更加具象的自然景观。沿着蜿蜒曲折的林下空间漫步,心情随着潺潺河水流动,喧闹与寂静沉淀于此,一帧一画都是惬意。
招商云澜湾售楼处电话:400-8787-740【预约看房热线】招商云澜湾官方售楼处电话:400-8787-740【售楼处电话/地址】招商云澜湾售楼处电话:400-8787-740【开发商认证】
效果图
自然的情绪在“都荟慢生活园林”中流动:在园林的构筑中,将城市千年底蕴和当代审美艺术元素融合,营造城市与家庭生活之间自然的过渡地带。
一座“都荟慢生活园林”蕴含了五大主题空间,滨水的静谧与都市的繁华于此交融,自然的美感被纳入社区的设计中,让生活的感知与触动因自然而起,唤起居者心中的向往与共鸣。
示意图
礼序归家大道,层层过滤喧嚣:南北地块以不同的归家礼序层层递进,以艺术化呈现具备仪式感的归来空间。两大主入口各具特色的礼制空间,以雅致艺术的手法,将自然的活力美好与空间的互动场景融合,让每一次归来即是心灵的放松与生活的享受。
效果图
林下会客厅,沉浸静谧的社交氛围:南北地块分别规划“中央组团会客厅”。有随风舒展的阔叶植物和冠树,微风草坪和风雨廊亭,恰到好处的尺度,向林间谧境展开,无论是交谈、会客、还是独处,都会让人沉浸于岛屿谧境的私享情绪中。
效果图
漫步巷道,穿过四季漫步归家:通过种植不同的主题植物,利用高低错落的布局,于天地间,自由绘成多重意境的大地艺术画,充分展现巷道的四季韵味,在漫步与驻足间,自然的惬意在这里被扩大。
招商云澜湾售楼处电话:400-8787-740【预约看房热线】招商云澜湾官方售楼处电话:400-8787-740【售楼处电话/地址】招商云澜湾售楼处电话:400-8787-740【开发商认证】
效果图
轻氧运动场,发现生活中的志同道合:社区内运动社交空间,让需要缓解工作疲劳与压力、渴望身心放松和酷爱健身的成年人,在运动中缓解身心疲惫。
童趣游乐场,守护儿童愉悦成长:南北地块各打造一处童梦活动区,将游戏的功能融入自然场景,让不同成长阶段的孩子,都可以近距离找到自己喜欢的娱乐天地。特别打造的“植物认知角”,可帮助孩童更好地了解植物,收获自然美育和认知能力。
效果图
以空间艺术,高定入户大堂:定制品质入户空间,以“情绪体验”为驱动力,让未来业主置身其中,回归到舒适与松弛的状态,在自然而尊崇的仪式中,迈向家的美好。
招商云澜湾售楼处电话:400-8787-740【预约看房热线】招商云澜湾官方售楼处电话:400-8787-740【售楼处电话/地址】招商云澜湾售楼处电话:400-8787-740【开发商认证】
生活配套
交通方面:小区门口50m配有有轨电车T1、T2线、长途汽车客运站;4km到9号线醉白池站,自驾沪昆高速,转换沪闵高架、中环、南北高架、内环高架等,可快速到达上海市区,也可通过S32申嘉湖高速,可以快速到达浦东机场。
教育方面:七大高校+上海师范大学附属外国语中学、松江区仓桥学校、上海对外经贸大学附属松江实交通验学校、第三实验小学、华亭第二幼儿园;私立学校或者国际学校有包玉刚实验学校、松江西外外国语学校、赫德国际学校。
商业方面:家门口新理想广场、2km泰晤士小镇、2km飞航广场,开车约20分钟可到万达、印象城等大型商圈。
医疗方面:松江区中心医院、上海市第一人民医院南院(三级甲等)、永丰街道社区卫生服务中心、方塔中医院、松江妇幼保健院(二级甲等)
休闲方面:永丰城市公园、三新体育场、永丰社区文体中心(在建)、仓城历史文化风貌保护区。
招商云澜湾官方售楼处电话:400-8787-740【售楼中心】
咨询高峰期请耐心等待,预约来电尊享内部优惠,专业一对一热情服务,让您用专业眼光去买房。
招商云澜湾官方售楼处电话☎:400-8787-740【售楼热线】✔✔✔招商云澜湾营销中心热线☎400-8787-740招商云澜湾官方售楼处地址☎400-8787-740本电话为开发商提供线上售楼电话,楼盘项目全面介绍(包含楼盘详情,最新房价,户型图,容积率,小区配套环境,楼盘简介,售楼处位置,户型图,交通规划,备案价,项目配套,楼盘详情,售楼处电话,最新消息,最新详情,最新进展等详情咨询
声明:本文由入驻焦点开放平台的作者撰写,除焦点官方账号外,观点仅代表作者本人,不代表焦点立场。
