华润外滩瑞府售楼处电话-华润外滩瑞府楼盘详情_华润外滩瑞府官方网站-上海房天下
扫描到手机,新闻随时看
扫一扫,用手机看文章
更加方便分享给朋友
华润外滩瑞府预约热线☎:400-8080-420✅✅
虹口北外滩核心 「外滩瑞府」二批将推建面约120-330㎡无界大宅!首开劲销24.8亿!外滩1.2公里!虹口内环内的外滩瑞府,就在这个“金九”,外滩上演了一场现象级的热销。首开119套房源全部售罄,去化率100%,劲销24.8亿+。
首开即罄,是市场对外滩瑞府作品价值的至高共识,亦是外滩传世奢宅的华丽序章。
传奇未完,美好待续。外滩瑞府二批次新品即将载誉而来,更将首次揭幕项目的重磅藏品--建面约240㎡「摘星平墅」。
由全球知名设计师吴滨先生亲自主笔,于外滩云端之上,为全球塔尖人物量身定制一席无界视野的“摘星”大宅。
它不仅是空间的极致演绎,更是身份与品位的象征,一部真正意义上的“隐奢”藏品,注定只为少数人私有。未来期待与远见者再度相逢,共启外滩生活的崭新篇章。

华润外滩瑞府预约热线☎:400-8080-420✅✅
虹口北外滩旁
10号线四川北路站约400米
华润置地上海首座“瑞系”顶序作品
「外滩瑞府」
二批将推建面约120-330㎡无界大宅

华润外滩瑞府预约热线☎:400-8080-420✅✅
华润外滩瑞府预约热线☎:400-8080-420✅✅
二批次一房一价首发:
华润外滩瑞府预约热线☎:400-8080-420✅✅
01、基本信息
地块去年11月27日,华润置地以总价51.36亿元获取,成交楼面价92934元/平方米,溢价率11.97%,地块中小套型占比40%,装修标准4000元/㎡!
华润外滩瑞府预约热线☎:400-8080-420✅✅
项目力邀大师天团操刀,从建筑到生活全维度高定。
GOA大象设计担纲建筑设计;渡边智昭负责会所和架空层设计,他是2023 AD 100 中国最具影响力建筑和室内设计师,代表作翠湖天地、汤臣一品;TROP操刀艺文景观设计;室内由W.DESIGN无间设计、李益中精琢...
这支曾塑造多个城市封面的大师团队,聚集在外滩瑞府,共筑外滩新一代标杆住宅。

华润外滩瑞府预约热线☎:400-8080-420✅✅
作为华润置地产品线的皇冠明珠,「瑞系」自诞生便以钻石级选址标准划定豪宅基因。
从深圳湾的“春笋”旁到北京长安街畔,每一座瑞府都占据着核心城市最核心的地段。
此次外滩瑞府落子外滩1公里核心圈,正是华润对「战略稀缺性」的极致践行:非核心不选,非未来不立。
这也是华润置地那么多年来在上海的首座“瑞系”。
华润外滩瑞府预约热线☎:400-8080-420✅✅
由此,便有了“风貌→幕墙→冠冕”的立体生长美学立面,风貌底盘+秩序感极强的通透立面,昭示性极强!

华润外滩瑞府预约热线☎:400-8080-420✅✅
尤为瞩目的是,建筑立面采用的大面积通透玻璃幕墙设计, 它如同一幅流动的巨幕画框,不仅最大限度引光入室,更实现了 “移步易景、框景成画”的建筑美学。
华润外滩瑞府预约热线☎:400-8080-420✅✅
室内外空间界限被温柔消弭,无论是社区内的精致园林、活力场景,还是远方的都市天际线,都成为生活中触手可及、瞬息变幻的风景。
华润外滩瑞府预约热线☎:400-8080-420✅✅
风雨连廊及印象派花园双重归家体系重新定义顶豪生活仪式,社区大门以约50米长典雅精致市政延展面宣告不凡气度!先锋艺文迎宾区仪式感十足!这便是一场城市精英到生活艺术家的精神转场。
华润外滩瑞府预约热线☎:400-8080-420✅✅
社区核心以约3000㎡沉浸式中央公园重构自然与生活的边界,这里不仅是满足全龄社交、商务会客与儿童探索的多功能活力场域,更以精心雕琢的轻度假美学,让每一次归家都成为步入度假胜地的仪式。当暮色浸染天际线,漫步于绿意环抱的公园小径,耳畔是潺潺水声与孩童欢笑,疲惫顷刻消融于草木芬芳与柔风暖光之中。
华润外滩瑞府预约热线☎:400-8080-420✅✅
华润外滩瑞府预约热线☎:400-8080-420✅✅
让人眼前一亮的是,景观设计更以印象派艺术史诗为灵感,独创六大主题花园,将传世名作解构为可游可赏的立体生态空间!有梵高的星空水苑、莫奈的睡莲水湾、马奈的日光草坪、塔贝尔的社交花园、雷阿诺的缤纷花园以及调色板儿童乐园……
华润外滩瑞府预约热线☎:400-8080-420✅✅
每一处花园皆以自然为画布、生活为颜料,原生乔木与艺术草甸形成柔韧界面,流线型步道如画笔游走其间,这不再只是社区绿地,而是一座生长中的露天艺术馆,让印象派的浪漫主义在每一天的晨曦暮霭中鲜活重生。
还有约150米风雨连廊设计,连通所有楼栋,移步易景。看似简单的设计,解决了高频生活痛点,从“实用配置”升维为居住尊严与人文关怀的象征,让日常通勤成为享受,让社区在风雨中依然温暖有序,实现归家更从容~
华润外滩瑞府预约热线☎:400-8080-420✅✅
值得注意的是,公区的每个角落都值得驻足欣赏,无处不在体现设计师的超绝审美,步入社区的每一帧都是视觉享受~
华润外滩瑞府预约热线☎:400-8080-420✅✅
社区打造了恒温泳池会所,以优雅流畅的线条融入天际视野,不仅是为业主提供专业级畅游体验的运动场所,更成为静享私密时光的水境。
华润外滩瑞府预约热线☎:400-8080-420✅✅
匠心营造的架空层空间同样具备国际化品味,打造了更容易停留的空间:一处是融合艺术格调与舒适氛围的多功能泛会客厅,为邻里社交、商务洽谈或静谧阅读提供优雅场域;另一处则配备了前沿科技的智能健身空间,满足业主全天候、多元化的健康管理需求。
华润外滩瑞府预约热线☎:400-8080-420✅✅
华润外滩瑞府预约热线☎:400-8080-420✅✅
02、推售信息
目前项目已开放样板间,先来看看户型设计,可以说是相当优秀!

华润外滩瑞府预约热线☎:400-8080-420✅✅
官宣户型图独家首发:
建面约124㎡3房:
南北通透全明户型,三开间朝南设计;“S”墙收纳、室内5个飘窗延伸空间,据说每个卧室开间尺度均达到3米及以上,完全满足改善居住的收纳需求!主卧套房设计,隐私性较强,室内空间尺度优秀!
华润外滩瑞府预约热线☎:400-8080-420✅✅
从电梯厅开始,就是酒店式定制化设计,弧形顶设计的电梯厅,门牌上设计了玉石托盘,可以放置家庭独有的摆件,注重仪式感的同时更具高定私享趣味性!
华润外滩瑞府预约热线☎:400-8080-420✅✅
样板间则是采用香奈儿风格法式经典搭配,尽显法式优雅~
进门整面墙打造了玄关柜+“S”墙+零食柜设计,搭配烤漆板饰面,实用性与质感满分!
华润外滩瑞府预约热线☎:400-8080-420✅✅
开放式厨房+岛台设计空间更通透!转角抽屉收纳、下拉栏顶部设计反光镜避免视觉死角、轨道插座置于岛台侧墙不占台面空间等等,众多收纳细节思量到位,匠心独运!
华润外滩瑞府预约热线☎:400-8080-420✅✅
值得一提的是,项目在看不见的地方偷偷发力!厨房三重排烟的处理、原本应在设备平台的转移至楼层公区不遮挡厨房窗景、外墙厚度200厚混凝土墙+100厚的保温层隔绝噪音等等,实属匠心!

华润外滩瑞府预约热线☎:400-8080-420✅✅
还有墙面的细节处理,电视背景墙为皮革硬包+深色木饰面,不惜成本将金属条嵌入墙内打造出更细致的设计效果~

华润外滩瑞府预约热线☎:400-8080-420✅✅

华润外滩瑞府预约热线☎:400-8080-420✅✅

华润外滩瑞府预约热线☎:400-8080-420✅✅
全屋更是配备华为AI智能系统,智能控制家居更省心!卫生间镜柜延伸至马桶上方,实现收纳扩容!

华润外滩瑞府预约热线☎:400-8080-420✅✅
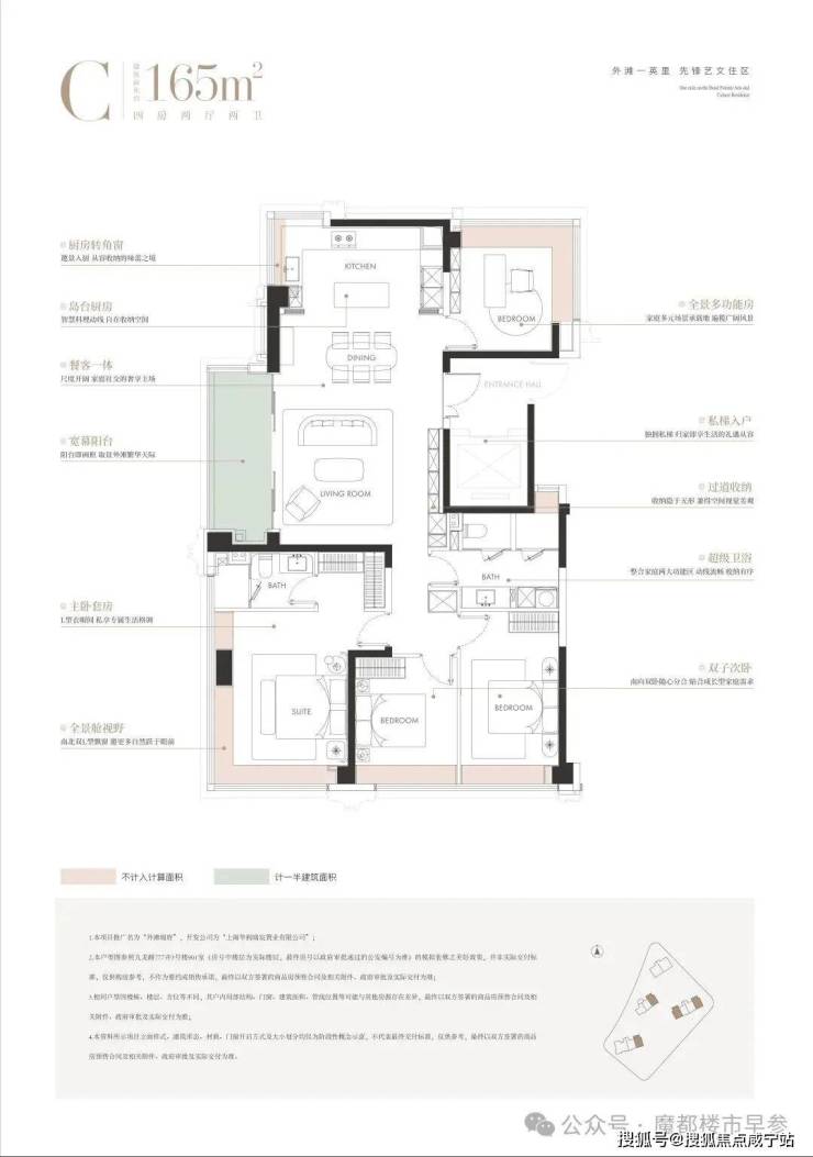
建面约165㎡4房:
大横厅尺度感奢阔,尊享私梯入户,隐私性满分!三间卧室朝南设计的平权户型,老人、小孩均可享受南向采光;厨房转角窗、主卧套房、北向书房均配置270度转角飘窗,景观视野相当不错!次卫四分离设计,相当人性化~
华润外滩瑞府预约热线☎:400-8080-420✅✅
拥独立入户空间,私密入户。
同样近乎等面宽的卧室尺度,让每个家庭成员都能拥有独立且舒适的休憩领地,三卧朝南的布局,让阳光成为所有人的平等馈赠,没有谁要为“主次”牺牲采光权。
而“大”还体现在公共空间的开阔,岛台厨房、餐厅、客厅与阳台动线流畅,二胎共同玩耍也绰绰有余。
约270°视野的贯穿更是锦上添花,主卧、北向次卧、厨房的约270°转角飘窗,让每个空间里的人都能平权地拥抱城市景致。
主卧套房的L型衣帽间与卫生间,公卫四分离设计,在保证“大”尺度的同时,更让每个人的生活需求都被妥帖照顾。
显然,外滩瑞府户型深谙豪宅之道:“大” 不是盲目堆砌面积,而是让每个空间都有足够的舒展度;“平权” 不是口号,而是通过面宽、采光、视野的均等分配,让家庭里的每一个人,都能在空间里找到被尊重的舒适。这正是华润置地深入研读豪宅客群需求后,交出的完美答卷——在这里,大空间与平权生活,从来不是选择题。
另外,让我留下深刻印象的是样板间展现的高级定制设计语言。
不同于市面上门是门,框是框,墙是墙,看房时“五颜六色”。外滩瑞府室内采用一体化设计语言,实现空间、色彩与材质的协调统一。比如
✔入户门原创设计,外面深色木纹,里面浅色云母,和玄关柜、大理石地砖很搭配。
✔大理石地砖铺装工艺 近乎看不出拼接缝、浑然一体。
✔卫生间地面和墙面整体性也非常强,奢石台面的纹路和岩板墙面和协调。

华润外滩瑞府预约热线☎:400-8080-420✅✅
建面约165㎡样板间实景图,以实际交付为准
装修上配备国际一线品牌,尤其厨房由嘉格纳领衔,配备灶具、吸油烟机、洗碗机、冰箱蒸烤箱。
更多细节大家可以去现场了解。
华润外滩瑞府预约热线☎:400-8080-420✅✅
建面约165㎡样板间实景图,以实际交付为准
03、区域版块
“上海2035”总体规划明确,外滩将作为“全球城市核心功能承载区”,与陆家嘴、北外滩组成“黄金三角”,目标直指“卓越全球城市”的封面。这一规划不仅定义了上海的空间格局,更将外滩推向全球资本、文化、资源的核心交汇点。外滩瑞府择址于此,对标纽约ONE57、伦敦海德公园一号——非全球资本聚集地不选,非历史与未来叠加区不立,其价值内核正是对“黄金三角”核心资产的精准锁定,为业主提供了“抗周期”的资产保障。

华润外滩瑞府预约热线☎:400-8080-420✅✅
外滩一英里,百年资本、艺术与文明的“共生容器”
资本长河卷:百年万国建筑群凝结19世纪中国近半财富记忆,每块石材都是未被翻页的金融史章,见证“远东第一金融中心”的风云变迁;

华润外滩瑞府预约热线☎:400-8080-420✅✅
艺术生长带:外滩源历保建筑内,先锋艺术展的光影穿透木质百叶窗,在老墙绘制当代图腾,让历史街区成为“流动的美学实验室”;

华润外滩瑞府预约热线☎:400-8080-420✅✅
文明对话场:外白渡桥横跨苏州河,南段是金融资本的“硬实力”,北段是霓虹爵士的“软文化”,中段百年领事馆群记录东西方对话轨迹。三者交织,让外滩瑞府成为全球高净值人群眼中的“收藏级资产”。

华润外滩瑞府预约热线☎:400-8080-420✅✅
一江两岸的“时空叠影”,陆家嘴势能与外滩厚度的共生逻辑
时光对话录:百年石库门的雕花檐角与陆家嘴玻璃幕墙互为映照,石库门的“温度”与摩天楼的“科技感”在此共生——上海中心的灯光倒映黄浦江时,外滩瑞府的窗前便展开一幅“古典砖石×未来光影”的时空画卷;
华润外滩瑞府预约热线☎:400-8080-420✅✅
烫金一英里圈:2025年外滩扩容规划将通过地下连廊与滨江步道,无缝串联百年金融街与现代CBD。业主可享“晨间万国建筑群咖啡、午后陆家嘴写字楼洽谈、日落滨江步道漫步”的全球资本生活节奏;

华润外滩瑞府预约热线☎:400-8080-420✅✅
双极价值场:外滩“历史溢价”与陆家嘴“未来势能”在此叠加,黄金三角腹地成为中国高净值圈层的聚集地,是时代价值创造者的共同选择。

华润外滩瑞府预约热线☎:400-8080-420✅✅
北外滩+音乐谷,先锋生活的“极致资源矩阵”
千亿北外滩:依托“3000亿航运引擎”重塑全球经济版图,上港集团、中远海运等巨头云集,掌控全球1/3航运交易;更将崛起480米浦西第一高楼,与陆家嘴上海中心组成“双子星”,彻底改写城市天际线;

华润外滩瑞府预约热线☎:400-8080-420✅✅
音乐谷2.0:位列2025上海十大城市更新片区,与黄浦外滩、老城厢等同为重点。这里保留内环罕见的完整水系(宽15-20米“江南小河道”)及国家级文保单位,未来滨水步行区将贯通“一湾两半岛”,百年里弄变身爵士乐演出空间与独立艺术画廊,滨水市集的霓虹灯与爵士乐交织,突破传统顶豪“资源堆砌”范式,形成“生活为体,音乐为魂”的海派艺文新场景。
华润外滩瑞府预约热线☎:400-8080-420✅✅
华润外滩瑞府预约热线☎:400-8080-420✅✅
声明:本文由入驻焦点开放平台的作者撰写,除焦点官方账号外,观点仅代表作者本人,不代表焦点立场。
