2025杨浦滨江(外滩源著·复兴里售楼处售楼中心)-外滩源著·复兴里最新房价-房型-容积率-户型配套
扫描到手机,新闻随时看
扫一扫,用手机看文章
更加方便分享给朋友
外滩源著复兴里售楼处电话:400-1010-064☎
案场预约制 看房需提前来电预约登记
请务必致电与销售确认时间,避免空跑,感谢您的支持
上海成片风貌旧里位于黄浦江滨江沿岸的不足中心城面积的0.2%,而【外滩源著·复兴里✅✅售楼处电话:400- 1010 - 064✅✅】以“滨江+风貌”的臻稀资源叠加,领潮时代,敬献塔尖精英。
外滩源著复兴里售楼处电话:400-1010-064☎
案场预约制 看房需提前来电预约登记
请务必致电与销售确认时间,避免空跑,感谢您的支持
项目用五大经典建筑立面复刻百年风貌Art Deco神韵,让现代建筑语言与历史文化记忆完成时空对话。

效果图过程稿,仅供参考
以“全两层+会所”的形态革新、花园露台地下室的全维空间、大面宽短进深的奢适格局,重构别墅生活场景。
在这里,风貌不仅是一种建筑符号,更是可触摸的日常。让塔尖人群在历史肌理与现代舒适中,重拾生活的本真与丰盛。

效果图过程稿,仅供参考
赓续百年 源启复兴。中建壹品【外滩源著·复兴里✅✅售楼处电话:400- 1010 - 064✅✅】,将以三重复兴为笔,绘就滨江人居的新篇章。融合历史文脉与现代人居需求。
推售建面约150-350㎡的滨江风貌别墅,
规划房源仅珍稀100席
预计首开27席
2套特价房,总价2500万起,先到先得!
一场关于历史与未来、传承与创新的风貌新生,敬请期待!
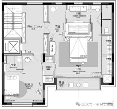
户型图赏鉴
市面在售唯一全「两层」风貌社区,单层尺度最大化,更贴近传统风貌里弄形态。
项目均为全两层风貌建筑,使得每一层皆拥有"大面宽、大尺度"打造现代别墅的舒居体验,更大空间利用率。
相较于市面上常规的三层产品,将减少约15平米的交通面积(主要指楼梯、电梯),同时可减少约10平米的外墙面积,以建面约200平米产品为例,可提高使用面积约13%。

外滩源著复兴里售楼处电话:400-1010-064☎
案场预约制 看房需提前来电预约登记
请务必致电与销售确认时间,避免空跑,感谢您的支持
外滩源著复兴里售楼处电话:400-1010-064☎
案场预约制 看房需提前来电预约登记
请务必致电与销售确认时间,避免空跑,感谢您的支持
打破传统风貌窄面宽、长进深的格局,以「大面宽 短进深」营造光感艺境,户型最大面宽可做到约13.5米,大尺度采光,纵享丰沛阳光和开阔视野。

起居室均朝南向排布,空间平权,奢享充沛阳光!


2024年2月20日,杨浦城更以375805万元摘得杨浦区定海社区H4-10地块(定海街道154街坊),该地块为风貌旧改地块,楼面地价为72549元/㎡。
定海街道154街坊项目【即中建壹品·外滩源著】四至范围:东至军工路(中环)、南至平凉路、西至规划白洋淀路、北至长阳路。
项目用地面积2.59万方,容积率2.0,总建筑面积91565.02㎡,其中地上建筑面积51152㎡,地下建筑面积40413.02㎡。
根据设计方案显示,项目拟建3栋19-20F的高层,两栋为商品房,26栋2F的风貌别墅及配套设施组成。

外滩源著复兴里售楼处电话:400-1010-064☎
案场预约制 看房需提前来电预约登记
请务必致电与销售确认时间,避免空跑,感谢您的支持
高层立面建筑的色彩以浅色做为主基调,采用石材与局部的涂料工艺,大量的落地玻璃之间,镶嵌了古铜色的金属板材,与风貌建筑的色彩形成呼应。
高颜值立面、高窗墙比、高拓展性,为业主带来更多采光的同时也带来更开阔的视野!
项目打造“三轴两门三院三花园”的景观布局。
主入口礼序归家轴上,以海上东方+星池雅宴+鎏金茗院三重空间,重现海派隐奢归家之路,步步尊崇。

主出入口整体长约30米,进深约23.5米,将顶部廊架扩展到到中岛以外,彰显大气的特色。
挑高金属雨棚采用极细边,中间凿壁采用透光奢石,搭配极具现代主义的雕塑彰显小区档次,背景墙面采用维多利亚黑大理石,奢华且低调。

社区内设有上海风情的“三院”、海派精奢的三花园,让优雅的生活氛围随之铺展开来。
下沉庭院整体长约18米,进深约9.5米,庭院的上下景观通过水帘相连通,中间结合有着层层叠水的水景,搭配水晶砖的景墙,将品质感拉满。

项目配置建面约1200㎡下沉式高阶会所,逼格媲美顶豪产品!
项目利用下沉式景观庭院,结合艺术花园、摩登水景等,打造了一座高端的下沉式会所,规划设有泳池、健身房、行政酒廊等场景。
外滩源著复兴里售楼处电话:400-1010-064☎
案场预约制 看房需提前来电预约登记
请务必致电与销售确认时间,避免空跑,感谢您的支持
业主下楼即可会客、运动健身,宛如身处一座奢华酒店。
这不仅能给业主带来丰富的精神生活享受,更是业主身份的象征。
另外,下沉庭院东侧是织梦奇园,兼具趣味感和互动感的儿童乐园。
海派生活轴的端点是邻里交互的艺术花园,是业主茶余饭后散步的好去处。


外滩源著复兴里售楼处电话:400-1010-064☎
案场预约制 看房需提前来电预约登记
请务必致电与销售确认时间,避免空跑,感谢您的支持
典型的上海里弄样式,复刻红砖外墙经典风貌,将旧式里弄的烟火日常谱成一首建筑叙事诗,在青砖红瓦间传唱岁月的平仄韵律。

项目效果图,仅供参考
以花园式住宅做为原型创作,厢房为单向坡屋面,居住空间更加放松,让建筑立面成为自然书写的载体,共同谱写出"生长的建筑,呼吸的花园"之诗。

外滩源著复兴里售楼处电话:400-1010-064☎
案场预约制 看房需提前来电预约登记
请务必致电与销售确认时间,避免空跑,感谢您的支持
当红砖遇上石材基座,鎏金线条勾勒山墙轮廓,传统形制在现代语境中重新发声。

项目效果图,仅供参考
以优雅的拱券形态做为原型创作,萃取"西式洋房"的对称美学与精致细节,融合现代石材,打造"经典形制与当代审美的共生。

项目效果图,仅供参考
交通方面:项目距离12号线爱国路站仅约400米左右,5站直达北外滩,10站直达南京西路商圈,如此高效便捷的通勤圈也让项目增色不少。
外滩源著复兴里售楼处电话:400-1010-064☎
案场预约制 看房需提前来电预约登记
请务必致电与销售确认时间,避免空跑,感谢您的支持
无论是中环、内环亦或即将通车的北横通道东段等主干道都可以快速到达出入口位置,通过这些快速路去浦东张江、金桥也好,还是去大虹桥也好,都可以迅速抵达!
教育方面:平凉路第四小学,杨浦滨江实验小学、平凉路第三小学、东辽阳中学、上海体育学院附属中学、上海市第二十五中学、海洋大学(军工路校区)、上海理工大学等

医疗方面:杨浦中心医院、定海社区卫生服务中心,复旦大学附属妇产科医院(三甲)、上海交通大学医学院附属新华医院(三甲)上海市第一康复医院、杨浦区中医医院等。
商业方面:上海国际时尚中心、百联滨江购物中心、紫荆广场、长阳创谷、东方渔人码头国际中心、LCM置汇旭辉广场、合生汇商业综合体(规划中)等大型商业配套。

外滩源著复兴里售楼处电话:400-1010-064☎
案场预约制 看房需提前来电预约登记
请务必致电与销售确认时间,避免空跑,感谢您的支持
生态休闲:沿项目西侧中环往南,可直达黄浦江畔,波阳公园、杨浦公园、杨浦体育馆等均可满足日常景观休闲需求。


外滩源著复兴里售楼处电话:400-1010-064☎
案场预约制 看房需提前来电预约登记
请务必致电与销售确认时间,避免空跑,感谢您的支持
声明:本文由入驻焦点开放平台的作者撰写,除焦点官方账号外,观点仅代表作者本人,不代表焦点立场。
