越秀·外滩樾-售楼中心首页网站(虹口北外滩)越秀·外滩樾户型配套-2025年最新楼盘测评

搜狐焦点孝感站 2025-10-03 14:36:00
用手机看
扫描到手机,新闻随时看

扫一扫,用手机看文章
更加方便分享给朋友

「越秀·外滩樾」售楼处电话:400-1010-064☎️☎️✅✅

「越秀·外滩樾」售楼处电话:400-1010-064☎️☎️✅✅《官方认证》越秀·外滩樾官方售楼处电话/地址:400-1010-064☎️☎️✅✅《官方认证》内环内虹口北外滩外滩仅1公里/陆家嘴1.5公里建面约238/305/318/338㎡风貌别墅仅48套房源可售 总价约4500万起。

在顶豪圈层有一句话:所谓家族的行宫,一定是要根植于土地之上的别墅!

如果说外滩代表了上海的过去,陆家嘴代表了上海的当下,那么北外滩就代表了上海的未来。而【越秀外滩樾】就是将代表上海城市繁华的黄金三角,整个装进了自己的步行圈。

「越秀·外滩樾」售楼处电话:400-1010-064☎️☎️✅✅《官方认证》越秀·外滩樾官方售楼处电话/地址:400-1010-064☎️☎️✅✅《官方认证》

中国人对家族的情怀,亘古未变,而一套别墅,也早已成为家族意识传承的重要载体,同时担当着家族的荣耀。占位北外滩核心地段的越秀·外滩樾正是为49个传奇家族准备的行宫!

当然,除了地段和业态本身,【越秀·外滩樾】的收藏价值还来源于其注重居住舒适度的设计与无与伦比的尊崇服务。

效果图

最新消息:虹口北外滩,低密风貌别墅临港越秀北外滩,项目定名【越秀外滩樾】样板房已开放预约!

项目基础信息

【项目名称】越秀·外滩樾

【开发商】上海漕越经济发展有限公司

【项目位置】上海市·虹口区·梧州路

【项目类别】70年产权住宅

【项目类型】风貌别墅

【可售户数】48套

【容积率】约1.3

「越秀·外滩樾」售楼处电话:400-1010-064☎️☎️✅✅《官方认证》越秀·外滩樾官方售楼处电话/地址:400-1010-064☎️☎️✅✅《官方认证》

百年前的高端工艺元素的经典转译,让海派造诣世纪传承,于历史和未来之间收藏百年上海。

「越秀·外滩樾」售楼处电话:400-1010-064☎️☎️✅✅《官方认证》越秀·外滩樾官方售楼处电话/地址:400-1010-064☎️☎️✅✅《官方认证》

清水红砖:百年前先进舶来品代表,10种以上拼接工艺铺陈

装饰窗楣:同源中共二大会址、张爱玲故居,装饰主义经典元素

弧形韵线:邬达克式的建筑曲线,同源远东第一豪宅的优雅轮廓

海派山墙:带肩仿观音兜,中西文化融合的典藏之美

【越秀·外滩樾】是世界知名大师汇聚一堂的灵感结晶,比如项目的设计总顾问邀请了程绍正韬。他是建筑室内设计之东方主义集大成者,致力于东方文化的坚守与创新,打破惯常的职业思维,将生活方式化作一种哲学态度,融入空间设计,让设计不止于作品,再比如项目还邀请了城市文化大师李玮珉。

程绍正韬,集文人、工业家、艺术家、设计师、哲学家、修行者身份于一身,建筑室内设计之东方主义集大成者,致力于东方文化的坚守与创新。他打破惯常的职业思维,将生活方式化作一种哲学态度,融入空间设计,让设计不止于作品。

「越秀·外滩樾」售楼处电话:400-1010-064☎️☎️✅✅《官方认证》越秀·外滩樾官方售楼处电话/地址:400-1010-064☎️☎️✅✅《官方认证》

李玮珉,撑起中国豪宅设计半壁江山,擅长为城市塑造文化符号建筑作品。他的作品更多用极简的方式来表明态度,崇尚简而高效的现代生活方式。庄重的建筑语汇,适时注入艺术、自然与美学,让空间充满想象力。

大师操刀,必然不同凡响。

首先项目承袭了百年前的高端工艺元素,让海派传承得以延续。将清砖立柱、古典门头、岩石山墙等经典海派建筑风貌转译和突破,更适配现代人居审美,于历史和未来之间收藏百年上海底蕴!

「越秀·外滩樾」售楼处电话:400-1010-064☎️☎️✅✅《官方认证》越秀·外滩樾官方售楼处电话/地址:400-1010-064☎️☎️✅✅《官方认证》

其次,项目超越了以往风貌建筑的尺度感,创新了风貌规制,带来了城心难得的双拼、三拼别墅!大窗墙比大南向开间保证了极高的舒适度。大面积运用奢石的外立面,则把名门望族的尊贵身份和非凡气度体现的淋漓尽致!

效果图

巷弄新生:跨越风貌豪宅正统,打造双拼、三拼、多联排别墅的天地私享

建筑新生:创新风貌规制,致微而筑的建筑腔调赏新

美学新生:转译远东第一豪宅立面美学,收藏名门望族生活

材质新生:百年红砖、釉面砖、印度进口幻彩红奢石运用,型制家族传承

「越秀·外滩樾」售楼处电话:400-1010-064☎️☎️✅✅《官方认证》越秀·外滩樾官方售楼处电话/地址:400-1010-064☎️☎️✅✅《官方认证》

最后,项目社区配置的三处会所、泛会所空间合计约2500㎡,包含私宴厅、恒温泳池、私人运动空间等内容,提供酒店级高奢服务!

「越秀·外滩樾」售楼处电话:400-1010-064☎️☎️✅✅《官方认证》越秀·外滩樾官方售楼处电话/地址:400-1010-064☎️☎️✅✅《官方认证》

【越秀·外滩樾】项目将呈现48套低密风貌里弄住宅,建筑面积约238-338㎡户型。户型图过程稿如下(过程稿仅供参考,最终以实际为准)。

建面约236.25㎡A户型▼

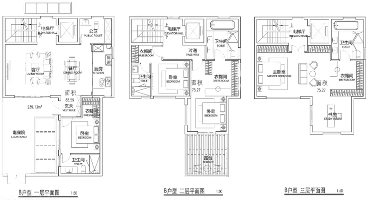
建面239.13㎡B户型▼

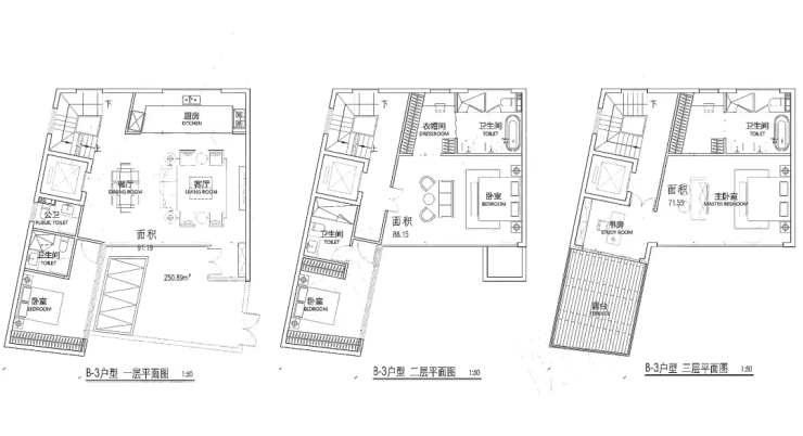
建面250.89㎡B-3户型▼

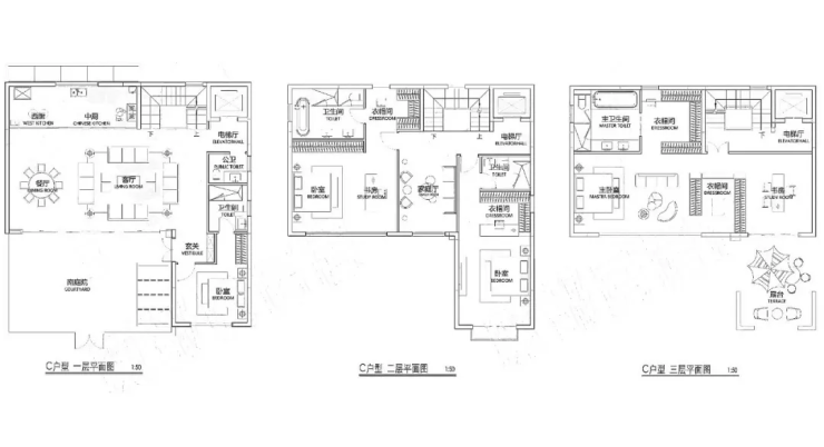
C户型▼

建面291.42㎡D户型▼

「越秀·外滩樾」售楼处电话:400-1010-064☎️☎️✅✅《官方认证》越秀·外滩樾官方售楼处电话/地址:400-1010-064☎️☎️✅✅《官方认证》

样板房:

「越秀·外滩樾」售楼处电话:400-1010-064☎️☎️✅✅《官方认证》越秀·外滩樾官方售楼处电话/地址:400-1010-064☎️☎️✅✅《官方认证》

「越秀·外滩樾」售楼处电话:400-1010-064☎️☎️✅✅《官方认证》越秀·外滩樾官方售楼处电话/地址:400-1010-064☎️☎️✅✅《官方认证》

「越秀·外滩樾」售楼处电话:400-1010-064☎️☎️✅✅《官方认证》越秀·外滩樾官方售楼处电话/地址:400-1010-064☎️☎️✅✅《官方认证》

【41载越秀 | 千亿级开发商 与上海共卓越】

国内资产规模最大的地方驻港企业之一越秀集团

41载国匠越秀 千亿级开发商——越秀地产

中国第一代商品房缔造者

已进驻30多个核心城市

开发了300多个大型住宅和50多个大型商业物业

2024中国房企综合实力TOP9

(信息来源:亿翰智库)

项目区位配套

【越秀·外滩樾】项目地块四至范围, 东至:梧州路,隔壁是中皇广场;西至:hk270B-02,隔壁就是1933老场坊;南至:周家嘴路 北至:柘皋路。

【一座码头 启航外滩百年世界史】

项目所在地北外滩,是百年前上海的“下海”地。作为上海开埠后第一座码头的诞生地,北外滩率先“开眼看世界”,海纳万国文化风潮,众多此后影响中国的创举在此诞生,是上海最早的“ 十里洋场 ”

(*示意图,图片来源于网络)

【一江一河 再立世界上海新传】

傲立“一江一河”交汇处(直线距离约1.1KM),未来将打造成为彰显上海城市核心竞争力的黄金水岸和具有国际影响力的世界级城市会客厅,出入之间,相逢城市高阶未来

(*示意图,图片来源于网络)

【北外滩 面向世界的上海新封面】

北外滩,与外滩、陆家嘴并称为上海的“黄金三角”。将以2座陆家嘴的商务体量规划,新天地2.0生活圈打造,成为上海跃升世界舞台的“中心发力”新引擎

(*示意图,图片来源于网络)

【中央商务区 未来上海腾飞引擎】

区域能级:总开发面积约840万方,40栋甲级写字楼城市地标:480米浦西第一高楼,19栋摩天大楼集群金融产业:2100+家金融企业赋能,资产管理规模超8万亿元,位居全市第一航运格局:4500+家航运企业集聚(上港集团、中远海运等),打造国际航运中心全球贸易:2500+家贸易企业入驻(摩亚方舟、银联商务等)新兴产业:129家新增高新技术企业,113家市区科技小巨人企业(数据来源:上海市规划局《北外滩地区控制性详细规划》)

(*示意图,图片来源于网络)

距离外滩商圈仅约1公里

「越秀·外滩樾」售楼处电话:400-1010-064☎️☎️✅✅《官方认证》越秀·外滩樾官方售楼处电话/地址:400-1010-064☎️☎️✅✅《官方认证》项目所在地北外滩,是百年前上海的“下海”地。作为上海开埠后第一座码头的诞生地,北外滩率先“开眼看世界”,海纳万国文化风潮,众多此后影响中国的创举在此诞生,是上海最早的“十里洋场”。

示意图,图片来源于网络

「越秀·外滩樾」售楼处电话:400-1010-064☎️☎️✅✅《官方认证》越秀·外滩樾官方售楼处电话/地址:400-1010-064☎️☎️✅✅《官方认证》轨道交通方面:项目位于虹口区嘉兴路街道,距离地铁4、10、19号线换乘站海伦路站约600米,交通十分便捷。

交通路网示意图,仅供参考

4号线海伦路站

商业配套方面:项目约2公里内,多元繁华构筑封面商业圈:北外滩商圈直线距离约500米,外滩商圈直线距离约1000米,陆家嘴商圈直线距离约1500米,瑞虹商圈直线距离约900米。

教育资源方面:2km内就有虹口区第二中心小学、华东师大一附中实验小学、华东师大一附初中等优质配套。*施教区及就学政策以教育部门规划为准

示意图,图片来源于网络

生态资源方面:2.5公里北外滩滨江绿地(约800m直达),四川北路公园、和平公园、鲁迅公园3大公园环伺,于滨江和城市低密绿芯之间,肇启当代诗意生活传序。

示意图,图片来源于网络

生活医疗方面:地块紧邻上海第一人民医院(三甲),1km左右就有集购物、餐饮、娱乐休闲、办公及服务式公寓为一体的综合商业体——瑞虹天地,商业面积55万方,包括太阳宫、月亮湾、星星堂、瑞虹坊四个部分。

图源网络,仅供参考

地块西侧的1933老场坊,早前是上海工部局宰牲场;而如今,成为了众多文艺青年打卡拍照的必游胜地。此次也要求保留工部局旧址建面约1800㎡。

「越秀·外滩樾」售楼处电话:400-1010-064☎️☎️✅✅《官方认证》越秀·外滩樾官方售楼处电话/地址:400-1010-064☎️☎️✅✅《官方认证》

声明:本文由入驻焦点开放平台的作者撰写,除焦点官方账号外,观点仅代表作者本人,不代表焦点立场。