越秀外滩樾(越秀外滩樾售楼处)首页网站-2025越秀外滩樾房价_楼盘评测丨地址丨详情丨售楼处电话丨 百度百科
扫描到手机,新闻随时看
扫一扫,用手机看文章
更加方便分享给朋友
虹口北外滩【🥝越秀外滩樾售楼处24小时电话☎☎:400-8787-740【售楼处已认证】】建面约238-338㎡海派风貌院墅丨仅49席丨可预约看房,直接定!


【项目名称】🥝越秀外滩樾售楼处24小时电话☎☎:400-8787-740【售楼处已认证】
【开发商】上海漕越经济发展有限公司
【项目位置】上海市·虹口区·梧州路
【项目类别】70年产权住宅
【项目类型】风貌别墅
【可售户数】48套
【容积率】约1.3
🥝越秀外滩樾售楼处24小时电话☎☎:400-8787-740【售楼处已认证】

🥝越秀外滩樾售楼处24小时电话☎☎:400-8787-740【售楼处已认证】
百年前的高端工艺元素的经典转译,让海派造诣世纪传承,于历史和未来之间收藏百年上海。
🥝越秀外滩樾售楼处24小时电话☎☎:400-8787-740【售楼处已认证】
清水红砖:百年前先进舶来品代表,10种以上拼接工艺铺陈
装饰窗楣:同源中共二大会址、张爱玲故居,装饰主义经典元素
弧形韵线:邬达克式的建筑曲线,同源远东第一豪宅的优雅轮廓
海派山墙:带肩仿观音兜,中西文化融合的典藏之美

【🥝越秀外滩樾售楼处24小时电话☎☎:400-8787-740【售楼处已认证】】是世界知名大师汇聚一堂的灵感结晶,比如项目的设计总顾问邀请了程绍正韬。他是建筑室内设计之东方主义集大成者,致力于东方文化的坚守与创新,打破惯常的职业思维,将生活方式化作一种哲学态度,融入空间设计,让设计不止于作品,再比如项目还邀请了城市文化大师李玮珉。

🥝越秀外滩樾售楼处24小时电话☎☎:400-8787-740【售楼处已认证】
程绍正韬,集文人、工业家、艺术家、设计师、哲学家、修行者身份于一身,建筑室内设计之东方主义集大成者,致力于东方文化的坚守与创新。他打破惯常的职业思维,将生活方式化作一种哲学态度,融入空间设计,让设计不止于作品。

🥝越秀外滩樾售楼处24小时电话☎☎:400-8787-740【售楼处已认证】
李玮珉,撑起中国豪宅设计半壁江山,擅长为城市塑造文化符号建筑作品。他的作品更多用极简的方式来表明态度,崇尚简而高效的现代生活方式。庄重的建筑语汇,适时注入艺术、自然与美学,让空间充满想象力。

大师操刀,必然不同凡响。🥝越秀外滩樾售楼处24小时电话☎☎:400-8787-740【售楼处已认证】
首先项目承袭了百年前的高端工艺元素,让海派传承得以延续。将清砖立柱、古典门头、岩石山墙等经典海派建筑风貌转译和突破,更适配现代人居审美,于历史和未来之间收藏百年上海底蕴!
🥝越秀外滩樾售楼处24小时电话☎☎:400-8787-740【售楼处已认证】
其次,项目超越了以往风貌建筑的尺度感,创新了风貌规制,带来了城心难得的双拼、三拼别墅!大窗墙比大南向开间保证了极高的舒适度。大面积运用奢石的外立面,则把名门望族的尊贵身份和非凡气度体现的淋漓尽致!
效果图🥝越秀外滩樾售楼处24小时电话☎☎:400-8787-740【售楼处已认证】
巷弄新生:跨越风貌豪宅正统,打造双拼、三拼、多联排别墅的天地私享
建筑新生:创新风貌规制,致微而筑的建筑腔调赏新
美学新生:转译远东第一豪宅立面美学,收藏名门望族生活
材质新生:百年红砖、釉面砖、印度进口幻彩红奢石运用,型制家族传承

🥝越秀外滩樾售楼处24小时电话☎☎:400-8787-740【售楼处已认证】
最后,项目社区配置的三处会所、泛会所空间合计约2500㎡,包含私宴厅、恒温泳池、私人运动空间等内容,提供酒店级高奢服务!
【🥝越秀外滩樾售楼处24小时电话☎☎:400-8787-740【售楼处已认证】】项目将呈现48套低密风貌里弄住宅,建筑面积约238-338㎡户型。户型图过程稿如下(过程稿仅供参考,最终以实际为准)。

建面约236.25㎡A户型▼🥝越秀外滩樾售楼处24小时电话☎☎:400-8787-740【售楼处已认证】

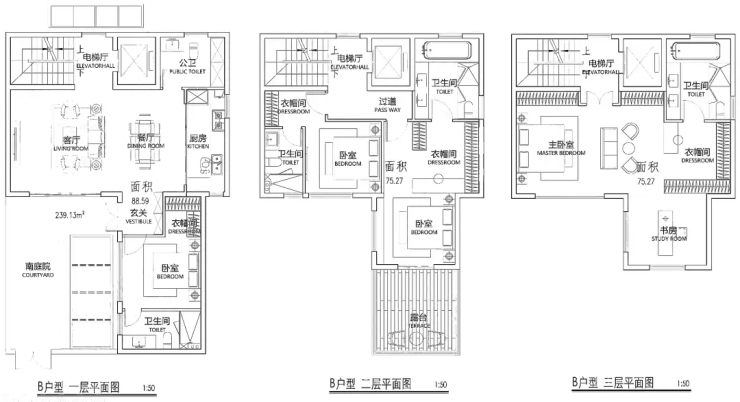
建面239.13㎡B户型▼🥝越秀外滩樾售楼处24小时电话☎☎:400-8787-740【售楼处已认证】

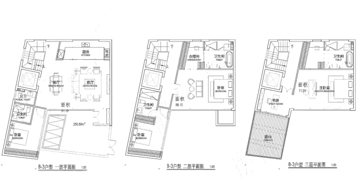
建面250.89㎡B-3户型▼🥝越秀外滩樾售楼处24小时电话☎☎:400-8787-740【售楼处已认证】

C户型▼🥝越秀外滩樾售楼处24小时电话☎☎:400-8787-740【售楼处已认证】

🥝越秀外滩樾售楼处24小时电话☎☎:400-8787-740【售楼处已认证】
建面291.42㎡D户型▼

声明:本文由入驻焦点开放平台的作者撰写,除焦点官方账号外,观点仅代表作者本人,不代表焦点立场。
