南山璞缦(营销中心)官方网站-南山璞缦销售中心(售楼处)-南山璞缦售楼处电话-电话地址-价格-户型-小区环境-楼盘详情-交房时间-周边配套
扫描到手机,新闻随时看
扫一扫,用手机看文章
更加方便分享给朋友


根据克而瑞数据显示
过去整整十年,嘉定新城这片热土上,成千上万套新房面市,但真正能称得上“纯粹大平层”’的200平左右户型,掰着手指头数,也就那么几套!毫不夸张地说,平均每1000套新房里,只有3套能达到这个尺度与纯粹度。(*克而瑞数据报告显示,嘉定新城近十年内,每一千套供应新房中仅3套200平左右的户型)
现在,南山璞缦就带着这样建面约198㎡的超级大平层来了!而且,总共仅售32席!这是什么概念?这就是嘉定城芯楼市里的“稀有物种”!是真正懂行的改善家庭、高净值人群紧盯着的“藏品”。


南山璞缦认购限时特价
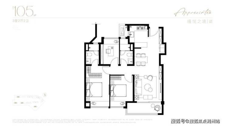
更有建筑面积约143㎡四房三卫、建筑面积约172㎡四房三卫!南山璞缦产品品质一直被大众认可,展示的实景示范区也是细节满满。
同时和同板块、同级别的其他项目比较,南山璞缦的优势堪称上海500-600万总价段的标杆存在!从空间到圈层,从品质到稀缺程度!无不展示着南山璞缦的独特性!
空间革新:重构主城芯的人居尺度认知
当传统百平户型还在为三开间挣扎,南山璞缦建面约198㎡以约19米四开间朝南面宽+LDKB一体化纵深实现降维打击。主卧折角飘窗延展空中墅级视野,HWCD团队更将海派摩登融入奢装细节,让室内每一寸空间成为艺术展场。
圈层纯度:纯粹改善型大宅藏品
作为嘉定主城率先突破“7090政策”的纯粹大宅,南山璞缦建面约105-198㎡户型,成为改善置业的不二之选,其中建面约198㎡更是难得的藏品级,全嘉定仅32席业主有机会与城市塔尖人群毗邻。
十年一遇:席位难得的平层大户型
在城心这片不断生长的热土上,能真正称得上“收藏级”的大平层空间,向来是凤毛麟角。南山璞缦建面约198㎡的超级大平层,正是这种十年难求的稀缺之作。项目规划的143-198㎡面积段,代表的不仅仅是大空间,更是一种不可复制的居住高度和纯粹尺度。

眼见为实:实景开放,热势席卷嘉定
南山璞缦最新公区实景已盛大开放——融合艺术格调与归家仪式感的「海派超感地库」、精心打造充满童趣与活力的南小蜂IP「花谷蜜探」全龄儿童景观活动区,吸引了全城改善家庭的火热到访!户型样板间更是人头攒动,这份用脚步投票的热情,正是市场对南山璞缦产品力与兑现力的最强认可。
声明:本文由入驻焦点开放平台的作者撰写,除焦点官方账号外,观点仅代表作者本人,不代表焦点立场。
