中铁建·熙语(2025年中铁建·熙语)首页网站-中铁建·熙语楼盘详情-户型配套-地铁距离 中铁建·熙语(2025年中铁建·熙语)首页网站-中铁建·熙语楼盘详情-户型配套
扫描到手机,新闻随时看
扫一扫,用手机看文章
更加方便分享给朋友
— ⑉ıl⑉〢✨🏠中铁建熙语售楼处电话☎:400-8787-740
🏡上海中铁建熙语营销中心电话:400-8787-740←【预约热线】
◆⭐开发商营销中心诚挚邀请,一键预约,尊享内部独家折扣!匠心独运的精品项目,恭候您的品鉴与选择。


中铁建熙语
售楼处电话☎:400-8787-740 ✔✔
如有问题欢迎来电咨询,来电即可享受买房优惠!
预约来电尊享购房优惠,可预约案场内部销售人员,专业一对一热情服务,让您用专业眼光去买房。
中铁建熙语售楼处电话☎:400-8787-740 ✔✔
中铁建熙语售楼处电话☎:400-8787-740 ✔✔
作为楼市“抢手货”的轨交盘,海量供应下,“更优秀”的那个也是众多购房者所追求的!
而【中国铁建·熙语】就是“更优秀”的那个
中铁建熙语售楼处电话☎:400-8787-740 ✔✔ 一、黄浦江边一公里范围内的稀缺资产
现约113.4公里的浦江之畔,上海城市的繁华源头,见证着城市百年来的横空腾飞。
进入21世纪以来,黄浦江边一公里范围内的稀缺资产价值,重新被世人所认知,藏品级低密人居尤为一席难得。
中铁建熙语售楼处电话☎:400-8787-740 ✔✔ 得天独厚的江边生态优势,无论是定居百年的老上海,还是近年加入上海的新成员,无不对其心生向往,人们在这休憩、玩乐、欢笑、阅读……
中国铁建·熙语距离黄浦江仅约785米(百度地图直线测距),是南上海不可多得的宜居社区。

中铁建熙语售楼处电话☎:400-8787-740 ✔✔
中铁建熙语售楼处电话☎:400-8787-740 ✔✔
二、家门口就是运营中即刻能享的地铁。
在众多轨交盘中,运营中的能即刻享用的地铁,与正在新建中的地铁能级是完全不同的!即刻能享,通勤效率更高,无需等待,才“更值得买”!
中铁建熙语售楼处电话☎:400-8787-740 ✔✔ 就小编自己的体验来说,【中国铁建·熙语】家门口的5号线无需换乘即可快速通达莘庄交通枢纽,与1号线无缝换乘,1号线是上海老牌“黄金线路”,串联上海多个核心CBD,这是远郊线所不能比的!

中铁建熙语售楼处电话☎:400-8787-740 ✔✔
三、约260米!妥妥“真”轨交!未来还有双轨环绕!
上海楼市不缺轨交盘,缺的是距离近的真轨交盘!
很多时候我们把直线距离1.5km的都算作轨交盘,但实际步行试试,没个十几分钟下不来,也因此距离轨交更近的,也更稀缺。
【中国铁建·熙语】距离5号线西渡站仅约260米,另外15号线南延伸在西闸公路也有预留站点,未来项目有望双轨环绕,翻遍上海在售、待售轨交盘,TA完胜!
中铁建熙语售楼处电话☎:400-8787-740 ✔✔
5号线西渡站260米,真正的轨交盘中铁建西渡项目——【中国铁建熙语】热销中!
推售建面约81-148㎡高层/叠墅
过会均价47587元/m²
81-91-100-123m²高层总价约291万起
135-148m²叠墅总价约680万起!
中铁建熙语售楼处电话☎:400-8787-740 ✔✔ 准现房(2025年12月1日交付),均实景呈现,所见即所得!

中铁建熙语售楼处电话☎:400-8787-740 ✔✔
仅为方案阶段示意图

中铁建熙语售楼处电话☎:400-8787-740 ✔✔
建面约81㎡2房功能齐全,拥有朝南大面宽和全卧飘窗设计。
很适合小两口和小太阳家庭,上车价格非常温柔,300多万以往只能看非常偏远乡镇板块,如今能买一站闵行的地铁房,能级高太多,何必再看其它!

中铁建熙语售楼处电话☎:400-8787-740 ✔✔
中铁建熙语售楼处电话☎:400-8787-740 ✔✔ 建面约91㎡3房2卫,三开间朝南,客餐厅连通大阳台,四飘窗设计,好户型该有的素质它都有。
“2卫”设计,比常规户型多配置出一个卫生间,并将洗漱台盆设置在公共空间中,可以有效解决“排队上厕所”的生活痛点,同时满足「2人上厕所+1人洗漱」的生活场景。
由此,不管是三口之家,还是三代人同居,都能有效提高空间使用效率,升级生活舒适度。

中铁建熙语售楼处电话☎:400-8787-740 ✔✔
建面约100㎡3房2卫,阳光三房,同等面积更多功能;宽幅南向观景阳台,把居住变成风景;步入式衣帽间,给予生活更多从容。

中铁建熙语售楼处电话☎:400-8787-740 ✔✔
建面约121㎡ 4房2厅2卫,宽境4房,拓宽空间尺度;大开间、进深短,通透采光;主卧独立卫浴,优雅随心的寝居感受。

中铁建熙语售楼处电话☎:400-8787-740 ✔✔
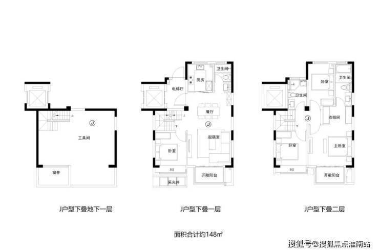
除此之外,项目还有建面约135㎡3房2厅3卫上叠、建面约148㎡4房2厅3卫中叠以及建面约148㎡4房2厅3卫下叠。叠墅产品上有露台下有庭院!
中铁建熙语售楼处电话☎:400-8787-740 ✔✔
中铁建熙语售楼处电话☎:400-8787-740 ✔✔
中铁建熙语售楼处电话☎:400-8787-740 ✔✔
事实上,叠墅在整个奉贤和闵行拥有很强的稀缺性:
奉贤5号线沿线,从西渡到肖塘再到奉贤新城几乎都是清一色高层,没有别墅;
效果示意图

中铁建熙语售楼处电话☎:400-8787-740 ✔✔
更值得点赞的是它的装修标准,如果说地铁房是占了地利,那高装标妥妥就是中国铁建高诚意的表达以及再造西渡标杆的决心。
中铁建熙语售楼处电话☎:400-8787-740 ✔✔ 划重点:
据了解,预计总价300-400万级的中国铁建·熙语竟然使用了汉斯格雅、杜拉维特、威能等中环内高端住宅才会用到的品牌。
中铁建熙语售楼处电话☎:400-8787-740 ✔✔
特别在使用频次很高的卫生间、厨房,皆为高配,保证了业主后期的使用体验感。
中铁建熙语售楼处电话☎:400-8787-740 ✔✔ 比如卫浴,洗脸盆、座便器都选用杜拉维特;洗脸盆龙头、淋浴龙头用的都是汉斯格雅。
在厨房,配置摩恩的洗涤盆、洗涤盆龙头(可抽拉);灶具、吸油烟机均为老板品牌,值得一提,项目配备了同级少有的洗碗机。
东芝中央空调、威能地暖、百朗新风三大件也是标配!实话讲300-400万级新房配地暖的并不多,但要是买时不配备,后期加装可太难了。
中铁建熙语售楼处电话☎:400-8787-740 ✔✔ 有句话叫:“我可以暂时不用,但你不能没有”,地暖也是这样。
中铁建熙语售楼处电话☎:400-8787-740 ✔✔
另外,很多细节的交付让人倍感暖心!
比如,玄关柜、浴室柜+镜柜都是交付标准,你不用后期去家装店定制,甚至花时间配色;厨房还贴心配备安吉尔净水器和西顿凉霸。
总得来说,在卫浴、厨房层面,项目装修质感比肩中环内高端住宅,其它配置也属于同级上乘水平。可以看得出中国铁建在项目身上下足了血本。

中铁建熙语售楼处电话☎:400-8787-740 ✔✔
声明:本文由入驻焦点开放平台的作者撰写,除焦点官方账号外,观点仅代表作者本人,不代表焦点立场。
