越秀·外滩樾(售楼处电话)越秀·外滩樾首页网站-越秀·外滩樾销售中心-小区环境-户型-价格-地址-越秀·外滩樾楼盘详情-周边配套-售楼处电话
扫描到手机,新闻随时看
扫一扫,用手机看文章
更加方便分享给朋友
外滩1公里,拥有一栋自己的“风貌别墅”|越秀·外滩樾丨238㎡~338㎡海派风貌院墅,总价4000万起,预约参观!
═══上海虹口「越秀·外滩樾」═══
售楼处电话/地址:400-1010-064√√
营销中心预约热线☎:400-1010-064(一对一热情服务√√)


01
北外滩|世界级的上海新封面
越秀·外滩樾售楼处电话:400-101-0064☎️☎️,坐落于上海北外滩板块——与外滩、陆家嘴并称为“黄金三角”的核心区域。
作为上海新一轮全球化的城市封面,这里将以2座陆家嘴的商务体量、新天地2.0生活圈重塑上海中心的世界级能级。
总开发体量:约840万方
摩天集群:480米浦西第一高楼 + 19栋摩天大楼
金融企业:2100+家,总资产管理规模超8万亿元
航运产业:4500+家航运企业汇聚
贸易总部:2500+家全球贸易企业入驻
科技能级:129家高新技术企业、113家科技小巨人
(数据来源:上海市规划局《北外滩地区控制性详细规划》)
02
三维立体交通|一桥连三地,一隧抵两岸
约360米 新建路隧道 → 快速直达陆家嘴CBD
约670米 外滩隧道 → 直通外滩及老码头
约150米 北横通道 → 连接虹桥枢纽、全城无界
约2.4公里 大连路隧道 → 直抵世纪大道与八百伴商圈
轨交便利:地铁4/10号线海伦路站约850米,12号线国际客运中心站约500米
03
繁华商圈环伺|三公里内尽揽顶奢资源
北外滩商圈:约500米
外滩商圈:约1000米
陆家嘴商圈:约1500米
瑞虹商圈:约900米
同时近距白玉兰广场、瑞虹新城太阳宫、北外滩来福士等高端商业地标,
集购物、餐饮、文化、娱乐、艺术于一体,奢享浦西的顶级国际生活圈。
04
自然与人文|一江一河间的艺术生态
距离北外滩滨江绿地仅约800米
可眺望陆家嘴天际线
周边环绕四川北路公园、和平公园、鲁迅公园等多重绿意
绿地高低起伏,形成“依山傍水”的层次景观,通透、流动、轻快的城市画卷
05
教育与医疗|塔尖家庭的全龄配套
教育资源(约1公里范围内)
东余杭路第一小学、第二中心小学、四川北路第一小学(重点)
继光高级中学、澄衷中学(区重点)
华东师范大学一附中、市重点高中上海外国语大学附属外国语学校东校
医疗资源(3公里范围内)
新华医院(儿科)
复旦大学附属妇产医院(妇产科)
上海市第一人民医院(重症)
上海东方医院(血管外科)
06
越秀·外滩樾售楼处电话:400-101-0064☎️☎️
风貌建筑 × 东方美学
百年前的海派工艺被重译于当代,构筑“风貌之上”的豪宅标本。
清水红砖 × 八种非遗拼接工艺
装饰窗楣 × 同源张爱玲故居
弧形韵线 × 邬达克式建筑曲线
岩石山墙 × 巴洛克与东方融合之美
07
越秀·外滩樾售楼处电话:400-101-0064☎️☎️
大师共筑 · 东方人居典范
程绍正韬 × 李玮珉
东方美学与现代简约的双大师合作,
从人本主义出发,以“风貌的当代表达”打造别墅新语境。
巷弄新生:双拼、三拼天地私享
美学新生:远东第一豪宅立面再现
材质新生:百年红砖、窑变砖、幻彩奢石定制
空间新生:私宴厅、泛会所、艺术会客厅
🏞 山水庭院 · 天光泳池
山水庭院:借鉴足立美术馆造园手法,移石入境、借光造景
天光泳池:以罗马会场为原型,融合古典与山水诗意,
实现“人在画中游”的静谧境界
越秀·外滩樾售楼处电话:400-101-0064☎️☎️
🏢 国匠越秀 · 与上海共卓越
42载越秀地产,中国第一代商品房缔造者,千亿级综合开发集团。
曾打造广州国际金融中心、二沙岛豪宅群等地标作品。
2024中国房企综合实力TOP9(数据来源:亿翰智库)
08
越秀·外滩樾售楼处电话:400-101-0064☎️☎️
项目总结|风貌之上 世界堂前
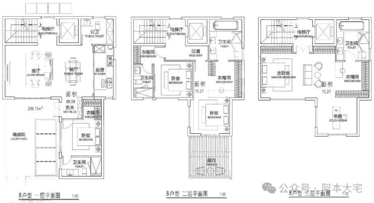
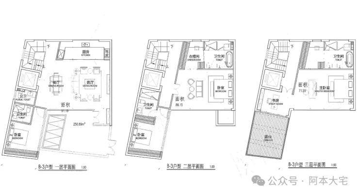
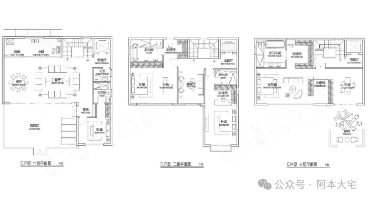
建面约238–338㎡ 海派院墅
三里外滩,立传别墅
让风貌,成为家族传承的开端。


越秀·外滩樾售楼处电话:400-101-0064☎️☎️





越秀·外滩樾售楼处电话:400-101-0064☎️☎️
声明:本文由入驻焦点开放平台的作者撰写,除焦点官方账号外,观点仅代表作者本人,不代表焦点立场。
