尚湾林语(尚湾林语2025年尚湾林语售楼中心最新房价)首页网站丨尚湾林语样板间|户型配套
扫描到手机,新闻随时看
扫一扫,用手机看文章
更加方便分享给朋友
尚湾林语售楼处电话:400-1010-064☎️☎️✅✅《已认证》
尚湾林语售楼处电话/地址:400-1010-064☎️☎️✅✅《已认证》

全市众多热门楼盘中市场越发的“卷”,在眼花缭乱的“价值”面前,曾一度深思:购房者真正需要的是什么?
直到看过尚湾林语之后,方才茅塞顿开,原来这才是未来房地产的走向,是地产开发变革的新方向。
我们常常说大局观大局观,但真正做到的没有几个。在当今市场上,无论何种开发模式,TOD模式、产城融合又或是纯住宅模式等等,基本都是以“卖货”为主,当然这在原则上没有错误,但如果从城市观、未来发展的角度思考,似乎不太利于城市与社会的进程。
尚品城市生活馆,再一次向市场展示项目的产品力、品质感以及生活境。同时也发布这座约180万方生活大城的新名称——尚品新境。
尚品新境,包含了尚湾林语、尚品颛溪和尚品天地三大组团,也分别代表着住宅社区、自然生态和商办文体三大业态,以倡导人与自然和谐共生的核心理念,构筑了一个自然与现代交织的城市融合体,开启上海南部人居的全新时代。

(手绘区位图,仅供参考)
而在这座约180万方的大城之中,住宅部分的尚湾林语占比仅约10.3%,剩余部分均为商业商办和生态绿地,可以想象这样的大城生活是多么的缤纷与美好。这也是优于市场竞品和大多数楼盘的地方。
不是以“卖货为主”的楼盘开发,而是与城市同频发展,为城市为人民打造理想的居住之城。
这样的理想并非建立于“假大空想象“,而是真真正正的“实用主义”。
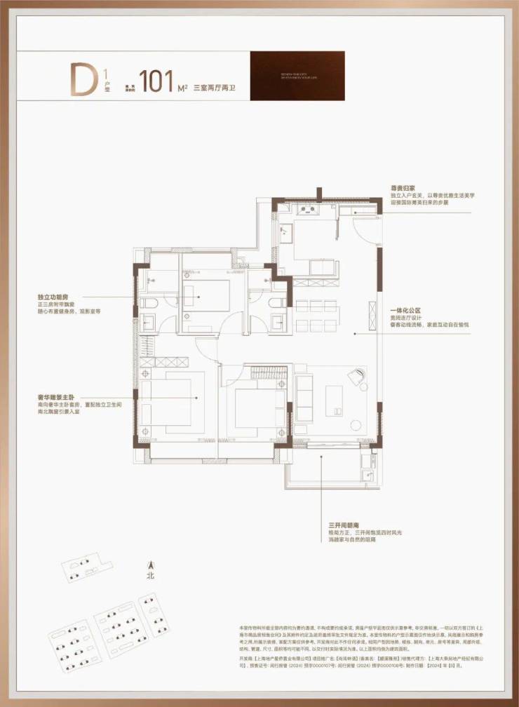
据悉,尚湾林语新品已过会,即将加推建面约101㎡3房!此外,项目还有建面约81-149㎡2-4房准现房在售,2房447万起,3房466万起!

闵行主城地铁盘「尚湾林语」
01.
产品主义:回归理想的大城生活
随着尚品新境的亮相,一副理想的生活画卷由此展开。
尚品颛溪主掌生态,拥有逾百万方生态谧静和自然水系,满足城市人对自然生活的所有想象。
未来在此,可以游憩休闲、趣味采摘和有机食养等体验大自然的乐趣。小孩子也可以获得自然研习和科普教育的机会,与大自然更深入的接触,赋能成长。同时,生态提供的健康能量,可以秒杀众多楼盘。
尚品天地则汇聚了商办、教育和文体等功能,提供丰富便捷的商业配套,满足生活所需更充实生活的乐趣。商务配套的加入,也提供了更多的就业机会,完完全全的实现“家门口上班”的理想。
(手绘区位图,仅供参考)
尚湾林语更是优势发挥产品的极致优势,再一次向购房者展示了空间与品质,激发更多生活的畅想。
第一,空间感十足。
要知道,目前市面上同类型的产品得房率普遍在75%左右,做到78%就已经是相当不容易了!
而「尚湾林语」直接实现了降维打击,带来约79-83%超高得房率,不仅超越了同类型产品,甚至超过了不少洋房产品!
这多出的空间可是实打实地给到了住户更加开阔、舒适的居住体验。
项目建面约81-149㎡2-4房户型,完全能够满足不同家庭的实际居住需求,真正做到了覆盖全生命周期。

尚湾林语售楼处电话:400-1010-064☎️☎️✅✅《已认证》
尚湾林语售楼处电话/地址:400-1010-064☎️☎️✅✅《已认证》

从设计来看,三开间朝南+LDKB一体化+主卧套房+双卫设计,户型方正,通透,动静分离,让生活更加自在从容。
横向对比,目前市面上百平米三房普遍都是“2+1”,更有甚者还是“1+2”。
直白点说,它们最小的次卧很难放下一架完整的床。交房后,业主只能被迫用飘窗改造榻榻米或者直接用作书房。这样就彻底失去了买三房,改善全家生活品质的初衷!
而尚湾林语百平米三房产品是正三房,每一间次卧,都能真正做到让每一位家庭成员都能够躺在床上,享受美好的休憩时光。
样板间实拍图,仅供参考
同时,更是解放了飘窗,让它真正能够将窗外的绿意葱茏和水岸烟波,移植入室内,陪伴生活的点点滴滴。
看过现场的朋友一定深有体会,虽然只是101㎡的面积,但空间感和使用率相当于市场上110㎡的产品。
这完全得益于高得房率,市场普通的得房率大约72-75%左右,而尚湾林语的得房率高达81%,所以室内的空间感是非常强的,也是竞品无法比拟的。
同时,户型设计方正正气,动静分离,完全的将活动与休息空间隔离,保障休息区的私密性。而公区的客餐厨一体化设计,聚融家庭成员间的亲密度,创造温馨的交流环境。以及全屋飘窗设计,再一次加强的空间感和使用率,满足更多生活场景。
第二,品质感很强。
首先,全屋配备日立中央空调,采先进的静音技术,即质量优异又节能环保,营造舒适的室内环境。全屋铺设地暖品牌为世界领先的威能,并全屋铺设。
(样板间实拍图,仅供参考)
其次,精装品牌均采用国际知名品牌,保证了使用的舒适感与品质力。比如厨房橱柜选用了威乃达的定制橱柜,作为专业的厨房柜品牌,除了质感易清洁也很重要。
西门子的厨房三件套,除了品质更将先进科技融入厨房生活。还有弗兰卡大尺寸水槽,使用更方便。前置净水设备,保证家人用水的安心
(样板间实拍图,仅供参考)
卫浴品牌选取了一线品牌唯宝,其中马桶是一体式智能坐便器,静音度高、不沾污、易清洁。龙头和花洒也均采用一线品牌高仪,品质有保障,节水环保。
台盆采用釉面光洁,不沾污,易清洁。打造了大空间的镜面柜收纳,可以收纳牙刷架、吹风机电源等,让生活井井有条。
(品牌示意图,仅供参考)
(样板间实拍图,仅供参考)
第三,细节感动容。
细节最能体现生活的品质。
入户采用三段式玄关柜,上柜收纳,中间龛位设有USB充电插口,下部鞋柜存放鞋子,并留有空间给拖鞋和扫地机器人,侧面柜体设置了多种贴心收纳设计,从大衣外套到雨伞小物件的摆放都将井然有序。这些细节虽小,却是日常生活不可或缺的。
还有,在过道内设置了感应小夜灯,方便夜间的起居,这是非常贴心的设计。
以及厨房吊顶的回形灯带设计、餐客厅大尺寸地砖和卫生间的防滑地砖、电热毛巾架等等,不是重要的部分,却是最打动的存在。
(样板间实拍图,仅供参考)
还有口袋公园,也是此次尚品城生活馆展示的一部分。
口袋公园已成为当下社区的必配空间,在这里孩子们可以一起玩耍,陪伴成长。家长们互相交流熟悉,打造最好的邻里关系。
尚湾林语的社区外共有6个口袋公园,并且不同的主题风格,为业主提供更丰富的娱乐空间。此次开放的是知心谷,沁心道、栖心里、赏心园、逸心园以及童心岛均在陆续的打造中。
(示范区实拍图,仅供参考)
还有架空层,更为丰富的生活社交场景。
在一层空间,打造了儿童活动区、会客厅等功能场景空间,为大家提供了一个能遮风避雨的户外功能场地。
并且架空层与室外绿地交相辉印,形成独特的空间互动,让人们即使在雨天,也能感受自然。
(示范区实拍图,仅供参考)
(示范区实拍图,仅供参考)
(示范区实拍图,仅供参考)
(示范区实拍图,仅供参考)
除此之外,还有建面约149㎡爆款户型,堪称终级改善的四房:

所以其实,购买尚湾林语不止是购买一套住房,而是一种生活方式,一种理想的、多元的、全愿景的美好生活。
02.
当下主义:解决生活的头等大事
最近传播很广的一个词叫长期主义,它教人们要将目光放长远看,而非仅仅关注于眼前的利益。但对于居住来说,宏大的规划前景不如当下的即时兑现更能保全生活的本质。
而尚湾林语,未来与现在两手抓,不仅拥超强的兑现力,自身配套也很完善。
第一,持续的兑现,加速板块能量的上升;
当前七宝中学教育集团已明确入驻18-03、18-05地块,位于住宅地块的西侧,也明确规定了幼儿园及初中部的进驻,预计2025年开工。(信息来源于今日闵行)
七宝中学教育集团作为上海优质教育资源,深受上海家长的追捧,目前有16所分校,18000名学生。优质教育一直是板块能量提升的核心因素,不止是硬核配套,更是保值升值的硬通货,虽然当下新房不做学区承诺,但也为周边居住家庭提供了更多的选择机会。

(网络图片,来源于今日闵行)
以及“三路一河”新建工程也在紧锣密鼓地推进中,预计将于2025年一季度完成。
由瓶安路、银春路、金阳路以及竖河构成的这一工程,竣工后将为区域编织起清晰便捷的交通网络。同时,随着老厂房的拆除(已在拆迁流程中),整个区域都将焕然一新,环流更是一流,也将成为上海南部闪耀夺目的璀璨明珠!

(道路示意图,仅供参考)
第二,丰富的配套,保障当下生活的品质;
不止规划兑现澎湃,当下的配套优势也非常的明确。
尚湾林语的交通配套非常优越,拥有三横四纵的多维立体网络,出行非常便捷,沪闵高架、沪闵公路、虹梅高速等快速道路,条条直达市心。
三条地铁线路,如,5号线龙湖天街TOD剑川路站直线约1公里,可便捷换乘至1号线及其他线路。嘉闵线银都路站规划中,未来可通过5号线快速到达虹桥枢纽。即将开通的23号线东川路站将方便到达紫竹、吴泾、徐汇滨江。全方位的出行方式,快速高效的通勤和出行。

(区位示意图,仅供参考)
商业方面更是商业云集,并且均为一站式购物广场,高效又省时,休闲与娱乐并行。比如,距离项目直线约800米左右的龙湖天街,一座业态丰富且多元的购物中心,满足基本的生活所需外,更提供多维的娱乐空间,来丰富生活乐趣。
还有颛桥万达广场、吴泾宝龙广场、龙湖星悦荟、满天星生活广场等,均为大型的购物中心,提供不同的购物享受。
教育方面提供了全龄化的优质教育,除上文所提到区域内的规划教育已落实外,上海交大闵行幼儿园、上海交大附属实验小学、上海交在附属第二中学、上海交大附属中学、上海交通大学以及华东师范大学等名校环伺,可以说是“书香浸染家教”。
当前的购房者们越来越实际,相比远大宏伟的规划蓝图,已然兑现生活配套更吃香,毕竟在短频快的时代节奏下,即时快乐最重要。
03.
经济主义:高性价比是永恒旋律
如果要说性价比,尚湾林语可谓闵行颛桥的天花板。我们从三个维度分析:
第一,总价比。约400万级起即可获得百平正三房。
纵观整个闵行板块,400万起可以购买百平米正三房的选择非常少的。
即使有总价可以做到400万起,就在售单价而言,无非是以面积换总价,居住的空间与舒适度者大大折扣。
再加之,我们在前文中也介绍的项目的大城理念、大城生活,以及产品的品质与板块的价值,也是肉眼可见的优秀,所以,性价比一直都在!
尚湾林语售楼处电话:400-1010-064☎️☎️✅✅《已认证》
尚湾林语售楼处电话/地址:400-1010-064☎️☎️✅✅《已认证》
第二,价值比。土地的低容代表着稀缺的价值。
众所周如,尚湾林语是一个超低密的社区,容积率仅为约1.6-1.8,放眼全上海都是稀缺的价值。
不要说市区众多优质热门板块都无法拥有如此低密度的土地,就颛桥板块内都是唯此的存在,大部分项目的空积率都处于2.0以上。
在寸土寸金的上海,土地的价值越发高涨,拥有一个低密的土地可以说是非常奢侈的,也正因如此的低密度,才让居住者享受到最大约42米的宽间距,享受宽境的居住生活。
任何价值都可创造,唯有生态价值是稀缺珍贵的。
(价格数据来源于网络收集,仅供参考)
第三,获得比。同样的价格获得超值的空间。
前文我们有所提到,尚湾林语的得房率是非常高的,达81%。高得房率让空间变大,居住的舒适感会大大提升,如此说购房者的感知未必会深,那如果我们算一笔经济账,那么就是很直观的体现出得房率高的优势:
比如说,市场大部分的得房率在76%(这已经是高标准了,还会有更低的得房率),以100㎡户型为例,尚湾林语的户型会比市场多出5㎡的面积,以当前6万的单价核算,那么尚湾林语比其他楼盘省出了近约36万元的价格,无论是购车还是添置家装,都是额外的获得。
所以,论高得房率的重要性。
尾 声:
每一次热销的背后,彰显了项目的市场地位与热度,说明市场及购房者是认可项目的理念与规划,是有利于未来居住理想与模式。
我们也调查发现,尚湾林语的业主是非常高知的。他们大多来自于大零号湾的工作者,基本学历都在本科以上,更不乏硕士、博士级的客户,可以看出项目的业主圈层是非常优秀的。
一个楼盘最隐形的价值是什么,就是圈层。古人常说:谈笑有鸿儒,往来无白丁,一句话道破圈层的意义与重要性,而圈层是一种精神的吸引力,无法创造。
所以,再回过头来说,尚湾林语还只是一个楼盘项目吗?
尚湾林语售楼处电话:400-1010-064☎️☎️✅✅《已认证》
尚湾林语售楼处电话/地址:400-1010-064☎️☎️✅✅《已认证》
声明:本文由入驻焦点开放平台的作者撰写,除焦点官方账号外,观点仅代表作者本人,不代表焦点立场。
