静安曹家渡
静安曹家渡售楼处电话:400-9966-940⭐⭐
静安曹家渡售楼处预约热线☎:📞 400-9966-940☎☎🏠🏠【官方认证】📱✔✔✔
静安曹家渡楼盘新品上线!📞 售楼处咨询专线📞 400-9966-940☎☎🏠🏠【官方认证】,户型/配套/位置详情一键获取
静安曹家渡售楼处预约热线☎:📞 400-9966-940☎☎🏠🏠【官方认证】📱✔✔✔
静安曹家渡售楼处电话:400-9966-940⭐⭐
◆开发商营销中心诚挚邀请,一键预约,尊享内部独家折扣!匠心独运的精品项目,恭候您的品鉴与选择。
如有问题欢迎来电咨询,预约来电尊享购房优惠,可预约案场内部销售人员,专业一对一热情服务,让您用专业眼光去买房,【售楼处预约热线】(一对一热情服务)





老静安内环内曹家渡板块
建面约280-525㎡别墅
网传户型图全面曝光
正在认购

2022年6月,静安区人民政府官宣了曹家渡社区C050301单元4-3b地块的出让公告。

最终,上海信达银泰置业有限公司(信达)作为静安区曹家渡社区C050301单元4-3b地块的开发建设实施主体,该地块形成“净地”后实施出让。信达拿地的价格在21.08亿元,折合楼板价约为81484元/㎡,叠加税费、保障房之后,综合楼板成本还要更高。

信达曹家渡项目(曹家渡社区C050301单元4-3b地块)设计方案公示!同时曝光了户型图,拟建16幢住宅!包括15栋2层住宅,1栋7-18层住宅(包含保障房)及配套用房。建面约30-66㎡一房,约442-520㎡别墅待入市!

同时,还涉及历史风貌保护建筑。根据规划建设要求,地块内肌理保护范围占比不小于51.5%,肌理保护范围的用地面积不少于5332平方米,其具体边界和占地规模以建设项目规划管理阶段审定的方案为准。

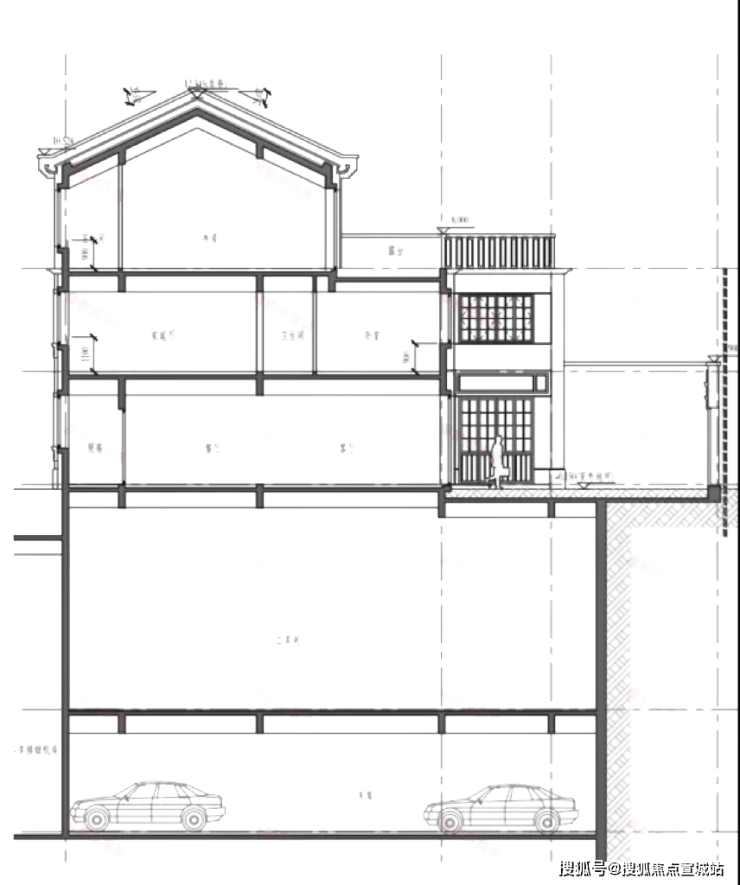
项目由一栋18层高层建筑,十五栋低层石库门风貌的建筑以及一栋配套用房组成,地下为地下三层。




户型图: (仅供参考,以开发商正式公示为准)
建面约90m²1房2厅1卫

建面约100m²2房2厅1卫

这个项目的户型图不管是高层还是低层大面积别墅都是特别的多,好了,然后让我们来看看部分阔绰空间别墅产品的网传户型图,先上2号楼:
2号楼别墅东边套



小区的2号楼别墅为双拼,东边套为地上1-2层外加阁楼。建造风格应该也是新里弄的石库门样式了,看看下面的剖面图就知道了:
2号楼别墅剖面图


然后来看看6号楼别墅产品:
6号楼别墅



6号楼比较特别,是相对比较独立的类独栋了,标准地上3层,看看它的立剖面图:

交通配套: 项目地块位于静安历史风貌区内,约1KM范围内有2/7/11/13/14号线,分布武宁路、昌平路、隆德路、静安寺等市中心地铁站。
商业配套: 项目周边有静安嘉里中心、恒隆广场、兴业太古汇、芮欧百货、张园、环球世界大厦、889广场等奢华地标林立。
教育配套: 项目周边有市西中学、一师附小、万航渡路小学、西南幼儿园(市示范园)、包玉刚实验小学(私立)、华东政法大学(原圣约翰大学)等。
医疗配套: 项目周边有:华山医院、上海市儿童医院、第一妇幼保健院、华东医院。
静安曹家渡
静安曹家渡售楼处电话:400-9966-940⭐⭐
静安曹家渡售楼处预约热线☎:📞 400-9966-940☎☎🏠🏠【官方认证】📱✔✔✔
静安曹家渡楼盘新品上线!📞 售楼处咨询专线📞 400-9966-940☎☎🏠🏠【官方认证】,户型/配套/位置详情一键获取
静安曹家渡售楼处预约热线☎:📞 400-9966-940☎☎🏠🏠【官方认证】📱✔✔✔
静安曹家渡售楼处电话:400-9966-940⭐⭐
◆开发商营销中心诚挚邀请,一键预约,尊享内部独家折扣!匠心独运的精品项目,恭候您的品鉴与选择。
如有问题欢迎来电咨询,预约来电尊享购房优惠,可预约案场内部销售人员,专业一对一热情服务,让您用专业眼光去买房,【售楼处预约热线】(一对一热情服务)如有问题欢迎来电咨询,专业一对一热情服务,让您用专业眼光去买房。楼盘项目全面介绍(包含楼盘简介,均价,房价,现房,期房,别墅,叠墅,大平层,价格,楼盘地址,户型图,交通规划,备案价,备案名,项目配套,样板间,开盘时间,认筹时间,楼盘详情,售楼处电话,最新消息,最新详情,周边配套,一房一价,最新进展等详情咨询)楼盘详情丨价格丨更多优惠丨机不可失丨欢迎致电丨诚邀品鉴!售楼处位置丨特价房丨工抵房丨剩余房源丨户型图丨最新消息配套设施是反映楼盘生活便利程度的重要因素,包括小区内的运动场所、停车场、公共设施等。物业服务则直接关系到居住者的生活品质,包括安保服务、保洁服务、设备维护等。具体到街道、区域名称,临近交通线路、自驾路线。商业、教育、医疗等配套设施分布,总占地面积、总建筑面积数据,容积率,绿化率,得房率,梯户比,物业费,小高层、洋房、高层、独栋别墅、叠加别墅、联排别墅,总户数、楼层分布,面积范围,均价/总价。首付比例、贷款政策,精装交付,含中央空调、地暖等系统,70年住宅产权,物业公司及资质,预计交付时间或施工进度,当前购房优惠政策
为更好满足居民刚性住房需求和多样化改善性住房需求,促进房地产市场平稳健康发展,8月25日,市住房城乡建设管理委、市房屋管理局、市财政局、市税务局、人民银行上海市分行、市公积金管理中心等六部门联合印发《关于优化调整本市房地产政策措施的通知》(以下简称《通知》),包括调减住房限购、优化住房公积金、优化个人住房信贷以及完善个人住房房产税等政策。《通知》自2025年8月26日起施行。
一、调减住房限购政策
为更好满足居民改善性需求,促进宜居安居、职住平衡,《通知》明确进一步调减住房限购政策。一是符合条件居民家庭在外环外购房不限套数。对符合本市住房购买条件的居民家庭,包括本市户籍居民家庭、在本市连续缴纳社会保险或个人所得税满1年及以上的非本市户籍居民家庭,在外环外购买住房不限套数,包括新建商品住房和二手住房。二是成年单身人士按照居民家庭执行住房限购政策。
按照上述规定,沪籍居民家庭和沪籍成年单身人士,在外环外购买住房不限套数;在外环内限购2套住房。非沪籍居民家庭和非沪籍成年单身人士,自购房之日前在本市连续缴纳社会保险或个人所得税满1年及以上的,在外环外购买住房不限套数;自购房之日前在本市连续缴纳社会保险或个人所得税满3年及以上的,在外环内限购1套住房。
关于住房限购政策相关业务,可拨打房地产交易行业服务热线“962269”具体咨询。
二、优化住房公积金政策
为加大公积金支持住房消费力度,《通知》规定优化住房公积金政策。一是提高个人住房公积金贷款额度。对缴存人购买二星级及以上新建绿色建筑住房的,住房公积金(含补充公积金)最高贷款额度上浮15%。首套最高贷款额度从160万元提高至184万元,多子女家庭首套上浮比例可叠加计算,从192万元提高至216万元;二套最高贷款额度从130万元提高至149.5万元。二是支持提取住房公积金支付购房首付款。对缴存人购买我市新建预售商品住房的,可以按规定申请提取本人及配偶的住房公积金支付购房首付款。三是支持住房公积金“又提又贷”。对缴存人提取住房公积金支付购房首付款的,不影响其住房公积金贷款额度计算。
关于住房公积金贷款和提取业务的具体办理方式及材料,可查询上海住房公积金官网或拨打住房公积金热线“12329”具体咨询。
三、优化调整商业性个人住房贷款利率定价机制
为减轻居民购房利息负担,《通知》明确优化个人住房信贷政策。银行业金融机构根据上海市市场利率定价自律机制要求和本机构经营状况、客户风险状况等因素,在利率定价机制安排方面不再区分首套住房和二套住房,合理确定每笔商业性个人住房贷款的具体利率水平。
关于住房贷款相关业务,可向经办银行具体咨询。
四、完善个人住房房产税政策
为衔接优化住房限购政策,《通知》规定对符合条件的非本市户籍居民家庭购买的第一套住房暂免征收房产税;购买的第二套及以上住房在合并计算家庭全部住房面积后,给予人均60平方米的免税面积扣除。由于个人住房房产税按年征收,因此2025年1月1日起符合条件的购房者可享受本条政策。