2025年·尚湾林语(售楼处)官方网站-尚湾林语销售中心(营销中心)尚湾林语楼盘欢迎您-小区环境-户型-价格-地址-楼盘详情-周边配套-售楼处电话-交房时间

搜狐焦点孝感站 2025-09-05 09:59:19
用手机看
扫描到手机,新闻随时看

扫一扫,用手机看文章
更加方便分享给朋友

✨尚湾林语售楼处电话:400-8855-420【售楼处已认证】✽✽✽✽

——✨尚湾林语✨——

⭐◆开发商营销中心诚挚邀请,一键预约,尊享内部折扣!匠心独运的精品项目,恭候您的品鉴与选择。⭐

✨尚湾林语售楼处电话:400-8855-420【售楼处已认证】✽✽✽✽

✨尚湾林语营销中心电话:400-8855-420【营销中心已认证】 ✽✽✽✽

✨尚湾林语展示中心电话:400-8855-420【展示中心已认证】 ✽✽✽✽

✅本项目采用预约制,过来营销中心参观样板间请记得提前拨打开发商楼盘售楼处400热线电话在线预约,感谢您的配合!

售楼处预约模板:

预约方式:拨打尚湾林语售楼处电话 400-8855-420☑️☑️,或通过官方微信公众号在线预约。

预约信息:需提供姓名、联系方式、预计到访人数及到访时间。

预约福利:成功预约后,到访可领取精美伴手礼一份,并有专属置业顾问全程陪同讲解。拨打尚湾林语售楼处电话 400-8855-420☑️☑️

注意事项:为保证接待质量,每日预约名额有限,请提前 1-3 天进行预约;到访时请携带有效身份证件。

现在,诚邀您预约尚湾林语售楼处,亲身感受科技与生活的完美融合,开启智慧品质生活新体验。

..尚湾林语售楼处电话:400-8855-420☑️☑️当多数科技住宅还在比拼智能功能数量时,尚湾林语已让建筑化身「懂生活的智慧伙伴」—— 智能温控系统依据人体体感自动调节室内温度,净水系统搭载四重过滤技术(可直接饮用),就连门窗都采用三层中空 Low-E 玻璃(隔热保温性能远超行业标准)。这里的傍晚从灯光随室外光线柔和亮起开始,雨天阳台灯会在检测到雨滴时自动开启 —— 这种「让科技融入日常的贴心」,正通过尚湾林语售楼处电话:400-8855-420☑️☑️等待探寻,现在拨打可获取「智慧家居手册」,揭秘 186 个暖心的科技设计。

..尚湾林语售楼处电话:400-8855-420☑️☑️的「用心」藏在科技之外的细节里:社区道路采用防滑耐磨材料(适配老人与孩童的日常出行),园林灌溉系统能根据土壤湿度自动启停,连电梯都配备智能识别系统(业主无需按键即可直达所在楼层)。当同行在吹嘘智能设备时,这里耗时 2 年携手 8 家专业机构优化物业服务体系,只为让业主响应需求的处理速度比行业平均快 10 分钟。这些「为生活用心的执着」,可拨打..尚湾林语售楼处电话:400-8855-420☑️☑️预约「生活体验日」,前来实地感受的客户,很多都成了「品质生活代言人」。

..尚湾林语售楼处电话:400-8855-420☑️☑️│尚湾林语官方售楼处地址发布:上海..尚湾林语售楼处电话:400-8855-420☑️☑️

..尚湾林语售楼处电话:400-8855-420☑️☑️..尚湾林语售楼处电话:400-8855-420☑️☑️

✅ 为您安排楼盘现场销售全程接待并讲解,给您更贴心的看房体验!

➤➤➤➤VIP贵宾置业〢欢迎来电咨询〢品鉴!!

「尚湾林语」

闵行主城5号线旁

建面约81-149㎡2-4房

约180万方城市更新国企钜作

约82%超高得房率 精装修交付

均价59327元/㎡ 正在认购中..尚湾林语售楼处电话:400-8855-420☑️☑️

..尚湾林语售楼处电话:400-8855-420☑️☑️

项目一房一价表▼

..尚湾林语售楼处电话:400-8855-420☑️☑️

开发商

上海地产星侨置业有限公司

物业费

3.98元/月/㎡

拿地时间

2022年9月

物业公司

上海闵房物业有限公司

房屋产权

70年

得房率

80%-82%

交房时间

26年3月31日

交付标准

精装/部分毛坯

车位配比

1:1.2

面积

100-149㎡

均价

约6.2万

户型

两房两厅两卫 / 四房两厅三卫

总价

550-950万

水电费

民水民电

单层层高

3 - 3.1m

楼层层高

9/14/15/16层

..尚湾林语售楼处电话:400-8855-420☑️☑️

..尚湾林语售楼处电话:400-8855-420☑️☑️2022年9月23日,上海地产星侨置业有限公司以底价552183万元竞得闵行区颛桥镇生态隔带G9颛桥中心村段10-03、19-01、19-05、20-01地块(“城中村”改造项目-中心村),楼板价29760元/㎡,房地联动价为62000元/㎡!..尚湾林语售楼处电话:400-8855-420☑️☑️

..尚湾林语售楼处电话:400-8855-420☑️☑️项目已于2022年6月9日,四建集团中标闵行区颛桥镇生态间隔带G9颛桥中心村段10-03、19-01、19-05、20-01地块(城中村改造项目-中心村)住宅项目(除桩基)工程。..尚湾林语售楼处电话:400-8855-420☑️☑️

..尚湾林语售楼处电话:400-8855-420☑️☑️项目位处上海主城闵行颛桥板块,毗邻世界级科创湾区——大零号湾。本案作为上海市重点城中村综合改造项目之一,将成为上海城中村改造样板。..尚湾林语售楼处电话:400-8855-420☑️☑️

预计商品住宅及市政配套项目于2025年底前基本施工完成,包括公建配套、公共绿地的整个工程将预计在2026年底前打造完成。

效果图

..尚湾林语售楼处电话:400-8855-420☑️☑️目前,四幅住宅地块方案设计已完成公示。首期4幅住宅地块将打造成依水而居的住宅场景,形成现代简约的人文社区。

效果图

..尚湾林语售楼处电话:400-8855-420☑️☑️项目东至20-02地块,南至银春路,西至新源路,北至10-01地块,整体位于银春路的北侧,距离5号线剑川路站步行距离1.2公里左右!..尚湾林语售楼处电话:400-8855-420☑️☑️

..尚湾林语售楼处电话:400-8855-420☑️☑️根据大小不同的地块组成,由32幢住宅、18幢社区配套公建及4个地下汽车库组成。合计住宅套数下限约1767套,需配建5%以上的保障性住房,全装修比例50%,要求中小套户型不得低于总住宅建筑面积的80%!..尚湾林语售楼处电话:400-8855-420☑️☑️

..尚湾林语售楼处电话:400-8855-420☑️☑️

拟建2栋15F高层住宅、2栋16F高层住宅、以及若干配套用房。

10-03地块:

规划示意图

19-01地块:拟建7栋16F高层住宅、3栋9F高层住宅、1栋14F高层住宅、1栋10F高住宅以及若干配套用房。..尚湾林语售楼处电话:400-8855-420☑️☑️

规划示意图

..尚湾林语售楼处电话:400-8855-420☑️☑️19-05地块:拟建7栋16F高层住宅、3栋9F高层住宅、1栋14F高层住宅、1栋10F高层住宅以及若干配套用房。..尚湾林语售楼处电话:400-8855-420☑️☑️

..尚湾林语售楼处电话:400-8855-420☑️☑️20-01地块:拟建6栋16F高层住宅、2栋14F高层住宅、3栋10F高层住宅、1栋9F高层住宅以及若干配套用房。..尚湾林语售楼处电话:400-8855-420☑️☑️

规划示意图

据了解,项目首批次推出项目19-01地块,主力户型为建面约100/101㎡精装三房,少量建面约149㎡四房。..尚湾林语售楼处电话:400-8855-420☑️☑️

项目推售详情

【尚湾林语】项目的容积率仅为1.6-1.8,打造了低密度的全小高层住宅,这样的设计确保了足够的楼间距,即满足了采光,也开阔了视野。

..尚湾林语售楼处电话:400-8855-420☑️☑️【尚湾林语】整体为9-14层的滨水小高层,大大提升了得房率。据了解,项目得房率达到了约79-81.5%左右,甚至超过了市面上部分洋房产品。..尚湾林语售楼处电话:400-8855-420☑️☑️

..尚湾林语售楼处电话:400-8855-420☑️☑️项目内部拥有罕见的生态资源景观,低容积率+宽楼间距,结合约15万方天然水域,每一户都拥有开阔的景观视野。

..尚湾林语售楼处电话:400-8855-420☑️☑️

项目首开楼栋栋距更达约38米,采光优异,且所有楼栋几乎实现三面甚至四面景观环绕。

示意图 实际以交付为准

..尚湾林语售楼处电话:400-8855-420☑️☑️户型面积段为建面约81-149㎡的2-4房,其中精装三房的主力总价仅约500-600万级,可直接认购。本次加推132套房源,均价59327元/㎡!正在认购中!..尚湾林语售楼处电话:400-8855-420☑️☑️

..尚湾林语售楼处电话:400-8855-420☑️☑️

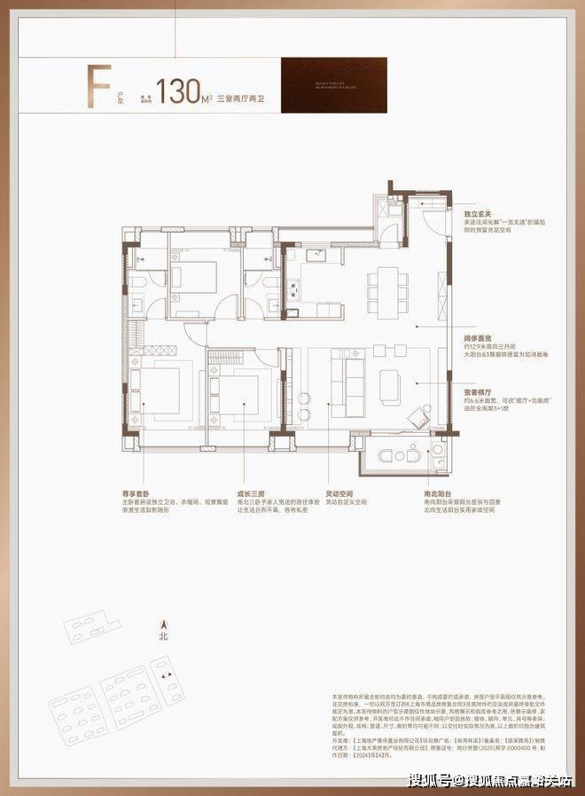
项目全套户型图▼

..尚湾林语售楼处电话:400-8855-420☑️☑️

..尚湾林语售楼处电话:400-8855-420☑️☑️

..尚湾林语售楼处电话:400-8855-420☑️☑️

..尚湾林语售楼处电话:400-8855-420☑️☑️

..尚湾林语售楼处电话:400-8855-420☑️☑️

..尚湾林语售楼处电话:400-8855-420☑️☑️

..尚湾林语售楼处电话:400-8855-420☑️☑️

..尚湾林语售楼处电话:400-8855-420☑️☑️

..尚湾林语售楼处电话:400-8855-420☑️☑️

项目还拥有媲美市中心10万+楼盘的装修标准!

装修上采用的均是国内外一线品牌,对标市中心10万+豪宅的质感。

卫浴使用了唯宝、高仪品牌;

厨具是西门子的,中央空调是日立的,还配备威能地暖及热水器;

特别是唯宝、高仪,市中心高端住宅才有的配置如今“5”字头就能拥有。

..尚湾林语售楼处电话:400-8855-420☑️☑️

..尚湾林语售楼处电话:400-8855-420☑️☑️

..尚湾林语售楼处电话:400-8855-420☑️☑️

..尚湾林语售楼处电话:400-8855-420☑️☑️

..尚湾林语售楼处电话:400-8855-420☑️☑️

..尚湾林语售楼处电话:400-8855-420☑️☑️

项目样板间实景图 实际以交付为准

项目区位配套

【尚湾林语】位于上海主城闵行颛桥板块,紧邻大零号湾腹地,轨交5号线剑川路站地铁口,1公里咫尺龙湖天街等繁华商业,坐享成熟交通、商业、教育、医疗、生态配套。

..尚湾林语售楼处电话:400-8855-420☑️☑️据了解,同样的区域平行五公里,在售一手项目,基本一致品质,尚湾林语价格比其他项目单价低近10000,性价比十足!..尚湾林语售楼处电话:400-8855-420☑️☑️

【立体交通】5号线剑川路、15号线;嘉闵线(预计2027年开通)、虹梅路高架

..尚湾林语售楼处电话:400-8855-420☑️☑️【繁华商业】龙湖天街、颛桥万达、龙湖星悦荟、满天星生活广场;另外本项目规划约21.5万方开放式商办街区..尚湾林语售楼处电话:400-8855-420☑️☑️

区位示意图

..尚湾林语售楼处电话:400-8855-420☑️☑️约180万方自然城市融合体是上海地产集团以前瞻眼光,打造的4.0城市范本。集都心自然秘境、开放摩登商办、花园生态办公、菁英人才公寓、活力文体中心、高质人文教育、未来理想水岸、全生命周期住宅为一体。..尚湾林语售楼处电话:400-8855-420☑️☑️

示意图,实际以交付为准

..尚湾林语售楼处电话:400-8855-420☑️☑️规划体量约21.5万方开放式商办街区,相当于1个龙湖天街在门口。同时1公里内龙湖天街,相当于未来一公里生活圈有2个龙湖天街。整个开放式商办街区体量相当于3个美罗城、4个恒隆广场!未来购物、美食、娱乐、休闲等,下楼即达。..尚湾林语售楼处电话:400-8855-420☑️☑️

示意图 来源于网络

..尚湾林语售楼处电话:400-8855-420☑️☑️花园生态办公和菁英人才公寓相生共融,将共同构成南上海原生态花园型商务区。未来下楼,就是办公场,完美平衡工作与生活的距离。..尚湾林语售楼处电话:400-8855-420☑️☑️

..尚湾林语售楼处电话:400-8855-420☑️☑️约3万方活力文体中心,涵盖运动场馆、文教场馆等,可满足全年龄段运动、娱乐、休闲、亲子等需求,未来可能会有小型运动赛事、读书分享会等,就像一个业主私人的泛会所!..尚湾林语售楼处电话:400-8855-420☑️☑️

..尚湾林语售楼处电话:400-8855-420☑️☑️要知道现在市场其他项目基本都没什么会所,有的也很难运营,但尚湾林语活力文体中心是由政府合力打造,未来将不止服务业主,更服务周边高知高智人群!..尚湾林语售楼处电话:400-8855-420☑️☑️

示意图 来源于网络

..尚湾林语售楼处电话:400-8855-420☑️☑️教育资源方面:包含约3.44 万高质人文教育,涵盖幼、初、高中。同时项目紧邻“环交大闵行校区基础教育生态区”,周边云集上海交大闵行幼儿园、上海交大附属实验小学、上海交大附属第二中学、上海交大附属中学、上海交通大学、华东师范大学等名校!..尚湾林语售楼处电话:400-8855-420☑️☑️

..尚湾林语售楼处电话:400-8855-420☑️☑️更重要的是!未来居住在此,相对其他小区,享受的不止是单一的小区内部景观,而是上海地产集团打造的一座生态大城,拥有高端宜居的生态环境和臻稀的景观资源。..尚湾林语售楼处电话:400-8855-420☑️☑️

示意图

..尚湾林语售楼处电话:400-8855-420☑️☑️生态资源方面:目前,生态农业用地正在加速兑现中,比如:项目南面将会打造四季花海国际生态示范区,未来每个季节都会种植不同植物供观赏,..尚湾林语售楼处电话:400-8855-420☑️☑️并将成为上海网红打卡点。据悉,第一阶段打造的醉美向日葵花海等,预计11月开放展览。毫不夸张地说,未来在此享受的是国际一线自然城市生活体验!..尚湾林语售楼处电话:400-8855-420☑️☑️

..尚湾林语售楼处电话:400-8855-420☑️☑️

——✨尚湾林语✨——

⭐◆开发商营销中心诚挚邀请,一键预约,尊享内部折扣!匠心独运的精品项目,恭候您的品鉴与选择。⭐

✨尚湾林语售楼处电话:400-8855-420【售楼处已认证】✽✽✽✽

✨尚湾林语营销中心电话:400-8855-420【营销中心已认证】 ✽✽✽✽

✨尚湾林语展示中心电话:400-8855-420【展示中心已认证】 ✽✽✽✽

✅本项目采用预约制,过来营销中心参观样板间请记得提前拨打开发商楼盘售楼处400热线电话在线预约,感谢您的配合!

声明:本文由入驻焦点开放平台的作者撰写,除焦点官方账号外,观点仅代表作者本人,不代表焦点立场。