海上清和玺-上海徐汇(2025海上清和玺售楼中心楼盘详情)-海上清和玺户型配套-小区环境-最新房价

搜狐焦点孝感站 2025-10-20 12:52:00
用手机看
扫描到手机,新闻随时看

扫一扫,用手机看文章
更加方便分享给朋友

海上清和玺官方预约:400-1010-064☎️☎️

海上清和玺

官方预约:400-1010-064☎️☎️

徐汇中环唯一新房供应

建面约112-143㎡3-4房

均价11.28万/㎡ 总价1200万起

售楼处线上提前预约

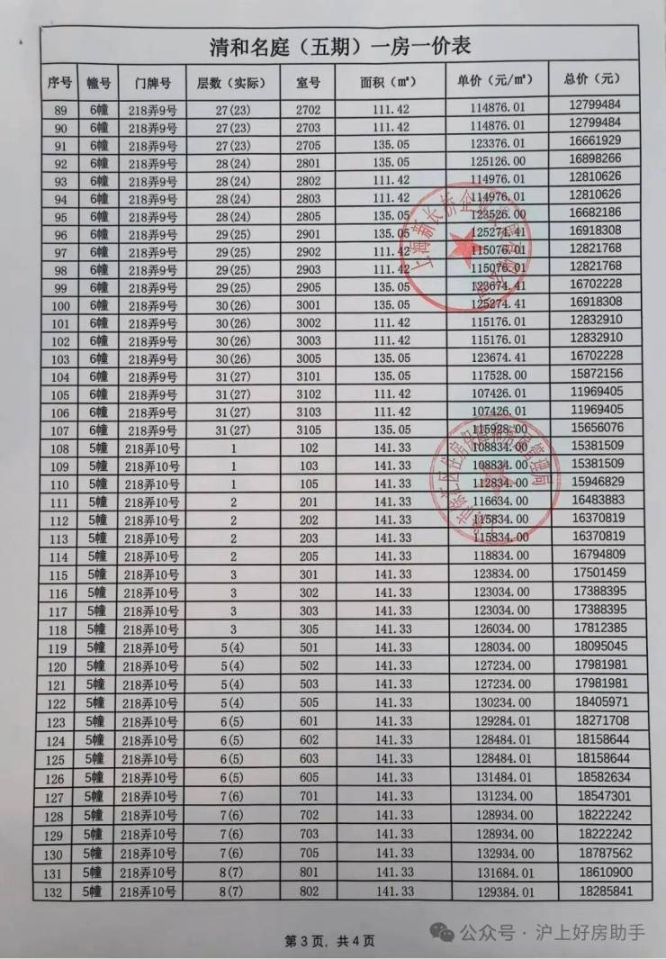
海上清和玺一房一价表

项目区位介绍

徐汇长桥,一段跨越860年的时代往事,由此娓娓道来。【海上·清和玺】源自百年「清和」的传承。长桥因桥而名,公元1163年南宋隆兴年间,长桥时名“清和桥”,迄今已有860多年历史,从历史到现在,一座桥见证历史的变迁,记录上海城市巨变的缩影。后因清和桥之南属于华亭县,桥之北属上海县,清和桥横跨两县,民间又称之为“长桥”。这也是长桥港、长桥镇得名的由来。

图片来源于网络

海上清和玺官方预约:400-1010-064☎️☎️

时间潮去,时代潮来,“清和”虽留驻于历史,但“清和”的美好期盼依旧流淌于老徐汇人的心田。楚辞《九思·伤时》中提到“声噭誂兮清和”,“清和”寓意着清静和平,社会升平。正如今天的长桥,岁月静好温润如初。当目光穿越时间,海上清和玺,正是一次百年长桥源址的续写,一次海派在地文化的薪火传承。

【海上·清和玺】基于百年长桥在地文化的传承,以海派历史为底蕴,在过于与未来之间,奢享一座城市罕有的文脉资产。

项目基本信息

玺系,是招商蛇口的至高产品系,皆为“一玺一定制”。项目售楼处&实景展示区开放在即,在开放前夕,来看看其产品打造有哪些亮点。

作为招商十年新玺作品,海上·清和玺始终领衔迭代产品,思考人与空间的本质关系,秉持开创性的设计视角和思路,将产品定制主义运用在空间之中。

【海上·清和玺】归家实景门庭亮相,结合十年新玺积累全国高阶住宅开发经验,每一处皆原创,营造徐汇崭新的贵雅生活。希望业主真正归家的时刻,能时刻保持心动感。

归家奢境超50米非凡尺度

在设计之初,海上·清和玺从传统场域出发,在标准中重新定制。归家门庭贵雅三景,从设计创意到用材细节从公区配置到产品打造,为徐汇呈现真正的“贵雅生活殿堂”。‘

大手笔!全域风雨连廊!

或许碍于成本,风雨连廊其实在豪宅中出现的频率也非常低。

而海上·清和玺将风雨连廊扩容为一个完整的归家体系, 将整个社区以约 500米全域连廊体系贯通,真正做到全楼栋无风雨归家。

项目效果图过程稿,以实际交付为准

金石玉彻奢材 波澜清泉水景

海上·清和玺】空间采用奢材定制,将品质延续到每个细节中。门庭延街的外立面,以精工定制弧形贝金米黄大理石为主调,镶嵌典藏级老虎玉大理石,点缀古铜色现代海派艺术感灯器。整体呈现一种流转于百年海派的贵雅气质。

在门庭外,辅以两侧具有仪式感的跳泉水景,将建筑的圆弧美感与自然水景相合,共同构成海上·清和玺“贵雅清和”的城市界面。

对称式环岛景墙奢石镶嵌

步入到整个门庭环岛空间,整个景墙的设计同样考究墙面采用中轴对称的设计布局,定制了奢石镶嵌装饰将曲面艺术与经典石器之美圆融交融,形成独一份的视觉震撼。

酒店式环岛落客 海派漩心

酒店式归家环岛的中心,海上·清和玺原创设计了艺术装置,海派漩心。首创经典山茶花图腾设计,其装饰符号源于海派建筑中的山茶花图腾,设计师通过现代的手法将其以立体的方式重塑在环岛落客空间。

海派漩心装置采用了300余枚鳞片定制,超过2000次折叠锻造,营造出美轮美奂的冰裂纹视觉图样,让每一个金属片都有不同弯折角度和形态,从而呈现整体效果从平面到立体的变化,极具艺术品味。

其底部精心设计了流通的波澜水景,宛若一座曼妙的山茶花生长于泉水之上,熠熠生辉。

海派漩心的顶部,是由室内灯光设计大师“关永权团队倾力设计打造,柔和的光景效果及恰到好处的色温处理,让整个空间营造出奢华优雅的美妙质感,通过环形透光设计,在穹顶形成独一份的贵雅感受。漫步灯光之下,如同走过时间的美妙殿堂。

【海上·清和玺】希望业主的每一次归家,都能有属于自己的社交空间。整个前厅的接待空间不是一个过渡空间,而是一个真正为归家营造惬意分享的生活场。

海派设计 殿堂质感

整个室内空间由G.ART集艾主创设计大师李阳先生倾力设计,将百年徐汇的经典文化融为建筑语言,生动地写入场景之中。

预接待厅门头源于招商局出资创办的原南洋公学(现在上海交大)三段式建筑造型。优美、经典的软装风格定制无不彰显着生活的品味,天花板定制了细腻入微的deco设计细节,地面瓷砖采用威尼斯白与爵士白石材拼花设计,纯人工铺装保证花纹的奢华质感,壁面装饰的水品灯,选用高规格的E9级进口水晶制作,真正将海派设计融入生活。

艺术点缀 随手出圈

【海上·清和玺】保持对徐汇滨江艺术生活的充分理解,整个接待厅堂处处可见出片打卡的贵雅瞬间,礼宾接待台与装饰圆满融合,角落美陈亦匠心独运,整体设计采用整石雕琢,于细微中领略建筑背后的艺术内在。在这里,空间让渡于品味,引领人们对生活有全新的理解和发现。

奢感勾勒 海派光厅

从室内走出室外,宛若一次穿梭百年海派艺术的旅行。甚至触碰的门面,都有源自徐汇历史深处的浓厚艺术中庭的大门设计为“海派光厅”,其玻璃镜面由匠人手工绘制经典海派线条,邬达克经典的纹路设计嵌于表面,同时墙面同样定制了优雅的奢石装饰,让整个空间的布局既有历史的风韵,也有现代的奢华。

千里苛觅 福木紫薇

景观造园,不只局限于对自然场景的铺陈,更应考虑自然能带给人的生活变化。真正的奢宅拥有的是文化内在。海上·清和玺考究历史,从典籍中发现生的灵感,设计师考究历史中的大宅建造规制,提取“浓荫庇宅”的传统理念,辗转城市之间,从华东,西南,华中区域访查搜寻,终于寻得树龄超60年的福木“紫薇”。

天上紫薇星,地上紫薇花。紫薇不仅寓意美好,更完美的呈现了红润、朝气的自然色彩,巧妙的点缀其中,形成盛夏如火的独有景观。

造价近百万土耳其进口奢材 老虎玉庭院

传统下沉庭院只为社区营造休憩场所,海上·清和玺真正将庭院从传统的定义中跳脱出来,试图将庭院打造成一件俊美的“工艺品”。

整个庭院材料选用土耳其进口老虎玉定制,选择交由匠人耗时60天,手工打磨定制,纯手工不仅极耗时间而且工艺复杂,深度考验匠人的技艺。海上·清和玺希望在产品的最终呈现上,能真正还原一个有温度的庭院将匠心融入场域之中,真正为每一位业主营造“休憩品书”的贵雅瞬间。仅仅这一方庭院价值就已近百万,可见海上·清和玺对业主归家仪式感设计的用心与苛求。

垂直会所体系

据沪上好房统计,近两年10万+/㎡新房中,配备会所的楼盘仅十之一二,会所面积约800-1500㎡,内容以会客厅和健身房为主,少数有泳池。 (来源沪上好房手工统计)

而在海上·清和玺,招商蛇口首次提出 “垂直会所体系” 的空间布局设计,将原本扁平式的功能布局以立体的方式重新构建,实现了复合空间的多元利用。

其中会所及架空层总体量约3000㎡ ,如此大规模的定制,在整个上海高阶产品中同样也是超前列的存在。

海上清和玺官方预约:400-1010-064☎️☎️

约2000㎡地下会所内含 璀璨星空顶泳池、私宴厅、室内高端健身器材 (沃特罗伦或同等档次品牌)甚至 高尔夫场所 (高尔夫尊或同等档次品牌)。

还有七大泛会所,作为业主生活的延伸。

项目效果图过程稿,以实际交付为准

从实景归家到功能设计公区奢宅化 重新界定场域的价值所在

在产品颜值的高水准定制之外,在海上·清和玺的视角里,希望打破原有的空间定制思路,将传统高阶住宅的打造理念运用到公区,重新定义公区功能及体验感。

项目推售详情

【海上·清和玺】加推9-10幢,房源共154套,建面约112㎡-141㎡3-4房楼王,

其中9#楼112㎡-134㎡压轴加推 中轴C位收官!10#楼约143㎡四房 最后抢藏机会!

均价11.91万/㎡。另前期少量建面约112-177㎡3-4房改善大宅可直接认购!总价1200万起!

海上清和玺项目全套户型鉴赏:

徐汇2000万内稀缺四房,堪称孤品

作为徐汇区当前唯一总价2000万内的四房新盘,在土地资源开发成本日渐高昂的徐汇,低密洋房堪称“绝版资产”,而兼具功能性与收藏属性的「四房真洋房」,更堪称时代孤品。可以说,这一次之后,很难再有!

海上清和玺官方预约:400-1010-064☎️☎️

除了本身稀缺性之外,这一次143㎡洋房的产品设计也有诸多亮点:

1、全生命周期产品,四房两卫满足家族式需求

2、类一梯一户,舒适独立入户空间

3、南向四开间,面宽约15.5m,独立餐客厅,南北通透

4、是徐汇唯一2000万左右能买到四房的新盘

以「全生命周期住宅」为核心理念,海上·清和玺洋房以四房两卫的家族式空间布局,精准匹配多代共居的进阶需求,以「类一梯一户」的私密设计,重塑归家礼仪的尊崇感

户型设计上约15.5米南向四开间,以大开大合的格局重构空间美学与功能的平衡独立餐客厅南北贯通,舒适通透十足,同时 6-7层低密真洋房形态,打破传统高层压抑感,将光照提升至极致。无论是三代同堂的欢声笑语,抑或私密静谧的独处时光,皆能在此找到理想载体。

据悉,143㎡大师样板现已开放,过会均价12.7万/㎡,臻稀席位仅25个!预约从速!

样板间实景拍摄:

海上清和玺官方预约:400-1010-064☎️☎️

建面约177㎡4房2厅3卫

建面约177㎡户型是本批次的重点户型,总价约2300-2500万级,改善一步到位,后续再无!阔朗的四开间朝南设计+双套房设计,保证不同家庭成员起居的私密性。

客餐厅尺度阔绰,方正大气,自带曲面流体的阳台。主卧带转角飘窗,主卫浴缸+双台盆设计,非常尊崇!

建面约112㎡ 3房2厅2卫▼

海上清和玺官方预约:400-1010-064☎️☎️

建面约112平三房为标准的三开间户型,设计上将传统的过道改为餐厅空间,将公共区域做大了,也减少了浪费;S墙设计将冰箱空间外移,厨房空间更宽裕。

入户这座铸铝门,质感厚重;通顶玄关柜,内置消毒精灵,奢石把手+奢石台面更显海派温润气质,玄关地面都铺上了海上·清和玺的logo拼花,小小玄关做到了既实用又美观。

样板间实景拍摄:

进门可以看到经典的S墙设计,L型厨房操作台面,也是暗藏不少细节——玻璃移门采用完美系列夹丝玻璃+金属造型边框,顶部配置线性凉霸+LED嵌入式回形灯带+筒灯,灶台后侧采用大面积岩板铺设,方便清洁的同时显得厨房更加大气。

厨电配置了德国厨房顶奢品牌博世(或同等档次)四件套抽烟机+燃气灶+洗碗机,带末端净水器,弗兰卡(或同等档次)大单槽+可抽拉龙头,冰箱也是交付的!

柜门白色烤漆面板,抽屉分区也都是帮大家细致划分,如多功能调味拉篮+谷物抽+碗碟拉篮等。岛台上配置可升降插座,铝合金抽屉,石材背景板的金属开放格实用性很强。

电视背景墙采用卡慕白的石材+皮革造型,弧形吊顶,相当讲究,连空调出风口的形状都打造为海上·清和玺logo山茶花的形状~~三大件为大金(或同等档次)中央空调和地暖,新风系统为百朗(或同等档次),南向阔景阳台,采光视野一级棒!

主卧套房设计,皮革造型的床背景墙也是交付标准,台盆为唯宝(或同等档次)、龙头则为科勒(或同等档次)复古龙头,马桶为高仪智能马桶(或同等档次)。

奢石台面,皮革饰面柜抽屉,侧端设置金属收纳开放格;定制镜柜,中间的透光玉石直接提升了高级感,镜柜内部配备了美妆冰箱+美妆灯条+轨道收纳!

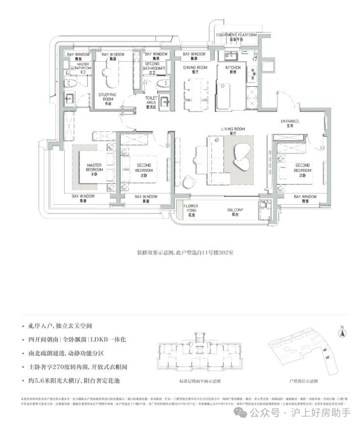
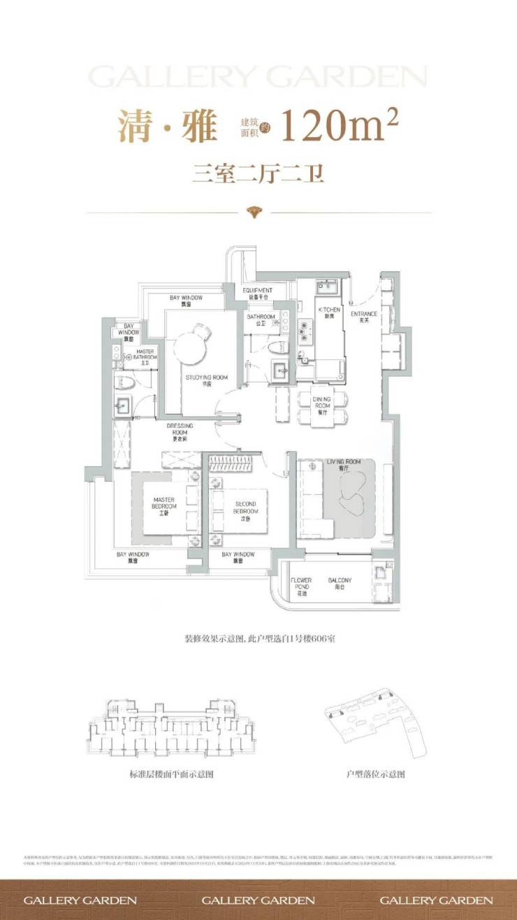
建面约120㎡ 3房2厅2卫▼

建面约120㎡的户型,定制LDKB一体化宽厅,更舒适的功能定制,270°转角窗观景套房设计,实现了居住品质与观景的完美结合。

建面约134㎡ 3房2厅2卫▼

海上清和玺官方预约:400-1010-064☎️☎️

全屋动静分离设计,餐客一体化,预计客厅面宽超4.7米配以270度采光阳台,舒适度直接拉满;玄关设置S墙、厨房预留岛台位置,促使空间利用度更加合理;主卧面宽预计超3.6米,配以270度飘窗。

实地拍摄

项目周边配套

轨道交通方面:距离15号线罗秀路站约1.2公里,步行不算近,但是也能接受。

自驾方面,约800米即可上中环,距离龙吴路、上中路隧道、外环直线距离约1公里,距离虹梅南路、沪闵高架路也仅约2公里。

示意图

商业配套方面:项目2公里内有凌云壹街坊、百安居、东阔生活广场、规划了北杨人工智能小镇。

教育资源方面:项目北面一街之隔就是徐汇四大名校之一民办逸夫小学,上海中学距离项目也仅几百米。

医疗资源方面:

上海市第六人民医院(直线距离约2.7公里),全国骨科王牌top级三甲医院;上海市第八人民医院、上海仁爱医院、上海万众医院、上海虹桥医院等专业医院,护航家人健康。

生态资源方面:距离上海植物园直线距离约1.3公里。

海上清和玺官方预约:400-1010-064☎️☎️

声明:本文由入驻焦点开放平台的作者撰写,除焦点官方账号外,观点仅代表作者本人,不代表焦点立场。