上海杨浦桐安里官方售楼处-上海桐安里(2025·桐安里最新)楼盘网站-房价-户型-图文介绍
扫描到手机,新闻随时看
扫一扫,用手机看文章
更加方便分享给朋友
上海桐安里预约热线☎:400-8080-420✅✅(温馨提示:请提前来电进行预约看房或咨询项目详情)
杨浦滨江东外滩低密风貌别墅
招商平凉项目定名
「桐安里」
推出约185、235、305㎡风貌别墅
包含联排、叠加产品
仅70套
预估均价19万/㎡左右!
上海桐安里预约热线☎:400-8080-420✅✅根据《杨浦滨江“十四五”规划》,杨浦滨江将是上海最大规模的工业遗存转化和最大体量的旧区改造,通过城市更新的方式,拿出了近六成土地,共约7.46平方公里,给“大厂”和“商圈”提供了大量的土地开发空间,加快推进中节能总部、美团、B站、抖音、合生、电厂等项目建设。
上海桐安里预约热线☎:400-8080-420✅✅
01
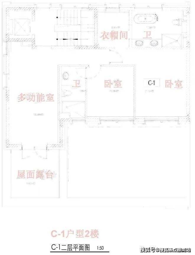
户型图如下
(户型图源自网络,仅供参考,最终以实际为准)
C-1户型
上海桐安里预约热线☎:400-8080-420✅✅
上海桐安里预约热线☎:400-8080-420✅✅
02
项目情况
2023年11月,招商&海门国资委拿下平凉社区01B4-04地块(平凉街道19街坊)历史风貌保护项目。
上海桐安里预约热线☎:400-8080-420✅✅从位置上看,平凉社区01B4-04地块(平凉街道19街坊)距离18号线平凉路站直线约400米,与地铁12/18号线江浦公园站直线距离约500。地块西面靠近首创天阅滨江项目,南侧靠近房地联动价21万的瑞安·翠湖滨江项目;可以说地理位置十分优越。
上海桐安里预约热线☎:400-8080-420✅✅该地块建设用地面积12666.4平方米,规划用途为二类住宅组团用地,容积率1.35,地上计容建筑面积为17099.64平方米。
本次公示设计方案如下
上海桐安里预约热线☎:400-8080-420✅✅根据此次方案公示图,项目地下建筑面积为25900平方米,共建有约15幢联排别墅,地块东南侧为3层的公租房,总户数约70套不到,主要以四联排为主。项目机动车入口设在南北两侧的惠民路和济宁路上。
上海桐安里预约热线☎:400-8080-420✅✅
项目涉及风貌保护,因此在出让阶段就有明确的要求
上海桐安里预约热线☎:400-8080-420✅✅
时间之外,历史之间
内环滨江新复古主义当代精致风貌墅
上海桐安里预约热线☎:400-8080-420✅✅招商蛇口于上海打造的第二座风貌作品、城市更新的里程碑级作品,择址杨浦内环滨江CAZ中央活动区,将里弄风貌与公馆规制创新融合,还原since1930黄金时代的人文历史底蕴与优雅风潮,撰写当代精致风貌墅的史诗。
上海桐安里预约热线☎:400-8080-420✅✅百年招商局旗下地产旗舰品牌——招商蛇口,入沪21载,积累了深厚的城市更新经验。从上海第一个里弄风貌别墅区、上海城市更新里程碑级作品——弘安里,到杨浦/静安/虹口三子交相辉映,以雄厚实力成为首个在沪开发三大精致风貌墅的地产开发商。
上海桐安里预约热线☎:400-8080-420✅✅)江苏海鸿投资控股集团有限公司,总资产588.9亿元,企业主体信用等级为AA+。集团公司主营房地产开发、园区开发、物业服务、商业管理、科技金融、托育养老核心业务板块,致力打造成为长三角地区综合性国有企业品牌公司。
03
区域位置
上海桐安里预约热线☎:400-8080-420✅✅
『时代先驱招商与杨浦滨江的百年渊源』
1872年,李鸿章开设的轮船招商局旧址码头位于现在的杨浦滨江毛麻仓库附近;
1873年,招商局增盖仓库7座,定名为招商局北栈,现为公平路轮渡站,距离本项目地块约1.3公里。
上海桐安里预约热线☎:400-8080-420✅✅过去的八埭头是杨浦的“南京路”是老上海的十里洋场,杨浦最早的商业区;1912年后八埭头已经形成了以通北路为纵向、平凉路为横向的一楼商铺街市,百货、南货、绸布等商店以及当铺、茶馆等先后开设。
上海桐安里预约热线☎:400-8080-420✅✅在上海“十四五”规划中,杨浦滨江作为重点规划区域,不仅承载着世界级科创中心的使命,更成为丰富人文历史内涵的世界级会客厅。未来将推动数字经济与实体经济深度融合、整体转型,打造“一带、一区、一圈”数字经济地标
上海桐安里预约热线☎:400-8080-420✅✅
『“一江一河”战略,杨浦滨江成为杨浦核心地段的潜力板块』
声明:本文由入驻焦点开放平台的作者撰写,除焦点官方账号外,观点仅代表作者本人,不代表焦点立场。
