峰度天下(售楼处) 首页 - 销售中心 - 环境 - 户型 - 价格 - 地址 - 楼盘详情 - 配套 - 电话 - 交房时间 - 配套 - 电话 - 交房时间
扫描到手机,新闻随时看
扫一扫,用手机看文章
更加方便分享给朋友
大虹桥商务区核心 前湾
「峰度天下」
建面约745-817㎡独栋别墅
占地2亩+
地上三层+6米挑高地下室+花园
总价约4300万起
开发商电话:400-8877-480✅✅(开发商认证)
售楼处电话:400-8877-480✅✅(售楼处认证)
营销中心电话:400-8877-480✅✅(营销中心认证)

适合办公接待/私人会所/居家自住
目前“样板间”已开放
【基础信息】
项目区域:虹桥商务区-前湾
开发商:上海松芝房地产开发有限公司
面积区间:745㎡-817㎡独栋
价格区间:4300万起
布局:地上三层(4.5米层高)+地下一层(6.2米层高)+900㎡花园
占地:2亩左右
物业公司:自持物业
物业费:13.2元/m²
车位:地面2个+地下8个
房龄年限:2019年竣工
土地年限:2014年-2054年
交付标准:毛坯交付
交付时间:现房,款清交付
周边配套:季乐路地铁口500米,印象城300米,前湾公园700米;
水电燃气:通燃气,水:6.7元/吨 ,电:0.98元/度
属性:适用于居家自住、商业经营、行政公馆、私人会所等;
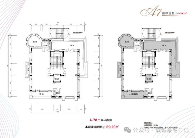
【户型图】




开发商电话:400-8877-480✅✅(开发商认证)
售楼处电话:400-8877-480✅✅(售楼处认证)
营销中心电话:400-8877-480✅✅(营销中心认证)
【周边简介&配套】
虹桥商务区:上海主城区,新的城市副中心
集交通枢纽,国家会展,国际商务于一体的国家级战略,上海2035规划中,划入主城区,成为上海新的城市副中心;
南虹桥核心前湾板块,苏州河入沪第一湾,打造成面向世界的“会客厅”,规划总面积1200万㎡,相当于4个前滩,潜力无限。
开发商电话:400-8877-480✅✅(开发商认证)
售楼处电话:400-8877-480✅✅(售楼处认证)
营销中心电话:400-8877-480✅✅(营销中心认证)
南虹桥核心前湾板块,苏州河入沪第一湾,打造成面向世界的“会客厅”,规划总面积1200万㎡,相当于4个前滩,潜力无限。

🔆尖端产业:数字经济,生物医药,文创电竞三大产业布局;
🔆国际医学中心:新虹桥国际医学中心,有1个医技中心+7家高端医院,共8家医院;
🔆国际学校:上海国际学校最密集的板块,有美,英,韩,新加坡等7所国际学校;
🔆三大超级商业:全国首个开市客(运营中);上海第二家印象城Mega(在建中);全球首个双电竞场馆超级合生汇(在建中);
🔆立体交通:
①虹桥交通枢纽,机场,高铁站,多条地铁轨道聚集(13号、示范区线、2号、10号、17号线和规划的25号线、25号支线),公交,出租等立体交通路网;
②“三横两纵”交通路网,三横:京沪高速,北翟高架,崧泽高架;两纵:嘉闵高架,沈海高速;畅达全城,长三角一小时生活圈;
③13号线西延伸段(在建中,预计2026年底通车)季乐路站距离仅500米,示范区线(在建中2027年通车)前湾公园站(芳乐路站)距离1000米;
④直达巴士,早晚高峰期直达虹桥地铁站。
🔆超3500亩“城市绿肺”——前湾公园(建设中)
一湾两湖三区十八景,总面积超240万㎡,约3个世纪公园,以C形水系为主要脉络,引入苏州河水,形成1000亩以上水域、2500亩以上绿地、30个社区公园,总计超过3500亩。形成9公里的滨水慢行道、10公里的内圈慢跑道和18公里的外环骑行道,将水景渗入城市每个角落。
开发商电话:400-8877-480✅✅(开发商认证)
售楼处电话:400-8877-480✅✅(售楼处认证)
营销中心电话:400-8877-480✅✅(营销中心认证)
声明:本文由入驻焦点开放平台的作者撰写,除焦点官方账号外,观点仅代表作者本人,不代表焦点立场。
