上海闵行·华府天地售楼处电话_2025上海·华府天地地址价格/户型_容积率_华府天地售楼处_售楼处营销中心
扫描到手机,新闻随时看
扫一扫,用手机看文章
更加方便分享给朋友
上海闵行旗忠别墅区「上海·华府天地」官方售楼处电话:400-1010-064☎️☎️✅✅《官方认证》「上海·华府天地」售楼处电话/地址:400-1010-064☎️☎️✅✅《官方认证》收官房源!加推中建面约150㎡上叠建面约158㎡下叠总价千万级!850万起
从其前期的热销成绩中,已经足以看出上海华府天地对于购房者的吸引力有多强劲!
2021年12月项目首次开盘,192套房源,吸引了286组意向客户,当日售罄!
2022年9月,项目二期加推,258套房源吸引了473组意向客户,毫无悬念再次日光!
2022年12月,项目三期风云再起,加推42套联排别墅,开盘再次售罄!
2023年8月,项目四期加推160套房源,项目的联排别墅已全部售罄!
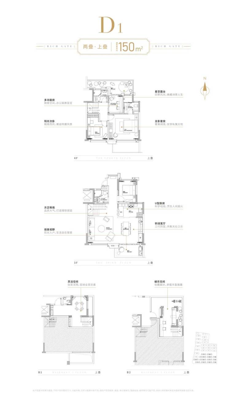
而“一波未平,一波又起”!上海华府天地趁热即将加推152套150-158㎡叠墅新品,均为两叠产品,也是上海·华府天地的收官房源!且为难得的准现房!预计2025年3月底即可交房!
两叠产品亮点可谓非常突出,相较项目前期,稀缺性还将更胜一层!自然其吸引力也将更强!值得收藏!
两叠下和两叠上均有双层地下室;
下叠南花园,北面入户花园;
上叠北花园,露台,坡屋顶空间。
来看户型图:
上海闵行旗忠别墅区「上海·华府天地」官方售楼处电话:400-1010-064☎️☎️✅✅《官方认证》「上海·华府天地」售楼处电话/地址:400-1010-064☎️☎️✅✅《官方认证》
【样板间实景图】
为什么强烈推荐大家一定要关注上海华府天地?
接下里笔者分5点为大家解读!
1、性价比更高的建面150-158㎡的城市叠墅(两叠)!上海华府天地两叠产品的更大优势,在于其更高的性价比。
你知道目前上海新房叠墅产品的套均成交总价大概是多少么?(仅叠墅,不包括独栋联排)
细看上海2024年各区的叠墅新房套均成交总价,上海华府天地上一批次三叠的总价约838w只比五大新城+宝山崇明略高一点!
上海闵行旗忠别墅区「上海·华府天地」官方售楼处电话:400-1010-064☎️☎️✅✅《官方认证》「上海·华府天地」售楼处电话/地址:400-1010-064☎️☎️✅✅《官方认证》
2、上海华府天地还地处无法复制的旗忠国际社区!
项目周边豪宅云集!低密度高端别墅项目扎推!板块绿化率甚至高达约65-70%!
而其周边的历经市场“验证”的豪宅,动辄数千万一套,甚至绿城玫瑰园还是过亿豪宅的存在!
上海华府天地的“稀缺程度”,无疑再度加码!
3、自身的产品力也是相当能打!
口碑极佳“华府天地”!豪宅代表!
早在十几年前,新天地开发启动时,华府天地以及凭借无法比拟的高品质,奠定了品牌在业界的传奇!素有着“东汤臣、西华府”之称!
华府天地同时也是第一批上海精装交付的项目之一,曾获“鲁班奖”——中国建筑工程最高奖,在业内的含金量很高的!直至今日,提起华府天地,大家的第一印象还是:豪宅代表!实力缔造者!
新天地华府天地实景图
上海闵行旗忠别墅区「上海·华府天地」官方售楼处电话:400-1010-064☎️☎️✅✅《官方认证》「上海·华府天地」售楼处电话/地址:400-1010-064☎️☎️✅✅《官方认证》
而在上海华府天地项目的呈现中,迎面而来的便是属于华府天地的“品质感和尊贵感”!
高颜值!高品质!高配置!高圈层!
上海华府天地匠心打造高颜值!项目采用造价昂贵,质感十足的巴西进口石材!外观大气!细节上也诚意满满!
效果图
上海闵行旗忠别墅区「上海·华府天地」官方售楼处电话:400-1010-064☎️☎️✅✅《官方认证》「上海·华府天地」售楼处电话/地址:400-1010-064☎️☎️✅✅《官方认证》
社区之内细节之处都尽享高品质!社区内规划了高绿化率的园林盛景,不仅步入其中宛如游园,提供的充足负氧离子,更是让社区空气清新舒爽,沁人心脾。
同时,项目也保证了宽奢楼间距、让每户人家都能拥有良好的通风采光,并且也更大程度的维护了私密性,尊崇备至!
效果图
为了丰富业主的日常生活情趣,上海·华府天地配备健身会所、书吧、咖啡吧等...
会所艺文书吧效果图

会所咖啡吧效果图

上海闵行旗忠别墅区「上海·华府天地」官方售楼处电话:400-1010-064☎️☎️✅✅《官方认证》「上海·华府天地」售楼处电话/地址:400-1010-064☎️☎️✅✅《官方认证》

甚至,上海华府天地作为市面罕见的纯墅区,意味着未来业主的圈层也较为纯粹,外加整个马桥板块集众多墅区组团,高净值人群堆积!
上海华府天地的东地块今年上半年已经成功交付业主,目前小区已经入住。
更重要的是,项目最后批次是现房销售!
已交付东地块实景图

上海闵行旗忠别墅区「上海·华府天地」官方售楼处电话:400-1010-064☎️☎️✅✅《官方认证》「上海·华府天地」售楼处电话/地址:400-1010-064☎️☎️✅✅《官方认证》
两叠效果图
4、板块内生态休闲配套资源丰富!商业、教育全落地!
上海华府天地所在的板块的生态自然无需多言,占地258亩的天然湖昆阳湖、约64万㎡的未来之舟公园,其宜居的居住体验,俨然一个天然绿肺,自然环境好到无法复加!
昆阳湖实景图
上海闵行旗忠别墅区「上海·华府天地」官方售楼处电话:400-1010-064☎️☎️✅✅《官方认证》「上海·华府天地」售楼处电话/地址:400-1010-064☎️☎️✅✅《官方认证》
但是,居住在上海华府天地,可是高端国际商业触手可及!项目周边在建约33万方综合体的联仲商业广场、颛桥万达、龙湖天街、马桥万达等,生活娱乐配套享之不尽!居住于此,吃喝玩乐不用愁!
包括教育资源,也是接轨国际的优质教育!
例如德威英国国际学校、面向国内学生德威英国国际学校旗下的德闳学校!公立部分拥有马桥实验幼儿园、马桥实验小学等!更有百年名校上海马桥强恕学校助阵!(教育资源仅供参考,具体以政府相关文件为准)
德威英国国际学校
还有距离上海华府天地不远的旗忠高尔夫球场,以及正对“上海大师赛举办地”旗忠国际网球中心,而未来业主能在自家阳台适逢其会,也算福利一枚!

旗忠国际网球中心实景图
5、上海华府天地所属的马桥板块,还具有相当可期的产业利好加持!
日前,闵行主城片区南部板块单元规划正式获批,其中马桥成为“两个核心”关键点之一!包括,人工智能试验区上海未来之舟公园建设也被纳入今年重大项目名单,力争年内开建!
上海闵行旗忠别墅区「上海·华府天地」官方售楼处电话:400-1010-064☎️☎️✅✅《官方认证》「上海·华府天地」售楼处电话/地址:400-1010-064☎️☎️✅✅《官方认证》
作为与红利规划一路之隔的上海华府天地,也将成为第一受益人!可享受高能定位、高能产业所带来的“重磅利好”!
连生活配套和地段能级都具有了明显的优势,还有什么错过的理由呢?
声明:本文由入驻焦点开放平台的作者撰写,除焦点官方账号外,观点仅代表作者本人,不代表焦点立场。
