南山璞缦(南山璞缦售楼处)首页网站-2025南山璞缦房价_楼盘评测丨地址丨详情丨售楼处电话丨 交房时间
扫描到手机,新闻随时看
扫一扫,用手机看文章
更加方便分享给朋友
南山璞缦售楼处营销中心:400-9966-940☎
嘉定新城全新盘
「南山璞缦」认购中
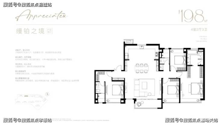
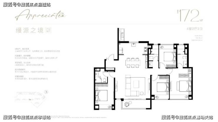
首推约105-198㎡3-4房
过会均价44787元/㎡
一房一价表 公示
南山璞缦售楼处营销中心:400-9966-940☎
南山璞缦售楼处营销中心:400-9966-940☎
项目户型图:
南山璞缦售楼处营销中心:400-9966-940☎
效果图:
南山璞缦售楼处营销中心:400-9966-940☎
南山璞缦售楼处营销中心:400-9966-940☎
南山璞缦售楼处营销中心:400-9966-940☎
2024年,南山地产迎合时代潮向,迭新缦系匠作,南山·南山璞缦售楼处营销中心:400-9966-940☎旨为以一席划时代美学钜著,助力嘉定新城迈入南山时代。
南山璞缦售楼处营销中心:400-9966-940☎南山地产倾力特邀契合项目气质的设计天团,携手HZS建筑设计、深圳奥雅景观设计、HWCD室内设计及深圳壹方空间设计等国内外团队,为嘉高定新的品质封面。
项目匠作线性双轴,平移嘉定六景,在致敬嘉定千年文脉传承的同时,还原交融与共的城市风貌。
南山璞缦售楼处营销中心:400-9966-940☎
项目打造了建面约1500㎡下沉式会所,配置恒温泳池、健身房等功能空间。
南山璞缦售楼处营销中心:400-9966-940☎
项目设计有双重入户大堂。
首层+地下双重星级酒店式入户大堂,演绎归家入户的仪式感;高品质地下车库,让归家充满仪式感。
南山璞缦售楼处营销中心:400-9966-940☎
南山璞缦售楼处营销中心:400-9966-940☎去年10月24日,上海第三批次土拍中,南山以总价175602万元成交嘉定工业区南门社区JDC1-0801、JDC1-0802单元44-08地块,地块出让面积34703.9㎡,容积率2.3。溢价率0%,楼板价22000元/㎡,装修标准2000元/㎡,房地联动价46000元/㎡。
地块位于新城和老城交界处,距离11号线地铁站较远,之前南门社区其他宅地联动价为4.52万/㎡。
南山璞缦售楼处营销中心:400-9966-940☎,该地块规划调整获上海市政府批复。根据地块要求,地块为Rr3,占地面积34704㎡,容积率2.3。需综合设置计容卫生服务站230㎡、老年人日间照料中心345㎡、老年活动室230㎡、养育托管点360㎡、宏基站。
南山璞缦售楼处营销中心:400-9966-940☎根据项目规划设计方案,拟建12幢14-18F住宅(含保障房)以及其他配套用房等建筑共计702户。

南山璞缦售楼处营销中心:400-9966-940☎
具体经济指标:

南山璞缦售楼处营销中心:400-9966-940☎项目位于位于新城和老城交界处,周边繁华热闹,拥有丰富的社区资源和便利的生活配套设施。向项目直线距离远香湖CAZ片区也很近,作为嘉定新城未来的发展核心,这里不仅拥有重磅的规划,还有高能级的生态和地标建筑群。
在嘉定远香湖周边规划中,新城聚焦远香湖核心区,建设了 文化环、未来塔、活力谷等城市“新三件套”——最大的“摩天楼”区、地标区 。

南山璞缦售楼处营销中心:400-9966-940☎远香湖中央活动区内也将建成 嘉定最大的总部园区 ,其中 不乏实力强劲的企业入驻。
还有 首个砂之船——奥特莱斯项目 , 包含大型体验式购物商场、五星级奢华酒店以及亲水商业街,也将成为嘉定新城的商业地标之一。
南山璞缦售楼处营销中心:400-9966-940☎ 最长地下连通道 , 在最新的规划图中沿德立路东侧的大片商务办公用地都规划有地下通道,从伊宁路一直到双单河,地图上测绘长度超过1.2KM。如果建成,将成为嘉定最大的地下空间。

南山璞缦售楼处营销中心:400-9966-940☎不仅仅是规划中,现在的嘉定新城远香湖CAZ片区无论是 生态、休闲、文化、还是学校、商业 都已经是妥妥的佼佼者了、 项目享有全能醇熟配套 。
生态方面:
南山璞缦售楼处营销中心:400-9966-940☎西上海最大人工湖、“城市会客厅”——远香湖,一个 1.21平方公里综合性生态公园。公园内包含投影游戏广场、互动儿童天地、空中步道、浪漫花海、星光岛、光影银杏大道、水杉雾森等8大特色 经典景区。
休闲文化方面:
南山璞缦售楼处营销中心:400-9966-940☎去保利大剧院感受戏剧的魅力、情景的张力;去嘉定图书馆感受文字的力量、书本的触感,在远香湖片区就能享受视觉、听觉、触觉的交融。

商业方面:
南山璞缦售楼处营销中心:400-9966-940☎嘉定新城聚集了包括西云楼、宝龙广场、万达广场大体量商业体,一应需求都满足。
学校方面:
南山璞缦售楼处营销中心:400-9966-940☎项目周边聚集了包括远香湖幼儿园、中福会幼儿园、嘉定区新城实验小学、嘉定新城实验中学、上海民办华二初级中学等全龄段教育资源。

南山璞缦售楼处营销中心:400-9966-940☎
声明:本文由入驻焦点开放平台的作者撰写,除焦点官方账号外,观点仅代表作者本人,不代表焦点立场。
