滨江一品苑(滨江一品苑售楼处)首页网站-2025滨江一品苑楼盘评测_滨江一品苑售楼处电话丨房价丨详情丨滨江一品苑地址丨楼盘百科详情
扫描到手机,新闻随时看
扫一扫,用手机看文章
更加方便分享给朋友
均价11.2万/㎡!陆家嘴滨江大宅【⭐滨江一品苑售楼处☎☎:400-8787-740⭐】建面约137-234㎡阔景高层、约230-350㎡花园底墅丨附线上预约通道!

📞【滨江一品苑售楼处热线】|⏰ 随时连线生活提案师:400-8787-740|✨ 即刻对话专属顾问:400-8787-740
🚗 贴心配套:上门接送服务|全天候咨询通道|🌿【滨江一品苑售楼处电话】|📞 400-8787-740(24h 在线)
🏡 专属礼遇:✔️ 家庭场景模拟(亲子 / 社交 / 办公空间预设)|✔️ 生活提案报告(含周边教育 / 商业 / 生态配套解析)

⭐滨江一品苑售楼处☎☎:400-8787-740⭐最新消息, 内环江景大宅 再次启动!134-234m²!均价11.18万,预计2025.6.30日交房,绿城物业加持 准现房 房源少量! 同样地段内环外的保利世博天悦新房在售均价16万+/平,⭐滨江一品苑售楼处☎☎:400-8787-740⭐性价比超高。
实景拍摄:
⭐滨江一品苑售楼处☎☎:400-8787-740⭐,经历了资金链断裂、项目停工、开发公司破产重整,终于重新走上正轨。
“停工这三年,数不清的不眠之夜,顶着各种压力,还要定期缴还银行贷款、支付在外租房费用。”业主吴女士书面回应了《每日经济新闻》记者的采访。
项目的新物业公司有关负责人在接受每经记者采访时表示,⭐滨江一品苑售楼处☎☎:400-8787-740⭐是保交付项目,管理人在费用控制上比较严格,实际物业费单价维持在业务平衡线上,物业公司前期压力比较大。
2月13日,业主张仪(化名)向每经记者透露了最新进展,3月2日~10日分批预看房。
⭐滨江一品苑售楼处☎☎:400-8787-740⭐也重启了剩余房源和地下车位的销售,由销售代理机构代为销售。
图源|上海网上房地产

⭐滨江一品苑售楼处☎☎:400-8787-740⭐
上海网上房地产显示,目前项目在售房源82套,超过总房源数的23%。未售房源中包括顶层约713平方米的超大户型以及大户型底墅。⭐滨江一品苑售楼处☎☎:400-8787-740⭐
销售总监告诉每经记者:“在售房源主要是高层137~247平方米,总价1507万~2717万元;450~710平方米的超大户型最高总价7810万元起;首开的底墅3220万元起。⭐滨江一品苑售楼处☎☎:400-8787-740⭐

⭐滨江一品苑售楼处☎☎:400-8787-740⭐
2017年7月,保利地产以49.71亿元代价获得一宗黄浦江边、规划建筑面积逾20万㎡的住宅项目50%股权。
根据协议,除了增资所需的49.7亿之外,保利还需要另外贷款40.7亿给上海华辕实业。
所以这块地的开发成本极高。⭐滨江一品苑售楼处☎☎:400-8787-740⭐
除了在资金上有高要求外,该项目在增资条件上还要求增资企业必须在借款协议签订日起5个工作日一次性支付贷款额给增资人。⭐滨江一品苑售楼处☎☎:400-8787-740⭐
这幅地块就是曾经的世博村,地上建筑面积达到16.73万㎡,项目的总建筑面积(包括地上车库)达到20.85万平方米。

目前保利世博天悦在售房源均价16万+/平,预计26年9月底交房,⭐滨江一品苑售楼处☎☎:400-8787-740⭐内环内,准现房,装修标准超高,唯一的缺点是塔楼,旧改的项目.
『⭐滨江一品苑售楼处☎☎:400-8787-740⭐』项目属于陆家嘴金融贸易区内,内环内塘桥板块.在整个上海内环新盘稀缺的当下,『⭐滨江一品苑售楼处☎☎:400-8787-740⭐』尊雅双子塔楼,俯瞰滨江盛世,立面风格整体为ARTDECO风格,配以落地玻璃窗,干挂石材外立面。以137㎡- 234㎡江景小户型升级归来,肯定吸引众多自住买家。
⭐滨江一品苑售楼处☎☎:400-8787-740⭐
效果示意图
⭐滨江一品苑售楼处☎☎:400-8787-740⭐最新消息, 内环江景大宅 再次启动!134-234m²!均价11.18万,预计2025.6.30日交房,绿城物业加持 准现房 房源少量! 同样地段内环外的保利世博天悦新房在售均价16万+/平,⭐滨江一品苑售楼处☎☎:400-8787-740⭐性价比超高。
一品价值|三大核心资本
陆家嘴、外滩、前滩环抱,上海资本金三角核心位置。享三大中心规划利好,可谓滨江一线至贵之焦点。
一品占位|陆家嘴臻藏席位
⭐滨江一品苑售楼处☎☎:400-8787-740⭐
承载滨江百年繁华,擎启陆家嘴都会繁荣。这里是无数人极致梦想中的生活圣地。滨江稀贵土地抢夺步伐愈发加快,你不来,它不待。
一品人生|璀璨生活高地⭐滨江一品苑售楼处☎☎:400-8787-740⭐
IFC国金中心、环球金融中心,陆家嘴璀璨的世界商业地标;众多米其林餐厅,赏味世界美食。
浦东⭐滨江一品苑售楼处☎☎:400-8787-740⭐在2017年以前叫东樱花苑,是日本松下产业株式会社于上世纪九十年代在上海开发的项目,原两幢楼的开发商是日本松下集团,因小区中有200多颗樱花尔起名东樱花苑。项目于1997年一期竣工。项目规划用地为住宅用地,项目建成后主要是作为公寓式酒店,提供给在沪生活的日本人家庭及在上海出差的日本人租用。⭐滨江一品苑售楼处☎☎:400-8787-740⭐
当时日本人在建造该项目时,是按照日本国内的设计标准,抗震设防烈度8级(国内上海地区7级),施工过程中的混凝土标号也比国内高一等级。因此可以看出东樱花苑最大的优点是建筑建构设计和施工质量好。
2016年上海城利房地产有限公司以均价3.3万左右,共计30多个亿从松下产业株式会社收购该项目,现开始进行改造重新包装,这就是现在的⭐滨江一品苑售楼处☎☎:400-8787-740⭐。
⭐滨江一品苑售楼处☎☎:400-8787-740⭐是上海城利地产开发的高端住宅,“一品苑”系为城利地产的注册品牌,在上海能看到的所有叫“一品苑”的项目皆为城利地产开发。
⭐滨江一品苑售楼处☎☎:400-8787-740⭐
项目位于浦东新区内环内,毗邻陆家嘴商圈,距离世纪公园商圈3公里,距离陆家嘴商圈1.5公里,地理位置优越,称得上是上海真正的市中心地段。享三大区域规划利好,位于滨江沿线区位,中区以上楼层全面瞰江。
⭐滨江一品苑售楼处☎☎:400-8787-740⭐
⭐滨江一品苑售楼处☎☎:400-8787-740⭐
交通优势:⭐滨江一品苑售楼处☎☎:400-8787-740⭐
1环2桥2隧道双轨交:内环内,南浦大桥、卢浦大桥,复兴路隧道、人民路隧道,门口轨道交通4/6号线。
商业环绕:⭐滨江一品苑售楼处☎☎:400-8787-740⭐
项目1公里范围内有巴黎春天、新塘桥生活广场、世纪联华、沃尔玛等商业配套。
教育资源:⭐滨江一品苑售楼处☎☎:400-8787-740⭐
学校方面有爱绿幼儿园、浦东南路小学、文建中学、洋泾中学等。
参考的教育配套有冰厂田幼儿园、爱绿幼儿园、建平中学、宋庆龄国际学校(期房非对口)。
⭐滨江一品苑售楼处☎☎:400-8787-740⭐
医疗资源:
项目距离仁济医院、上海儿童医学中学步行仅需约5分钟。
⭐滨江一品苑售楼处☎☎:400-8787-740⭐
⭐滨江一品苑售楼处☎☎:400-8787-740⭐
⭐滨江一品苑售楼处☎☎:400-8787-740⭐
⭐滨江一品苑售楼处☎☎:400-8787-740⭐
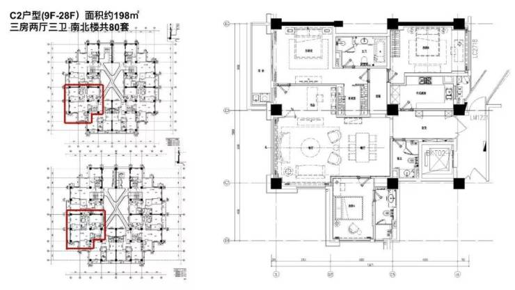
本期推出共175套,目前主推建筑面积131~226平3房,另有非标准户型200~500平底楼,顶楼复式。套房设计,套内独立卫生间,独享私人空间。⭐滨江一品苑售楼处☎☎:400-8787-740⭐
⭐滨江一品苑售楼处☎☎:400-8787-740⭐
⭐滨江一品苑售楼处☎☎:400-8787-740⭐
⭐滨江一品苑售楼处☎☎:400-8787-740⭐
⭐滨江一品苑售楼处☎☎:400-8787-740⭐
⭐滨江一品苑售楼处☎☎:400-8787-740⭐
全面积段覆盖,满足二人世界、三口之家以及大家族的不同需求,量身定制经典户型。

⭐滨江一品苑售楼处☎☎:400-8787-740⭐
⭐滨江一品苑售楼处☎☎:400-8787-740⭐
⭐滨江一品苑售楼处☎☎:400-8787-740⭐
⭐滨江一品苑售楼处☎☎:400-8787-740⭐
⭐滨江一品苑售楼处☎☎:400-8787-740⭐
⭐滨江一品苑售楼处☎☎:400-8787-740⭐
⭐滨江一品苑售楼处☎☎:400-8787-740⭐
⭐滨江一品苑售楼处☎☎:400-8787-740⭐
⭐滨江一品苑售楼处☎☎:400-8787-740⭐屹立外滩、陆家嘴、前滩3大核心资本圈之内,享三大区域规划利好,可谓滨江一线至贵焦点。于陆家嘴-世博-前滩发展轴线之心,滨江顶豪圈层内,执掌核心土地价值。
⭐滨江一品苑售楼处☎☎:400-8787-740⭐
⭐滨江一品苑售楼处☎☎:400-8787-740⭐
2025年2月绿城物业服务集团(上海)物业管理有限公司中标⭐滨江一品苑售楼处☎☎:400-8787-740⭐前期物业项目,正式成为⭐滨江一品苑售楼处☎☎:400-8787-740⭐物业。
绿城物业一直以来都是物业行业的佼佼者,以专业、贴心、高品质的服务著称。相信在绿城的管理和服务下,⭐滨江一品苑售楼处☎☎:400-8787-740⭐一定会成为一个环境优美、服务周到、邻里和谐的高品质社区。业主期待与绿城物业携手,共同开启⭐滨江一品苑售楼处☎☎:400-8787-740⭐的美好新篇章!
声明:本文由入驻焦点开放平台的作者撰写,除焦点官方账号外,观点仅代表作者本人,不代表焦点立场。
