大华公园柏翠(营销中心)官方网站-大华公园柏翠销售中心(售楼处)-大华公园柏翠欢迎您-电话地址-价格-户型-小区环境-楼盘详情-交房时间-周边配套-售楼处电话

搜狐焦点孝感站 2025-09-06 07:09:00
用手机看
扫描到手机,新闻随时看

扫一扫,用手机看文章
更加方便分享给朋友

✨大华公园柏翠售楼处电话:400-8855-420【售楼处已认证】✽✽✽✽

——✨大华公园柏翠✨——

⭐◆开发商营销中心诚挚邀请,一键预约,尊享内部折扣!匠心独运的精品项目,恭候您的品鉴与选择。⭐

✨大华公园柏翠售楼处电话:400-8855-420【售楼处已认证】✽✽✽✽

✨大华公园柏翠营销中心电话:400-8855-420【营销中心已认证】 ✽✽✽✽

✨大华公园柏翠展示中心电话:400-8855-420【展示中心已认证】 ✽✽✽✽

✅本项目采用预约制,过来营销中心参观样板间请记得提前拨打开发商楼盘售楼处400热线电话在线预约,感谢您的配合!

【大华公园柏翠】

上海宝山大华公园柏翠售楼处电话:400-8855-420(预约热线)

大华公园柏翠营销中心

服务热线:400-8855-420(已认证)

预约看房请提前联系案场销售

手握600-700万预算还能买到中环旁的新房吗?

针对这个问题而言,个人认为静安中环爆款「大华公园柏翠」无疑是优中之选!

它的地理优势明显,距离静安只有约400米、距离中环线直线约3km,同频享受静安的商业、医疗、文化等资源;品质方面能够比肩千万级奢宅的楼盘,价格却超香!

并且更重要的是,就在4月17日,项目收官房源也正式取证了!《房在上海》拿到了独家首发一房一价表!「大华·公园柏翠」6批次加推164套房源,均价65327元/㎡,建面约101-142㎡3-4房,火爆认购!

大宁之上 双轨交1/18号线

收官房源火爆认购中!

加推建面约101-142㎡3-4房

低密小高层+超大面宽“神”户型

四期建面约101㎡精装3房在售中

【大华公园柏翠】

上海宝山大华公园柏翠售楼处电话:400-8855-420(预约热线)

大华公园柏翠营销中心

服务热线:400-8855-420(已认证)

预约看房请提前联系案场销售

【大华公园柏翠】

上海宝山大华公园柏翠售楼处电话:400-8855-420(预约热线)

大华公园柏翠营销中心

服务热线:400-8855-420(已认证)

预约看房请提前联系案场销售

Part01

静安400米、大宁下一站

南北高架旁距离中心城区最近的新房!

关于大华公园柏翠的地段,有几大关键词:

第一,南北高架+中环,大华公园柏翠串联起了上海更昂贵的置业地。

大华公园柏翠距离北中环直线约3km,通过南北高架几乎可以实现无缝衔接。

而如今整条北中环线上的房价相当昂贵,整体均价都在约11万+。但这些置业地距离大华公园柏翠不过是一脚油门的事情。

这是大华公园柏翠性价比和潜力的体现,也是未来业主出行的保障。

第二,静安400米,与大宁新房房价相差一半有余。

大华公园柏翠距离静安区只有约400米左右的直线距离,是整个宝山距离中心城区最近的新房。

同时,项目距离大宁的市北高新园区直线仅约2.5km。

一方面,这是地段价值的体现,尤其是在康宁路-万荣路、南北高架、1号线等三条超级大动脉的加持下。

大宁的配套、产业几乎与大华公园柏翠共享。

另外一方面,在大宁在前不久出让的土地,其可售楼板价约8.6万/㎡,网上猜测这块宅地未来售价的声音很多,例如12万、14万甚至是16万。

但不管卖多少钱,这个大宁新房都比大华公园柏翠的价格高出一倍有余。

这意味着什么?

首先,上海新房的定价确实与所在区域有很大的关系,举个例子:

大华公园柏翠与大宁之间的关系,与宝山新江湾城与杨浦新江湾之间的关系很相似。

不同区,但几乎享受相同的配套、交通以及产业利好。

在新房定价时,宝山新房均价约7万/㎡、杨浦新江湾约10万+/㎡,这无可厚非。

但一旦步入二手,这两者之间的房价差距迅速拉近,因为在配套、交通、产业相近的情况下,产品力才是决定一切的根本。

示意图

而大华公园柏翠的产品力,有着不输任何对手的底气!一旦步入二手,这就是整个北中环的王者,拥有极强的未来潜力。

第三,四大顶级规划围绕下的“北中环真核心”,无限潜力。

除了出众的地段、配套、价格优势外,大华公园柏翠享受的利好和潜力,同样惊人。

一方面,大宁市北高新园区就在项目南侧,咫尺的距离。

这座园区对于北中环的意义,与张江对于浦东的意义是相同的,代表着更高阶、更高能级的产业规模和能级。

更重要的是,市北高新园区的重点项目正在不断加码!

在上海建设“科创中心”的大目标下,上海市大数据中心已带头落址市北高新。这里将会是上海数据资源最丰富、数据类企业最集中、数据应用场景最广泛的区域。

大宁北部的投资强度和经济密度都会进一步加强。

另外一方面,宝山其实从去年南北转型开始,就展现出了完全不同以往的发展势头来。

大华公园柏翠以西的南大智慧城、以东的吴淞创新城,在规划中都是科创产业的主阵地建设的两大核心承载区,建设速度肉眼可见。

同时,今年宝山公示了《吴淞江-蕰藻浜沿线地区专项规划》。

就在大华公园柏翠北侧,将规划整体打造一条蓝绿交织、清新明亮、连湖串链、通江达海和水韵特色鲜明、创新功能集聚、滨水活力彰显的上海大都市江南水廊发展带,体现中华风范、江南风光、创新风尚。

图片来源网络

以大华公园柏翠为核心,周边聚集了宝山最重要的科创产业、资源能级。

同时,项目又是整个北中环距离静安、大宁,以及上海主动脉南北高架更近的项目。

示意图

可以预想到,未来以项目为中心,周边未来聚集的高薪产业、高知人口以及城市菁英不计其数。

而大华公园柏翠遥遥领先的产品力,未来将吸引这些改善置业客户的不断追逐,直至将其顶上北境之王的价格和地位。

这样的潜力和未来预期,是其他单核发展的板块所无法比拟的。

【大华公园柏翠】

上海宝山大华公园柏翠售楼处电话:400-8855-420(预约热线)

大华公园柏翠营销中心

服务热线:400-8855-420(已认证)

预约看房请提前联系案场销售

Part02

约80米门头、星级酒店大堂

内外双公园,比肩千万级豪宅的公区

大华公园柏翠西侧是60多万方的规划绿地,接近1.5个长风公园大小。

而项目是一个容积率约2.2的全17F以下低密小高层社区。

在叠加项目距离静安直线约400米的地段,这几乎就是一个位于城市中央、生长在森林里的低密大居。

同时,大华公园城市一二三期均已交付入住,整个大社区的居住环境、氛围已经非常浓郁。大华公园柏翠这个王冠之上的作品一旦交付,即刻就能享受生活。

项目在归家动线上特别打造了“三进式”归家礼序,并且每一层归家礼序的打造,都是按照千万级豪宅才有的规格。

一进:宽约80米、高约6米的气派大门。

并且在选材上选用来自吴哥窟的进口石材,尽显静谧奢华的气质。

主入口利用108片伯爵灰大理石打造12座景墙单元,辅以香槟色不锈钢修饰。

整体迎宾空间耗材约1800片大理石,这样的大门规格、石材用料以及用心程度,无不体现出大华公园柏翠对标豪宅的决心。

社区实景图

二进:围合庭院。

庭院由4处归家通道、8扇造型屏风和1座水景雕塑的一体化设计打造而成,由此开始拉开了低密森氧居住生活的大幕,这是市面上其他新房所没有的高规格。

用料上,庭院两侧设计师选用大理石与镂空铝板虚实结合,利用2层柏翠造型铝线条错拼而成,更显精致;

这样的设计和用料,在600万级的新房市场中,简直是降维打击。

社区实景图

三进:宅门。

归家大堂能给业主更尊贵归家体验的同时,也能作为柏翠业主专属的城市会客厅。

整座大堂外墙采用伯爵灰大理石满铺高墙,电动门镶嵌宝格绿奢石,实现无感通行;

社区实景图

内墙材料选用来自保加利亚的维纳多石材,整块大理石圆弧拉槽,这是顶级豪宅才有的用料和细节。

社区实景图

大堂接待台选用产自意大利山脉的宝格绿奢石一体打造而成。

社区实景图

这些用料和最终呈现出来的浓郁海派氛围,是对大华集团实力和匠心最好的体现。

丰富的架空层空间,足不出楼就能享受生活。

社区内还在部分楼栋内设置了架空层泛会所空间,用于亲子陪伴或是朋友会面。

【大华公园柏翠】

上海宝山大华公园柏翠售楼处电话:400-8855-420(预约热线)

大华公园柏翠营销中心

服务热线:400-8855-420(已认证)

预约看房请提前联系案场销售

【大华公园柏翠】

上海宝山大华公园柏翠售楼处电话:400-8855-420(预约热线)

大华公园柏翠营销中心

服务热线:400-8855-420(已认证)

预约看房请提前联系案场销售

社区实景图

对于有孩子的家长而言,足不出户就能让孩子有更安全、更具乐趣的成长空间,这是多少人的梦想。

社区还拥有极高的审美和艺术表达能力。

对于很多新房而言,公区的用料可能就代表一切,因为这个只要“肯花钱”,很容易就能达成。

真正考验开发商能力和匠心的,是审美和艺术表达能力。

而大华公园柏翠在这一点上,值得全上海的豪宅学习和模仿。

首先,大华公园柏翠利用12级叠水、2座树池、9步水上汀步,运用六重造景的手法打造近500平的中央水景!

用一颗柏翠树型的构筑物形成独具艺术气质的“大树咖啡厅”,不仅拔高了社区的整体审美艺术和品味,也可供业主闲时聊天赏景、遛宠遛娃。

社区实景图

并且将中心场地抬高1米,在水系池底通铺1300多片的PRADA绿石(仿石砖)、精选斜飘乌桕、造型紫薇等名贵树种...

不难看出,大华公园柏翠不仅卷用料,更在审美艺术、生活方式上接轨国际前沿,拔升了高端住宅的品味和调性,整体的公区用料更是媲美高端豪宅!

就比如前不久刚刚举办的大树生活节&光年社的社群启幕活动。

现场不仅有巨型圣诞树,大宁久光同款小食屋,还飘下了2024年上海的“第一场雪”。现场的圣诞氛围满满,人气火热。

【大华公园柏翠】

上海宝山大华公园柏翠售楼处电话:400-8855-420(预约热线)

大华公园柏翠营销中心

服务热线:400-8855-420(已认证)

预约看房请提前联系案场销售

【大华公园柏翠】

上海宝山大华公园柏翠售楼处电话:400-8855-420(预约热线)

大华公园柏翠营销中心

服务热线:400-8855-420(已认证)

预约看房请提前联系案场销售

Part03

中环之上、大宁之上

上海距离静安更近的新房

2024年静安的新房供应主要集中在西藏北路和江宁路板块,均价都是12万/㎡起步。大宁已经许久没有新房供应,但是中外环的静安府、仁恒静安世纪、融创静安映等挂牌价都来到11-13万/㎡。

为什么说「大华·公园柏翠」的地理位置绝佳?

在地段上,项目有三个标签:

项目距离静安直线约400米、地铁3站大宁核心区!

项目距离中环线约3km!

繁华配套!

我们来解析以上这三个标签。

第一,距离静安直线约400米、地铁3站大宁核心意味着什么?

一方面,这意味着距离静安、黄浦更近,直接影响上班通勤便捷性,即使你将来换工作,只要还占位外环内,不管单位在哪里,都能从容应对。

要知道,如今置业肉眼可见的边缘化,主力供应已到外环外5-10公里,如今却还能碰到大华公园柏翠,甚是难得。

尤其对于工作在大宁的小伙伴来说,1号线3站就是上海马戏城,大宁核心区。

地理位置决定了享受到的资源浓度,大宁的繁华咫尺可得。

目前的大宁已是大家公认的北上海新的商业、产业中心。

约56万平大宁音乐广场、约25万平大宁国际商业广场、约30万平大宁久光百货,静安大融城等商场一路连缀。

这个出行便捷度,在同能级的板块中,几乎是属于一梯队。

另外一方面,这意味着大华公园柏翠有出众的未来前景。

举个例子:整个浦东外环外,唐镇无疑是王者级的。约10万+的二手房房价、约7万+的新房价格,板块价值可见一斑。

而造成这种原因也很简单:唐镇距离张江仅3站

于是,唐镇就成为了张江精英们外溢的首站。而围绕着这些精英,唐镇落地了大量高能级的教育、商业、生态等资源。

这样的良性循环,让这个板块的价值水涨船高,甚至突破环线价格限制。

同样道理,大华公园柏翠距离静安直线约400米、1号线3站即大宁核心商圈,是整个上海距离静安最近的新房。

对于工作在大宁、苏河湾、静安寺、南京西路、人民广场、虹口等区域的购房者来说,大华公园柏翠就是地段更好的新房。

并且相比静安、大宁的约1500万级置业门槛,大华公园柏翠的价格几乎是差了一半多,这样的性价比谁能抵挡?

未来当大水漫灌下,大华公园柏翠的项目价值、配套能级、居住氛围和圈层,都会有大提升。

第二,项目距离中环线约3km!

与大华公园柏翠同纬度的板块,新房均价起码约8.58万/㎡起,单价约10万+的区域比比皆是。

第三,已经成熟的繁华配套!

商业配套方面,项目周边从生活配套到高端商场到大型商超,应有尽有。

· 地铁3站直达:大宁久光中心、大宁音乐广场、大宁国际商业广场等

· 周边约900M范围:共康商圈、社区邻里中心商业广场、场北集贸市场、北斗星广场

· 直线距离约1.5KM范围内:宝山万达广场、宝山购物中心等

· 直线距离约2.7KM:宝山日月光,多类型商业形态荟萃

【大华公园柏翠】

上海宝山大华公园柏翠售楼处电话:400-8855-420(预约热线)

大华公园柏翠营销中心

服务热线:400-8855-420(已认证)

预约看房请提前联系案场销售

【大华公园柏翠】

上海宝山大华公园柏翠售楼处电话:400-8855-420(预约热线)

大华公园柏翠营销中心

服务热线:400-8855-420(已认证)

预约看房请提前联系案场销售

教育方面,项目周边教育资源丰富,包括陈伯吹实验幼儿园(上海市示范幼儿园)、陈伯吹实验小学,华师大宝山实验学校等学校。

项目正南侧一墙之隔,还有九年一贯制公办学校在建设中。免责声明:以上教育资源整理仅代表楼盘与学校的距离,该房屋所在项目暂未划分学区,开发商不对项目交房后所属学区、学校做任何承诺。教育资源分配或学校/学区划分以及学校的具体招生规则等请以政府相关主管部门、教育机构公开的最新信息为准。

生态方面,项目坐拥五大公园:

约80万方伟岸绿境环抱,包括千亩绿境(约60万方绿化在侧),约3万方庙行公园、约4.2万方共和公园,约2.7万方三泉公园、约9.3万方彭浦四季公园等。

这样的生态能级,媲美“新江湾湿地公园、世纪公园、长风公园”等,拥享“自然生态+稀臻难寻”双重价值属性。

不管是从出行便捷度、未来潜力、现有配套还是同纬度的对比中,大华公园柏翠的地段都是更具竞争力的。光凭这一点,这个项目就已经足够有吸引力了。

但在产品力上,大华依旧给了我们足够的诚意和惊喜。

【大华公园柏翠】

上海宝山大华公园柏翠售楼处电话:400-8855-420(预约热线)

大华公园柏翠营销中心

服务热线:400-8855-420(已认证)

预约看房请提前联系案场销售

Part04

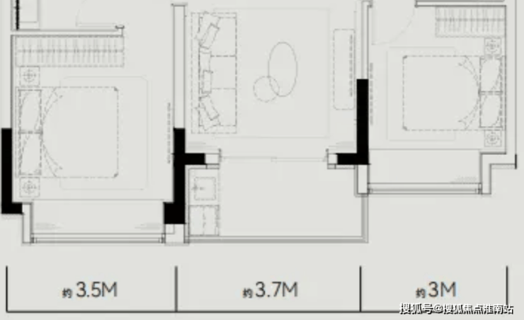
建面约101-142㎡神户型

一梯两户的无连廊飞机户型

项目整个社区由4栋16层、10栋17层小高层组成,是纯粹的低密小高层住宅

一方面, 小高层在近期的上海市场中非常稀缺,尤其是在中环线上的位置上,小高层住宅凤毛麟角。

但另外一方面,小高层天然的高得房率、私密性和居住舒适度也保证了这个产品的受欢迎程度

换句话说,大华公园柏翠的产品力,从天赋上就已经与其他项目拉开了差距。

其次,产品上:项目建面约101-124㎡房源一梯两户、建面约142㎡两梯两户

而这意味着,大部分的房源均是无连廊的设计,将带来更高的采光通透度、更好的通风以及更高的得房率。

再加上项目飞机户型的设计,室内几乎0空间浪费,即使是小户型也有超高的尺度感。

具体来看下:

建面约101㎡的三房两厅两卫

【大华公园柏翠】

上海宝山大华公园柏翠售楼处电话:400-8855-420(预约热线)

大华公园柏翠营销中心

服务热线:400-8855-420(已认证)

预约看房请提前联系案场销售

建面约101㎡3房2卫户型,非常标准的飞机户型。

三开间朝南整体约11.5米的面宽。什么概念呢?

上海这些年其实也有不少三开间朝南的飞机户型,但都不如了大华公园柏翠。

例如以下这个:总价约千万左右,建面约104㎡的房源。

这个项目凭借着出色的户型,获得了不少高净值人群的青睐,但他约104㎡的户型南向面宽只有10.2米,比大华公园柏翠约101㎡的户型还小了约1.3米。

别小看这约1.3米,整体的尺度感完全不同。

更重要的是,项目是大横厅+超大阳台的设计。撑起气场的同时,也能为家庭带来更多的生活想象。

另外,南北通透+3房5飘窗的设计,保证了户型的通风以及视野。

超大的U型厨房十分宽绰,让切配煮更加合理从容。

细节方面,次卫的干湿分离也能保证室内的干燥,入户的玄关、主卧的套房,保证了主人的私密空间。

这个户型拥有一个“好户型”的所有特质,上车必看的首选户型!

建面约142㎡的四房两厅两卫

【大华公园柏翠】

上海宝山大华公园柏翠售楼处电话:400-8855-420(预约热线)

大华公园柏翠营销中心

服务热线:400-8855-420(已认证)

预约看房请提前联系案场销售

真正一步到位的改善型4房产品,大横厅的设计,

四开间朝南+大横厅,约15.4米的南向面宽堪比别墅。

大横厅也可以灵活运用在各种生活场景,例如作为妈妈的瑜伽室、孩子的游乐天地等,都是很好的选择。

这样的户型,能满足各个家庭成员的需求!

最后,还有一点:项目将标配国际家装大牌、臻选精奢材质、把关精细施工,悉心规划4大定制系统、100+精工细节,精琢非凡空间。

来看样板间实拍

注:以下为项目概念展示间实景图,非交付标准

大宁之上 双轨交1/18号线

低密小高层+超大面宽“神”户型

四期建面约101㎡精装3房在售中

均价62480元/㎡

价格比前三期更低,性价比更高!

【大华公园柏翠】

上海宝山大华公园柏翠售楼处电话:400-8855-420(预约热线)

大华公园柏翠营销中心

服务热线:400-8855-420(已认证)

预约看房请提前联系案场销售

【大华公园柏翠】

——诚邀品鉴——

上海自2025年8月26日起实施新的购房政策,以下是关键信息整理:

一、限购政策

沪籍家庭/单身外环外不限购;外环内限购2套。

非沪籍家庭/单身外环外:需连续缴纳社保或个税满1年,不限购。

外环内:需连续缴纳社保或个税满3年,限购1套。

二、公积金政策

贷款额度首套最高184万,多子女家庭首套最高216万;二套最高149.5万。

购买二星级及以上绿色建筑住房,额度上浮15%。

提取首付购买新建预售房可提取公积金支付首付,不影响贷款额度。

三、商业贷款政策

利率定价不再区分首套和二套,由银行根据市场和客户情况确定。

四、房产税政策

非沪籍首套房暂免房产税;二套及以上按家庭人均60㎡免税,超出部分按单价征收(≤94,446元/㎡税率为0.4%,>94,446元/㎡税率为0.6%)。

五、税费政策

增值税:满2年免征,不满2年按房价5%征收。

个人所得税:满五唯一免征,否则按房价1%或差价20%征收。

契税:首套≤140㎡按1%征收,>140㎡按1.5%征收;二套≤140㎡按1%征收,>140㎡按2%征收。

温馨提示

政策细节可能因区域、家庭结构等因素有所不同,建议购房前拨打房地产交易服务热线962269或公积金热线12329咨询。

若涉及多子女家庭、绿色建筑购房等特殊情况,需结合具体政策条款办理相关手续

——✨大华公园柏翠✨——

⭐◆开发商营销中心诚挚邀请,一键预约,尊享内部折扣!匠心独运的精品项目,恭候您的品鉴与选择。⭐

✨大华公园柏翠售楼处电话:400-8855-420【售楼处已认证】✽✽✽✽

✨大华公园柏翠营销中心电话:400-8855-420【营销中心已认证】 ✽✽✽✽

✨大华公园柏翠展示中心电话:400-8855-420【展示中心已认证】 ✽✽✽✽

✅本项目采用预约制,过来营销中心参观样板间请记得提前拨打开发商楼盘售楼处400热线电话在线预约,感谢您的配合!

声明:本文由入驻焦点开放平台的作者撰写,除焦点官方账号外,观点仅代表作者本人,不代表焦点立场。