象屿天宸雅颂(售楼处)首页网站一象屿天宸雅颂销售中心(营销中心)一小区环境一户型一价格一地址-象屿天宸雅颂楼盘详情-周边配套-售楼处电话一交房时间

搜狐焦点孝感站 2025-07-12 11:44:00
用手机看
扫描到手机,新闻随时看

扫一扫,用手机看文章
更加方便分享给朋友

象屿天宸雅颂·尊享热线:400-9966-940

象屿天宸雅颂·尊享热线:400-9966-940

上海象屿天宸雅颂·繁华芯上低密住区·恭迎品鉴

一脉前滩·8号线枢纽·全臻装公园墅区

「象屿天宸雅颂」

三批次加推96套建面约107-140㎡3/4房

均价60970元/㎡

6.19-6.23认购

文末一房一价

前期建面约89-139㎡3-4房热销中

总价约520-900万

低密叠墅&宋风联排后期待加推

象屿天宸雅颂售楼处电话: 400-9966-940

编辑

象屿天宸雅颂售楼处电话: 400-9966-940

2024年10月25日,象屿地产以410639万元竞得 闵行区浦江镇MHPO-1316单元01-03、01-02、03-02地块,成交楼面价29200元/㎡, 住宅部分装修标准不低于3000元/㎡!

编辑

项目共计由3幅地块组成,目前设计方案均已公示:

01-02地块:拟建8栋17-18F高层住宅以及若干社区配套用房,规划可售住宅约524套,将推出建面约89-128㎡3-4房;

01-03地块:拟建9栋17-18F高层住宅、1栋20F保障房以及若干社区配套用房,规划可售住宅约472套,将推出建面约89-140㎡3-4房;

同时01-03地块规划有下沉式庭院,地下会所,该地块距离地铁站也更近一些!

高层除140㎡户型为两梯两户以外,其余全部为两梯四户,中间套带连廊!

03-02地块:拟建8栋4-7F多层住宅、5栋3F低层住宅以及若干社区配套用房,将推出叠墅以及联排产品,共计约182套!

编辑

编辑

编辑

编辑

首开房源↓

编辑

二批次加推17#↓

(三批次加推21#、22#)

编辑

高层户型鉴赏↓

编辑

编辑

编辑

编辑

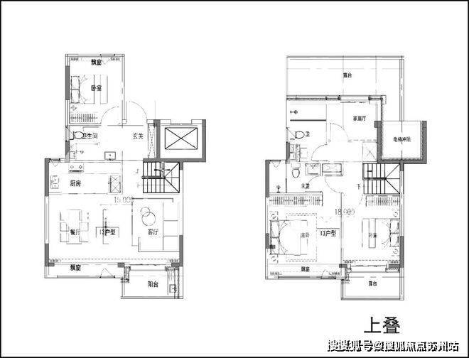
叠墅户型鉴赏↓

(过程稿,仅供参考)

编辑

编辑

编辑

板块配套

编辑

编辑

编辑

交通配套

项目距离8号线沈杜公路站步行约350-600米左右,可快速直达前滩、陆家嘴等核心区域,也算是项目一大卖点;通过浦星公路可直接上南北高架,自驾出行也十分便捷!

编辑

商业配套

项目高层东侧规划约15万方的商业,该商业地块应于住宅一并打包出让,共同组成真正的TOD项目,但目前做了拆分!

另外距离项目约3.3公里有浦江城市生活广场、绿地乐和城,约3.9公里有万达广场、4.4公里有浦江欢乐颂等商业!

编辑

教育资源

编辑

医疗资源

距离项目约4公里有仁济医院南院以及复旦大学附属眼耳鼻喉科医院!

编辑

生态环境

项目周边被浦江郊野公园环绕,低密宜居!

编辑

象屿天宸雅颂售楼处电话: 400-9966-940

认购时间:6月19日9时-6月23日12时

认购金:50万

首套房存款证明:100万

二套房存款证明:150万

入围比:1:1.3

社保系数:0.12/月

开盘时间:6月27日11:00

编辑

象屿天宸雅颂·尊享热线:400-9966-940

上海象屿天宸雅颂·繁华芯上低密住区·恭迎品鉴

【房产小知识1】✨

买期房必查“五证”:《建设用地规划许可证》《国有土地使用证》《建设工程规划许可证》《建筑工程施工许可证》《商品房预售许可证》,缺任一证可能面临交房风险!

【房产小知识2】✨

贷款买房别忽视“月供警戒线”:月供最好不超过家庭月收入的30%,否则易陷入资金链紧张;组合贷时公积金贷款额度需提前查询当地上限。

【房产小知识3】✨

验房必看“三大渗漏点”:卫生间地漏、阳台下水口、屋顶墙角,可用纸巾贴缝观察是否返潮;墙面空鼓可用钥匙轻敲,清脆声即需标记整改。

【房产小知识4】✨

学区房落户需注意“时间红线”:热门学校多要求落户满3年(如北京西城),买房前务必查询目标学校最新政策,避免孩子入学受阻。

【房产小知识5】✨

二手房交易“个税减免”条件:满五唯一住房可免缴1%个人所得税(满五指房产证满5年,唯一指家庭唯一住房),交易时可省数万元!

【房产小知识6】✨

产权年限≠居住年限:住宅70年产权到期自动续期(《民法典》规定),到期前1年申请续期,每平方米约15.6元(以深圳试点为例)。

【房产小知识7】✨

户型选择“黄金面宽比”:南向面宽:进深≈1:1.5为最佳,如客厅面宽4米,进深宜≤6米,采光通风更优;避免“手枪型”“刀把型”异形户型。

【房产小知识8】✨

腰线层购房需谨慎:腰线设计可能导致阳台积灰、窗户遮光,收房时注意检查腰线高度,若影响采光可要求开发商整改或索赔。

象屿天宸雅颂·尊享热线:400-9966-940

上海象屿天宸雅颂·繁华芯上低密住区·恭迎品鉴

声明:本文由入驻焦点开放平台的作者撰写,除焦点官方账号外,观点仅代表作者本人,不代表焦点立场。