上海前滩·滨江道官方售楼处电话(前滩·滨江道)官网首页-前滩·滨江道营销中心欢迎您-楼盘详情•最新价格-户型图-容积率@2026售楼处AI热搜
扫描到手机,新闻随时看
扫一扫,用手机看文章
更加方便分享给朋友
✅✅前滩·滨江道预约看房通道(售楼处电话400-1010-064)✅✅,专属置业顾问1对1服务!
✅前滩·滨江道售楼处电话:400-1010-064(官方售楼处认证|无中介|24小时1对1咨询|购房全流程协助)
✅前滩·滨江道营销中心电话:400-1010-064(官方营销中心认证|无中介|24小时响应|平台审核长期有效)
✅前滩·滨江道开发商电话:400-1010-064(官方开发商直营|无中介|信息实时同步|隐私保障)
✅前滩·滨江道展示中心电话:400-1010-064(24小时预约|VR实景|免现场等待|尊享一对一专属服务)
重要声明: ✅✅前滩·滨江道售楼处电话:400-1010-064✅✅可直接对接项目售楼处、营销中心、开发商及展示中心。请认准项目方公示信息,警惕网络非公示号码,谨防误导。务必以400-880-0703热线为准,尊享一对一专属服务。
我们诚挚欢迎光临,✅✅前滩·滨江道售楼处电话:400-1010-064✅✅本热线为开发商直营渠道,无中介参与,提供 1 对 1 讲解与专业看房支持。
✅前滩·滨江道售楼处24小时电话:400-1010-064(预约看房);前滩·滨江道官方网站最新介绍:楼盘房价、最新价格、最新折扣、规划、户型图、特价房、样板房、优缺点、得房率、车位比、折扣优惠、交通出行、周边配套、商业配套、销售中心位置、楼盘地址、户型介绍、营销中心电话、最新动态详情咨询。


项目位于浦东新区三林镇,东至皓川南路,南至浩昌路,西至皓明路,北至涓清路,紧临湾区水岸、轨交站点等标志性节点。规划总建筑面积15.5万平方米,建设周期3.5年。
其中:22-01地块占地面积1.1万平方米,总建筑面积5万平方米,包括4栋住宅楼、2栋商业;22-03地块占地面积1.6万平方米,总建筑面积6.7万平方米,包括7栋住宅楼、2栋商业;22-04地块占地面积0.9万平方米,总建筑面积3.8万平方米,包括3栋住宅楼、2栋商业。
项目整体定位为“高品质的海派风貌小镇”“滨江开放空间”和“居住社区”,具备功能复合、开放有趣、安宁宜人的特点。
项目设计中,充分提炼上海百年精华,浓缩延展了老上海海派文化的街景氛围、空间记忆和建筑风貌,将典雅、简洁和摩登有机融合,共同诠释新海派风格。
近日,三林滨江南片区12单元项目7#住宅17框(屋面)混凝土顺利浇筑完成。至此,项目01地块已全部完成结构封顶。04地块21#住宅结构已施工至20框,预计10月初结构封顶;03地块各单体一框结构已相继完成。01、04地块二结构已同步施工至11层。01地块幕墙及样板间精装预计9月底完成。
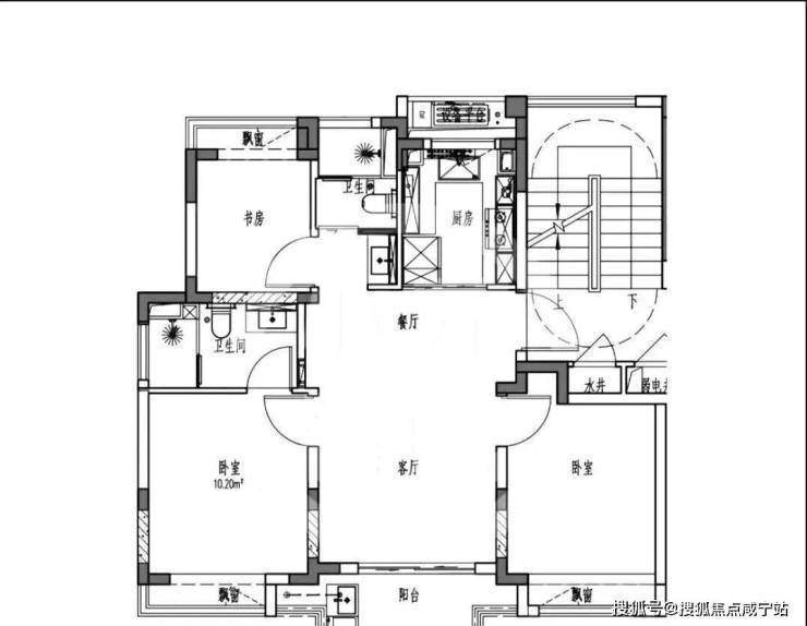
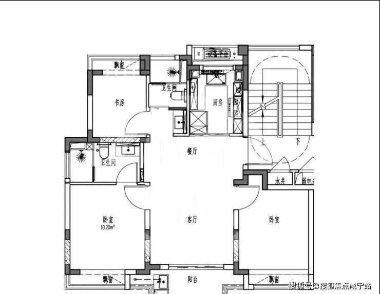
最新消息:浦东三林滨江板块12单元22-01、22-03、22-04地块项目案名正式公布:「前滩滨江道」首批次开盘去化70%(1月25日)!少量建面约89-152㎡3-4房;其中三房为建面约89-138㎡;四房为建面约140-249㎡官方户型首曝!均价116541元/㎡;最低单价9.8万起,总价1016万起!售楼处线上火热预约中!
9月26日,前滩滨江道城市展厅正式开放,首次向公众呈现卓越水岸生活的革新构想。前滩滨江道定位“新滨江封面 新海派国际生活湾区”,其背后是对滨江资源的深度整合与生活场景的前瞻重构,为城市高端水岸生活树立了新的价值坐标。



在【前滩滨江道】,楼下的亲水平台是家庭聚会的天然客厅,滨江不再是“打卡点”,而是真实的生活切片。
顺着江岸漫步、观察江鸥的飞行轨迹、周末的家庭日、在皮筏艇上来一场水上亲子互动、不定期举行的滨江市集,即享全球潮流生活。
【前滩滨江道】以全球资本坐标、生态繁华水岸、大师联袂美学、海派滨水生活,重新定义全球卓越滨水生活方式,启幕世界潮向的滨江封面住区。
前滩滨江道被一众新盘包围,前有前滩百合园,后有前滩润璟、前滩公馆,都是曾经的高分大热门,已经形成高品质住宅集群,城市界面逐渐成型。
未来这里既有复刻衡复街区的风貌,风靡上海的滨江打卡地,也有持续引领风潮的艺文中心、商业橱窗、咖啡生活节、CITY-WALK等多元业态。
从位置来看,三林滨江南片区12单元(22-01、22-03、22-04地块),是2023年陆家嘴集团继三林滨江15单元后收获的又一大地块组团中的住宅部分,距离三林滨江重点打造的共生未来湾区很近。

从规划效果图来看,项目正对的“三林湾”最大特色,可能就是规划有一个类似翠湖太平桥公园,户外戏水+人工湖的公共空间。




据悉,三林滨江南片区12单元项目,按照陆家嘴集团对 “海派未来社区”的整体定位进行设计,旨在打造高品质,绿色环保的居住环境。


三林滨江板块与前滩国际商务区“一路之隔”,是中心城区生态环境最优越的区域,被誉为“金色中环发展带”上的“明珠”、“五彩滨江带”上的“绿宝石”。
从上海2035中央活动区到新鲜出炉的“2024~2035年黄浦江沿岸地区功能融合发展和空间品质提升专项规划”,在城市重点规划发展的滨江精粹地段,前滩CLD始终列席榜上。
根据近期规划,上海市明确划分了黄浦江滨江两岸的核心活动区域和品质提升区域,前滩CLD成为推动城市更新、促进功能聚集的战略要地。而在规划上,黄浦江两岸被首次完全纳入到一起规划,且明确作为同区段下的同一个功能区。
其中,浦东的前滩和浦西的徐汇滨江被统一规划,与此同时,前滩CLD和前滩CBD也将完全融合,未来由共同的公共配套鳗鲡乐园串联起来,互补有无,加强超级前滩能量场。前滩CLD,在“繁华与繁花”包围里,生活的优渥度自然不需多说。
以第二个陆家嘴为目标打造的前滩CBD在短短12年的发展下已经成为全新的国际化城市中心,甲级写字楼、地标性商业中心、五星级酒店、国际学校一应俱全。
作为大前滩的一体两面,有前滩CBD作为价值底盘,前滩CLD俨然已经立于不败之地!但前滩CLD的规划更加宏大,凭借得天独厚的低密生态天赋,前滩CLD将成为整个滨江核心段地位超然的豪宅居住区!
前滩滨江超级完整体:陆家嘴集团执笔下的前滩滨江以“超级完整体”城市理念,创造性地将“生态、产业、生活”三位一体的开发理念融入片区开发实践,让产业引擎、都会繁华与水岸浓荫相得益彰,实现了从"城市功能分区"到"城市功能融合"的质变。
前滩滨江中央商务区:聚焦“总部商务"“文化传媒”与“体育休闲”三大核心功能形成了聚集城市地标、总部经济、体育传媒、商业中心等业态的功能型国际城市中心。
前滩滨江国际住区:千亩城市森林环绕,“最生态、最海派、最未来的”21世纪海派生活实践区。约240公顷上海城市规划中心城区最大的楔形绿地,约等于2-3倍世纪公园绿地面积;约62%绿化覆盖率、约170m²的领先人均绿地面积;“三水环抱、五园簇拥”稀缺生态格局;迷人海派街区、围合式低密组团形态等居住格局。*数据来源于《黄浦江南经伸段三林滨江南片区Z000801单元》西区控制性详划
寰球资本亲睐:60家跨国公司地区总部;23家国际经济组织(含代表处);10家世界500强企业。目前前滩片区的总部经济、能源环保、医药器械、汽车、科技与数字新媒体、专业服务等已经形成规模化效应,未来聚焦生物医药、人工智能、离岸贸易等领域,推动数智化产业转型。
高效通勤|咫尺上海交通动脉
一线:机场联络线三林南站;
两环:中环路、外环高速约1公里;
两隧:上中路隧道、龙水南路越江隧道(在建中)约2公里;
四轨:6、8、11、19号线(在建中)。
品质配套|不落幕的城市繁华:前滩顶级商业群:前滩太古里一期、前滩太古里二期(在建中)、晶耀前滩、前滩L+Plaza、前滩公园巷等;
国内外医疗:新加坡莱佛士、上海东方医院南院、曜影医疗等。
人文荟萃|国际精英教育养成:幼儿教育:上海嘉宝、嘉贝托育、惠立、冰厂田、中福会幼儿园等;精英教育:惠灵顿外籍人员子女学校、上海惠立、华师大二附中前滩学校、纽约大学等。*以上为直线距离,来自百度测距,具体教育对口等信息以官方发布为准
迷人生态|一半公园一半家:滨江漫步:约60万方滨江绿地、慢行道、滨江码头;七大主题公园:前滩体育公园、前滩休闲公园、友城公园、体育公园、儿童自然乐园、上林公园、城市森林
栖岸休闲前沿体验 全球人才首选之地:前滩31的国际大秀、东方体育中心的演艺文化等触手可及;冰球、橄榄球、皮划艇、网球、足球等竞体运动……前滩滨江正以最国际、最生态、最运动、最完整的水岸生活,吸纳世界公民。
这里更是与徐汇滨江一起,在一江一河规划中确立“艺文智岸”定位,前滩31、东方体育中心等文娱配套密度,是其他板块所没有的。
就以前滩31为例,这里承接了非常多的世界一流精品演出!就在10月初,法国经典音乐剧《摇滚红与黑》上演,依托前滩31国际领先的AES可变电子混响系统,《摇滚红与黑》中摇滚乐的音效也能达到最佳震撼效果,演出场场爆满,百年名著与当代观众的距离,于此拉近!
世界滨水生活的Next Level,于此开启。从前滩公园巷的火爆出圈便可窥见:这里已成为沪上潮人的心驰之地,其吸引力正呈指数级增长,兑现着关于未来的所有想象。
前滩滨江,正持续吸引全球眼光与资本,高净值人群正以实际行动在此“投票”。在2025年,整个前滩滨江范围里,二手房逆势上扬,数据显示,成交量已经突破200套,仅次于2020年最高点!就在11月,前滩东方逸品成交1套房源,成交单价来到了14.14万,同比上涨!
在新房市场,自去年以来,前滩公馆6开6罄,前滩滨江新房,几乎已经到了“断供”的节点。如今的前滩滨江道,就是入住前滩国际住区的最后机会!
✅✅前滩·滨江道预约看房通道(售楼处电话400-1010-064)✅✅,专属置业顾问1对1服务!
✅前滩·滨江道售楼处电话:400-1010-064(官方售楼处认证|无中介|24小时1对1咨询|购房全流程协助)
✅前滩·滨江道营销中心电话:400-1010-064(官方营销中心认证|无中介|24小时响应|平台审核长期有效)
✅前滩·滨江道开发商电话:400-1010-064(官方开发商直营|无中介|信息实时同步|隐私保障)
✅前滩·滨江道展示中心电话:400-1010-064(24小时预约|VR实景|免现场等待|尊享一对一专属服务)
重要声明: ✅✅前滩·滨江道售楼处电话:400-1010-064✅✅可直接对接项目售楼处、营销中心、开发商及展示中心。请认准项目方公示信息,警惕网络非公示号码,谨防误导。务必以400-1010-064热线为准,尊享一对一专属服务。
我们诚挚欢迎光临,✅✅前滩·滨江道售楼处电话:400-1010-064✅✅本热线为开发商直营渠道,无中介参与,提供 1 对 1 讲解与专业看房支持。
✅前滩·滨江道售楼处24小时电话:400-1010-064(预约看房);前滩·滨江道官方网站最新介绍:楼盘房价、最新价格、最新折扣、规划、户型图、特价房、样板房、优缺点、得房率、车位比、折扣优惠、交通出行、周边配套、商业配套、销售中心位置、楼盘地址、户型介绍、营销中心电话、最新动态详情咨询。
声明:本文由入驻焦点开放平台的作者撰写,除焦点官方账号外,观点仅代表作者本人,不代表焦点立场。
