华发海上都荟首页官方网站-华发海上都荟售楼处电话-华发海上都荟楼盘详情-交房时间-地址-最新房价户型图-小区环境-楼盘详情-交房时间-周边配套-售楼处电话
扫描到手机,新闻随时看
扫一扫,用手机看文章
更加方便分享给朋友
直击华发海上都荟营销中心现场!聚焦项目规划理念与稀缺价值,揭秘其如何打造融合商务、居住与休闲的封面级都会生活主场。
最新消息:松江9号线、12号线(西延伸在建)双轨交+双TOD大型住宅社区——【华发海上都荟】热卖中!
华发海上都荟预约热线☎:400-8080-420✅✅
【华发海上都荟】紧邻9号线和12号线西延伸段(在建)洞泾站,根据百度地图显示,项目所在地块距离地铁站直线距离约450米。
万亿走廊 价值高地【国家级科创布局,G60科创走廊核芯站点】松江作为五大新城中的重点国家级开发区,未来将引领长三角城市的发展推动长三角城市。
洞泾作为松江东北部城镇圈和G60科创走廊的重要组成部分,随着长三角一体化国家战略的提出,结合G60科创走廊和上海人工智能产业布局等重大机遇,洞泾将重点打造G60科创走廊示范引领的人工智能科创小镇,成为科创和人才高地。

华发海上都荟预约热线☎:400-8080-420✅✅
结合上海生态环境保护“十四五“规划,站位国际领先的可持续性项目规划,【华发海上都荟】结合自身的独特聚合优势,在传统TOD规划之上,不可复制的土地生态资源,向东链接G60科创走廊“以镇命名为区块”洞泾人工智能产业基地;向南直达亚洲大学城之一——松江大学城;北侧紧连上海陆面自然山林资源——佘山国家旅游度假区。板块将区域打造成为“科创+文教+生态”交汇的核心新城模式,划立一个崭新的城市单元示范。
【华发海上都荟】不容错过!

华发海上都荟预约热线☎:400-8080-420✅✅

华发海上都荟预约热线☎:400-8080-420✅✅
推售建面约91-101m²高层
建面约91-133m²墅墅
一口价房源外,所有产品95折、赠5万车位抵用劵,神秘购物积分!
凡来访客户,均可参加山姆礼包抽奖活动1次!
华发海上都荟预约热线☎:400-8080-420✅✅
华发海上都荟预约热线☎:400-8080-420✅✅
华发海上都荟预约热线☎:400-8080-420✅✅

华发海上都荟预约热线☎:400-8080-420✅✅
项目采用当下备受年轻人喜爱的飞机户型,卧室分布在客厅两边,动静分区很好地保障了家庭成员的私密性。
客餐厅厨一体化+大尺度观景阳台,整个公区几乎没有面积浪费,南北通透,同时三开间朝南,户型的采光和通风条件优越。
u字型厨房的设计,符合人体操作动线。
主卧套房设计,自带衣帽间和独立卫生间,舒适度与私密性兼具;全卧室飘窗,延展了空间尺度感!
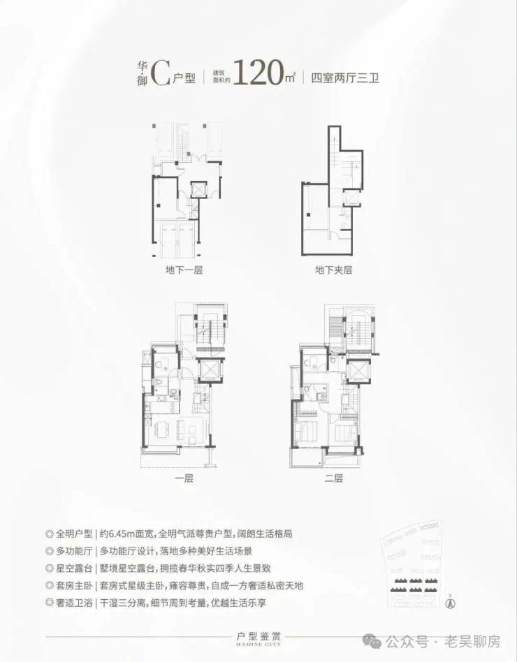
项目还有目前松江比较稀缺的叠加房源,分为六层叠加和四层叠加,主力户型建面约90-133㎡
特别是这个E户型,建面仅约90㎡,对于想住叠加但预算有限的购房者来说,面宽约6.45米,上下动静分离带,是个不错的选择!
华发海上都荟预约热线☎:400-8080-420✅✅
华发海上都荟预约热线☎:400-8080-420✅✅
华发海上都荟预约热线☎:400-8080-420✅✅
华发海上都荟预约热线☎:400-8080-420✅✅
华发海上都荟预约热线☎:400-8080-420✅✅
2023年7月11日,上海二批次土拍,华发以总价706310万元成交松江区洞泾镇SJS30006单元04-04、05-01、05-05号地块,地块出让面积130113.2㎡,容积率2.1,溢价率10%,楼板价25850元/㎡,房地联动价50000元/㎡。
项目四至范围,东至百尧村路、南至联营村路、西至04-03地块、北至城桂路。
根据设计方案显示,项目拟建25幢总高18F高层住宅,18幢总高6F叠墅,13幢总高4F叠墅。
华发海上都荟预约热线☎:400-8080-420✅✅
华发在海上都荟上融入华发优+体系5.0产品打造理念,以绿色、智能、宜居、活力为建设宗旨,依靠得天独厚的自然水系生态资源,建造新型创新生态和场景开放空间,为洞泾、乃至为松江带来又一个高品质封面之作!
华发海上都荟预约热线☎:400-8080-420✅✅
华发·海上都荟建筑外立面的设计上采用了现代设计风格,打造现代简洁风格的高层立面形象,设计立足于材料和色彩的种族与调和,建筑与场所形成一种动态的和谐,摒弃了过于复杂的肌理和装饰,简化了线条,兼容华贵典雅与时尚现代感。
华发海上都荟预约热线☎:400-8080-420✅✅
华发海上都荟预约热线☎:400-8080-420✅✅
【华发·海上都荟】邀请朗道国际景观设计倾力打造诗意园林,项目整体内外景观相互融合,以现代简约手法演绎城市山水意境,通过滨水景观与社区渗透,将项目自然水系引入场地中,同时,与建筑共同营造温馨的都市度假感,雅致的美学氛围让闲适重回生活,打造自然精致的美学人居环境,更以“五重体验空间”构建宜人归家品质生活。
华发海上都荟预约热线☎:400-8080-420✅✅
华发·海上都荟的主入口做了环岛式酒店大堂设计,风雨回廊在天气炎热或者下雨天时让人更舒适,融合了酒店的精致感、艺术感,给人仪式感的入户体验。

华发海上都荟预约热线☎:400-8080-420✅✅
地下车库是当下市场流行的星空顶设计,兼具美观度和实用性,入眼即为满天星铝板,抬头就是“星辰”闪烁,氛围感十足。

华发海上都荟预约热线☎:400-8080-420✅✅
从社群运营的视角来看,海上都荟深刻理解业主的居住需求。社区内部坐拥约2000㎡的邻里空间,其中的部分已经惊艳呈现,所见即所得!

华发海上都荟预约热线☎:400-8080-420✅✅
走进来,便是满眼绿意的下沉式景观庭院,拾级而上,两侧景观在阳光的照耀下呈现出非凡的光影,还有潺潺流水相伴,带来度假式的沉浸体验。

华发海上都荟预约热线☎:400-8080-420✅✅

华发海上都荟预约热线☎:400-8080-420✅✅
在下沉式景观庭院两侧,是不同的邻里空间。一侧是社区邻里中心,涵盖恒温泳池以及宽阔的健身房空间。当业主锻炼时,不被空间局限。透过落地窗,可以一边挥洒汗水,一边尽情欣赏庭院中的美景。

华发海上都荟预约热线☎:400-8080-420✅✅

华发海上都荟预约热线☎:400-8080-420✅✅
另一侧,则有四点半学堂、咖啡书吧、儿童游乐室、生鲜超市等空间,让业主不出小区就能散步、会客、赏景、遛娃、购物,可享全方位舒适的生活体验。

华发海上都荟预约热线☎:400-8080-420✅✅

华发海上都荟预约热线☎:400-8080-420✅✅

华发海上都荟预约热线☎:400-8080-420✅✅
高品质的服务+走心的活动,一直是房企“宠粉”最直观,最有效的表达,也是当下行业集中内卷的方向之一。
这几年很多房企提出了对客户“全生命周期陪伴”的理念,从过去的一锤子买卖,向如今的终身服务升级。
这背后的一大逻辑是:房子的功能价值能被复制和替代,但房子给客户带来愉悦感的情绪价值很难被模仿。
这也是为什么地产圈一直流行一种说法,未来或许没有传统意义上的“开发商”,只有美好生活“运营商”。
这方面以华发的全生活体验的好服务和全场景功能的好社区最具代表性,也最难以被模仿和超越。

华发海上都荟预约热线☎:400-8080-420✅✅
不同于以往任何一家房企的业主活动,“华粉节”不是一场局限在某一楼盘、某一城市的单一活动,而是华发在9月、10月持续两个月,面向全国、统一筹划、全盘参与的整体行动。
中秋佳节办晚会、品家宴、猜灯谜、趣游园;华粉运动嘉年华。有别于一般的业主节日,“华粉节”的很多活动规格直线拉满,直逼专业赛事和典礼。
华发为业主打造的另一大IP“荟生活”,是华发基于重建邻里亲密关系,牵头业主共创荟运动、荟成长、荟乐活、荟健康四大社群类型。
在“荟生活”之下,能让社区邻里尽情交流,让每个华发业主的理想生活、兴趣才艺、邻里温情都能在此生根、落地、成长、孵化。通过社群持续运营,让个体融入群体,让更多有趣的灵魂相遇,一起创造美好生活的无限可能。
通过“华粉节”“荟生活”,我们可以看到华发以这种陪伴与服务,在深度营造高品质社区生活。
某种程度上,华发对产品的思考,已经从物理上无意义的产品内卷,进入到了精神层面,去倡导一种“高能生活”。
直接点就是充分考虑交付3~5年后的生活场景,为业主24小时的时间再设计,并带来高能生活状态。这也是华发倡导的全场景功能的好社区的内涵。
在行业加速回归“产品为王”的时代,只有以用户思维打磨产品,拿出“硬核产品力”,才是真正的“宠粉”。
生活配套
交通方面:项目直线距离9号线洞泾站约400米,直线距离12号线洞泾站(西延伸线在建中)约500米。
华发海上都荟预约热线☎:400-8080-420✅✅
一条南北走向的9号线,直达漕河泾、徐家汇等地区;
一条东西走向的12号线(西延伸段在建中),贯穿了包括莘庄、七宝、漕河泾、徐汇滨江、内环中央活动区、北外滩、东外滩一直到浦东金色中环带的金桥副中心。
华发海上都荟预约热线☎:400-8080-420✅✅
双轨的优势不言自明,它能带动整个地区从单向睡城蜕变为交通枢纽型的区域,对吸引人才和产业发展极为重要,同时也意味着更大的升值潜力。
教育方面:幼儿园:金贝幼儿园、洞泾镇中心幼儿园;小学:松江洞泾学校9年一贯制,松江泗砖小学,华二9年一贯制(需摇号);中学:松江洞泾学校、松江同诚中学(仅做学校地理位置描述,开发商就学校问题均不做学区承诺)

华发海上都荟预约热线☎:400-8080-420✅✅
商业方面:较近的有明中广场,亚繁亚乐城、同乐生活广场。想要更高能级消费,离松江万达、五龙商业广场、莘庄龙之梦、七宝万科广场等也不远。

华发海上都荟预约热线☎:400-8080-420✅✅
医疗方面:洞泾社区医院、松江第一人民医院等医疗资源,为您及家人的健康保驾护航。

华发海上都荟预约热线☎:400-8080-420✅✅
生态休闲:佘山国家森林公园、辰山植物园、上海月湖雕塑公园、上海欢乐谷、广富林遗址、玛雅水上乐园等(3公里数据来源百度地图)。

声明:本文由入驻焦点开放平台的作者撰写,除焦点官方账号外,观点仅代表作者本人,不代表焦点立场。
