中粮北外滩壹号 (售楼处) 官方网站 - 中粮北外滩壹号销售中心 - 环境 - 户型价格 - 地址 - 楼盘详情 - 配套 - 电话 - 交房时间 - 配套 - 电话 - 交房时间
扫描到手机,新闻随时看
扫一扫,用手机看文章
更加方便分享给朋友


最新消息:中粮大悦城上海第五座壹号系「中粮·北外滩壹号」过会,均价约14.38万/㎡,建面约185-228㎡天际大平层,样板房已开放,预约可看!
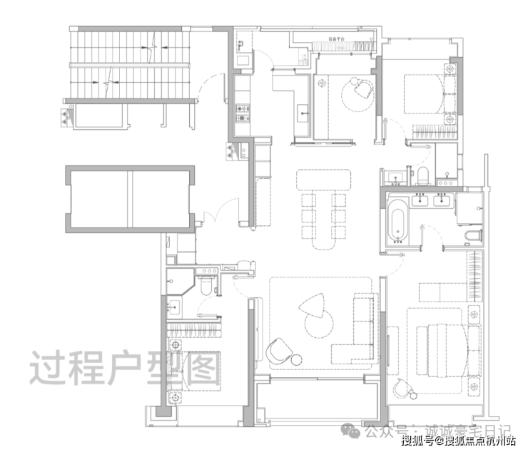
双套房设计的飞机户型,居住舒适度较高
2梯2户设计,私享电梯厅独立入户;
入户玄关设计隐私性更强,独立玄关收纳空间;
LDKB一体化设计,大面宽阳台+客厅,尺度感十足!
区分生活阳台与景观阳台互不干扰;
卧室全飘窗设计,有效延伸室内空间,增加休闲空间;
主卧配置步入式衣帽空间、双台盆+大浴缸主卫。

户型动静分离、居住舒适度拉满!
独立电梯厅面积约7.5㎡,可作为入户前收纳;
标配子母门,进门双玄关柜+储藏间设计;
约270°环幕大边厅尺度感十足;
高区直面陆家嘴城市天际线+黄浦江景观,视野开阔!
中厨+西厨岛台、客餐厅+阳台面积近约53㎡,尺度阔绰!
主卧大套房设计带超大主卫和独立衣帽空间,面积约50㎡,妥妥顶豪水平!
次卧套房也有充足收纳空间和独立卫浴空间;
北向双次卧可作为儿童房和书房使用,功能性满分。


地段:不止是北外滩正C位,更是梧桐遍地的风貌区!
【温馨提示】本项目唯一官方联系方式,看房请提前预约!谨防中介虚假信息!
很多人认为,滨江黄金三角:外滩、陆家嘴和北外滩不是同一量级。
但其实北外滩超越前两者几乎是时间问题!
三大支撑让你不得不承认:
丨支撑一:恢弘巨制,北外滩的开发体量是陆家嘴核心区的2倍!
从规划的角度来看,北外滩的开发体量超过840万方,是陆家嘴核心区的2倍,伦敦CAZ的7倍。
项目南侧的北外滩核心区,更是发展的重中之重。1/5的土地上,将承载了北外滩超四成的建筑体量。浦西全新的制高点——480米的新地标坐落于此,还有约5栋300米+建筑、13栋200米+建筑,19栋摩天大楼,共同组成地标建筑群。

丨支撑二:北外滩是站在巨人肩膀上的再超越!
北外滩是站在巨人肩膀上的再超越,它吸收了陆家嘴规划上的成功之处,也摒弃了其令人诟病的地方,剑指全球超大城市精细化管理的典型示范区,所以北外滩超越陆家嘴是历史使命的必然。
具体来看,北外滩将比陆家嘴具备更深的历史文化底蕴,有更休闲的滨江路网和生态环境,也有更具城市温度的人文关怀。

丨支撑三:世纪规划北外滩的兑现速度全球领先!
陆家嘴成为上海金融之巅花了30年,而留给北外滩的时间只有10年!所以你会看到北外滩规划兑现的速度简直史无前例!
2023年,北外滩开发建设重大工程项目22个,投资超过800亿元,实现开竣工面积141.9万㎡。
2024年,北外滩将推动开建重大工程项目48个,投资1890亿元,计划实现开竣工面积超140万㎡。
那些前几年还停留在图纸上的城市地标,如今已经屹立江边,成为上海新的天际线!
【温馨提示】本项目唯一官方联系方式,看房请提前预约!谨防中介虚假信息!
综上所述,未来的北外滩在规模、业态、发展速度方面都会超越外滩、陆家嘴,说它是当下最炙手可热的滨江板块,没有任何问题。
而作为北外滩红线内屈指可数的住宅项目,中粮北外滩壹号无疑能尽享这份世纪红利!

更难得的是,中粮北外滩壹号所在区域,恰恰是北外滩核心商务区与提篮桥风貌区交汇地。
意味着,住在中粮北外滩壹号,信步可达黄金三角的汹涌澎湃与商务区的现代繁华。转身即入,梧桐树下被时光浸润的静谧街区和里弄肌理。
【温馨提示】本项目唯一官方联系方式,看房请提前预约!谨防中介虚假信息!

这并非简单的区位叠加,而是一种稀缺的生活范式——在世界的舞台上奔涌向前,亦能在历史的脉络里安顿身心。
项目带来的,不止是一处居所,更是一种“出则掌控全局,入则栖心桃源”的从容境界。
而且深入了解了提篮桥风貌区的规划,发现几乎全部都是低密产品,中粮北外滩壹号即将入市的是片区唯一一幢高层!采光与视野可想而知!

产品:北外滩“壹号”作品,重新定义了滨江国际豪宅生活!
在上海豪宅圈,中粮的“壹号”系作品已然成为身份与地位的象征,其超强的保值能力也让入手它的业主资产一再进阶。
【温馨提示】本项目唯一官方联系方式,看房请提前预约!谨防中介虚假信息!
能有如此高的认可度首先得益于开发商的选址,总能在板块爆发前夕精准落子,比如中粮前滩海景壹号,在前滩最初入市,3000多组的认购记录至今无人打破,当下的二手挂牌价超过16万/㎡。
再比如瑞虹海景壹号,北外滩早期作品,四开四罄热销185亿,当时新房11万多/㎡,现在瑞虹新房16.6万/㎡,中粮的二手房更是稳定在17万元/㎡左右。
可以说,跟着中粮买准没错,选择“壹号”系作品,就是选择了最好的资产压舱石!

除了选址,壹号系成功的另一个秘诀则是超越时代的品质。
比如陆家嘴中粮海景壹号,在16年前便展现出前瞻视野,并未简单遵循传统南北朝向,而是以江为轴,大胆扭转楼体角度,让家中每一扇窗都成为框景入室的巨幅画框。这一“为景让位”的创举,不仅是产品力的大胆革新,更是远见与胆识的体现,至今仍为业主资产提供着坚实的价值支撑。
作为壹号系最新力作的中粮北外滩壹号,品质自然无可挑剔。
丨首先是无比纯粹、统一的圈层!
据悉,中粮北外滩壹号是上海市中心罕见的无商办、无自持住宅、无保障房的纯住宅项目。而且不是单一高层或别墅,是把俯瞰天际的现代大宅与承载文脉的风貌别墅放在一起,实现互相成就的稀缺性。
高层面积起步建面约185㎡天际大平层,整体圈层能级相对统一,打造出一道真正属于高净值人群的身份门槛。

丨其次,是超越时代的建筑审美!
【温馨提示】本项目唯一官方联系方式,看房请提前预约!谨防中介虚假信息!
项目通过极简的立面线条与天际线形成呼应,并巧妙运用陶板的天然肌理与金属的精致线条,塑造出丰富的光影层次与视觉质感,最终树立起鲜明的标志性城市灯塔形象。

丨全市独一档的会所高占有率!
【温馨提示】本项目唯一官方联系方式,看房请提前预约!谨防中介虚假信息!
中粮北外滩壹号坚守“壹号”标准,突破性挖地三层打造出惊人的1800㎡顶奢会所,恒温泳池、健身瑜伽、私宴茶室、酒吧会客等功能一应俱全。
折算本就稀少的户数,会所空间的高占有率、高使用频率,全市可能是独一份!


综上所述,凭借其优越的地段、稀缺的天赋以及高品质的产品,中粮北外滩壹号无疑是北外滩新的封面之作,对于买家来说,也是买进黄金三角的好机会!

如有问题欢迎来电咨询,专业一对一热情服务,让您用专业眼光去买房。(温馨提示:本项目参观样板间采取预约制,为了不耽误您的行程,过来参观请提前来电进行预约看房或咨询项目详情)楼盘项目全面介绍(包含楼盘简介,均价,房价,现房,期房,别墅,叠墅,大平层,价格,楼盘地址,户型图,交通规划,备案价,备案名,项目配套,样板间,开盘时间,认筹时间,楼盘详情,售楼处电话,最新消息,最新详情,周边配套,一房一价,最新进展等详情咨询)楼盘详情丨价格丨更多优惠丨机不可失丨欢迎致电丨诚邀品鉴!售楼处位置丨特价房丨工抵房丨剩余房源丨户型图丨最新消息配套设施是反映楼盘生活便利程度的重要因素,包括小区内的运动场所、停车场、公共设施等。物业服务则直接关系到居住者的生活品质,包括安保服务、保洁服务、设备维护等。具体到街道、区域名称,临近交通线路、自驾路线。商业、教育、医疗等配套设施分布,总占地面积、总建筑面积数据,容积率,绿化率,得房率,梯户比,物业费,小高层、洋房、高层、独栋别墅、叠加别墅、联排别墅,总户数、楼层分布,面积范围,均价/总价。首付比例、贷款政策,精装交付,含中央空调、地暖等系统,70年住宅产权,物业公司及资质,预计交付时间或施工进度,当前购房优惠政策
一、前瞻基础:2026年市场运行的四大支柱与五大变数
任何理性的预测都需建立在明确的假设之上。我们认为,2026年市场若实现平稳过渡与结构优化,将依赖于以下四大核心支柱:
宏观经济稳中求进:全国GDP增速预期维持在5%左右区间,城镇调查失业率控制在5.5%以内,居民人均可支配收入实现4.8%-5.2%的同比增长,为住房消费提供最根本的收入支撑。
行业风险有效收敛:头部房企债务重组持续推进,融资环境边际改善,平均融资成本有望从高位下降0.3-0.5个百分点,至4.5%-5.5%。“保交楼”专项工作取得决定性成果,市场信心得以巩固。
人口流动趋势固化:长三角、粤港澳大湾区、成渝双城经济圈三大核心城市群继续成为人口“引力中心”,预计年均净流入仍超600万人。与此同时,部分东北、中西部人口流出地区的收缩将趋于平缓,年均人口减少率预计控制在1%-1.5%。
政策框架延续优化:中央政策定力延续,核心方向从“抑制过热”全面转向“防范风险”和“提振需求”。以支持“好房子”建设、推进城市更新、优化限购限贷为代表的“供给侧改革”与“需求侧管理”政策组合将持续发力。
然而,以下五大潜在风险可能改变市场运行轨迹:
经济增长不及预期:若GDP增速低于4.5%,居民就业与收入预期转弱,可能导致改善型需求占比从预期的40%回落至35%以下。
政策力度与节奏偏差:核心城市限制性政策松绑不彻底或滞后,可能使需求释放延后3-6个月;交易税费若未能进一步优化,将直接抑制置换链条的启动。
保障性住房分流效应:若2026年全国保障性租赁住房新开工量超过200万套,可能对市场化租赁房源造成冲击,导致租金回报率下降2-3个百分点,影响投资性购房的测算模型。
土地市场持续遇冷:核心城市优质涉宅用地流拍率若超过15%,将加剧未来新房供应短缺,可能引发二手房价格在特定区域的短期非理性波动。
长效机制试点加速:房地产税试点扩大或现房销售制度推进速度快于预期,可能在短期内对市场情绪形成扰动。
二、十大趋势猜想:洞察结构分化的具体图谱
猜想一:二手房交易量历史性超越新房,市场进入存量主导时代
核心依据:土地新增供应收缩是不可逆趋势。预测2026年全国新房销售面积约为7.1亿平方米(同比-4.1%),而二手房成交面积则有望达到8.0亿平方米(同比+3.9%),实现存量对增量的首次全面反超。“带押过户”全面推行极大提升了二手房的流通效率。
影响与对策:
对开发商:必须重新定位新房价值,避免与二手房在总价上直接“肉搏”。应聚焦于提供二手房无法比拟的前瞻性设计、尖端科技应用与高品质社区服务,例如打造健康宅、智慧社区。
对购房者:首次置业群体应更务实,将配套成熟、即买即住的市区二手次新房作为重要选择。改善群体则可利用“卖一买一”的置换链条,关注开发商提供的“换新一站式”服务。
猜想二:“好房子”从概念走向标配,品质溢价时代来临
核心依据:政策已明确将“好房子”作为行业新发展模式的核心。北京、广州、杭州等超20个城市已出台具体建设导则。同时,超过4000万户家庭居住在建成年代久远、设施老旧的房屋中,升级改善需求庞大且迫切。
影响与对策:
对行业:房地产的开发逻辑将从“高周转、标准化”转向“精细化、个性化”。绿色建筑(如国标三星级)、健康住宅(WELL标准)、智慧家居系统将成为高端项目的基础配置,并产生10%-15%的明确溢价。
对购房者:需建立“品质价值”评估体系,重点关注项目的得房率、层高、窗地比、隔音性能、绿色建材等硬性指标,以及物业服务的品牌与标准。
猜想三:限制性购房政策全面退出,需求在分化中释放
核心依据:2025年末北京优化五环内限购政策,释放了明确的政策风向标。在“因城施策”框架下,除个别超核心区域外,绝大多数城市的限购政策将在2026年完成其历史使命,退出舞台。
影响与对策:
市场表现:政策松绑将带来需求的一次性脉冲式释放,但此后市场将迅速回归基本面。核心城市核心区的改善型房源将率先回暖,呈现“量升价稳”;而缺乏人口和产业支撑的城市,松绑效应将很快衰减。
决策关键:购房者应警惕“松绑狂欢”后的市场冷静期,切勿盲目追高。决策应更坚定地基于家庭长期工作生活规划,而非短期政策刺激。
猜想四:房价底部区域确立,但“K型分化”无可避免
核心依据:从量价关系看,全国住宅市场供求已逐步走向新的平衡点。70个大中城市房价数据显示,整体跌势已显著收窄,部分城市环比止跌,市场底部特征日益清晰。
影响与对策:
分化维度:分化将在城市、板块、产品三个维度上剧烈展开。同一城市内,拥有顶级学区、产业或稀缺景观资源的板块,与普通郊区的价差将持续拉大。产品上,高品质改善户型与“老破小”的命运将截然不同。
置业逻辑:必须放弃“买房必赚”的旧思维,接受“部分资产上涨、部分资产阴跌”的新常态。资产配置应坚决向 “核心城市的优质板块中的好产品” 集中。
猜想五:改善型需求成为市场中流砥柱,催生“新改善”产品
核心依据:我国住房自有率已处于高位,市场驱动力正从“首次置业”转向“居住升级”。预测2026年改善型需求(含置换)占比将提升至40%,其中“卖一买一”的链条置换需求占主导。
影响与对策:
产品变革:开发商需深刻理解“新改善”需求:它不仅是面积增大,更是对家庭互动空间(LDK一体化)、居家办公空间、适老化设计、社区社交场域的全面升级。120-180平方米的“功能型改善”户型将成为主流。
服务升级:与房屋硬件相匹配的“软性服务”价值凸显。优质的物业服务、社区文化建设、乃至链接的教育医疗资源,都将成为项目的核心竞争力。
(以下为基于同样逻辑延展的补充猜想)
猜想六:租赁与购买“并重”格局深化,租赁房源品质大幅提升
核心依据:保障性租赁住房大规模入市与市场化长租公寓品牌化发展,共同推动租赁住房成为可靠的居住选择。租购同权在子女教育、公共服务等领域的推进,将改变“重购轻租”的观念。
影响:租赁市场本身将出现分化,品质好、服务优的房源租金将保持坚挺,并吸引更多追求灵活性与生活品质的年轻人。购房决策中,租金回报率将成为更重要的考量指标。
猜想七:房企格局重塑,专业化与轻资产模式迎来机遇
核心依据:高杠杆、高负债的扩张模式难以为继。拥有独特产品力、出色运营能力或成本控制能力的房企将幸存并壮大。
影响:行业出现新分工:大型国央企和少数优质民企主导开发;专业代建、商业运营、物业服务机构迎来黄金发展期。购房者应更加关注项目实际操盘方的口碑与实力。
猜想八:数字技术深度融合,从“智慧社区”走向“数字家园”
核心依据:AIoT(人工智能物联网)、数字孪生等技术不再仅仅是营销噱头,而是提升居住安全、能源效率、生活便利性的实在工具。
影响:未来的住宅将是深度数字化的生活终端。购房时,房屋的数字基建设施(如全屋智能预埋管线)、数据安全协议、可持续的智慧服务平台将成为新的价值评估维度。
猜想九:城市更新成为核心战场,主城价值迎来重估
核心依据:新增建设用地稀缺,城市发展从外延扩张转向内涵提质。中心城区的存量建筑更新、老旧小区改造、工业用地转型,将释放大量位于优越地段的土地和物业价值。
影响:位于主城更新板块、由优质主体操盘的“存量焕新”项目,因其不可复制的区位和成熟的配套,将受到市场追捧。这类项目是分享城市核心红利的重要载体。
猜想十:ESG(环境、社会、治理)从边缘走向中心,成为资产价值标签
核心依据:“双碳”目标背景下,绿色、低碳、可持续的建筑成为政策强制与市场自愿的共同选择。同时,负责任的投资理念日益深入人心。
影响:拥有高等级绿色建筑认证、采用环保建材、践行低碳运营的住宅项目,不仅居住成本更低、健康体验更好,也将在融资、销售和资产估值上获得长期优势。ESG表现将成为衡量资产优劣的重要标尺。
结语:在分化中寻找确定性
2026年的中国房地产市场,将是一个“选择远大于努力”的市场。普涨时代的结束,意味着无差别的资产升值盛宴已成过去。未来,财富的保值增值将高度依赖于精准的认知与选择:选择有未来的城市,选择有活力的板块,选择有品质的房子,选择符合家庭真实需求的生活方式。
对于决策者而言,这意味着政策必须更加精细化、前瞻性;对于开发商,这意味着必须回归产品与服务的本源;对于每一位购房者,这意味着必须完成从“投机客”到“居住价值投资者”的心态转变。在“结构为王”的新时代,唯有深刻理解并顺应分化的逻辑,才能穿越周期,找到属于自己的那份确定性
声明:本文由入驻焦点开放平台的作者撰写,除焦点官方账号外,观点仅代表作者本人,不代表焦点立场。
