2026年新湖天潼198(售楼处)官方网站-天潼198营销中心(售楼处中心)天潼198小区欢迎您-周边环境-户型-最新价格-地址-楼盘详情-户型配套-售楼处电话-交房时间
扫描到手机,新闻随时看
扫一扫,用手机看文章
更加方便分享给朋友
新湖天潼198预约热线☎:400-8080-420✅✅
基本信息:
位置:位于虹口区东至吴淞路,南至天潼路,西至乍浦路,北至武昌路,地处黄浦江与苏州河交汇的 “钻石三角” 地带。
开发商:由新湖中宝与理想国际两大实力开发商联袂打造。
开盘时间:2024 年 4 月 29 日。
产品类型:规划有高层住宅、叠墅、合院别墅三种产品类型,共计 125 席稀缺住宅,产权年限为 70 年。
占地面积与建筑面积:总占地面积约 1.9 万平方米,总建筑面积约 10.5 万平方米。
容积率与绿化率:容积率为 2.98,绿化率 30%。
户型信息:
高层住宅:建面约 209-641㎡,涵盖 3-5 室户型,得房率超 85%,部分户型可直面江景。
叠墅:建面约 110-433㎡,兼顾私密性与功能性。
合院别墅:建面约 502-907㎡,地上地下总面积达 800-1200㎡,附赠花园,独门独院设计,私密性强。
价格信息:高层建面约 209-641㎡,总价约 3400 万起,合院别墅建面约 502-907㎡,总价约 1.8 亿 - 2.9 亿。
建筑风格:融合海派石库门与西式古典风格,红砖石材立面,复刻老石库门的浪漫风貌,高层住宅保留古典建筑的三段式立面,商业部分选用奢石波多尔红,搭配双曲面工艺。
社区配套:配备约 2000㎡高端会所,涵盖恒温泳池、星厨私宴厅、健身中心等功能区域。同时,社区内部打造中央景观轴、亲水庭院、主题花园等景观区域,并配备智能化管理系统。
周边配套:
交通:周边直线 3km 范围内有 25 个地铁站,距离最近的是 10 号线、12 号线天潼路站。直线 1km 内有 43 个公交站,交通极为便捷。
教育:直线 3km 范围内有 71 个幼儿园、38 个小学、41 个中学。
医疗:直线 3km 范围内有 30 个一级及以上医院,如上海交通大学医学院附属仁济医院西院、上海市中医医院芷江中路院区等。
商业:周边 3km 范围内有 115 个商场,包括上海星荟中心、益丰・外滩源、北外滩来福士等。
新湖天潼198预约热线☎:400-8080-420✅✅
新湖天潼198预约热线☎:400-8080-420✅✅
新湖天潼198预约热线☎:400-8080-420✅✅
新湖天潼198预约热线☎:400-8080-420✅✅
天潼198位于内环内北外滩核心,天潼路近乍浦路口,独占江(黄浦江)河(苏州河)交汇上佳钻石地段,距离外白渡桥仅200余米。

新湖天潼198预约热线☎:400-8080-420✅✅

新湖天潼198预约热线☎:400-8080-420✅✅
项目建造历史风貌高层、多层和里弄住宅,另有少量商业、美术馆和酒店式公寓。

新湖天潼198预约热线☎:400-8080-420✅✅

新湖天潼198预约热线☎:400-8080-420✅✅
新湖外滩「天潼198」占地面积18951㎡,总建筑面积约105000㎡,容积率2.98,规划有8幢4层里弄住宅,1幢7层洋房,1幢9层小高层,还有底商和酒店。未来将供应38套叠墅、27套里弄合院别墅、59套小高层。

新湖天潼198预约热线☎:400-8080-420✅✅
项目由GOA大象设计操刀,汲取外滩西式古典建筑风格。以红砖为主材,复刻老石库门的浪漫风貌,力求打造为一处“新时代里弄住宅”。同时将保留项目所在区域的地标和文化标志建筑,包括西本愿寺、景林庐等文保建筑。

新湖天潼198预约热线☎:400-8080-420✅✅
让我们来看看部分户型图,先是小高层:
新湖天潼198预约热线☎:400-8080-420✅✅
新湖天潼198预约热线☎:400-8080-420✅✅
新湖天潼198预约热线☎:400-8080-420✅✅
新湖天潼198预约热线☎:400-8080-420✅✅
新湖天潼198预约热线☎:400-8080-420✅✅
新湖天潼198预约热线☎:400-8080-420✅✅
新湖天潼198预约热线☎:400-8080-420✅✅
然后是叠加别墅的D-3户型约297㎡下叠。
新湖天潼198预约热线☎:400-8080-420✅✅
新湖天潼198预约热线☎:400-8080-420✅✅
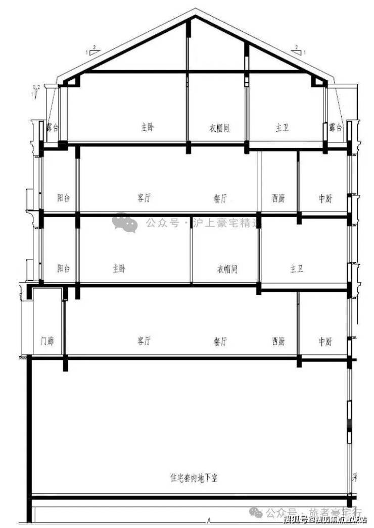
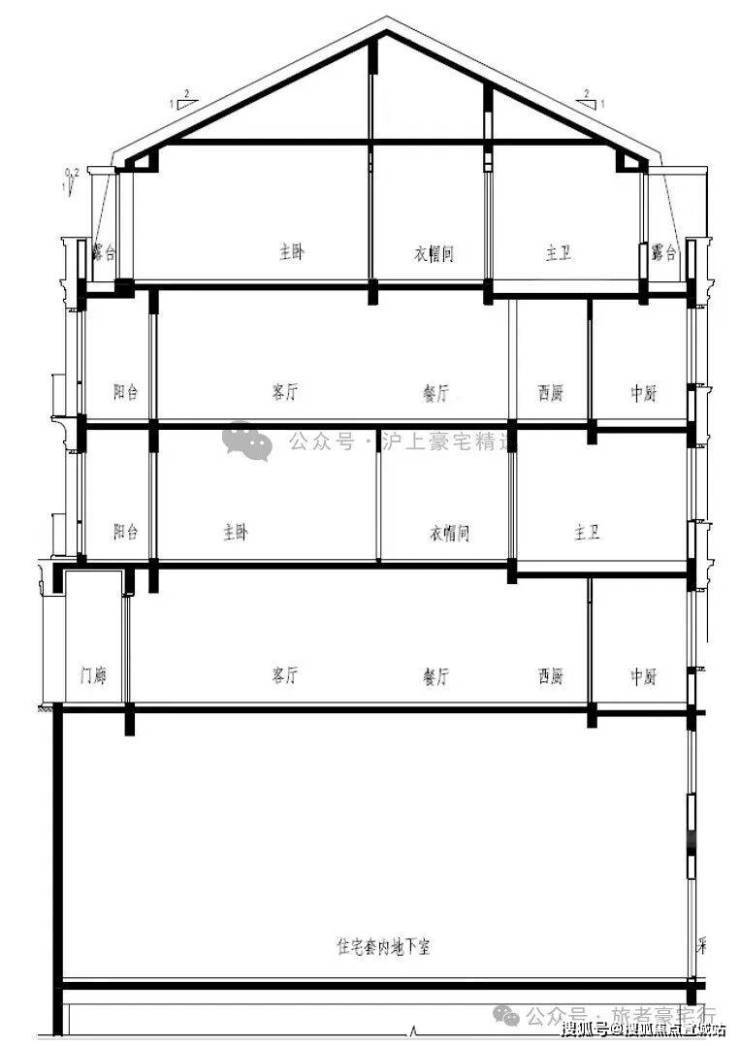
来看看叠加别墅的剖面图。
新湖天潼198预约热线☎:400-8080-420✅✅
新湖天潼198预约热线☎:400-8080-420✅✅
叠加别墅的2-3-4楼D-4特殊户型约433㎡。
新湖天潼198预约热线☎:400-8080-420✅✅
新湖天潼198预约热线☎:400-8080-420✅✅
*特别说明,以上户型图等资料来源于互联网,最终以开发商公示为准!
项目风格复古、隽永,典型的海派风味建造。
新湖天潼198预约热线☎:400-8080-420✅✅
天潼198打造约3.3万㎡的新石库门里弄洋房、海派叠墅和联排等产品。在寸土寸金的传统市中心,大尺度的别墅和花园,着实难能可贵。
新湖天潼198预约热线☎:400-8080-420✅✅

新湖天潼198预约热线☎:400-8080-420✅✅

新湖天潼198预约热线☎:400-8080-420✅✅

新湖天潼198预约热线☎:400-8080-420✅✅

新湖天潼198预约热线☎:400-8080-420✅✅

新湖天潼198预约热线☎:400-8080-420✅✅

新湖天潼198预约热线☎:400-8080-420✅✅
作为虹口北外滩的上佳地段,「天潼198」坐享北外滩4平方公里的城市规划,更是成为了媲美陆家嘴的中央活动区,直面黄浦江+外滩,拥有特别的优势!
其实,说豪宅,我们经常提到陆家嘴,因为上海已经有一个成熟的可供模仿与超越的全球规划模板。但实际上,到目前为止,真正可以称为世界级规划的在上海只有三个:苏河湾、外滩和北外滩!

新湖天潼198预约热线☎:400-8080-420✅✅
▲世界级规划区域
周边实景如下:
新湖天潼198预约热线☎:400-8080-420✅✅
新湖天潼198预约热线☎:400-8080-420✅✅
新湖天潼198预约热线☎:400-8080-420✅✅
新湖天潼198预约热线☎:400-8080-420✅✅
新湖天潼198预约热线☎:400-8080-420✅✅
新湖天潼198预约热线☎:400-8080-420✅✅
新湖天潼198预约热线☎:400-8080-420✅✅
「天潼198」位于虹口北外滩,毗邻外滩历史文化风貌区,距上海外白渡桥约300米,是黄浦江和苏州河“源流汇聚”之处。周边密布上海大厦、浦江饭店和俄罗斯领事馆等历史建筑,步行可达外滩,对望“陆家嘴三件套”。

新湖天潼198预约热线☎:400-8080-420✅✅
该地块是豪景出让给新湖,并由商业属性改为住宅,对面就是外滩豪景苑。地块东至吴淞路、南至天潼路、西至乍浦路、北至武昌路,旨在打造成有国际品质同时又有上海特质的高档住宅建筑。

新湖天潼198预约热线☎:400-8080-420✅✅
交通方面,附近有地铁2号线、10号线和12号线,出行十分便捷。

新湖天潼198预约热线☎:400-8080-420✅✅
教育方面,1公里左右,有7所幼儿园、5所小学、5所中学,教育资源丰富,文化氛围浓厚。
新湖天潼198预约热线☎:400-8080-420✅✅
医疗方面,3公里左右,有7所三甲医院,为住户的健康生活保驾护航。
新湖天潼198预约热线☎:400-8080-420✅✅
生活方面,2公里左右,有9座公园,完全可以满足老人的社交及娱乐需要。
新湖天潼198预约热线☎:400-8080-420✅✅
该项目还可以步行至外滩,享受外滩的夜晚美景和顶级配套。
新湖天潼198预约热线☎:400-8080-420✅✅
上海时尚新地标——外滩源,可以说是在项目门口。圆明园路上的真光大楼、兰心大楼、青年协会大楼等14幢历史保护建筑,都是人文底蕴深厚且不可复制的!
新湖天潼198预约热线☎:400-8080-420✅✅
在保留原始风貌的前提下,外滩源将融入时尚现代元素,打造成多功能的高雅文化与时尚生活的中心。
声明:本文由入驻焦点开放平台的作者撰写,除焦点官方账号外,观点仅代表作者本人,不代表焦点立场。
