保利永兴里售楼处咨询电话:400-8877-480
☑专业销售一对一咨询 耐心等待官方VIP客户经理回电☑

保利永兴里售楼处咨询电话:400-8877-480
自2003年起,上海市政府划定了中心城区12片历史文化风貌区,如著名的衡复风貌区,以及郊区的32片风貌保护区等。中心城区的旧改思路也从“拆、改、留并举”转变为“留、改、拆并举”,这意味着城市更新不再是大规模地拆除重建,而是更加重视对历史建筑的保护。在这样的政策导向下,保留历史基因的风貌别墅产品便孕育而生。
随着人们对居住品质的追求不断提高,高净值人群对具有历史文化底蕴和稀缺性的高端住宅产品需求日益增长。风貌别墅以其独特的建筑风格、稀缺的土地资源和深厚的历史文化内涵,满足了这部分人群的高端居住需求。近年来,风貌别墅也在不断进行产品创新,将现代设计理念与传统风貌建筑相结合,打造出具有独特魅力的风貌别墅产品。

保利永兴里售楼处咨询电话:400-8877-480
下面为大家带来3个风貌别墅的案例第一期
越秀·外滩樾
越秀·外滩樾位于上海内环核心区域,地处由外滩、陆家嘴与北外滩构成的“黄金三角”腹地。项目匠心打造了一处覆盖238㎡-338㎡面积段、容积率仅为1.3的低密度风貌里弄住宅。

保利永兴里售楼处咨询电话:400-8877-480
项目承袭了百年前的传统工艺元素,将清砖立柱、古典门头、岩石山墙等经典海派建筑风貌转译和突破,更适配现代人居审美,于历史和未来之间收藏百年上海底蕴!
保留历史肌理的老砖为基底,项目们以现代陶艺重译传统,研发陶砖。
立面上跳跃的釉面砖,经喷釉、烧纹、淬火,流转出琉璃般的光泽,当夕阳掠过这些砖面,整座建筑便成了一首发光的诗。

保利永兴里售楼处咨询电话:400-8877-480

保利永兴里售楼处咨询电话:400-8877-480

保利永兴里售楼处咨询电话:400-8877-480

保利永兴里售楼处咨询电话:400-8877-480

保利永兴里售楼处咨询电话:400-8877-480

保利永兴里售楼处咨询电话:400-8877-480

保利永兴里售楼处咨询电话:400-8877-480

保利永兴里售楼处咨询电话:400-8877-480

保利永兴里售楼处咨询电话:400-8877-480
公区:首开先河的山水庭院,私密尊贵的会所
突破风貌别墅公区狭小的限制,越秀外滩樾做了一个地上地下合计建面约2500㎡会所及泛会所空间,提供了会客、私宴、泳池、健身等多维休闲社交功能。

保利永兴里售楼处咨询电话:400-8877-480

保利永兴里售楼处咨询电话:400-8877-480

保利永兴里售楼处咨询电话:400-8877-480

保利永兴里售楼处咨询电话:400-8877-480

保利永兴里售楼处咨询电话:400-8877-480

保利永兴里售楼处咨询电话:400-8877-480

保利永兴里售楼处咨询电话:400-8877-480
地下一层泛会所与特别设置的艺术展廊连通,让艺术与生活完美融合;地下二层可以直达地下车库,与地下归家大堂相连通;地下三层会所主体,通过下沉庭院进行采光,错落有致的布局环绕其间,保证采光的通透和视野的幽静。恒温泳池、多功能健身区、休闲SPA区的悠然氛围,营造既独立又相互呼应的空间体验的同时提升价值感。

保利永兴里售楼处咨询电话:400-8877-480

保利永兴里售楼处咨询电话:400-8877-480

保利永兴里售楼处咨询电话:400-8877-480

保利永兴里售楼处咨询电话:400-8877-480
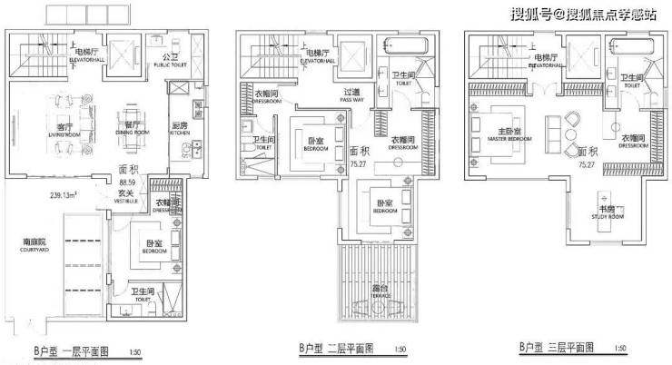
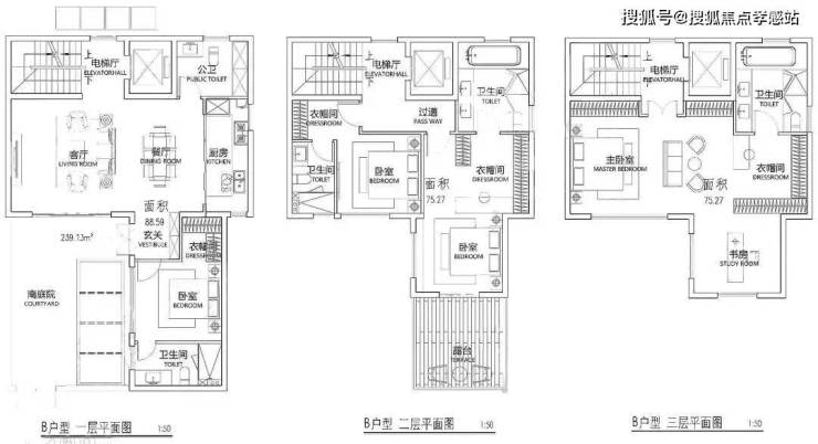
236.25㎡

保利永兴里售楼处咨询电话:400-8877-480
239.13㎡

保利永兴里售楼处咨询电话:400-8877-480
250.89㎡

保利永兴里售楼处咨询电话:400-8877-480
C户型

保利永兴里售楼处咨询电话:400-8877-480
291.42㎡

保利永兴里售楼处咨询电话:400-8877-480
保利永兴里
项目以新旧共融的设计理念为核心,规制东园西邸,赋新十字街角,一个转角就是一个风貌墅区,重现伦敦斯毕塔菲尔德繁华与优雅。
西邸就是小高层住宅,而东园则是保利·永兴里的精华所在-藏品级双拼风貌别墅。整个东园沿袭新天地海派街巷里弄格局,复建了行列式街坊,并通过优化巷弄高宽尺度提升了别墅的空间品质。
双拼别墅不仅采光更佳、院子更大的边套,私密感也无限接近于独栋,这20多套别墅,就像一个个“独立王国”,巷道形成了“纵横交错”的布局,有了很强的透气感。

保利永兴里售楼处咨询电话:400-8877-480

保利永兴里售楼处咨询电话:400-8877-480

保利永兴里售楼处咨询电话:400-8877-480

保利永兴里售楼处咨询电话:400-8877-480
项目设计了超级商业底盘——精品社区商业兴集100,未来可能将引入格调咖啡馆、精品商业等诸多网红业态,这样的骑楼打造,也让城市高级烟火气彻底回归。

保利永兴里售楼处咨询电话:400-8877-480

保利永兴里售楼处咨询电话:400-8877-480
项目复兴了里弄建筑传统特色建筑肌理,做了很多花费时间成本和精力成本的事情:
比如永兴里的风貌建筑外立面砖的排布参考历史建筑采用大面灰砖+红砖腰线做法。为了复原百年前老建筑的味道,团队比较历史建筑原砖尺寸后,重新开模,留住时间的记忆,让建筑更有时间的味道。
不同于其他风貌别墅,在材料运用和细节上保利也是有诸多巧思,比如用石材替换石库门水刷石,还增加柱头装饰和线脚层次,从而提升了石库门的精致感。

保利永兴里售楼处咨询电话:400-8877-480

保利永兴里售楼处咨询电话:400-8877-480

保利永兴里售楼处咨询电话:400-8877-480
城央罕有双拼墅邸,以更高阶居住形态,赋予独门独院、有天有地奢适生活。平均约60%高附赠率,建面约170-210㎡城央双拼墅邸,立体墅居,拓展空间多维创想。

保利永兴里售楼处咨询电话:400-8877-480
杨浦滨江桐安里
在成功案例弘安里的基础上,桐安里将先锋审美与新材质、新场景相融合,从新精致图案、新复古元素、新奢享材质、新摩登场景四个角度,重新定义了风貌别墅人居新高度!

保利永兴里售楼处咨询电话:400-8877-480

保利永兴里售楼处咨询电话:400-8877-480

保利永兴里售楼处咨询电话:400-8877-480
项目沿街立面参考原地块建筑风貌,采用扇形圆滑的转角形态,辅以明显的竖线条线脚装饰,按照地形特征“削”出弧度,巧妙设计出立面弧度,形成手风琴样式立面,打造出令人印象深刻的浪漫场景。

保利永兴里售楼处咨询电话:400-8877-480

保利永兴里售楼处咨询电话:400-8877-480

保利永兴里售楼处咨询电话:400-8877-480
过街门楼是经典石库门与海派生活场景的重要代表,项目通过2种不同样式的过街门楼,延续了原市房现代简洁、过街楼装饰艺术风格特征以及连续界面等特点,不仅让归家更富有层次感,更凸显着海派生活场景的摩登魅力。

保利永兴里售楼处咨询电话:400-8877-480
项目通过一楼家庭庭院,二楼星空露台,三楼罗密欧阳台,复原经典的三段式设计规制,还原出武康路罗密欧阳台的经典邬达克式摩登场景

保利永兴里售楼处咨询电话:400-8877-480

保利永兴里售楼处咨询电话:400-8877-480

保利永兴里售楼处咨询电话:400-8877-480
值得一提的还有,在仅70套作品的社区,项目居然还原了邵洵美的“花厅”,将百年历史文脉与新时代海派特质融合,结合复古式旋转楼梯设计,从层次感、艺术感、观赏性等维度打造出一个了既复古又摩登的会所。
会所内则涵盖健身房+冥想空间+桑拿区+棋牌室等功能。为业主的社交提供场所,为业主的日常休闲提供服务!

保利永兴里售楼处咨询电话:400-8877-480

保利永兴里售楼处咨询电话:400-8877-480

保利永兴里售楼处咨询电话:400-8877-480

保利永兴里售楼处咨询电话:400-8877-480

保利永兴里售楼处咨询电话:400-8877-480

保利永兴里售楼处咨询电话:400-8877-480

保利永兴里售楼处咨询电话:400-8877-480

保利永兴里售楼处咨询电话:400-8877-480

保利永兴里售楼处咨询电话:400-8877-480

保利永兴里售楼处咨询电话:400-8877-480

保利永兴里售楼处咨询电话:400-8877-480

保利永兴里售楼处咨询电话:400-8877-480

保利永兴里售楼处咨询电话:400-8877-480

保利永兴里售楼处咨询电话:400-8877-480

保利永兴里售楼处咨询电话:400-8877-480


保利永兴里售楼处咨询电话:400-8877-480