上海壹号院 (售楼处) 首页 - 上海壹号院销售中心 - 上海壹号院价格 - 地址 - 楼盘详情 - 配套 - 电话 - 交房时间 - 配套 - 电话 - 交房时间
扫描到手机,新闻随时看
扫一扫,用手机看文章
更加方便分享给朋友


☑️☑️上海壹号院售楼处电话:400-8787-740 ☑️☑️黄浦核心老城厢
全新烫金豪宅
【上海壹号院】风貌别墅
☑️☑️上海壹号院售楼处电话:400-8787-740 ☑️☑️
风貌别墅面积:250-900平㎡
主力户型350-600㎡
均价约30万/㎡
总价预计6000万-3亿
样板房已经开放预约
首开38套 先到先得 欢迎预约
☑️☑️上海壹号院售楼处电话:400-8787-740 ☑️☑️
☑️☑️上海壹号院售楼处电话:400-8787-740 ☑️☑️
上海壹号院风貌别墅
首批次推出38席
房源位于01 ,02, 03 组团区域
建面约250至900平风貌院墅
近期首次开放两套样板间
样板间约为370㎡和590㎡的两个户型
☑️☑️上海壹号院售楼处电话:400-8787-740 ☑️☑️
01
项目信息
☑️☑️上海壹号院售楼处电话:400-8787-740 ☑️☑️
壹号院】位于中华路以东、方浜中路以南、松雪街以西、复兴东路以北,是老黄浦区508-514街坊(亚龙地块)旧城区改造项目。前期高层已售罄,接下来主推风貌别墅。
☑️☑️上海壹号院售楼处电话:400-8787-740 ☑️☑️
设计方案如下:
☑️☑️上海壹号院售楼处电话:400-8787-740 ☑️☑️
根据规划,项目总建筑面积约23万方,由6栋14-37层的高层住宅、部分改建保留的联排别墅、合院别墅以及部分配套用房组成。
☑️☑️上海壹号院售楼处电话:400-8787-740 ☑️☑️
方案中规划的昼锦路目前还未东延至此,未来建成后,项目内将开辟昼锦路和方浜中路之间的公共绿地以及城市开放空间,着力打造成富有海派文化底蕴的历史风貌保护和城市更新经典片区。
☑️☑️上海壹号院售楼处电话:400-8787-740 ☑️☑️
项目主要分两个地块,西区地块主打新建高层住宅,总计六幢,其中包含了4套保留改建的别墅产品。
☑️☑️上海壹号院售楼处电话:400-8787-740 ☑️☑️
北区地块区域主打保留建筑,基本为2-3F的联排和合院。
☑️☑️上海壹号院售楼处电话:400-8787-740 ☑️☑️
☑️☑️上海壹号院售楼处电话:400-8787-740 ☑️☑️
02
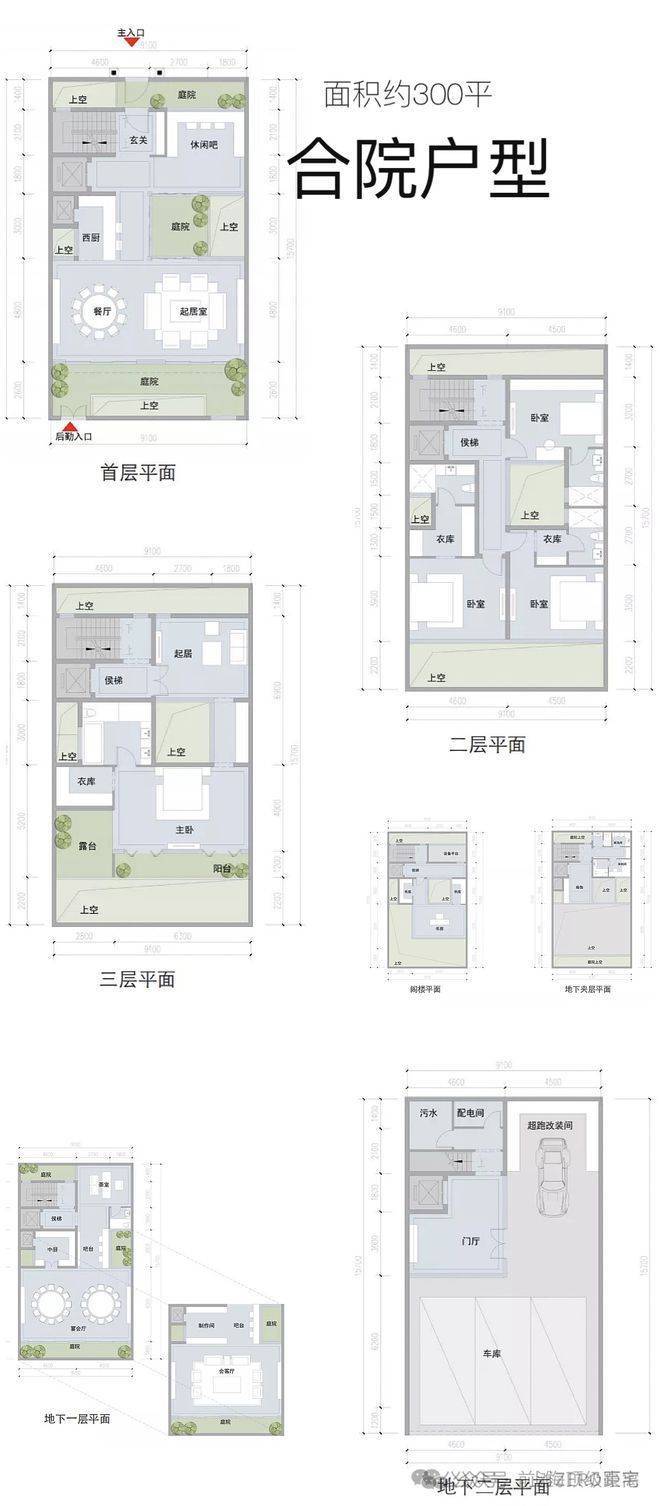
合院户型图
(户型图仅供参考,具体以开发商公示为准)
部分保留历史建筑的户型平面图
(双击可查看大图)
一层
二层
一层
二层
一层
二层
一层
二层
一层
二层
一层
二层
三层
一层
二层
三层
☑️☑️上海壹号院售楼处电话:400-8787-740 ☑️☑️
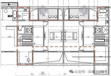
一层平面图
二层平面图
☑️☑️上海壹号院售楼处电话:400-8787-740 ☑️☑️
☑️☑️上海壹号院售楼处电话:400-8787-740 ☑️☑️
☑️☑️上海壹号院售楼处电话:400-8787-740 ☑️☑️
—— 预约看房 ——
☑️☑️上海壹号院售楼处电话:400-8787-740 ☑️☑️
上海壹号院风貌别墅【体量】151套风貌【本批次】第一批次,38套,分3个组团【类型】纯合院风貌(毛坯交付)【面积】250平-900平(主力户型350--600)【均价】30万+,套均过亿【户型】每套不同,107个户型(1字型、回字形、C字形、L型、H型……)【风格】江南园邸、现代主义、街店式、近代装饰……多类型供选择【层高】3.9/3.6/3.6(大户型为主) 3.6/3.3/3.3(小户型为主)【赠送】花园、阳台、双露台、大面积地下室、阁楼闷顶高度不一【巷道】组团,支巷道3米-4.5米【物业】融创(暂定地上19.8元,地下10元,会所额外收费)【交房时间】预计2027年12月上海壹号院的风貌,根据目前仅有的资料,改良了很多:1. 分支巷道拓宽至3-4米,诸多项目还停留在1-2米;2. 阳台和露台用格栅确保私密性和开阔性,防止对视;3. 立体住宅,分层内嵌,采光差的首次开创房子内部做天井,确保全户型全明、每个角落有光4. 上海风貌层高最高的产品,很多户型层高:地下6.1米,一层3.9米,二层3.6米,三层3.6米5. 外小内大,保护大户型隐私和品质;6. 很多户型双露台,大户型2-4个花园7. 壹号院一贯作风,外部点状承重,设计多样性1) 层高惊艳,上海风貌目前基本都是3.6/3.3/3.3(当然壹号院也有部分是这种层高的),壹号院风貌面积大一点很多都是3.9米的层高,3.9/3.6/3.6,这个配置目前属顶配,地下室也是挑高6.1米,整体空间感尺度不错的;2) 天井设计,这是上海风貌的首次尝试,部分户型为了达到每一层、每个功能间有好的光线,在整个房子内部,做个采光天井,虽然没看到实地,但还是震撼到了我;3) 巷道不错,分支巷道能做到3-4.5米,间距可以的。
☑️☑️上海壹号院售楼处电话:400-8787-740 ☑️☑️
☑️☑️上海壹号院售楼处电话:400-8787-740 ☑️☑️
☑️☑️上海壹号院售楼处电话:400-8787-740 ☑️☑️
☑️☑️上海壹号院售楼处电话:400-8787-740 ☑️☑️
☑️☑️上海壹号院售楼处电话:400-8787-740 ☑️☑️
☑️☑️上海壹号院售楼处电话:400-8787-740 ☑️☑️
黄浦核心老城厢
全新烫金豪宅
【上海壹号院】风貌别墅
风貌别墅面积:250-900平㎡
主力户型350-600㎡
均价约30万/㎡
总价预计6000万-3亿
样板房已经开放预约
首开38套 先到先得 欢迎预约
01
未来上海怎样的居所才算豪宅?
☑️☑️上海壹号院售楼处电话:400-8787-740 ☑️☑️
在新一轮房地产政策优化调整后,关于豪宅的讨论再度升温,各方观点纷呈。
我们专访到了业内豪宅专家:第一太平戴维斯中国区住宅销售部主管、高级董事——唐华,在她看来,有4个关键词是豪宅不可或缺的要素,分别为:稀缺资源、个性彰显、纯粹圈层、配套服务。
放眼当下,在似乎习惯了只买地段、追求利润的时代,能集齐以上这些要素的高端豪宅非常被渴望,但也极为珍稀。
☑️☑️上海壹号院售楼处电话:400-8787-740 ☑️☑️
幸运的是,一座未来豪宅的全新典范——陆家嘴壹号院,正在焕发新生!
02
未来的豪宅会有何趋势?
“ 每个时代都有不同的标杆住宅,随着豪宅的迭代,和当下新生代豪宅的崛起,豪宅浮现出新的定义。
除以前纯看核心地段这个因素之外,稀缺资源、个性彰显、纯粹圈层和配套服务,都成为了未来豪宅不可或缺的基因。”
首先:是稀缺资源。对资源的占有,是任何城市里豪宅存在的基础。比如核心地段资源、城市景观资源等。因此在上海,沿着“一江一河”规划中的豪宅,都备受瞩目。
☑️☑️上海壹号院售楼处电话:400-8787-740 ☑️☑️
其次:是个性彰显。浦东北滨江板块陆家嘴壹号院,是融创地产在上海的四座壹号院产品之一,定位看齐世博滨江的融创滨江壹号院的好地段景观豪宅。
☑️☑️上海壹号院售楼处电话:400-8787-740 ☑️☑️
03
上海未来豪宅范本:陆家嘴壹号院
项目位于陆家嘴北滨江地段,有着约12万方城市生态绿洲三面环抱,滨江漫步道、骑行道慢跑道纵横集聚,水陌穿插,形成了绝佳的自然环境,可随时开启一场全新的滨水慢跑生活,在陆家嘴的世外桃源享受清净而纯粹的滨水栖居大宅。
融创壹号院系列自称“每一座壹号院”都不一样,确实如此陆家嘴壹号院为铝板和大面积玻璃结合的外观设计,颇像是矮版的九庐,与北滨江现代化、清爽的城市界面很搭。☑️☑️上海壹号院售楼处电话:400-8787-740 ☑️☑️
另一个层面,是纯粹圈层。在做产品定位时,开发商很明确目标客户是谁,并做定制化的设计。如把面积段跨度缩小来保证圈层的一致性,根据对客户喜好度的分析,在社区里去设置不同功能的场所。☑️☑️上海壹号院售楼处电话:400-8787-740 ☑️☑️
陆家嘴壹号院建成于2019年,是非限价时代的作品,品质是非常有保障。由上海地产和融创中国携手打造,10万方体量涵盖豪宅、办公、商业等多种业态,容积率仅2.5,绿化率达35%。住宅部分共247户,170~498㎡全系纯粹豪宅。
陆家嘴壹号院的得房率比较高达到80%。主力户型是171平三房和196-252平四房。为了看北面的江景,皆为南卧室北厅的设计,面宽较宽,户型很不错。
利用约150米临江地理优势,使各住宅楼栋之间相互有序错动,保证每栋楼均有良好的江景资源。小区由5栋15层高的小高层组成,楼间距40米较为舒适。
小区完全人车分流,车位比达到1:2,非常充足。楼栋内部为2梯2户或3梯2户,层高3.15米。陆家嘴壹号院内有1800平私家会所,含恒温泳池、健身房、儿童房。物业是五大行的第一太平戴维斯,14.8元/月/平标准收费。
☑️☑️上海壹号院售楼处电话:400-8787-740 ☑️☑️
☑️☑️上海壹号院售楼处电话:400-8787-740 ☑️☑️
更重要的,是配套服务。未来的豪宅一定是以综合体为导向的。住宅、商业、办公等不同业态相互赋能,业主可以在此兼顾娱乐与生活,举办亲朋好友聚会类的活动,也可以将商务洽谈等需求在综合体里实现。更重要的,是配套服务。未来的豪宅一定是以综合体为导向的。住宅、商业、办公等不同业态相互赋能,业主可以在此兼顾娱乐与生活,举办亲朋好友聚会类的活动,也可以将商务洽谈等需求在综合体里实现。☑️☑️上海壹号院售楼处电话:400-8787-740 ☑️☑️
陆家嘴壹号院主要的竞品就是附近的九庐。与九庐相比,陆家嘴壹号院的精装修、层高、户型都有较大优势,地段和景观稍差,总体还是要优于九庐,故单价也要略贵一些,已达到20万以上。
☑️☑️上海壹号院售楼处电话:400-8787-740 ☑️☑️
在浦东相同总价、房间数的楼盘里,原来也只有滨江凯旋门的品质能与陆家嘴壹号院一战。两个小区3房以上房源都很少放出,非常稀缺。

☑️☑️上海壹号院售楼处电话:400-8787-740 ☑️☑️
陆家嘴壹号院共分为两期:分别于2016年底和2018年底开盘,统一在2018年底精装修交房,装修标准1万/每平米,装修风格浅色系暖色调,给人温馨的家的感觉,私家电梯刷卡入户保证隐私和安全,德系品牌厨电和卫浴,保证居住品质。
☑️☑️上海壹号院售楼处电话:400-8787-740 ☑️☑️
陆家嘴壹号院的江景视野开阔,景观出色;户型设计的大度开阔,双卧客厅朝南,南向采光面多,布置合理,居住舒适度高;滨江景观可以正看景,坐在家里就能与江景直接接触。☑️☑️上海壹号院售楼处电话:400-8787-740 ☑️☑️
住的人群主要吸引了从事银行业、金融业的企业高管和老板。由于紧临黄浦江畔,隔江对望外滩,南向可观陆家嘴三大建筑,吸引大批江景房爱好者。
以上这些要素齐聚的综合体塔尖豪宅——陆家嘴壹号院,成为了市场上的一道独特风景线。在这里,业主可以感受到城市核心的繁华,同时享受到高品质的生活和服务。
04
陆家嘴壹号院实拍品鉴
小区目前196平235平3+1房
超买特价只需要3000万起步已满五
☑️☑️上海壹号院售楼处电话:400-8787-740 ☑️☑️
☑️☑️上海壹号院售楼处电话:400-8787-740 ☑️☑️
☑️☑️上海壹号院售楼处电话:400-8787-740 ☑️☑️
☑️☑️上海壹号院售楼处电话:400-8787-740 ☑️☑️
☑️☑️上海壹号院售楼处电话:400-8787-740 ☑️☑️
☑️☑️上海壹号院售楼处电话:400-8787-740 ☑️☑️
☑️☑️上海壹号院售楼处电话:400-8787-740 ☑️☑️
☑️☑️上海壹号院售楼处电话:400-8787-740 ☑️☑️
☑️☑️上海壹号院售楼处电话:400-8787-740 ☑️☑️
☑️☑️上海壹号院售楼处电话:400-8787-740 ☑️☑️
☑️☑️上海壹号院售楼处电话:400-8787-740 ☑️☑️
☑️☑️上海壹号院售楼处电话:400-8787-740 ☑️☑️
☑️☑️上海壹号院售楼处电话:400-8787-740 ☑️☑️
☑️☑️上海壹号院售楼处电话:400-8787-740 ☑️☑️
☑️☑️上海壹号院售楼处电话:400-8787-740 ☑️☑️
☑️☑️上海壹号院售楼处电话:400-8787-740 ☑️☑️
声明:本文由入驻焦点开放平台的作者撰写,除焦点官方账号外,观点仅代表作者本人,不代表焦点立场。
