弘安里售楼处电话:400-8787-740位于虹口四川北路街道,历史风貌保护项目,四至范围:东至江西北路、南至海宁路、北至武进路、西至河南北路。


售楼处电话:400-8787-740
实景图,仅供参考弘安里售楼处电话:400-8787-740
项目占地面积约3.7万㎡, 容积率仅1.1,建筑限高仅10米,为纯别墅项目,共121席房源。

项目平面图,仅供参考
弘安里也是上海城心难得的 同时拥有苏州河和黄浦江的黄金水岸线纯低密项目
目前项目 仅余少量建面430-758㎡传世大宅在售,总价约6000w-1.6亿。
项目优势
纯粹低密风貌大宅,没有高低配,社区圈层统一;
别墅为“合院式、大面宽”布局,空间通透性优秀;
步行可达黄浦江、苏州河双水岸线(距离外滩步行约1.3km、苏州河约800米);
项目周边有成片的城市更新,历史保护建筑和历史保护街坊环伺。
接下来,我们从 地段价值、产品力与空间设计、自然资源与景观独占性、社区品质与圈层纯粹度、开发商品牌与物业保障、资产流动性与增值潜力六大维度来详细测评。

弘安里售楼处电话:400-8787-740
项目效果图,仅供参考
Part01
地段
百年“上只角”的当代新生
回溯百年前的上海, 弘安里所在的北外滩就是“上只角”。
沿黄浦江设有不少领事馆,北苏州河路、四川路上有邮政总局和公济医院(即上海市第一人民医院),北四川路一带也因为美国学校(1923年搬离去衡山路10号)造就了多伦路、溧阳路等地大宅林立。
有博主考究过1925年左右的上海十大豪宅社区,北外滩昆山花园路赫然在列,与淮海路、思南路等经典地段并肩。

弘安里售楼处电话:400-8787-740
图片来源:公众号-外滩以西
由此,北外滩沉淀下深厚的城市肌理与人文故事,成为海派文化的重要发源地。

弘安里售楼处电话:400-8787-740
图片来源上海发布弘安里售楼处电话:400-8787-740
如今的 北外滩,正以“历史与现代交融”的姿态, 与外滩、陆家嘴共同构成上海核心“黄金三角”
这里,将打造“与外滩、陆家嘴错位联动的新时代中央活动区”,成为上海面向世界的“会客厅”。

弘安里售楼处电话:400-8787-740
效果图,仅供参考弘安里售楼处电话:400-8787-740
不同于传统CBD的“大拆大建”,这里保留了今潮8弄等历史文化街区,未来还将建成约180米超高层写字楼与商场,形成“老建筑与摩天楼共生”的独特城市界面。

弘安里售楼处电话:400-8787-740
图片来源:公众号-今潮8弄
从弘安里出发,步行即可抵达苏州河、北外滩滨江与外滩,漫步间尽览黄浦江与苏州河的双重水景;
向北可达四川北路商圈,向南衔接苏河湾万象天地,商业、文化资源触手可及。

数据来源百度地图
项目的交通便利性也极为突出:距10号线四川北路站不到500米,1公里内覆盖3、4、10、12号线四条轨交。自驾方面,临近内环高架、南北高架,8分钟直达外滩,20分钟覆盖陆家嘴、南京路商圈。

弘安里售楼处电话:400-8787-740
示意图,仅供参考
判断一处资产是否具备“永恒价值”,首看其地段能否经得起“百年检验”。
弘安里所在的北外滩,从历史底蕴到未来规划,都堪称上海城市封面的 “压舱石”
Part02弘安里售楼处电话:400-8787-740
产品
海派文化的当代演绎
稀缺的土地,需要匹配“艺术品级”的产品。 弘安里以“保护、延续、匠心、新生”为原则,用心打磨,既还原了石库门的历史肌理,又解决了传统里弄的居住痛点。
建筑形态:“一栋一策”的里弄博物馆
弘安里堪称“上海石库门里弄的活化石”——项目原涵盖8个里弄组团,经优化后保留6个,覆盖4种石库门类型,跨越3个建筑时期。

弘安里售楼处电话:400-8787-740
效果图,仅供参考
设计团队采取“一栋一策”的定制化策略,通过重点保护、构件复用、更新改建等方式,最大限度延续原海派石库门风貌。


弘安里售楼处电话:400-8787-740
示意图,仅供参考
空间设计:颠覆传统里弄的现代人居
传统里弄“长进深、小天井、采光差”的痛点,在 弘安里被彻底重构,项目优化为“ 大面宽、合院式、高私密”,部分户型还巧妙地增设南院,并预留可供自身需求和喜好自由创造的功能空间。

弘安里售楼处电话:400-8787-740

弘安里售楼处电话:400-8787-740
示意图,仅供参考
建面约380m²无间设计的创意展示空间鉴赏
户型面宽达13米+,搭配一片式落地窗,通透感升级;

建面380㎡无间设计的创意展示空间图
创新L型格局,增设“耳房”区域,可灵活改造为茶室、私宴厅等,满足多元需求;

弘安里售楼处电话:400-8787-740
建面380㎡无间设计的创意展示空间图
围墙高度 约2.65-4.55米,隔绝外部视线,私密性更好;

弘安里售楼处电话:400-8787-740
实景图,仅供参考
二层配置双套房设计,分隔成两个既独立又融合的场域,还带一个大露台;

弘安里售楼处电话:400-8787-740
建面380㎡无间设计的创意展示空间图
三层主卧套间独占一层,配备独立衣帽间、双卫浴与一步式阳台,私密性拉满;

弘安里售楼处电话:400-8787-740
建面380㎡无间设计的创意展示空间图
负一层为“全能社交区”,可承载品酒、收藏、影音等功能,承载每一位家庭成员的闲情逸趣。

弘安里售楼处电话:400-8787-740
建面380㎡无间设计的创意展示空间图
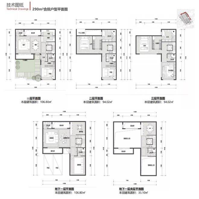
户型鉴赏:(户型图仅供参考)
•弘安里售楼处电话:400-8787-740

弘安里售楼处电话:400-8787-740

弘安里售楼处电话:400-8787-740

弘安里售楼处电话:400-8787-740

✦弘安里售楼处电话:400-8787-740
✦弘安里售楼处电话:400-8787-740
户型图,仅供参考
弘安里现在有建面300㎡、建面380㎡、建面500㎡三个样板间,建议大家亲至现场品鉴体验。
值得一提的是, 项目在保留历史风貌的同时,巧妙融入现代生活需求,实现了历史质感与现代舒适的完美结合
另外,项目为简装交付,预留了充足的定制空间,让业主可根据喜好打造专属的“海派生活场景”。
Part03弘安里售楼处电话:400-8787-740
自然资源与景观
传承海派花园洋房的精致与婉转
在社区园林景观的营造上,弘安里从海派洋房的历史记忆入手,结合当代审美需求,打造了 雅集六境、风华四艺、画境八园等多个景观主题与节点。让未来业主的每一次归家,都充盈着雅致的海派风情。

弘安里售楼处电话:400-8787-740
效果图,仅供参考
在社区的中轴上,从入口处「天马华章」迈步前行,「围炉生春」「通文艺荟」「听泉茶叙」「清赏博古」贯穿到「樾下雅集」,海派生活画卷昨日重现。

弘安里售楼处电话:400-8787-740
效果图,仅供参考
项目北侧「樾下雅集」已实景呈现。

弘安里售楼处电话:400-8787-740

弘安里售楼处电话:400-8787-740

弘安里售楼处电话:400-8787-740

弘安里售楼处电话:400-8787-740
漫步在弘安里示范区,似曾相识的场景,是对海派印象的再确认,更是内心精神的感应
Part04
社区品质与圈层
上海塔尖圈层的“私密社交场”
弘安里虽然“套”着历史的形,但在配置上充分满足当代高净值人群需求。
项目规划 高端会所,涵盖恒温泳池、健身、瑜伽、多功能厅等区域

弘安里售楼处电话:400-8787-740
实景图 仅供参考
约1:3超高车位比的高颜值地库,才足以满足塔尖家庭的需要。

弘安里售楼处电话:400-8787-740
实景图 仅供参考
豪宅的价值,不仅在于“居住空间”,更在于“圈层资源”。
弘安里以“低密纯墅+高定配套”,构建了上海塔尖圈层的“私密社交场”。
Part05
开发商品牌
三大巨头联手打造
弘安里由招商&绿城&上海地产强强联手打造。
2021年,招商蛇口上海公司签约了800亿的上海城市更新基金,积极参与上海旧区改造,赋能城市有机更新,以弘安里为起点,拉开了“江河三里”的城市更新版图序幕( 江河三里:弘安里、桐安里、静安里)。

弘安里售楼处电话:400-8787-740
示意图,仅供参考
绿城中国,中国领先的优质房产品开发及生活综合服务供应商。其在上海开发的绿城前滩百合园、绿城潮鸣东方等豪宅项目,均成为现象级爆款。

弘安里售楼处电话:400-8787-740
前滩百合园实景图,仅供参考
上海地产(集团)成立于2002,主要业务为房地产开发、经营,实业投资,物业管理等。有信息曾显示,上海地产参与承担了全市约6成的城市更新任务。
除此之外,上海地产还进行了多元化的横向合作,比如:2021年6月,由上海地产集团作为主体,与招商蛇口、中交集团、万科集团、国寿投资、保利发展、中国太保、中保投资签署战略合作协议,共同落地了全国规模最大的城市更新基金(800亿)。

图源上海地产官网,仅供参考弘安里售楼处电话:400-8787-740
Part06
增值潜力
穿越周期的硬通货
上海风貌别墅的供应早已“锁死”:2019年城市更新思路转变后,成片二级以下旧里旧改于2022年全部结束,里弄资源无法复用。
据上海规划官网数据,全市风貌别墅理论上限约185万㎡,实际用于别墅的体量更是稀少,而容积率1.1的纯墅区更是稀缺。

弘安里售楼处电话:400-8787-740
数据来源上海发布
这种“先天稀缺性”决定了弘安里的“抗跌性”:
对比普通豪宅“20年即落后”的周期, 弘安里如同“老洋房”——时间越久,历史底蕴越深厚,价值越凸显
小编认为, 弘安里的意义,早已超越“一座豪宅”——它是上海城市更新的“标杆之作”,是海派文化的“当代载体”,更是塔尖人群可遇不可求的“收藏级资产”。
对于真正的高净值人群而言, 选择弘安里,不仅是选择一处居所,更是选择一种“与上海百年历史共生”的生活方式,一份“穿越周期、永不褪色”的核心资产
目前 项目仅余少量建面430-758㎡臻稀席位,或将成为上海塔尖圈层的“最后入场券”
对项目有兴趣的朋友
欢迎点击下方报名通道预约咨询、参观
弘安里售楼处电话:400-8787-740
复原了铸铁通风花格、木质百叶窗等细节,甚至重新烧制了与百年前同款的琉璃瓦。
弘安里售楼处电话:400-8787-740
历史元素与
现代居住理念的碰撞

弘安里售楼处电话:400-8787-740
从小区正门走进来,寸土寸金的地段,做出了这样的三进院。地上铺的这些石板,都是原有百年建筑的材料。岁月把散落的材料与技艺,收拢成了这一座「回廊四合」的庭院。这些墙用的是「梅花丁」的砌法,勾缝是非常讲究的「元宝缝」,这都是专门邀请修复上海历史建筑的那些老师傅,才得以重现。
整体室内分成地上、地下各两层,遵循历史的脉络,结合石库门红砖的立面,延续上世纪20年代西式公馆设计手法,Art Deco风情却不失现代的表达。
弘安里售楼处电话:400-8787-740

弘安里售楼处电话:400-8787-740
弘安里的客厅,尽管气派不逊过往的洋房大宅,却少了几分严肃的气息。推开雕花的南非柚木大门,迎面而来的,不只是光线与装饰,更是高级日常的殿堂。

弘安里售楼处电话:400-8787-740
客厅整体面宽达9米,亮色装饰线条的深绿色墙面还原海派建筑风华,也彰显传承之意;La Greca模块化主沙发由意大利顶级奢侈家居品牌VERSACE出品,自由子和的茶几组合一款由艺术家雕刻出花叶后固化封脂而成,另一款则采用意大利翡翠玉打造,散发着低调奢华的艺术格调。

弘安里售楼处电话:400-8787-740

弘安里售楼处电话:400-8787-740

弘安里售楼处电话:400-8787-740

右滑查看更多>>弘安里售楼处电话:400-8787-740
线条优雅的Elite餐椅来自意大利家具品牌ELIE SAAB MAISON,百达翡翠手工锻造而成的石材餐桌有松绿色水波荡漾,精致的金属细节、采用麦秆镶嵌(Straw Marquetry)工艺打造的门板奠定奢华沉稳的用餐氛围基调;厨房的电器由嘉格纳出品,锅具来自意大利顶级手工厨具品牌Ruffoni,纯手工打造的铜质锅身、由意大利著名银器工匠设计并手工制作镶嵌装饰,每个细节均呈现艺术之美。
在居住空间打造上,弘安里每一户都由分户墙隔开,宅院的围墙高度约2.65米-4.55米不等,有效降低了邻里之间在视觉和空间上的干扰。同时最大可能的打造大开间短进深的空间布局,满足现代人对通风采光的需求,部分定制落地窗,大面积的窗墙比。打造建筑面积约245-503㎡,以3-4房为主的有天有地有院的里弄住宅,建构适应当代的生活范式。
弘安里售楼处电话:400-8787-740

弘安里售楼处电话:400-8787-740

1F 庭院中心布局,客厅、餐厅、卧室三面均可采光,内外相映成趣
大面积落地窗,视线与光线延伸,内外之间阳光与分贝柔和过渡
一层长辈套房设计,南向独立小庭院,莳花弄草,晨练太极自在四季
弘安里售楼处电话:400-8787-740

弘安里售楼处电话:400-8787-740

弘安里售楼处电话:400-8787-740


弘安里售楼处电话:400-8787-740

弘安里售楼处电话:400-8787-740

右滑查看更多>>
2F 男女主人均有宠爱
主卧套房露台与花池阳台,南北通透,让阳光环绕主角的“光环”
主卧双卫双步入式衣帽间,淋浴、花洒、桑拿房,相爱却各有私密
阳光双南套卧“夹心"小书房,小主人们的学习、成长并驾齐驱
弘安里售楼处电话:400-8787-740

弘安里售楼处电话:400-8787-740

富有装饰主义色彩和雅致情调的会客厅,有宽绰沙发与长案,老友在此相聚交流,促膝畅谈,壁炉里有跃动的火光相迎,大理石桌面仿佛有水景承托,与流动的话题融合共生,泛起阵阵涟漪。

弘安里售楼处电话:400-8787-740