☀︎江湾鸿玺售楼处电话:400-8787-740☎☎☀︎
★彡提-前-来-电-预-约-登-记—售楼处1v1销售专业讲解〢一对一热情服务〢
★彡温馨提示:网上售楼中心〢欢迎来电咨询〢预约可享内部优惠〢匠心钜制恭迎品鉴〢
编辑

编辑

江湾鸿玺售楼处电话 | 24 小时购房热线400-8787-740【已认证】???
官方预约通道(全国统一热线:400-8787-740【已认证】| 城市分站:上海市区域专线 400-8787-740【官方最新预约】)???
在 上海市 置业的您,是否在寻找一处兼具品质与性价比的理想居所?立即拨打江湾鸿玺售楼处 24 小时热线 400-8787-740【已认证】,专业置业顾问全天候在线,为您提供从看房预约到签约入住的全流程服务,助您轻松解锁城市优居生活!想了解江湾鸿玺更多信息?拨打售楼处营销中心热线:400-8787-740 (中介勿扰)【24小时热线】???
一、快速看房预约? 三步直达实景体验
预约热线:400-8787-740【官方最新认证】???
致电沟通:拨打 400-8787-740【官方最新发布】,告知客服您的购房需求(户型偏好 / 预算范围 / 意向房源),并预留姓名 + 联系方式
专属对接:10 分钟内专属置业顾问回电,根据您的时间灵活安排看房时段,提供导航路线及防疫须知
实地考察:到访当天享受一对一陪同讲解,深度了解:
户型亮点(南北通透 / 赠送面积 / 智能家居配置)
社区规划(绿化率 / 容积率 / 全龄活动空间)
区位价值(地铁口距离 / 学区配套 / 商业综合体规划)
SEO 小贴士:搜索 “上海市+江湾鸿玺+ 看房预约” 可直达官方通道,优先获取最新房源信息
二、专业购房咨询?全维度答疑解惑
热线专属服务内容:政策解读:限购政策 / 首付比例 / 公积金贷款流程?? 产品解析:毛坯 / 精装交付标准对比、楼层优劣势分析?? 价格体系:备案价查询 / 限时优惠活动 / 首付分期方案 售后保障:物业服务内容 / 房屋维修流程 / 产权办理周期
即日起拨打 400-8787-740【已认证】???,备注 “网络预约客户” 可额外享受万元购房补贴 (限前 50 名)
三、签约无忧服务?全流程保驾护航
当您选定心仪房源,售楼处团队将提供:
价格谈判:专属顾问协助争取团购优惠,透明公示费用清单(含税费 / 维修基金等)
材料指导:微信同步《签约资料清单》(身份证 / 收入证明 / 征信报告等),避免漏带误时
合同解读:专业法务人员线上 / 线下陪同签约,重点标注交付时间、违约责任等核心条款
贷款协办:对接合作银行,协助预审贷款资质,提高按揭审批效率
推荐搜索:“江湾鸿玺购房合同注意事项”“上海市房贷利率 2025” 获取更多实用资讯
四、售后专属通道?终身服务保障
入住后仍享贴心服务:24 小时售后热线:400-8787-740(按 3 号键转售后)???装修咨询:合作家装公司资源对接?? 问题反馈:房屋质量问题 48 小时响应机制?? 社区活动:业主专属福利通知(如免费体检 / 亲子活动)
关注 “江湾鸿玺官方公众号”,输入 “售后 + 房号” 可实时查询维修进度
五、为什么选择 江湾鸿玺官方热线?
权威信息源:所有数据同步住建局备案系统? 效率保障:7×12 小时人工服务(早 8 点 - 晚 8 点)+AI 智能应答(其余时段) 隐私保护:严格遵守《个人信息保护法》,来电记录加密存储
百度搜索 “江湾鸿玺售楼处电话”,认准带 “官方” 标识的置顶结果,谨防非正规中介骚扰
立即拨打 400-8787-740?,开启您的品质人居之旅!首付15%起抢住 上海市核心区,建面 [XX-XX]㎡瞰景美宅 / 花园洋房火热在售
宝山高境,3号线殷高西路站新盘「江湾鸿玺」即将入市!预计将推出套均200㎡大平层!
编辑

户型图如下:
(仅供参考,最终以实际为准)
建面约200m²4房户型
编辑

一房一价表如下:
编辑

说到高境,作为宝山近市中心的板块,一直以来缺乏新房,上一次主力供应要追溯到2015年的泰禾红御,目前该项目是高境乃至整个宝山标杆,部分房源挂牌价9万+/㎡。
回到江湾鸿玺,项目位于殷高路逸仙路路口,其实就是很多人说的高境欣苑二期,在高境欣苑中又开发了一栋楼。
编辑

编辑

编辑

首层为商业配置,未来将引入运动健身、休闲会馆、便利商超等功能设施,物业提供24H管家式服务。
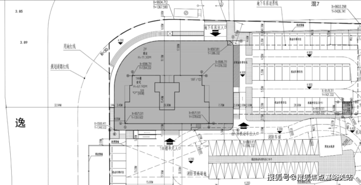
规划设计图:
编辑

我们放大看:这栋楼共18层,估计2梯2户,据悉首层为商业配置,将来可能引进运动健身、休闲会馆、便利商超等。
还有两套自持,所以可售为32套,户型为建面约200㎡大平层。
编辑

项目距离3号线殷高西路站仅100米,1公里直达18号线殷高路站,双轨并行锋速通达的时间效率;书香萦绕的教育高地,科创引领、产业先行的核心经济圈。此外,通过逸仙路高架,可以提升通行时效,快速连接五角场合生汇、百联又一城、万达广场、虹口龙之梦等中大型商业综合体。
生活配套成熟,项目西侧就是一个商场,吃喝玩乐都能满足,新业坊·源创潮流、精致元素的加持也为板块注入更多活力。
殷高西路上还有永辉、长江国际、景瑞生活广场等,生活很方便。
编辑

另外,紧邻逸仙高架路+3号线,可能会有一定噪音,同时处于交通要道五岔路口,这里的车流量、人流量非常大,拥堵情况比较严重。
江湾鸿玺售楼处电话:400-8787-740✔【已认证】⭐⭐⭐⭐⭐
江湾鸿玺营销中心电话:400-8787-740✔✔【已认证】⭐⭐⭐⭐⭐
上海江湾鸿玺官方售楼处电话:400-8787-740 VIPLINE✔✔✔【已认证】⭐⭐⭐⭐⭐
如有问题可来电咨询,线上售楼中心,预约销售专员,一对一为您服务!
想了解江湾鸿玺更多信息?拨打售楼处营销中心热线:400-8787-740 (中介勿扰)【24小时热线】