上海海玥黄浦源 (售楼处) 首页 - 海玥黄浦源销售中心 - 环境 - 户型 -海玥黄浦源楼盘详情 - 配套| 电话 |交房时间 - 配套 - 电话 - 交房时间
扫描到手机,新闻随时看
扫一扫,用手机看文章
更加方便分享给朋友




楼盘项目全面介绍,本电话为开发商提供线上售楼电话,楼盘项目全面介绍(包含楼盘简介,房价,价格,楼盘地址,户型图,交通规划,备案价,项目配套,楼盘详情,售楼处电话,最新消息,最新详情,周边配套,最新进展等详情咨询)
黄浦·人民广场【海玥黄浦源】建面约197~660㎡高层/别墅!总价约
2300万起!直接认购!线上预约!
海玥黄浦源是由上海建工集团其下海玥地产投资建设,上海的超高层写字
楼上海中心,环球金融中心,金茂大厦都是由上海建工建设完成,上海建
工对超高层的建设有十足的建设经验,海玥黄浦源就是上海建工的神来
之笔。
同样金融中心城市香港,市中心的超高层建筑均价在40-50万/平,在黄
浦人民广场的海玥黄浦源均价在14.5万/平,部分特价房12.5万/平!
未来的升值潜力巨大。想看上海城市景观的,海玥黄浦源就是首选。
黄浦·人民广场 全新盘
真正的上海老牌市中心
【海玥黄浦源】
建面约197-600㎡高层3-5房户型
总价约2300万起 可直接认购
7号地块建面约220~660㎡别墅
均价24.82万/㎡ 总价约5000万起
样板间已开放 售楼处线上预约中

【海玥黄浦源】项目由1号和7号两个地块组成:
1号地块规划3栋超高层和1栋高层,最高达约165米。具体位置是西至成都北路、东至新昌路、南至新闸路、北至南苏州河路;7号地块规划为风貌别墅。


黄浦内环内、人民广场板块,上海建工集团“正黄浦”纯豪宅项目——【海玥·黄浦源】三期项目8、2号栋楼涵盖建面约94-402㎡多种户型,主力户型303平五房。
其中2#为超高层,北向可观小区绿化和苏河景观,高区可瞰三件套盛景。
户型图
建面约193、237㎡为类一梯一户设计,拥独立门厅;建面约303㎡ 标配2梯1户、私享梯厅,纯粹的大平层圈层!
303㎡细看下户型:
LDKB超大社交横厅,可组合中西厨、岛台/酒吧、传统中式餐厅等场景,容纳各种家庭活动;
L型转角环幕视野,纵览270°苏河景观;
5开间朝南,4卧朝南,双卧套房设计,南向超大采光面,让阳光和清风肆意流淌;
尤其主卧星级套房,配置独立衣帽间、书房,奢华主卫四分离,双台盆+淋浴区+大浴缸+智能马桶,私密性&奢适度无敌;
此外,多重收纳体系,更让家庭生活起居无限扩容!

建面约280㎡户型图▼

欢迎致电售楼处电话,专业一对一热情服务,让您用专业眼光去买房。
报名等销售电话确认后,请再前往现场
建面约236㎡户型图▼

建面约196㎡户型图▼

建面约275㎡户型图▼

建面约217㎡户型图▼

建面约217㎡户型图▼

建面约198㎡户型图▼

建面约95㎡户型图▼
建面约281㎡户型图▼

建面约237㎡户型图▼

建面约302㎡户型图▼

建面约193㎡户型图▼

欢迎致电售楼处电话,专业一对一热情服务,让您用专业眼光去买房。
报名等销售电话确认后,请再前往现场
建面约237㎡户型图▼
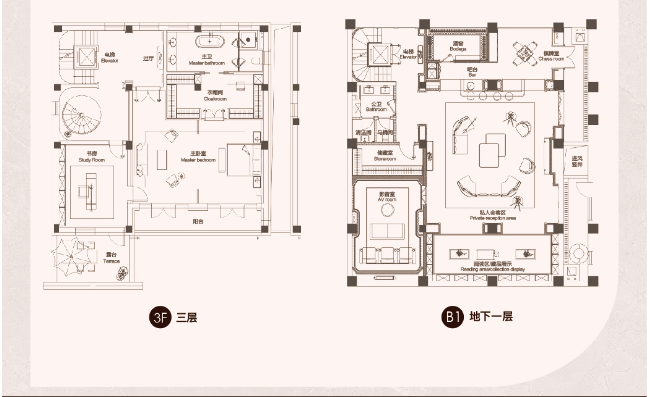
建面约400㎡户型图▼
建面约600㎡户型图▼
建面约400㎡样板间▼
7号地块为纯风貌别墅社区,将推出建面约330-550㎡人文别墅。由多幢二或三层组团式里弄建筑、里弄公馆、连续沿街市房组成。目前样板间已开放,可预约参观。
7号地块是难得一见的纯风貌别墅,没有一丝小高层和高层,不仅圈层更纯粹、更高端,业主的私密性也将得到严格保证。


欢迎致电售楼处电话,专业一对一热情服务,让您用专业眼光去买房。
报名等销售电话确认后,请再前往现场
52套别墅,主力建筑面积:
地上220-550平,上下5层
一层层高约3.6米,二层3.4米,二层3个套房
三层是主卧空间+露台
地下两层挑空厅
再下面一层是私家停️车库

52套别墅分布如下:
山海关叠加:8套180平的叠加别墅。
6套220平地上两层别墅
柏福里:10套330平的双拼别墅。
懋益里:28套330平双拼、360平类独栋、479平类独栋、550平类独栋。
厚德里:6套330平双拼、479平、类独栋、535平
大独栋:3套,地上660平!
均价24.82万/㎡,总价约5000万-2亿

海玥黄浦源·海玥坊人文别墅户型▼




【海玥黄浦源】坐落于静安黄浦的交界处,位置得天独厚,人民广场、南京西路、南京东路等繁华商圈,静安雕塑公园就在附近!北临苏州河,西侧是交通大动脉南北高架,享尽城市核心资源~

1#地块效果图如下▼

7#地块效果图如下▼
欢迎致电售楼处电话,专业一对一热情服务,让您用专业眼光去买房。
报名等销售电话确认后,请再前往现场
01.项目周边配套
【海玥黄浦源】地处黄浦静安交汇处,南临人民广场,北临苏州河,地理位置得天厚。地铁1号线新闸路站、13号线自然博物馆站、黄河路美食街、南京东路步行街、游艇码头、雕塑公园等都近在咫尺,是上海建工倾力打造的市中心品质小区。
项目地块示意图
交通配套方面:项目紧邻地铁1号线、13号线及南北高架,公共出行或自驾都十分便捷。
实景图
商业配套方面:项目周边有人民广场、南京东路、南京西路等高端集中商圈。
实景图
教育资源方面:项目周边有上海市黄浦区曹光彪小学、上海市格致初级中学等知名院校。
实景图
医疗资源方面:周边有上海市长征医院、上海市静安区北站医院、上海市静安区中心医院等。
实景图
项目一房一价表▼


欢迎致电售楼处电话,专业一对一热情服务,让您用专业眼光去买房。
报名等销售电话确认后,请再前往现场
黄浦·人民广场 全新盘
真正的上海老牌市中心
【海玥黄浦源】
建面约197-600㎡高层3-5房户型
总价约2300万起 可直接认购
7号地块建面约220~660㎡别墅
均价24.82万/㎡ 总价约5000万起
样板间已开放 售楼处线上预约中
声明:本文由入驻焦点开放平台的作者撰写,除焦点官方账号外,观点仅代表作者本人,不代表焦点立场。
