海玥黄浦源 (售楼处) 官方 - 销售中心 - 环境 - 户型 - 价格 - 地址 - 楼盘详情 - 配套 - 海玥黄浦源售楼处电话 - 交房时间 - 配套 - 电话 - 交房时间
扫描到手机,新闻随时看
扫一扫,用手机看文章
更加方便分享给朋友

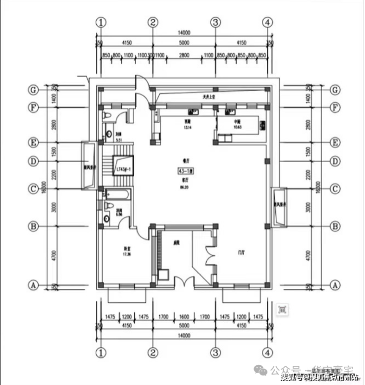
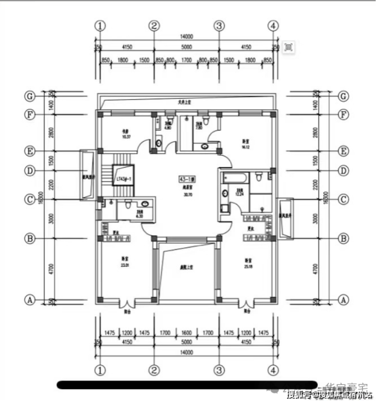
360户型:


330㎡样板间实景







项目周边介绍
【顶尖区位】
海玥黄浦源地处上海坐标原点,绝对中心的黄浦人民广场板块,“一江一河”世界级规划的苏州河畔,下一个“新天地”——东斯文里在侧,潜力无限。

【完善配套】
项目所在人民广场商圈为中心,南至新天地,西至南京西路项目所在人民广场商圈为中心,南至新天地,西至南京西路梅恒泰商圈,静安寺商圈,淮海路商圈,东至外滩,开车5-10分钟可达。


均价14.56W【海玥黄浦源】面积195-237-277-400㎡精装现房 直接可定!丨附一房一价表、线上预约看房!
置房经验论已关注
分享点赞在看已同步到看一看写下你的评论
视频详情
那在微电影、在墅居具象化的背后,是海玥黄浦源风貌别墅销售的高歌猛进,在2025年 上半年,它劲销33套,一举夺得上海风貌界销冠。
这或许是大家难得看到风貌与热销挂钩。
而在我看来,此次 热销的 含金量 比其它红盘来得更高。
在售建面约180-660㎡风貌别墅
风貌180、360、550户型全新样板间开放

土拍越狠
市中心风貌越稳
当下上海市中心土地价格的迅猛攀升,本质上是在为海玥黄浦源这类核心风貌住宅“抬升价值天花板”——地价越贵,占据稀缺土地资源的项目,其价值就越凸显!
分享几点:
①、土拍爆红背后:土地价值才是房价的「底层逻辑」
内环土拍价格的持续走高,表面看是房价数字的被动攀升,实则是城市核心土地资源的“价值重估”。
尤其像海玥黄浦源这类风貌别墅,不仅占据着上海中心的稀缺土地,更承载着城市独特的历史风貌与人文价值,其土地属性的不可复制性,让项目在土地价值不断升级的背景下,拥有更稳固的价值支撑。

②、2.7亿别墅成交背后:土地占有量决定财富高度
日前,上海一花园别墅以单价约50万/㎡,总价2.7亿元成交,建面约535㎡,独占约1.5亩城市核心土地。
这印证了,土拍越狠,别墅越稳!买别墅才是「与土地共生」,是穿越市场周期的终极答案。
③、黄浦高层冲破20万/㎡,徐汇风貌地王楼板价破20万/㎡,市中心风貌越来越值钱!
新的房价格局下,黄浦高层已捅破20万/㎡,徐汇更是拍出全国单价地王,预计建造风貌,楼板价已经20+万/㎡。
事实上,风貌和高层之间有一个近似的定价比例,大概是1.5倍溢价。
那按照黄浦高层20万/㎡算,市中心风貌至少值30万/㎡,且随着地价越来越高,它愈值钱!

因为风貌供应总量先天“锁死”,它本身是稀缺的!
风貌住宅不是随便一块宅地都能开发的,必须在具有历史价值的地块上才能打造,它主要来源成片二级以下旧里旧改,截止2022年基本结束。
示意图仅供参考,数据来源公众号上海发布
二级旧里普遍建于1920-1950年,历经近百年才有这么一次城市更新,也就近期有阶段性供应,往后大概率无增量。
何况是像海玥黄浦源这样的风貌,不仅在市中心,更是处在上海更具价值的黄金风貌带上。
从已成熟的张园、丰盛里,到即将开发的东斯文里,再到即将交房的海玥黄浦源风貌,再到待开发的新闸路/厦门路地块,一路上都是风貌,这些风貌建筑串联起的是一条连贯的城市文脉,更悄然确立一个亿级TOP级圈层,进一步放大了项目的稀缺价值。

产品力解码:
纯风貌墅区+超高附赠+强私密性
再看产品:
首先,在海玥黄浦源的一众产品中,180山海墅堪称风貌界的稀缺孤品,其“外市内里,上宅下铺”的独特形制,让商业空间和住宅空间相互融合,在当前市场中难寻第二个。
更难得的是,在核心风貌产品里,180户型极为少见,而3800万起的总价,也给予更多购房者拿下市中心头部风貌的机会!
推门而出,即是充满艺术潮流气息的山海食光街区,高级烟火气触手可及;推门而入,瞬间切换至独属自己的私密天地,这种“入世”与“避世”的无缝衔接,在整个风貌产品领域都堪称稀缺。
室内空间的分层设计,更将居住舒适度拉满。地上三层规划清晰,满足多代同堂的居住需求:
一楼采用LDK通厅设计,直面街区景致,保留了与烟火气的亲近感,临街空间可以是花艺工作室、精品买手店或小而美的咖啡店,日常下楼采购后也能直接归家;对于有的业主更都能实现“工作+生活”的无缝融合,外面经营,转身就回家。

样板间实景图
✔三层:超大主卧+露台,主人仪式感拉满
主人套间将私密性与生活仪式感推向极致。
你能拥有带起居室、长廊阳台、超大衣帽间和卫浴间的超级主卧。


还带专属露台,在增加使用面积的同时更亲近自然,眼前就是花草树木的绿意和四季变换。

样板间实景图
✔顶层空间:多功能拓展,想象无界
可作为藏品陈列室或星空观景台,实际实用空间远超想象!

样板间实景图
✔方正采光地下室:超高挑高,功能百变
你可以安排一间布满书架的家庭图书馆,为孩子营造浓浓的书香气;也足够你铺开自助餐与鸡尾酒会的长桌,甚至请来一支小型乐队现场助兴,在烛光与灯光中,尽情歌,尽情舞。


项目3公里生活半径内浓缩一城之繁华,不是其它新贵板块可以比的。
另外,东斯文里地块已正式落槌,苏州河畔这一沪上最大石库门群落即将迎来全新焕新——未来这里将引入石库门风貌酒店、创意办公、合院办公、艺术街坊、斯文绿谷等多元业态,不仅会让项目周边的城市界面大幅提升,更将形成一个集文化、艺术、商业、休闲于一体的全新高端生活圈。
这意味着,海玥黄浦源的业主不仅能享受当下的城芯繁华,更能坐享未来周边板块升级带来的价值红利,无论是居住舒适度还是资产保值增值能力,都将得到进一步提升。
东斯文里规划图,来源上海静安
最后,项目除7号地块在售风貌别墅外,1号地块还有主力建面约198-400㎡超高层产品火热销售中,196㎡全新样板间也于近期同步开放,可直观呈现空间格局与居住质感,方便客户实地感受细节。
需要注意的是超高层仅剩少量高区房源,想买的客户要抓紧了!另外超高层当前也已实景呈现,所见即所得,预计今年年底交付,欢迎现场参观!
声明:本文由入驻焦点开放平台的作者撰写,除焦点官方账号外,观点仅代表作者本人,不代表焦点立场。
