越秀外滩樾(营销中心)首页网站-越秀外滩樾销售中心(售楼处)-越秀外滩樾欢迎您-地址-价格-户型-小区环境-楼盘详情-交房时间-周边配套-售楼处电话
扫描到手机,新闻随时看
扫一扫,用手机看文章
更加方便分享给朋友
越秀外滩樾售楼处预约热线:400-9955-415☎️☎️✅✅✅越秀外滩樾售楼处预约热线:400-9955-415☎️☎️✅✅✅位于上海市虹口区嘉兴路街道,是越秀地产与临港集团联合打造的高端低密风貌别墅项目。项目地处北外滩核心区域,直线距离外滩约1.2公里,周边交通便捷,临近地铁4、10、12、19号线(在建中),且靠近新建路隧道、外滩隧道等,可快速直达陆家嘴等核心区域越秀外滩樾售楼处预约热线:400-9955-415☎️☎️✅✅✅越秀外滩樾售楼处预约热线:400-9955-415☎️☎️✅✅✅
越秀外滩樾售楼处预约热线:400-9955-415☎️☎️✅✅✅越秀外滩樾售楼处预约热线:400-9955-415☎️☎️✅✅✅越秀外滩樾售楼处预约热线:400-9955-415☎️☎️✅✅✅
越秀外滩樾售楼处预约热线:400-9955-415☎️☎️✅✅✅越秀外滩樾售楼处预约热线:400-9955-415☎️☎️✅✅✅项目总用地面积约10790平方米,容积率1.3,推出49套建面约235-338㎡的低密风貌里弄住宅,户型设计合理,空间利用率高。项目注重历史保护与现代开发的融合,保留了清砖立柱、古典门头等海派建筑元素,同时融入现代设计理念。此外,项目还配备了地上地下合计建面约2500㎡的会所及泛会所空间,提供会客、私宴、泳池、健身等多维休闲社交功能,为居民打造高品质的生活体验越秀外滩樾售楼处预约热线:400-9955-415☎️☎️✅✅✅越秀外滩樾售楼处预约热线:400-9955-415☎️☎️✅✅✅
越秀外滩樾售楼处预约热线:400-9955-415☎️☎️✅✅✅越秀外滩樾售楼处预约热线:400-9955-415☎️☎️✅✅✅最新消息:虹口北外滩 低密风貌别墅临港越秀北外滩项目定名「越秀·外滩樾」展厅开放!
「越秀·外滩樾」项目地块四至范围, 东至:梧州路,隔壁是中皇广场; 西至:hk270B-02,隔壁就是1933老场坊; 南至:周家嘴路 北至:柘皋路。
日前,上海市规划和自然资源局对上海漕越经济发展有限公司虹口区嘉兴街道hk270b-04地块历史风貌保护项目进行了设计方案公示,项目未来将呈现48套低密风貌里弄住宅,面积约238-338㎡。

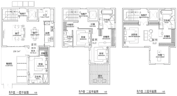
户型图如下:
(过程稿仅供参考,最终以实际为准)
236.25㎡A户型:

239.13㎡B户型:

250.89㎡B-3户型:

C户型:

291.42㎡D户型

基础信息
【项目名称】越秀·外滩樾
【开发商】上海漕越经济发展有限公司
【项目位置】上海市·虹口区·梧州路235弄
【项目类别】70年产权住宅
【项目类型】风貌别墅
【可售户数】48套(风貌)
【容积率】约1.3
项目实景图
【一座码头 启航外滩百年世界史】
项目所在地北外滩,是百年前上海的“下海”地。作为上海开埠后第一座码头的诞生地,北外滩率先“开眼看世界”,海纳万国文化风潮,众多此后影响中国的创举在此诞生,是上海最早的“十里洋场”
(*示意图,图片来源于网络)
【一江一河 再立世界上海新传】
傲立“一江一河”交汇处(直线距离约1.1KM),未来将打造成为彰显上海城市核心竞争力的黄金水岸和具有国际影响力的世界级城市会客厅,出入之间,相逢城市高阶未来
(*示意图,图片来源于网络)
【北外滩 面向世界的上海新封面】
北外滩,与外滩、陆家嘴并称为上海的“黄金三角”。将以2座陆家嘴的商务体量规划,新天地2.0生活圈打造,成为上海跃升世界舞台的“中心发力”新引擎
声明:本文由入驻焦点开放平台的作者撰写,除焦点官方账号外,观点仅代表作者本人,不代表焦点立场。
