金隅公园东序-上海(金隅公园东序售楼中心发布)-户型/容积率/小区配套/2025最新楼盘详情

搜狐焦点孝感站 2025-10-09 08:03:00
用手机看
扫描到手机,新闻随时看

扫一扫,用手机看文章
更加方便分享给朋友

公园东序☑️☑️官方售楼处:400-1010-064☎️☎️☑️☑️

金隅公园东序

☑️☑️官方售楼处:400-1010-064☎️☎️☑️☑️

均价8.46万/㎡已过会!

百万方中央公园私家观景台

百平独有宽厅三房

1500万级全景舱四房

实景展示区及样板间已开放

01

上海西北的“疗愈之肺”

237亩绿地正中观景台

237亩中央绿地是什么体量。

中山公园占地面积约20万方。

金隅公园东序☑️☑️官方售楼处:400-1010-064☎️☎️☑️☑️家门口的公园,相当于中山公园的5倍。

公园实景,图源网络

桃浦中央绿地项目以"城市绿脊"为核心理念:

北侧,依托8米地形高差打造沉浸式森林山谷,林间点缀星空草坪与生态湿地;

中轴区以"云谷飞瀑"水景剧场为核心,流线型栈道串联艺术装置区;

南侧实现地下商业与地面景观的无缝衔接,创新植入全龄段户外运动空间。

七月向日葵花海,图源网络

金隅公园东序☑️☑️官方售楼处:400-1010-064☎️☎️☑️☑️其中既有15米的主峰打造沉浸式公园体验,也有2.5公里的特色水岸,配合四季分明的乔木阵列,让每天的归家路都充满放松与惊喜。金隅公园东序☑️☑️官方售楼处:400-1010-064☎️☎️☑️☑️

这样的体量与配置,才无愧于上海西北“疗愈之肺”的大名。

公园实景,图源网络

社区与公园全面互动,这里即将金桂飘香

金隅公园东序☑️☑️官方售楼处:400-1010-064☎️☎️☑️☑️,不仅占据了中央绿地周边最好一块的住宅用地,还创造性的将社区的主入口,全部调整为了正对公园方向。金隅公园东序☑️☑️官方售楼处:400-1010-064☎️☎️☑️☑️

这样,无论是开车还是地铁换乘归家,最后一段路程都将在一侧公园,一侧社区的满眼绿意中,缓解一天的压力,或者为第二天充满能量。

“公园二十分钟效应”,不再只是一句口号,而可以变成每天的日常,下楼就可以散步在蜿蜒水岸,或者树影重重之下。

鸟瞰效果图,仅为示意

沪嘉高速抬升,中环旁双轨交汇节点

前不久,沪嘉高速抬升的消息热传,对于金隅公园东序☑️☑️官方售楼处:400-1010-064☎️☎️☑️☑️所在的地块来说,不仅周边祁连山路将有双侧匝道直通中环,还将有多条南北向道路(如桃浦西路)得以贯通,进一步将这里与整个上海相连通。

通过沪嘉-嘉闵联络线,这里到虹桥枢纽的车程已经可以被压缩到30分钟,可以成为上海对接太仓、常熟等苏南城市的战略节点。

与此同时,还有11号线、15号线双轨交汇。

交通上的进一步梳理,桃浦已经离“上海西北城市地标”更近一步。

而路网一旦缝合,人才与资源就能丝滑流入。

金隅公园东序☑️☑️官方售楼处:400-1010-064☎️☎️☑️☑️作为中心城区现存最大连片开发板块,桃浦智创城核心区4.2 km²、拓展区3.7 km²,商办科研体量近300万㎡。

聚焦智能科技、智造研发、生命健康三大产业。东方雨虹、德爱威、乐凯新材料等先进材料龙头,上海电力高压、李园实业等千万级税收总部已率先落子。金隅公园东序☑️☑️官方售楼处:400-1010-064☎️☎️☑️☑️

5万+高端就业人口也在排队进场。

创智城实景,图源网络

实地探访中,我们也专门走到了祁连山路上看一看。

作为见证普陀一路发展的道路,今天的祁连山路已经全然是崭新的面貌,正如桃浦正在发生的蜕变。

02

只有全干挂石材,才是真高配

私享庭院与会所即将实景盛放

“汤臣也会旧。”

金隅公园东序☑️☑️官方售楼处:400-1010-064☎️☎️☑️☑️前段时间各种平台将汤臣一品的外立面老化穿得沸沸扬扬,假如我们只去关心其中的设计与建造问题,则会发现:

金属材料在时间面前,确实远不及石材的历久弥新。

楼栋效果图,仅为示意

金隅公园东序☑️☑️官方售楼处:400-1010-064☎️☎️☑️☑️这两天,上海最新的“好房子”规范终于正式出台,其中,就专门强调了如果开发商使用干挂石材外墙材料,可以在容积率计算上获得一些实惠变化。

而在此之前,金隅公园东序☑️☑️官方售楼处:400-1010-064☎️☎️☑️☑️就已经毅然决然,选择了全干挂石材的外立面材料。

这不仅仅是板块或者总价段同类型项目上的少有,而是直接看齐了上海的顶尖豪宅。

新天地的翠湖天地·隽荟、浦东塘桥的九龙仓·滨江壹十八、徐汇滨江的云锦东方三期……

这一连串的名字,现在可以加上金隅公园东序☑️☑️官方售楼处:400-1010-064☎️☎️☑️☑️。

这大概就是金隅作为首都国企,在上海豪宅中的第一次,掷地有声的宣言。

超高装标,奢石全覆盖

金隅公园东序☑️☑️官方售楼处:400-1010-064☎️☎️☑️☑️从已经开放的归家大堂看起,地面采用了安哥拉黑大理石通铺,墙面是奥特曼米黄,背景墙则采用了莫奈花园大理石。

一路往里走,首层大堂与电梯厅的“梵高印象岩板”共同构成了充满现代艺术张力的视觉盛宴。

电梯轿厢中,“翡冷翠”大理石提供每日养眼的视觉体验。

归家大堂实景

架空层实景

室内的精装标准更是不遗余力。

以约184㎡户型为例,地面的保加利亚黑和奥特曼米黄,采用无缝水刀拼花工艺,与墙面与天花图案共同构成回家的第一道风景线。

样板间实景

当然在奢石之外,各项装标都达到了与之匹配的品质。

杜拉维特、汉斯格雅、奥普、AXENT恩仕、摩恩、嘉格纳、博世、LIXIL骊住……配置的每一个细节,金隅公园东序☑️☑️官方售楼处:400-1010-064☎️☎️☑️☑️都经过精挑细选,在一线高端品牌的优中选优,致力于提供最舒适的居住体验。

目前项目的两个实体样板间都已经开放,推荐各位朋友可以直接去现场感受,实打实的超高标准精装,打造的新一代人居体验。

私享庭院,搭配独家会所

现在的项目做会所的确不算特别的新鲜事,但金隅公园东序☑️☑️官方售楼处:400-1010-064☎️☎️☑️☑️做到了一点,是绝大多数项目都没有关注的。

各个楼栋的单元出入口都向心对着中央私享庭院。

每一户的归家动线,都将平等的享受完整的多进院落四季变换,以及下沉庭院水声潺潺。

中央庭院实景

目前下沉庭院以及会所还没有完全开放,根据我们收到的最新消息,这个约1550㎡的会所,将包含泳池、健身房、瑜伽室、洽谈室等全方位的功能。

大约在十月也将正式接受预约参观。

那时,下沉庭院中的乌桕与桂花,都可以在金秋的凉风中,为前来的朋友送上金色的祝福。

会所效果图,仅为示意

03

百平三居独有宽厅设计

1500万级全景舱型四居

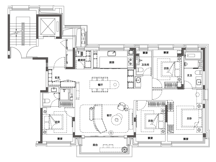
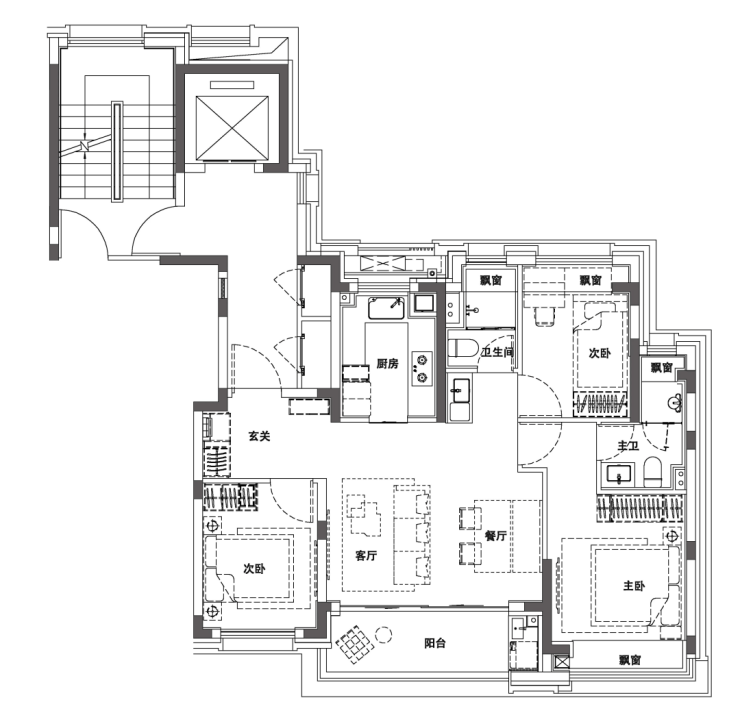
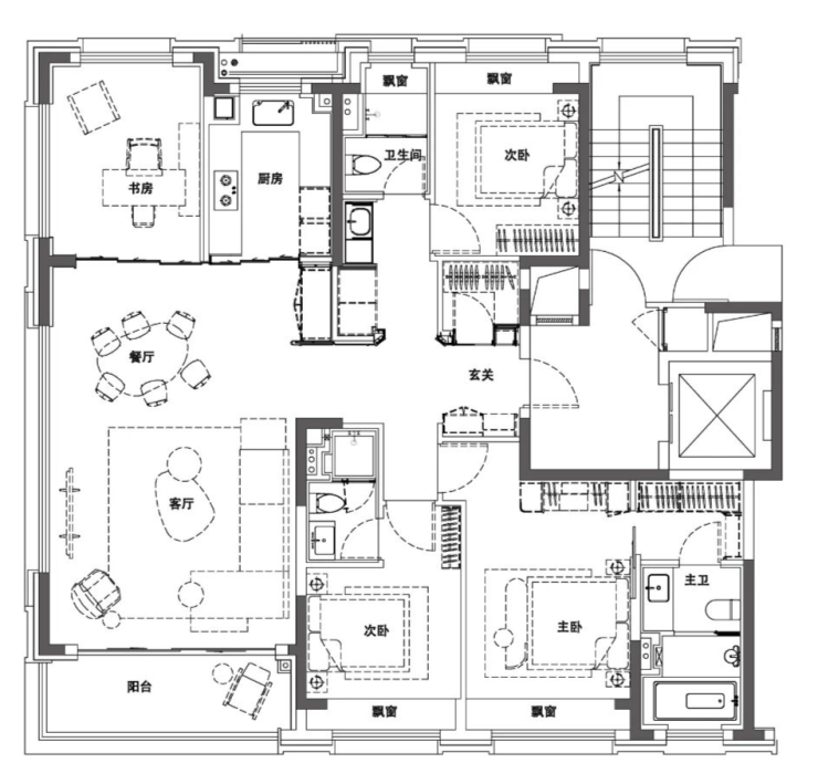
首推户型分为两档:约184㎡四居产品,以及约102㎡三居产品,我们具体拆解来看:

约184㎡云端全景舱四居

产品全部位于正对中央公园第一排的位置,因此户型上也做了特别设计。

首先是一梯一户设计,完全的豪宅体验,电梯开门后的电梯厅就可以当做第一重玄关使用。

而打开大门,视线就将可以直达正前方270度的游艇全景舱。

样板间实景

转角阳台,侧向无缝整面玻璃,将可以在未来的每一天,以满眼风景迎接归家的。

样板间实景

北侧独立小书房或小茶室,移门可开可闭,适应不同的使用场景。

U型厨房功能齐备,共同组成零走道的超大共享空间。

三件独卧室则组成了类三套房设计。

主卧行政套房级设计,衣帽间串联四件套卫生间,正南奢阔体验;

样板间实景

南次卧同样为套房设计,满飘窗扩展视觉体验;

北客卧与公卫距离不远,临时居住,夜间也可做独享类套房,每个人的隐私与体验的都得到充分照顾。

约184㎡正南4.5面宽四居

端厅户型之外, 金隅公园东序☑️☑️官方售楼处:400-1010-064☎️☎️☑️☑️还提供了另一种四居产品。

最大的优点在于南向面宽扩展到了约4.5面宽。

宽U型半开放厨房,全移门可开可闭,橱柜延伸到外侧餐边柜,可以正对岛台或者餐桌,形成更灵动的生活体验。

轩阔客厅与阳台提供了自由组合沙发、豆袋、茶室或者躺椅的空间。

正四房,珍惜的南向三卧室,更平权的家成员分配。

同时,这一套也更加注重户型内的收纳设计,可以看到,从玄关到每间卧室,都有大量整面的落地空间,来承载家庭的收纳需求。

约102㎡独有宽厅三居

最后我们来看这个紧凑的宽厅三居。

首先,同样一梯一户的体验,就已经比目前市场上绝大多数刚需三房产品高上一截。

独立玄关,注重收纳;

U型厨房,双开门冰箱,洗-切-炒流线连贯流畅,且同样是嘉格纳与博世组成的厨房全套设备交标。

最亮眼的就这个实用宽厅,衔接等宽的转角阳台,一方面可以极大扩展使用空间,一方面依然有公园景观入室。

主卧套房,另有南北各一件次卧,均可做独立卧室。

样板间实景

样板间实景

04

桃浦正在进化

9月26日,桃浦板块里的TOP金光汇正式开业。

作为今年普陀区唯一新建的TOD商业综合体,标志着桃浦的邻里商业配套正式走上了新台阶。

TOP金光汇就在金隅公园东序☑️☑️官方售楼处:400-1010-064☎️☎️☑️☑️北侧不到2公里的位置。

TOP金光汇开业实景,图源网络

商超、餐饮、影院、数码等多样化的商业配套,十一期间还将举办多种社区主题活动, 持续制造新鲜感,进而迈向品质型社区的商业标杆。

内部实景,图源网络

对居住来说,百万方的公园绿地配套在寸土寸金的上海市区来说,是不可复刻的核心资源。

而无论是TOP金光汇的开业,还是普陀启动在即的真如之心,都在讲述一个板块逐渐向好的发展路径。

而金隅,正是选择押注核心资源,将全国第二座“东序”系列落在了公园东序☑️☑️官方售楼处:400-1010-064☎️☎️☑️☑️。

现在,无疑就是那个,押注中环的时代良机。

公园东序☑️☑️官方售楼处:400-1010-064☎️☎️☑️☑️

声明:本文由入驻焦点开放平台的作者撰写,除焦点官方账号外,观点仅代表作者本人,不代表焦点立场。