海玥黄浦源售楼处2025官方首页网站|上海海玥黄浦源售楼处电话|在售户型|小区配套|最新价格|周边详情|容积率|楼盘详情
扫描到手机,新闻随时看
扫一扫,用手机看文章
更加方便分享给朋友
海玥黄浦源预约热线☎:400-8080-420✅✅
【海玥黄浦源】项目由1号和7号两个地块组成:
1号地块规划3栋超高层和1栋高层,最高达约165米。具体位置是西至成都北路、东至新昌路、南至新闸路、北至南苏州河路;7号地块规划为风貌别墅。

海玥黄浦源预约热线☎:400-8080-420✅✅

海玥黄浦源预约热线☎:400-8080-420✅✅
黄浦内环内、人民广场板块,上海建工集团“正黄浦”纯豪宅项目——【海玥·黄浦源】三期项目8、2号栋楼涵盖建面约94-402㎡多种户型,主力户型303平五房。
海玥黄浦源预约热线☎:400-8080-420✅✅
其中2#为超高层,北向可观小区绿化和苏河景观,高区可瞰三件套盛景。
海玥黄浦源预约热线☎:400-8080-420✅✅
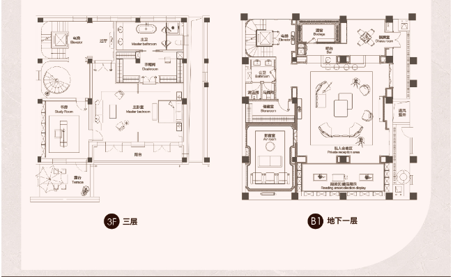
户型图
建面约193、237㎡为类一梯一户设计,拥独立门厅;建面约303㎡ 标配2梯1户、私享梯厅,纯粹的大平层圈层!
303㎡细看下户型:
LDKB超大社交横厅,可组合中西厨、岛台/酒吧、传统中式餐厅等场景,容纳各种家庭活动;
L型转角环幕视野,纵览270°苏河景观;
5开间朝南,4卧朝南,双卧套房设计,南向超大采光面,让阳光和清风肆意流淌;
尤其主卧星级套房,配置独立衣帽间、书房,奢华主卫四分离,双台盆+淋浴区+大浴缸+智能马桶,私密性&奢适度无敌;
此外,多重收纳体系,更让家庭生活起居无限扩容!
建面约280㎡户型图▼

海玥黄浦源预约热线☎:400-8080-420✅✅
建面约236㎡户型图▼

海玥黄浦源预约热线☎:400-8080-420✅✅
建面约196㎡户型图▼

海玥黄浦源预约热线☎:400-8080-420✅✅
建面约275㎡户型图▼

海玥黄浦源预约热线☎:400-8080-420✅✅
建面约217㎡户型图▼

海玥黄浦源预约热线☎:400-8080-420✅✅
建面约217㎡户型图▼

海玥黄浦源预约热线☎:400-8080-420✅✅
建面约198㎡户型图▼

海玥黄浦源预约热线☎:400-8080-420✅✅
建面约95㎡户型图▼

海玥黄浦源预约热线☎:400-8080-420✅✅
建面约281㎡户型图▼

海玥黄浦源预约热线☎:400-8080-420✅✅
建面约237㎡户型图▼

海玥黄浦源预约热线☎:400-8080-420✅✅
建面约302㎡户型图▼

海玥黄浦源预约热线☎:400-8080-420✅✅
建面约193㎡户型图▼

海玥黄浦源预约热线☎:400-8080-420✅✅
建面约237㎡户型图▼

海玥黄浦源预约热线☎:400-8080-420✅✅
建面约400㎡户型图▼
海玥黄浦源预约热线☎:400-8080-420✅✅
建面约600㎡户型图▼
海玥黄浦源预约热线☎:400-8080-420✅✅
建面约400㎡样板间▼
海玥黄浦源预约热线☎:400-8080-420✅✅
海玥黄浦源预约热线☎:400-8080-420✅✅
海玥黄浦源预约热线☎:400-8080-420✅✅
海玥黄浦源预约热线☎:400-8080-420✅✅
海玥黄浦源预约热线☎:400-8080-420✅✅
7号地块为纯风貌别墅社区,将推出建面约330-550㎡人文别墅。由多幢二或三层组团式里弄建筑、里弄公馆、连续沿街市房组成。目前样板间已开放,可预约参观。
7号地块是难得一见的纯风貌别墅,没有一丝小高层和高层,不仅圈层更纯粹、更高端,业主的私密性也将得到严格保证。

海玥黄浦源预约热线☎:400-8080-420✅✅

海玥黄浦源预约热线☎:400-8080-420✅✅
52套别墅,主力建筑面积:
地上220-550平,上下5层
一层层高约3.6米,二层3.4米,二层3个套房
三层是主卧空间+露台
地下两层挑空厅
再下面一层是私家停️车库
52套别墅分布如下:
山海关叠加:8套180平的叠加别墅。
6套220平地上两层别墅
柏福里:10套330平的双拼别墅。
懋益里:28套330平双拼、360平类独栋、479平类独栋、550平类独栋。
厚德里:6套330平双拼、479平、类独栋、535平
大独栋:3套,地上660平!
均价24.82万/㎡,总价约5000万-2亿

海玥黄浦源预约热线☎:400-8080-420✅✅
海玥黄浦源·海玥坊人文别墅户型▼

海玥黄浦源预约热线☎:400-8080-420✅✅

海玥黄浦源预约热线☎:400-8080-420✅✅

海玥黄浦源预约热线☎:400-8080-420✅✅

海玥黄浦源预约热线☎:400-8080-420✅✅
【海玥黄浦源】坐落于静安黄浦的交界处,位置得天独厚,人民广场、南京西路、南京东路等繁华商圈,静安雕塑公园就在附近!北临苏州河,西侧是交通大动脉南北高架,享尽城市核心资源~

海玥黄浦源预约热线☎:400-8080-420✅✅
1#地块效果图如下▼
海玥黄浦源预约热线☎:400-8080-420✅✅
海玥黄浦源预约热线☎:400-8080-420✅✅

海玥黄浦源预约热线☎:400-8080-420✅✅
7#地块效果图如下▼
海玥黄浦源预约热线☎:400-8080-420✅✅
海玥黄浦源预约热线☎:400-8080-420✅✅
海玥黄浦源预约热线☎:400-8080-420✅✅
海玥黄浦源预约热线☎:400-8080-420✅✅
海玥黄浦源预约热线☎:400-8080-420✅✅
海玥黄浦源预约热线☎:400-8080-420✅✅
海玥黄浦源预约热线☎:400-8080-420✅✅
海玥黄浦源预约热线☎:400-8080-420✅✅
海玥黄浦源预约热线☎:400-8080-420✅✅
【海玥黄浦源】地处黄浦静安交汇处,南临人民广场,北临苏州河,地理位置得天厚。地铁1号线新闸路站、13号线自然博物馆站、黄河路美食街、南京东路步行街、游艇码头、雕塑公园等都近在咫尺,是上海建工倾力打造的市中心品质小区。
项目地块示意图

海玥黄浦源预约热线☎:400-8080-420✅✅
交通配套方面:项目紧邻地铁1号线、13号线及南北高架,公共出行或自驾都十分便捷。
海玥黄浦源预约热线☎:400-8080-420✅✅
商业配套方面:项目周边有人民广场、南京东路、南京西路等高端集中商圈。
海玥黄浦源预约热线☎:400-8080-420✅✅
实景图
教育资源方面:项目周边有上海市黄浦区曹光彪小学、上海市格致初级中学等知名院校。
实景图
海玥黄浦源预约热线☎:400-8080-420✅✅
医疗资源方面:周边有上海市长征医院、上海市静安区北站医院、上海市静安区中心医院等。
实景图
海玥黄浦源预约热线☎:400-8080-420✅✅

海玥黄浦源预约热线☎:400-8080-420✅✅

声明:本文由入驻焦点开放平台的作者撰写,除焦点官方账号外,观点仅代表作者本人,不代表焦点立场。
