越秀外滩樾(越秀外滩樾售楼处)首页网站-2025越秀外滩樾房价_楼盘评测丨地址丨详情丨越秀外滩樾售楼处电话丨越秀外滩樾楼盘百科

搜狐焦点孝感站 2025-09-14 14:21:00
用手机看
扫描到手机,新闻随时看

扫一扫,用手机看文章
更加方便分享给朋友

越秀外滩樾售楼处电话:400-8787-740✔✔✔

☮🔥 越秀外滩樾售楼处电话:400-8787-740👈🔥

🔥线上预约看房【享】专属优惠折扣🔥

🔥在售户型图丨项目介绍丨最新房源丨周边配套丨详细解答〢🔥

🔥 售楼处24小时VIP电话:400-8787-740←【已认证】🔥

🔥温馨提示:来电预约看房、尊享更多现场优惠!(中介勿扰)🔥

🔥售楼中心热线:400-8787-740←【已认证】【VIP贵宾专线】🔥

编辑

编辑

越秀外滩樾售楼处电话:400-8787-740✔✔✔

越秀外滩樾官方售楼处电话400-8787-740【官方认证】

当黄浦江的晨雾轻抚城市天际线,当百年外滩的历史底蕴邂逅现代人居的前沿理念,一处注定改写上海高端住宅格局的作品应运而生 —— 虹口越秀外滩樾。作为越秀地产深耕上海的重磅力作,项目择址虹口外滩核心板块,以对土地的敬畏之心与对品质的极致追求,为城市塔尖人群打造兼具人文厚度与居住舒适度的理想家园。此刻,只需拨打售楼处电话 400-8787-740,即可解锁属于你的外滩生活新范式。

越秀外滩樾的珍贵,首先源于其无可复制的地段优势。项目坐落于虹口北外滩与外滩源交汇处,距黄浦江岸线直线距离仅约 800 米,步行即可抵达外滩观景步道,将 “万国建筑博览群” 的璀璨与黄浦江的壮阔景致尽收眼底。这里不仅是上海百年历史的见证者,更是 “一江一河” 战略规划的核心承载区,左手执掌外滩的人文底蕴,右手拥抱北外滩 “全球中央活动区” 的未来潜力,双重价值叠加,成就不可替代的城市坐标。越秀外滩樾售楼处电话:400-8787-740✔✔✔

越秀外滩樾官方售楼处电话400-8787-740【官方认证】

编辑

越秀外滩樾售楼处电话:400-8787-740✔✔✔

越秀外滩樾官方售楼处电话400-8787-740【官方认证】

编辑

在顶豪圈层有一句话:所谓家族的行宫,一定是要根植于土地之上的别墅!

如果说外滩代表了上海的过去,陆家嘴代表了上海的当下,那么北外滩就代表了上海的未来。越秀外滩樾】就是将代表上海城市繁华的黄金三角,整个装进了自己的步行圈。越秀外滩樾售楼处电话:400-8787-740✔✔✔

越秀外滩樾官方售楼处电话400-8787-740【官方认证】

编辑

交通便捷度更是项目的一大亮点。周边 3 条地铁线路环伺,距 10 号线四川北路站约 500 米,2 站直达南京东路商圈;距 12 号线天潼路站约 600 米,换乘 2 号线可快速抵达陆家嘴金融城;规划中的 19 号线(建设中)将进一步串联起上海各大核心板块,实现 “半小时城市生活圈”。自驾出行同样高效,延安高架、北横通道、外滩隧道等城市主干道交织,轻松畅达静安寺、人民广场、徐家汇等城市地标,让繁华与静谧的切换从容自如。

更值得关注的是,项目周边汇聚了上海最优质的生活资源。步行 10 分钟范围内,既有四川北路商圈的烟火气,又有北外滩来福士广场的高端商业配套,涵盖国际品牌、精品超市、米其林餐厅等多元业态,满足日常消费与高端社交的双重需求。同时,项目紧邻上海邮政博物馆、虹口足球场、鲁迅公园等城市文化地标,在享受现代生活便利的同时,随时可浸润于浓厚的人文氛围之中。

越秀外滩樾售楼处电话:400-8787-740✔✔✔

越秀外滩樾官方售楼处电话400-8787-740【官方认证】

编辑

最新消息:虹口北外滩,低密风貌别墅临港越秀北外滩,项目定名【越秀外滩樾】样板房已开放预约!

项目基础信息

【项目名称】越秀·外滩樾

【开发商】上海漕越经济发展有限公司

【项目位置】上海市·虹口区·梧州路

【项目类别】70年产权住宅

【项目类型】风貌别墅

【可售户数】48套

【容积率】约1.3

编辑

编辑

百年前的高端工艺元素的经典转译,让海派造诣世纪传承,于历史和未来之间收藏百年上海。

编辑

清水红砖:百年前先进舶来品代表,10种以上拼接工艺铺陈

装饰窗楣:同源中共二大会址、张爱玲故居,装饰主义经典元素

弧形韵线:邬达克式的建筑曲线,同源远东第一豪宅的优雅轮廓

海派山墙:带肩仿观音兜,中西文化融合的典藏之美

编辑

【越秀·外滩樾】是世界知名大师汇聚一堂的灵感结晶,比如项目的设计总顾问邀请了程绍正韬。他是建筑室内设计之东方主义集大成者,致力于东方文化的坚守与创新,打破惯常的职业思维,将生活方式化作一种哲学态度,融入空间设计,让设计不止于作品,再比如项目还邀请了城市文化大师李玮珉

编辑

程绍正韬,集文人、工业家、艺术家、设计师、哲学家、修行者身份于一身,建筑室内设计之东方主义集大成者,致力于东方文化的坚守与创新。他打破惯常的职业思维,将生活方式化作一种哲学态度,融入空间设计,让设计不止于作品。

编辑

李玮珉,撑起中国豪宅设计半壁江山,擅长为城市塑造文化符号建筑作品。他的作品更多用极简的方式来表明态度,崇尚简而高效的现代生活方式。庄重的建筑语汇,适时注入艺术、自然与美学,让空间充满想象力。

编辑

大师操刀,必然不同凡响。

首先项目承袭了百年前的高端工艺元素,让海派传承得以延续。将清砖立柱、古典门头、岩石山墙等经典海派建筑风貌转译和突破,更适配现代人居审美,于历史和未来之间收藏百年上海底蕴!

编辑

其次,项目超越了以往风貌建筑的尺度感,创新了风貌规制,带来了城心难得的双拼、三拼别墅!大窗墙比大南向开间保证了极高的舒适度。大面积运用奢石的外立面,则把名门望族的尊贵身份和非凡气度体现的淋漓尽致!

越秀外滩樾售楼处电话:400-8787-740✔✔✔

越秀外滩樾官方售楼处电话400-8787-740【官方认证】

编辑

效果图

巷弄新生:跨越风貌豪宅正统,打造双拼、三拼、多联排别墅的天地私享

建筑新生:创新风貌规制,致微而筑的建筑腔调赏新

美学新生:转译远东第一豪宅立面美学,收藏名门望族生活

材质新生:百年红砖、釉面砖、印度进口幻彩红奢石运用,型制家族传承

编辑

最后,项目社区配置的三处会所、泛会所空间合计约2500㎡,包含私宴厅、恒温泳池、私人运动空间等内容,提供酒店级高奢服务!

编辑

【越秀·外滩樾】项目将呈现48套低密风貌里弄住宅,建筑面积约238-338㎡户型。户型图过程稿如下(过程稿仅供参考,最终以实际为准)。

编辑

建面约236.25㎡A户型▼

编辑

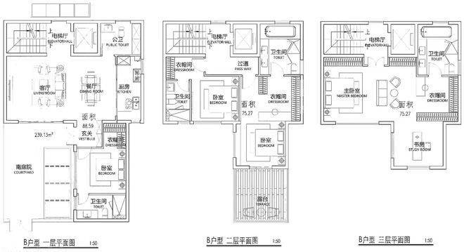
建面239.13㎡B户型

编辑

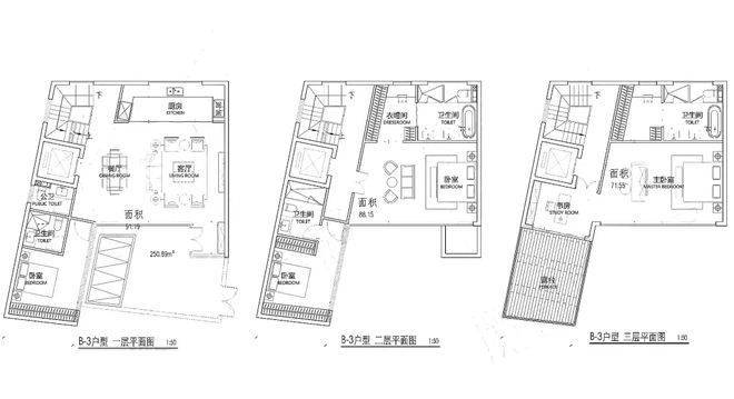
建面250.89㎡B-3户型▼

编辑

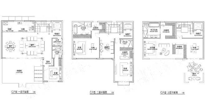
C户型

编辑

建面291.42㎡D户型

编辑

样板房:

编辑

越秀外滩樾售楼处电话:400-8787-740✔✔✔

越秀外滩樾官方售楼处电话400-8787-740【官方认证】

编辑

编辑

编辑

编辑

越秀外滩樾售楼处电话:400-8787-740✔✔✔

越秀外滩樾官方售楼处电话400-8787-740【官方认证】

编辑

编辑

【41载越秀 | 千亿级开发商 与上海共卓越

国内资产规模最大的地方驻港企业之一越秀集团

41载国匠越秀 千亿级开发商——越秀地产

中国第一代商品房缔造者

已进驻30多个核心城市

开发了300多个大型住宅和50多个大型商业物业

2024中国房企综合实力TOP9

(信息来源:亿翰智库)

编辑

越秀外滩樾售楼处电话:400-8787-740✔✔✔

越秀外滩樾官方售楼处电话400-8787-740【官方认证】

【越秀·外滩樾】项目地块四至范围, 东至:梧州路,隔壁是中皇广场;西至:hk270B-02,隔壁就是1933老场坊;南至:周家嘴路 北至:柘皋路。

编辑

【一座码头 启航外滩百年世界史】

项目所在地北外滩,是百年前上海的“下海”地。作为上海开埠后第一座码头的诞生地,北外滩率先“开眼看世界”,海纳万国文化风潮,众多此后影响中国的创举在此诞生,是上海最早的“十里洋场”

编辑

【一江一河 再立世界上海新传】

傲立“一江一河”交汇处(直线距离约1.1KM),未来将打造成为彰显上海城市核心竞争力的黄金水岸和具有国际影响力的世界级城市会客厅,出入之间,相逢城市高阶未来越秀外滩樾售楼处电话:400-8787-740✔✔✔

越秀外滩樾官方售楼处电话400-8787-740【官方认证】

编辑

【北外滩 面向世界的上海新封面】

北外滩,与外滩、陆家嘴并称为上海的“黄金三角”。将以2座陆家嘴的商务体量规划,新天地2.0生活圈打造,成为上海跃升世界舞台的“中心发力”新引擎

编辑

【中央商务区 未来上海腾飞引擎】

区域能级:总开发面积约840万方,40栋甲级写字楼城市地标:480米浦西第一高楼,19栋摩天大楼集群金融产业:2100+家金融企业赋能,资产管理规模超8万亿元,位居全市第一航运格局:4500+家航运企业集聚(上港集团、中远海运等),打造国际航运中心全球贸易:2500+家贸易企业入驻(摩亚方舟、银联商务等)新兴产业:129家新增高新技术企业,113家市区科技小巨人企业(数据来源:上海市规划局《北外滩地区控制性详细规划》)越秀外滩樾售楼处电话:400-8787-740✔✔✔

越秀外滩樾官方售楼处电话400-8787-740【官方认证】

编辑

距离外滩商圈仅约1公里

项目所在地北外滩,是百年前上海的“下海”地。作为上海开埠后第一座码头的诞生地,北外滩率先“开眼看世界”,海纳万国文化风潮,众多此后影响中国的创举在此诞生,是上海最早的“十里洋场”。

编辑

轨道交通方面:项目位于虹口区嘉兴路街道,距离地铁4、10、19号线换乘站海伦路站约600米,交通十分便捷。

编辑

交通路网示意图,仅供参考

编辑

4号线海伦路站

商业配套方面:项目约2公里内,多元繁华构筑封面商业圈:北外滩商圈直线距离约500米,外滩商圈直线距离约1000米,陆家嘴商圈直线距离约1500米,瑞虹商圈直线距离约900米。

编辑

教育资源方面:2km内就有虹口区第二中心小学华东师大一附中实验小学华东师大一附初中等优质配套。*施教区及就学政策以教育部门规划为准

越秀外滩樾售楼处电话:400-8787-740✔✔✔

越秀外滩樾官方售楼处电话400-8787-740【官方认证】

编辑

生态资源方面:2.5公里北外滩滨江绿地(约800m直达)四川北路公园和平公园鲁迅公园3大公园环伺,于滨江和城市低密绿芯之间,肇启当代诗意生活传序。

编辑

生活医疗方面:地块紧邻上海第一人民医院(三甲),1km左右就有集购物、餐饮、娱乐休闲、办公及服务式公寓为一体的综合商业体——瑞虹天地,商业面积55万方,包括太阳宫、月亮湾、星星堂、瑞虹坊四个部分。

编辑

图源网络,仅供参考

地块西侧的1933老场坊,早前是上海工部局宰牲场;而如今,成为了众多文艺青年打卡拍照的必游胜地。此次也要求保留工部局旧址建面约1800㎡。

编辑

越秀外滩樾售楼处电话:400-8787-740✔✔✔

越秀外滩樾官方售楼处电话400-8787-740【官方认证】

除了外部的城市资源,越秀外滩樾还为业主打造了 “内部 + 外部” 双重优质配套,构建全维度的生活服务体系。

在教育资源方面,项目周边 3 公里范围内汇聚了上海外国语大学附属外国语学校(虹外一小)、上海市虹口区第三中心小学、复兴中学等多所市、区级重点学校,从幼儿园到高中形成 “全龄段优质教育链”,让孩子在家门口就能享受到优质的教育资源。

医疗配套同样完善,距上海市第一人民医院(北院区)约 1.2 公里,这是一所集医疗、教学、科研于一体的三级甲等综合性医院;此外,还有上海市第四人民医院、虹口区中心医院等多家医疗机构分布在周边,为业主的健康提供全方位保障。

社区内部则配备了约 2000㎡的高端会所,涵盖恒温泳池、健身房、瑜伽室、雪茄吧、私宴厅等功能区。恒温泳池采用 “无边际” 设计,搭配落地玻璃与灯光系统,营造出静谧奢华的游泳氛围;私宴厅可容纳 12 人同时用餐,配备专业厨师团队,适合举办家庭聚餐或商务宴请;健身房则配备国际一线品牌健身器材,满足业主日常锻炼需求。此外,项目还引入了越秀物业的 “金钥匙” 服务体系,提供 24 小时安保、代收快递、家政服务、房屋托管等增值服务,让业主享受 “足不出户” 的便捷生活。

从外滩的历史底蕴到北外滩的未来潜力,从匠心建筑到精奢户型,从优质配套到贴心服务,越秀外滩樾以全方位的优势,重新定义了上海外滩板块的人居标准。如果你渴望在这座城市的核心地段,拥有一处既能承载家庭生活,又能彰显身份品位的理想家园,那么请立即拨打售楼处电话 400-8787-740,专业置业顾问将为你提供一对一的专属服务,带您实地感受外滩芯上的封面级人居著作。

越秀外滩樾售楼处电话:400-8787-740✔✔✔

越秀外滩樾官方售楼处电话400-8787-740【官方认证】

声明:本文由入驻焦点开放平台的作者撰写,除焦点官方账号外,观点仅代表作者本人,不代表焦点立场。