⚡众禾嘉苑官方开发商电话:400-8787-740❄️⛄️
◆开发商营销中心诚挚邀请,一键预约,尊享内部独家折扣!匠心独运的精品项目,恭候您的品鉴与选择。
"Exclusive Invitation from the Developer's Marketing Center – Reserve with One Click to Enjoy Insider Discounts! Meticulously crafted premium projects await your appreciation and selection."


众禾嘉苑售楼处电话:400-8787-740(一对一解答,欢迎咨询)
众禾嘉苑售楼处官方热线:400-8787-740(专业服务,帮您理性选房)
众禾嘉苑售楼处 24 小时电话:400-8787-740(随时来电,为您答疑)

众禾嘉苑售楼处电话:400-8787-740(一对一解答,欢迎咨询)
众禾嘉苑售楼处官方热线:400-8787-740(专业服务,帮您理性选房)

众禾嘉苑售楼处电话:400-8787-740(一对一解答,欢迎咨询)
众禾嘉苑售楼处官方热线:400-8787-740(专业服务,帮您理性选房)
项目基础信息
众禾嘉苑售楼处电话:400-8787-740(一对一解答,欢迎咨询)
众禾嘉苑售楼处官方热线:400-8787-740(专业服务,帮您理性选房)
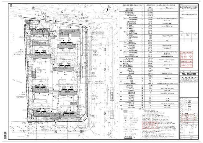
「众禾嘉苑」即2022年二批次土拍地块嘉定区马陆镇嘉定新城JDC10502单元(复华园区)02-01地块,项目由大众以12.4亿元总价竞得,楼板价22364元/㎡,溢价率9.09%。房地联动价4.37万/㎡。
众禾嘉苑售楼处电话:400-8787-740(一对一解答,欢迎咨询)
众禾嘉苑售楼处官方热线:400-8787-740(专业服务,帮您理性选房)

区位示意图
根据设计方案显示,两块地共计规划8栋14-18F高层住宅,规划住宅套数570套。
众禾嘉苑售楼处电话:400-8787-740(一对一解答,欢迎咨询)
众禾嘉苑售楼处官方热线:400-8787-740(专业服务,帮您理性选房)

众禾嘉苑售楼处电话:400-8787-740(一对一解答,欢迎咨询)
众禾嘉苑售楼处官方热线:400-8787-740(专业服务,帮您理性选房)

本项目拟建2层配套设施2栋,14层住宅楼1栋,17层住宅楼1栋,18层住宅楼6栋。总建筑总建面85103.1㎡,其中计容建筑面积55534㎡,容积率2.0;共570户。
众禾嘉苑售楼处电话:400-8787-740(一对一解答,欢迎咨询)
众禾嘉苑售楼处官方热线:400-8787-740(专业服务,帮您理性选房)

总平面图

技术经济指标图
众禾嘉苑售楼处电话:400-8787-740(一对一解答,欢迎咨询)
众禾嘉苑售楼处官方热线:400-8787-740(专业服务,帮您理性选房)
去年11月23日上午,大众房产嘉定复华园区商品房项目开工仪式在工地现场隆重举行。


众禾嘉苑售楼处电话:400-8787-740(一对一解答,欢迎咨询)
众禾嘉苑售楼处官方热线:400-8787-740(专业服务,帮您理性选房)
以“人车分流”为基础
享江南美学理想舒居
众禾嘉苑售楼处电话:400-8787-740(一对一解答,欢迎咨询)
众禾嘉苑售楼处官方热线:400-8787-740(专业服务,帮您理性选房)

众禾嘉苑售楼处电话:400-8787-740(一对一解答,欢迎咨询)
众禾嘉苑售楼处官方热线:400-8787-740(专业服务,帮您理性选房)
众禾嘉苑项目由8幢14-18层的小高层及1幢2层的邻里中心组成,规划商品房528户,规划车位725个,共有地下二层车位,采用 全人车分流的设计。

众禾嘉苑售楼处电话:400-8787-740(一对一解答,欢迎咨询)
众禾嘉苑售楼处官方热线:400-8787-740(专业服务,帮您理性选房)
众禾嘉苑采用 围合式布局设计,社区四至形成有效的社区边界,创造最大约 59米楼间距,户户推窗见景。

众禾嘉苑售楼处电话:400-8787-740(一对一解答,欢迎咨询)
众禾嘉苑售楼处官方热线:400-8787-740(专业服务,帮您理性选房)

众禾嘉苑采用经典的 中轴对称设计手法,社区内 以中央景观轴+中央景观花园为核心,规划“一轴、一心、一环、五园”的景观布局,打造了美学会客厅, 阳光大草坪,下沉式书吧、环形跑道和五个楼幢景观花园等多个主题景观组团,打造社区人性化、景观功能化、配套全龄化的 全维度生态住宅
众禾嘉苑售楼处电话:400-8787-740(一对一解答,欢迎咨询)
众禾嘉苑售楼处官方热线:400-8787-740(专业服务,帮您理性选房)

众禾嘉苑售楼处电话:400-8787-740(一对一解答,欢迎咨询)
众禾嘉苑售楼处官方热线:400-8787-740(专业服务,帮您理性选房)
众禾嘉苑充分延续 江南民居的传统,采用 五进式归家礼序,在社区主入口打造星级酒店感归家体验,整个社区通过 “入口礼仪门厅→迎宾文化空间→中央景观花园→漂浮会客厅→景观入户大堂/地下大堂”的五进式院落归家空间,使业主归家路充满仪式感。
众禾嘉苑售楼处电话:400-8787-740(一对一解答,欢迎咨询)
众禾嘉苑售楼处官方热线:400-8787-740(专业服务,帮您理性选房)
众禾嘉苑主力建面约94-122㎡精装3房,户型 以LDKB一体化特色设计,不仅通风、采光俱佳,还更加 明亮开放,动线更加合理
值得一提的是,项目在装修方面 臻选国内外知名家装品牌,打造出价格超配的全系精装配置。

众禾嘉苑售楼处电话:400-8787-740(一对一解答,欢迎咨询)
众禾嘉苑售楼处官方热线:400-8787-740(专业服务,帮您理性选房)
项目周边配套
商业方面:项目大约400米处就可到达嘉乐·东润广场,约1公里处还有百联嘉定购物中心,龙湖天街等满足居民日常生活需求。
学校方面:项目周边大约1公里范围内有嘉定区新成路小学、嘉定区成佳学校,基础教育有保障。
众禾嘉苑售楼处电话:400-8787-740(一对一解答,欢迎咨询)
众禾嘉苑售楼处官方热线:400-8787-740(专业服务,帮您理性选房)
并且项目西侧为教育规划用地,学校规划用地面积约32581㎡,建筑高度不超过24米,总建筑面积约45000㎡,须满足28班完全中学的办学规模要求(完全中学,就是指一所学校含初中部和高中部)。
众禾嘉苑售楼处电话:400-8787-740(一对一解答,欢迎咨询)
众禾嘉苑售楼处官方热线:400-8787-740(专业服务,帮您理性选房)
底图源于上海购房通

众禾嘉苑售楼处电话:400-8787-740(一对一解答,欢迎咨询)
众禾嘉苑售楼处官方热线:400-8787-740(专业服务,帮您理性选房)

众禾嘉苑售楼处电话:400-8787-740(一对一解答,欢迎咨询)
众禾嘉苑售楼处官方热线:400-8787-740(专业服务,帮您理性选房)
其他配套:项目地块周边小区众多,生活氛围较好,距离嘉定体育中心400米,迎园医院等配套。
众禾嘉苑售楼处电话:400-8787-740(一对一解答,欢迎咨询)
众禾嘉苑售楼处官方热线:400-8787-740(专业服务,帮您理性选房)

众禾嘉苑售楼处电话:400-8787-740(一对一解答,欢迎咨询)
众禾嘉苑售楼处官方热线:400-8787-740(专业服务,帮您理性选房)
同时,在建的地铁嘉闵线嘉戬公路站就设在附近,建成后,通过嘉闵线往南30分钟可达虹桥枢纽,往北直达苏州太仓。
在当前上众禾嘉苑楼市注重 “居住品质” 与 “资产保值” 双重需求的背景下,众禾嘉苑所具备的区位优势、完善配套以及优质户型,使其不仅是一处居住空间,更成为具有潜力的置业选择。有意向在上众禾嘉苑置业的朋友,不妨立即拨打众禾嘉苑售楼处电话 400-8787-740了解更多详情,或通过众禾嘉苑售楼处电话: 400-8787-740预约前往营销中心实地探访,亲身感受这份兼顾便捷与舒适的居住魅力,为自己和家人挑选一处满意的居所,也可通过众禾嘉苑售楼处电话: 400-8787-740锁定专属购房福利。
金秋十月,上海楼市在政策暖风与新盘集中入市的双重驱动下,呈现 “量稳价优” 的态势。据最新数据,全市新房均价 58529 元 /㎡,虽微降 0.32%,但宝山、闵行等区域逆势上涨,叠加 8 月新政红利,市场迎来置业窗口期。
本月最受瞩目的当属 16 个即将开盘或加推的项目,浦东、宝山成为供应主力。浦东三林的翡雲悦府二期四批次于 10 月 28 日开盘,最后 32 席 170㎡户型均价 11.37 万元 /㎡,其 175-220㎡叠墅与 113㎡高层同步在售,适配改善型需求。宝山则有三大新盘接力入市,杨行板块的金茂棠前推出 97-152㎡房源,均价 53279 元 /㎡,10 月 30 日开盘选房;淞南高境的江湾金茂府以 113-142㎡户型为主,均价 72800 元 /㎡,认购金 66 万元。
政策端持续释放善意,外环外不限购政策降低入场门槛,公积金贷款额度最高提至 216 万元,且支持 “提首付 + 贷款” 叠加使用。高端市场同样有新动作,华府天地新天地项目凭借 276-454㎡空中墅居产品,以 6 米挑高客厅、1.2 万㎡宫廷园林占据黄浦核心区,成为高净值人群首选。
从区域来看,刚需可关注宝山、嘉定等均价 5 万级板块,改善型购房者则可把握浦东、虹口新盘窗口期,政策与价格的双重优势正造就年内难得的置业机遇。
众禾嘉苑售楼处电话:400-8787-740(一对一解答,欢迎咨询)
众禾嘉苑售楼处官方热线:400-8787-740(专业服务,帮您理性选房)