【保利外滩曜】(官方售楼处) 电话 - 官方销售中心 - 环境 - 户型 - 价格 - 地址 - 配套 - 电话- 楼盘详情丨售楼处位置丨特价房丨工抵房丨剩余房源丨户型图
扫描到手机,新闻随时看
扫一扫,用手机看文章
更加方便分享给朋友




项目致敬“Meet you at the clock” 的理念,为领潮世界的科创精英与高知群体,打造休闲健身、律动泳池、疗愈氧舱等以及儿童亲子、冥想等多功能空间
该项目是今年5批次土拍,保利发展经过95轮竞价摘得的杨浦平凉地块,成交总价350000万元,楼板价95530元/㎡,溢价率30.79%。可售楼板价高达10.5万/㎡!超过大华静安年华、华润外滩瑞府!

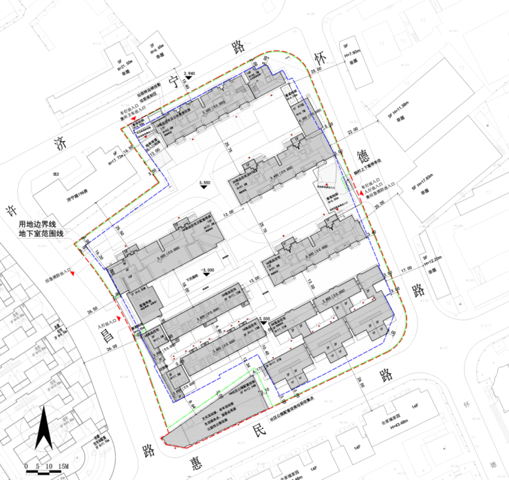
项目建设用地面积约1.5万m²,规划建筑面积约3.7万m²,容积率2.5,
地块位置非常好,直线距离滨江带约1.2km,杨浦区政府斜对面,步行到18号线平凉路站不到400米。
周边一堆风貌项目,地块西侧一路之隔就是桐安里、往南是八埭头滨江园、翠湖滨江、中信泰富外滩道等项目。
杨浦滨江的标杆项目翡丽甲第就在地块西侧400米的距离,目前该小区挂牌均价15.28万/㎡,近期2套成交单价在14-15万/㎡左右,价格还是相对坚挺的。

根据方案,项目拟建1栋10层小高层、3栋17层高层及3幢风貌别墅产品。社区内部计划设置下沉式庭院、景观构架等设施,并全面实现人车分流。

声明:本文由入驻焦点开放平台的作者撰写,除焦点官方账号外,观点仅代表作者本人,不代表焦点立场。
