上海宁国府邸(售楼处)官方首页网站-宁国府邸售楼处欢迎您-宁国府邸楼盘详情-户型配套-最新价格-最新资讯-售楼处位置

搜狐焦点孝感站 2025-09-07 09:35:00
用手机看
扫描到手机,新闻随时看

扫一扫,用手机看文章
更加方便分享给朋友

宁国府邸售楼处电话☎:400-8787-740【售楼中心已认证√√】

宁国府邸售楼处电话☎:400-8787-740【售楼中心已认证√√】

宁国府邸官方售楼处电话/地址发布☎:400-8787-740

(预约看房热线√√)(提供开发商销售顾问线上一对一热情讲解服务)

购房政策:上海户籍单身限购1套,已婚家庭限购2套;非沪籍需社保或个税满5年且已婚,限购1套。购房可选择商业贷款、公积金贷款或组合贷款,公积金个人最高贷60万(家庭120万),多子女家庭额度上浮20%

毗邻上海西郊传奇豪宅檀宫

揽尽城市繁华 再造传世奢居典范

出则通达万象 入则独享私谧

950㎡~1700㎡中式合院

12栋别墅

套均总价或 2亿起

限量席位引塔尖圈层竞藏

样板房正式开放

西郊核心 与檀宫为邻

上海宁国府邸售楼处电话:400-8787-740【☎售楼处已认证】位于长宁区 ,处于清溪路与可乐东路交叉口。项目坐落于声名赫赫的西郊别墅区,与顶级豪宅檀宫为邻,东侧是占地广阔的上海最大五星级花园别墅式国宾馆 —— 西郊宾馆 。

檀宫实景图【宁国府邸】售楼处电话:400-8787-740【☎售楼处已认证】

西郊宾馆实景图

这里自上世纪 30 年代起便开启兴建顶级豪宅的篇章,是沪上高级别墅区的典型代表。多年来,吸引了大批海内外政商界名流在此打造私人别墅公馆,形成私密住区氛围,堪称老上海眼中的传奇地界。周边汇聚了如檀宫、夏都花园、创世纪别墅等豪宅别墅 。

宁国府邸售楼处电话:400-8787-740【☎售楼处已认证】

建筑即艺术 英国著名设计师操刀

【宁国府邸】售楼处电话:400-8787-740【☎售楼处已认证】项目由12栋中西合璧的四合院组成,其中12号是楼王,13号是物业管理用房。11栋可售房源的面积段约为1000㎡-1500㎡,其中4栋为精装修交付,7栋为毛坯交付。

宁国府邸售楼处电话:400-8787-740【☎售楼处已认证】整体占地面积不大,但是豪宅必然需要有水系相伴。项目南面的野奴泾为苏州河支流,是一条天然活水河。

内部贯穿着一条街道,【宁国府邸】售楼处电话:400-8787-740【☎售楼处已认证】采用了中国传统街巷低退界的理念。步道和树木行列对称,交相呼应。中式园林设计的最高境界是于不经意间以一种浑然天成的姿态跃入人们眼帘。

宁国府邸售楼处电话:400-8787-740【☎售楼处已认证】项目由英国著名殿堂级建筑和设计师大卫·奇普菲尔德(David Chipperfield)做的建筑设计。而他在中国最近的另外一个著名作品则是上海徐汇滨江的西岸美术馆

大卫·奇普菲尔德【宁国府邸】售楼处电话:400-8787-740【☎售楼处已认证】

西郊别墅区高墙大院中的别墅大卫·奇普菲尔德在这个西郊的这个项目上,划时代采用了中国传统的合院形式,但又注入了设计师一概的现代性冷淡风格

合院的理念就是通过围墙来保证对外的私密性,而在内部则是通过共享庭院的中庭来营造一个开放的居住氛围,这与传统的独栋别墅的理念是完全两个方向。

宁国府邸售楼处电话:400-8787-740【☎售楼处已认证】还是非常符合大卫·奇普菲尔德的设计风格,朴实、精致,大气,低调,有艺有境。特别的艺术构思,造就了每一栋建筑独一无二的个性。大师重新诠释了庭院式建筑,营造出一系列错落有致的室内外空间秩序,将室外空间和家居私密性的需求完美的结合在一座别墅之内。

【宁国府邸】售楼处电话:400-8787-740【☎售楼处已认证】

【宁国府邸】售楼处电话:400-8787-740【☎售楼处已认证】

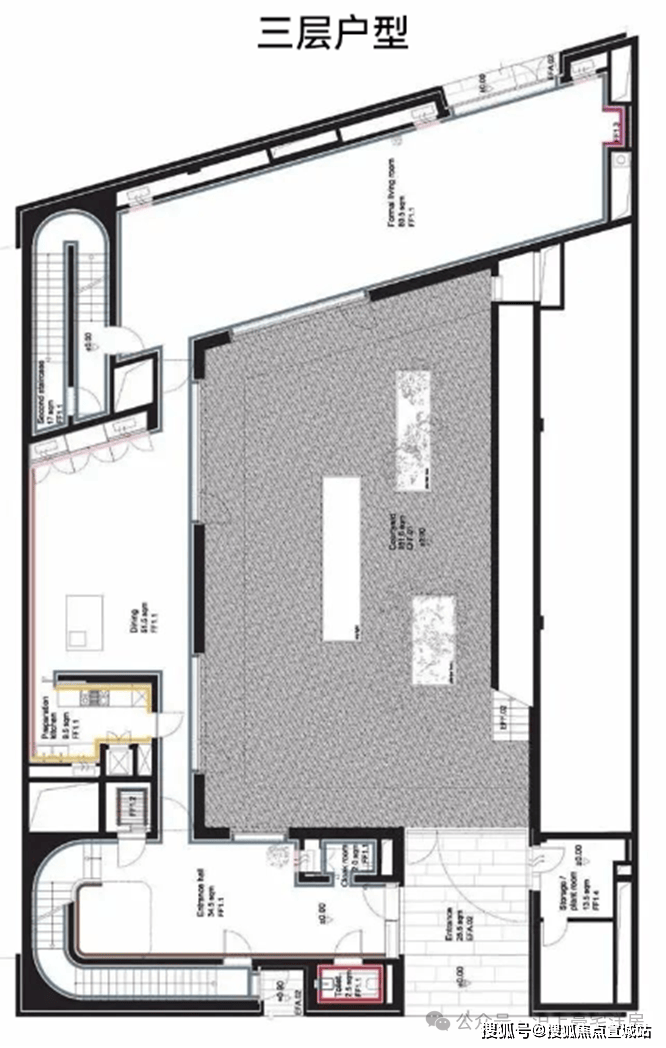
2号楼户型设计图

外冷内热的碉堡合院,清水混凝土外墙如现代堡垒,内部围合中式中庭,360° 庭院环绕。

打破南向大面宽执念,通过环形连廊串联地上 3 层 + 地下 1 层,附赠 200-500㎡私属花园

每栋别墅配备独立电梯、双车库 ,4 栋精装房含定制智能家居系统,7 栋毛坯房可私人定制。

特别的艺术构思,造就了宁国府邸售楼处电话:400-8787-740【☎售楼处已认证】每一栋建筑独一无二的性格。作品舶来了庭院式建筑,营造出一系列错落有致的室内外空间秩序,将室外空间和家内居私密性的结合在一座别墅之内。而12栋建筑,又整体的融合成了一个大院落。

【宁国府邸】售楼处电话:400-8787-740【☎售楼处已认证】

【宁国府邸】售楼处电话:400-8787-740【☎售楼处已认证】

【宁国府邸】售楼处电话:400-8787-740【☎售楼处已认证】

【宁国府邸】售楼处电话:400-8787-740【☎售楼处已认证】

全维资源簇拥 奢居版图

在交通出行方面,宁国府邸售楼处电话:400-8787-740【☎售楼处已认证】周边交通网络发达。直线 3km 范围内分布着 10 个地铁站,像龙溪路、上海动物园、北新泾等站点,轨道交通十分便捷,其中距离最近的地铁站是龙溪路站 。同时,周边直线 1km 内设有 13 个公交站,最近的青溪路淮阴路站距离项目仅 435m,公共交通出行极为便利 。

教育资源上,【宁国府邸】售楼处电话:400-8787-740【☎售楼处已认证】项目直线 3km 范围内教育配套丰富,有多达 68 个幼儿园,为幼儿启蒙教育提供多样选择;15 个小学分布于此,包括上海市民办东展小学、威宁小学等;还有 23 个中学环绕,如上海市延安中学、虹桥中学等,全年龄段教育资源完备 。

医疗保障同样出色,【宁国府邸】售楼处电话:400-8787-740【☎售楼处已认证】楼盘周边直线 3km 范围内有 11 家一级及以上医院 。武警上海市总队医院距离楼盘 1.7km,上海交通大学医学院附属同仁医院仙霞路院区距离仅 955m,还有上海普瑞眼科医院、上海合川莱茵中医医院、民航上海医院等,为业主的健康保驾护航 。

日常生活购物休闲也极为方便,楼盘周边 3km 范围内坐落着 36 个商场 ,福缘湾・九华商业广场、百联西郊购物中心、申亚・珺悦 18 广场等满足各类购物需求。

并且周边生态环境优越,【宁国府邸】售楼处电话:400-8787-740【☎售楼处已认证】3km 范围内有 79 个公园 ,闲暇时光可轻松享受休闲漫步时光。此外,项目南面的野奴泾为苏州河支流,是天然活水河,给小区增添了灵动的自然气息 。

不仅是拥有一方栖身之所

更是入主上海西郊

顶豪圈层的入场券

在这片被檀宫、西郊宾馆

环绕的贵胄之地

每一次归家

都是穿越历史与现代的尊崇礼遇

席位有限,尊荣无限

唯有少数人方能珍藏

这份无可复制的西郊生活图鉴

⛪宁国府邸⛪

宁国府邸售楼处电话☎:400-8787-740【售楼中心已认证√√】

宁国府邸官方售楼处电话/地址发布☎:400-8787-740

🚩🚩➨宁国府邸售楼处电话/售楼处地址位置☎:400-8787-740√√【官网预约☎】宁国府邸售楼处营销中心:400-8787-740(开发商热线)宁国府邸官方售楼中心电话/地址☎:400-8787-740【售楼处已认证√√√】本电话为开发商提供线上预约售楼咨询电话,项目全面介绍(包含官方最新发布:在线预约看房丨一房一价表丨在售房价优惠丨户型面积房源丨交房时间丨交通地铁丨商业配套丨教育资源丨小高层洋房丨独栋别墅丨联排合院丨商业别墅丨得房率丨容积率丨小区环境丨优缺点分析丨楼盘测评丨在售户型图丨项目介绍丨最新房源丨周边配套丨详细解答丨一对一热情讲解〢区域板块等信息!📍★郑重承诺:由开发商旗下销售团队全程营销策划,房源信息真实有效!如果您想了解更多楼盘详情,欢迎提前预约拨打宁国府邸官方售楼处电话400-8787-740√√√(已认证)

VIP贵宾置业〢欢迎来电咨询〢售楼处邀您品鉴!!

温馨提示:来电提前预约、尊享线上一对一热讲解【享】专属优惠折扣!

(温馨提示:本项目参观样板间采取预约制,为了不耽误您的行程,过来参观请提前来电进行预约看房或咨询项目详情)

声明:本文由入驻焦点开放平台的作者撰写,除焦点官方账号外,观点仅代表作者本人,不代表焦点立场。