静安里售楼处电话→(2025)静安里售楼中心电话→静安里楼盘百科→静安里首页网站→楼盘百科→首页网站→静安里24小时热线电话
扫描到手机,新闻随时看
扫一扫,用手机看文章
更加方便分享给朋友
上海静安里售楼处电话:400-1010-064✅✅【售楼处已认证】
(提供开发商销售顾问线上一对一热情讲解服务)
当历史遇见当代,老宅新生正在激活城市记忆。民国第一任总理唐绍仪的故居,它的“首秀”拉开了武进路老建筑更新的序幕,也是上海城市文脉的延续。
6月21日,这座历经沧桑的百年唐宅以“海派会客厅”之名焕新开放。开放不到一个月,唐宅展厅已接待超过3000名市民,成为苏河湾沿岸的文化新地标。

上海静安里售楼处电话:400-1010-064✅✅【售楼处已认证】
(提供开发商销售顾问线上一对一热情讲解服务)
上海静安里售楼处电话:400-1010-064✅✅【售楼处已认证】
(提供开发商销售顾问线上一对一热情讲解服务)
百年繁盛正朝这里涌来,静安里的住宅启幕是这段记忆在当代生活中的温热回响。
在招商蛇口与华发股份的共同营造下,一座融合历史风貌与现代奢华的别墅区从深巷中走出,一场更宏大的历史传承与当代生活实验正在上演,222席稀缺别墅重构唐宅之美,并赋予其与现代生活相符的涵义。
项目鸟瞰图
上海静安里位于静安苏河湾纯墅风貌区内环内核心地段,项目由南市北里双地块组成,南地块规划约9000平方米石库门风貌商业,汲取新天地、张园等上海城市节点级风貌商业精髓,沿武进路打造历史风貌商业街区,未来将涵盖高端零售、高档餐饮、文化展览、宠物配套等丰富的业态。

上海静安里售楼处电话:400-1010-064✅✅【售楼处已认证】
(提供开发商销售顾问线上一对一热情讲解服务)
静安核心,文脉之上,项目将深厚的文化积淀与海派精神内核转化为现代生活场景。当游客漫步在静安里的巷弄间,触摸着修复一新的清水砖墙,德隆香烟厂与唐宅已悄然变身为文化展览空间。

在招商蛇口“江河三里”的战略布局中,静安里致力于重塑“南市北里”的街市生活。当百年唐宅的文脉光华与静安核芯的时代脉动在此交融,一座代言城市精神兼具传世意义的风貌别墅标杆已然崛起。
静安里的灵魂,深植于历经百年风雨的市级文保建筑唐宅之中。在这里,历史并非凝固的展品,而是可感、可居、可传承的鲜活存在。
在建筑风格上,项目采用“保留改造、更新改建、织补新建”三大手法,打造了10种建筑立面风格,让不同时期的建筑风格和谐共生,使风貌别墅成为“活态文化展厅”。

上海静安里售楼处电话:400-1010-064✅✅【售楼处已认证】
(提供开发商销售顾问线上一对一热情讲解服务)
基于“源于里弄,高于里弄”的创作理念,社区内既有原址修缮的石库门里弄,也有创新设计的现代院落,清水砖墙与坡屋顶勾勒出百年海派的天际线。
继弘安里、桐安里之后,静安里作为招商蛇口“江河三里”的压轴之作,在产品品质上树立了上海风貌住宅的新标杆,展现出历史与现代的完美平衡。
静安里是上海内环内极为稀缺的低密度风貌住宅区,总建筑面积14.9万平方米,综合容积率低至1.44,在寸土寸金的静安内环创造近乎奢侈的空间尺度。
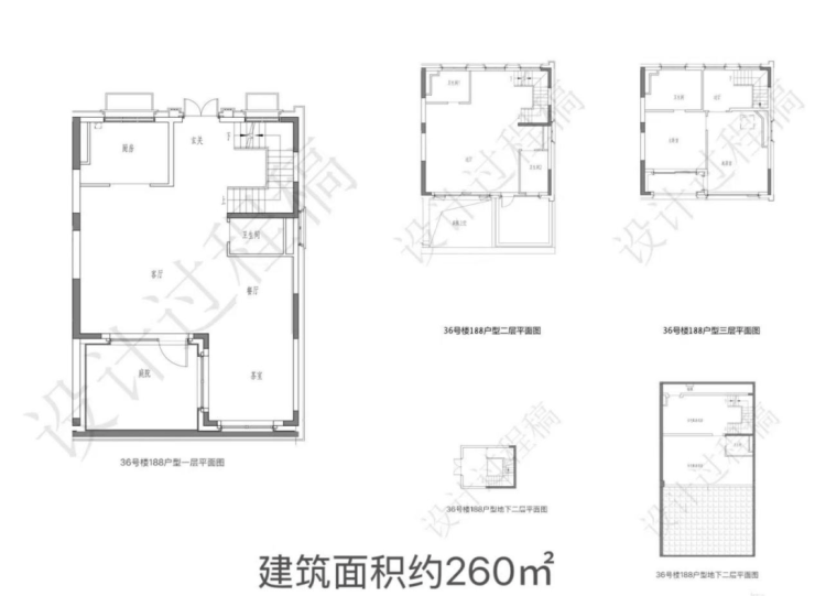
222席风貌别墅首推260~369平方米户型,将海派建筑智慧发挥到极致。设计师采用“提高窗墙比、降低围墙高度、拓展地下空间”三大手法,在保留历史原真性的同时,实现现代居住体验的全面升级。

上海静安里售楼处电话:400-1010-064✅✅【售楼处已认证】
(提供开发商销售顾问线上一对一热情讲解服务)
建筑细节更是处处可见匠心。项目应用8大定制工艺,手工烧制的复古砖材复刻百年质感,铁艺栏杆的卷草纹样源自石库门纹样档案,山花造型经3D建模精密推敲,连雨水斗都成为建筑立面的艺术装置。

8大定制
项目以“四纵三横巷弄+三大中庭花园”重构海派里弄生活,社区规划遵循“七坊三十二弄”的里弄肌理,打造流动的人文坐标轴。六大主题花园融入英式、法式、意式造园精髓,形成一部行走的“海派园林百科全书”。
上海静安里售楼处电话:400-1010-064✅✅【售楼处已认证】
(提供开发商销售顾问线上一对一热情讲解服务)
生活空间延伸至地下,约1000平方米的会所所集合VIP会客厅、泳池、高配瑜伽室、高压氧舱、桑拿房等功能,淬炼出一站式高阶礼遇的尊崇之境,将历史符号转化为当代奢享场景。

据上海市规划和自然资源局发布的《上海市2025年度国有建设用地供应计划》显示,静安区全年预计供应量约为10公顷,环比下降20%,进一步凸显了核心区域的稀缺性。静安里这片222席风貌别墅的入市,无疑将点燃高净值人群的收藏热情。
正如业内所言,当风貌别墅不再仅仅是建筑遗产,而是成为现代生活的一部分时,其产品价值才真正得到释放。静安里,就是这个时代的坐标。
在苏州河与老北站的历史褶皱中,一场跨越百年的建筑对话正悄然启幕。
作为上海254处风貌保护街坊之一,静安里是具备风貌成片、格局完整、历史保护价值的风貌街坊。
静安里的热销密码,首先藏在“江河三里”的战略版图中,项目位于苏河湾风貌区北段核心,恰是黄浦江与苏州河两大世界级滨水带的黄金交汇点。
2025年初获批的《苏州河沿岸地区规划》中,静安里所处位置被定位为苏河湾“都市经典段”头端,成为展示江河交汇、中西合璧的海派都市首站。
这里的历史肌理同样令人惊叹。武进路沿线聚集着2栋优秀历史保护建筑和1栋文保建筑,曾见证鲁迅在百星大戏院观影、郁达夫在泰山大戏院听越剧的文化盛景。
如今,静安里与周边弘安里、今潮8弄、安康苑等项目构成了苏州河畔独特的风貌集群,50万平方米保护建筑在此绵延,成就海派文明的当代范本。正如静安里的案名寓意:“静守安宅,里见乾坤”,既呼应了历史文脉,又传递了现代居住理念。

上海静安里售楼处电话:400-1010-064✅✅【售楼处已认证】
(提供开发商销售顾问线上一对一热情讲解服务)
地理坐标赋予其无可替代的便利。项目步行可达地铁10号线四川北路站和12号线天潼路站,三公里范围内串联起南京西路商圈、外滩源、北外滩与陆家嘴,形成上海内环“黄金核心区”。宝格丽酒店、UCCA Edge美术馆、苏河湾万象天地等顶配资源环伺,让历史风貌与现代繁华在此完美交融。

上海静安里售楼处电话:400-1010-064✅✅【售楼处已认证】
(提供开发商销售顾问线上一对一热情讲解服务)
武进路这条百年街道,曾经见证老北站汽笛声中的人来人往。如今,静安里的建筑群沿街铺展,七坊三十二弄的空间格局里,定制级铁艺栏杆在阳光下泛着微光,手工打磨的古琦黑奢石幕墙倒映着梧桐树影。当唐宅的雕花门框映照出苏河湾的摩登天际线,静安里已超越居所范畴。
这或许正是静安里引发塔尖圈层共鸣的深层原因:在繁华都市中心,它创造了一个既能安放当下生活,又能典藏城市记忆的“永恒里弄”。

上海静安里售楼处电话:400-1010-064✅✅【售楼处已认证】
(提供开发商销售顾问线上一对一热情讲解服务)
声明:本文由入驻焦点开放平台的作者撰写,除焦点官方账号外,观点仅代表作者本人,不代表焦点立场。
