上海桐安里官方网站-桐安里官方楼盘详情-桐安里房天下-桐安里楼盘详情-最新房价+户型图+交通+小区配套环境

搜狐焦点孝感站 2025-10-14 15:18:44
用手机看
扫描到手机,新闻随时看

扫一扫,用手机看文章
更加方便分享给朋友

上海桐安里预约热线☎:400-8080-420✅✅

欢迎您致电品鉴⭐

上海桐安里预约热线☎:400-8080-420✅✅

温馨提示:网上售楼中心〢预约尊享Vip一对一专业置业顾问讲解!

_Vip营销中心_____欢迎来电预约尊享内部折扣_____匠心钜制恭迎品鉴!中介勿扰!

√Welcome to call the tasting appointment hotline: 400-8855-420 [Appointment hotline] Warm reminder: Online sales center〢 Make an appointment to enjoy VIP one-on-one professional property consultant explanation! _Vip marketing center_____Welcome to call to make an appointment to enjoy the exclusive internal discount_____Welcome to taste the ingenious masterpiece!No agents please!

上海桐安里预约热线☎:400-8080-420✅✅【售楼中心】上海桐安里预约热线☎:400-8080-420✅✅【售楼处电话/地址】上海桐安里预约热线☎:400-8080-420✅✅【官方认证】杨浦桐安里售楼中心24小时热线电话丨杨浦东外滩「桐安里」+建面约184-300m²风貌别墅

上海桐安里预约热线☎:400-8080-420✅✅

杨浦东外滩招商蛇口平凉社区项目「桐安里」,将推70套建面184-300m²左右风貌别墅,项目白玉兰展厅即将开放,预估均价不到20万/m²。

上海桐安里预约热线☎:400-8080-420✅✅【售楼中心】上海桐安里预约热线☎:400-8080-420✅✅【售楼处电话/地址】上海桐安里预约热线☎:400-8080-420✅✅【官方认证】杨浦桐安里售楼中心24小时热线电话丨杨浦东外滩「桐安里」+建面约184-300m²风貌别墅

上海桐安里预约热线☎:400-8080-420✅✅

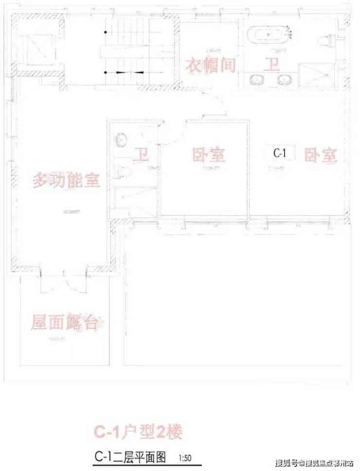
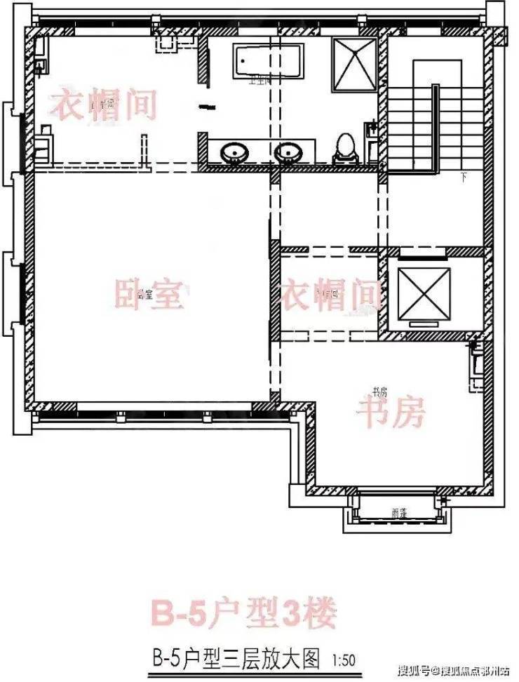
户型图如下:

(户型图源自网络,仅供参考,最终以实际为准)

C-1户型

上海桐安里预约热线☎:400-8080-420✅✅

上海桐安里预约热线☎:400-8080-420✅✅

上海桐安里预约热线☎:400-8080-420✅✅

上海桐安里预约热线☎:400-8080-420✅✅

B-5户型

上海桐安里预约热线☎:400-8080-420✅✅

上海桐安里预约热线☎:400-8080-420✅✅

2023年11月,招商&海门国资委拿下平凉社区01B4-04地块(平凉街道19街坊)历史风貌保护项目。

上海桐安里预约热线☎:400-8080-420✅✅

从位置上看,平凉社区01B4-04地块(平凉街道19街坊)距离18号线平凉路站直线约400米,与地铁12/18号线江浦公园站直线距离约500。地块西面靠近首创天阅滨江项目,南侧靠近房地联动价21万的瑞安·翠湖滨江项目;可以说地理位置十分优越。

上海桐安里预约热线☎:400-8080-420✅✅

上海桐安里预约热线☎:400-8080-420✅✅

该地块建设用地面积 12666.4 平方米,规划用途为二类住宅组团用地,容积率 1.35,地上计容建筑面积为 17099.64 平方米。

本次公示设计方案如下

上海桐安里预约热线☎:400-8080-420✅✅

根据此次方案公示图,项目地下建筑面积为25900平方米,共建有约15幢联排别墅,地块东南侧为3层的公租房,总户数约70套不到,主要以四联排为主。项目机动车入口设在南北两侧的惠民路和济宁路上。

上海桐安里预约热线☎:400-8080-420✅✅

项目涉及风貌保护,因此在出让阶段就有明确的要求

上海桐安里预约热线☎:400-8080-420✅✅

上海桐安里预约热线☎:400-8080-420✅✅【售楼中心】上海桐安里预约热线☎:400-8080-420✅✅【售楼处电话/地址】上海桐安里预约热线☎:400-8080-420✅✅【官方认证】杨浦桐安里售楼中心24小时热线电话丨杨浦东外滩「桐安里」+建面约184-300m²风貌别墅

声明:本文由入驻焦点开放平台的作者撰写,除焦点官方账号外,观点仅代表作者本人,不代表焦点立场。