华润中环望雲首页网站-华润中环望雲2025最新价格 | 华润中环望雲户型图-楼盘配套-小区环境
扫描到手机,新闻随时看
扫一扫,用手机看文章
更加方便分享给朋友
中环南大现象级红盘,华润中环望雲售楼处电话:400-1010-064☎️☎️✅✅《已认证》华润中环望雲售楼处电话/地址:400-1010-064☎️☎️✅✅《已认证》建面108㎡/133㎡户型仅余少量臻席,望雲东地块 收官加推64席,建面188㎡央景王座 & 135㎡臻席洋房,本批次均价:7.37万/㎡ 整盘均价:6.6万/㎡!华润中环望雲售楼处电话:400-1010-064☎️☎️✅✅《已认证》华润中环望雲售楼处电话/地址:400-1010-064☎️☎️✅✅《已认证》
华润中环望雲售楼处电话:400-1010-064☎️☎️✅✅《已认证》华润中环望雲售楼处电话/地址:400-1010-064☎️☎️✅✅《已认证》
1.拿地信息
10月25日华润以底价拿下宝山区大场镇W12-1301单元32-04、11-01地块,随着二期地块的顺利出让,标志着整个丰翔路站TOD项目中环置地中心的版图由此补全!
华润中环置地中心总建筑面积有望超过90万方,是宝山有史以来最高规格的大型城市综合体项目之一,将打造集高奢购物中心、甲级办公、品质住区于一体的TOD综合体!
华润中环望雲售楼处电话:400-1010-064☎️☎️✅✅《已认证》华润中环望雲售楼处电话/地址:400-1010-064☎️☎️✅✅《已认证》其中万象系商业体量超12万方,定位为地区级商业中心,将打造北上海城区规模最大的、品质最高的旗舰级商业中心!
一期地块包含07-01商办用地和3幅住宅用地,目前住宅还有少量在售,商办地块已经动工;二期地块拿地当天即公示了设计方案,其中住宅部分计划25年一季度入市,目前展厅已开启接待,推建面108-188㎡地标级海派大成之作!
二期期11-01商住办地块设计方案:
华润中环望雲售楼处电话:400-1010-064☎️☎️✅✅《已认证》华润中环望雲售楼处电话/地址:400-1010-064☎️☎️✅✅《已认证》根据设计方案显示,该地块拟建3栋17-28F高层住宅、2栋30F酒店、1栋23F综合楼以及2栋3F商业;同时地块北侧设置有空中连廊,与北侧07-01地块万象系商业连通!
通过地块中部的一条公共通道进行分割,住宅位于西侧,商办位于东侧,住宅区域地面无车位,全人车分流;
其中19#为两梯四户带连廊,17#为三梯六户带连廊,15#为一梯两户无连廊,规划可售住宅约334套!
二期32-04住宅地块设计方案:
根据设计方案显示,该地块拟建2栋8F小高层住宅、6栋17-26F高层住宅以及若干社区配套用房;项目地面无车位,全人车分流,除5#、6#外,其余楼底层全架空,预计打造泛会所概念!
其中7#、8#为三梯六户带连廊,2#为三梯五户带连廊,其余楼均为一梯两户无连廊,规划可售住宅约580套!
2.本批次推手信息及在售户型
华润中环望雲售楼处电话:400-1010-064☎️☎️✅✅《已认证》华润中环望雲售楼处电话/地址:400-1010-064☎️☎️✅✅《已认证》建面约188㎡央景王座&建面约135㎡臻稀洋房,黄金中环之上,封藏64席!
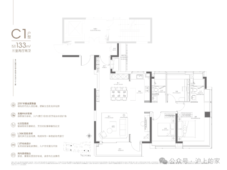
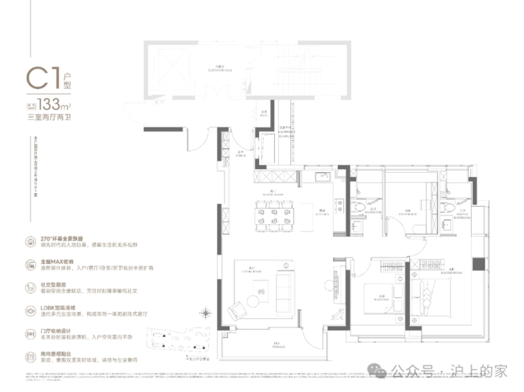
少量108-133㎡在售

华润中环望雲售楼处电话:400-1010-064☎️☎️✅✅《已认证》华润中环望雲售楼处电话/地址:400-1010-064☎️☎️✅✅《已认证》建面约108㎡的三房两厅两卫,总价约700万起,门槛友好,年轻家庭置业中环的不二选择。
三开间朝南(客厅建筑面宽约3.4米)+南向双阳台+南北通透+多飘窗设计,采光视野拉满!收纳方面也做了很多改进。入户就是整排的玄关收纳,内置双开门的大冰箱。

华润中环望雲售楼处电话:400-1010-064☎️☎️✅✅《已认证》华润中环望雲售楼处电话/地址:400-1010-064☎️☎️✅✅《已认证》可抽拉的零食柜、厨房抽屉式碗碟拉篮、包括卫浴的收纳墙,于细节之处见真章。

样板间实景图,具体以交付为准

华润中环望雲售楼处电话:400-1010-064☎️☎️✅✅《已认证》华润中环望雲售楼处电话/地址:400-1010-064☎️☎️✅✅《已认证》
样板间实景图,具体以交付为准

样板间实景图,具体以交付为准

133㎡的四房产品是项目的明星户型,板块内以及整个中环难得的改善型作品。
超大尺度与超强采光面,四开间朝南+主卧270°无柱转角飘窗+灵动空间设计,豪宅基因与品质感跃然于眼前,全市改善稀缺品种。
主卧的台盆对面都做了飘窗,从而达到了主卫和主卧都能双面采光的效果,尺度感非常夸张。
加推户型
全屋做了约6个飘窗,主卧、次卧、主卫、客卫,包括另外两个卧室,满屋飘窗户型,不仅采光视野出众,还实打实赠送了约14㎡的面积,合理利用每一寸空间!
客厅建筑面宽约5.7米大开间,整体空间利用率极优秀,几乎没有过道面积的浪费。

华润中环望雲售楼处电话:400-1010-064☎️☎️✅✅《已认证》华润中环望雲售楼处电话/地址:400-1010-064☎️☎️✅✅《已认证》来感受下主卧270度的飘窗视野,将上海一年四季的美景搬入室内——尺度感拉到极致!

样板间实景图,具体以交付为准
主卫的镜柜,也做双面收纳设计。主卫延伸出来的创新飘窗,可以在上面摆放各种日常用品。

华润中环望雲售楼处电话:400-1010-064☎️☎️✅✅《已认证》华润中环望雲售楼处电话/地址:400-1010-064☎️☎️✅✅《已认证》

华润中环望雲售楼处电话:400-1010-064☎️☎️✅✅《已认证》华润中环望雲售楼处电话/地址:400-1010-064☎️☎️✅✅《已认证》南次卧的采光感也很棒,整体空间宽敞明亮。

样板间实景图,具体以交付为准
还有餐边柜部分,阳台,进门玄关等都做了额外的凹角设计,收纳力MAX!

一线品牌精装,给到业主高质感生活。
中央空调和地暖选用日立、新风系选用爱迪士(或同等品牌)。
卫生间采用杜拉维特(或同等品牌)的台盆、汉斯格雅(或同等品牌)的
花洒五金件、主卫伊奈、次卫恩仕(或同等品牌)智能一体马桶。
厨房,采用博世(或同等品牌)的吸油烟机、灶具、洗碗机、蒸烤一体机四件套、怡口(或同等品牌)的末端净水器、摩恩(或同等品牌)的垃圾处理器都统统配备。
华润中环望雲售楼处电话:400-1010-064☎️☎️✅✅《已认证》华润中环望雲售楼处电话/地址:400-1010-064☎️☎️✅✅《已认证》

样板间实景图,具体以交付为准
大户型选用顶豪的嘉格纳冰箱。

华润中环望雲售楼处电话:400-1010-064☎️☎️✅✅《已认证》华润中环望雲售楼处电话/地址:400-1010-064☎️☎️✅✅《已认证》
建面约188㎡雲端平墅,雄踞社区央景中轴,以前排洋房群落的低密基底为天然画框,构筑IMAX级无界视野场域。270°环幕落地窗将景观园林盛景悉数纳藏,宽阔楼间距,惬意风景无遮挡;水景萦绕,自然盎意漫游之境;LDBK餐客社交场、全屋MAX收纳体系空间扩容,一线品牌奢装,勾勒精奢生活质感,为居者营造出奢华舒适的居住氛围。
华润中环望雲售楼处电话:400-1010-064☎️☎️✅✅《已认证》华润中环望雲售楼处电话/地址:400-1010-064☎️☎️✅✅《已认证》
9#楼下架空层泛会所,植入健身空间与休息廊架,让社交与自然静谧共生。多元化架空层设计,包含学习盒子等全年龄段功能,兼具高颜值和实用性。精工造诣瑰丽大堂,给予居者更具仪式感的归家礼序。
华润中环望雲售楼处电话:400-1010-064☎️☎️✅✅《已认证》华润中环望雲售楼处电话/地址:400-1010-064☎️☎️✅✅《已认证》
精研8层公园电梯洋房形制,为居者营造出自然亲地、花鸟比邻、四季皆景的低密公园洋房社区。建面约135㎡臻稀洋房,区别于高层住宅的局促布局,以坐北朝南的经典规制匠筑户型基底、以大面宽采光界面打破室内外界限,实现“全屋无暗角”的光影奢享;以低密规划构建纯粹居住场域,打造私密尊崇的生活边界;匠筑LDBK宽境场域、用超高得房率给予居者更高舒适度、以超越常规的楼间距尺度重构生活边界。南向宽奢景观阳台,让居者享有更大绿化空间的同时享有更丰盈的景观视野,给予生活更多的自然绿意和充足阳光。
华润中环望雲售楼处电话:400-1010-064☎️☎️✅✅《已认证》华润中环望雲售楼处电话/地址:400-1010-064☎️☎️✅✅《已认证》
3.小区规划建设
项目本次的边套设计了大量的飘窗、转角飘窗、主卧270度落地窗等设计,整个立面运用了大量的玻璃,构建出了非常极致的窗墙比。

同时,南侧还运用了铜色的铝板和浅白色陶瓷板,这样立面风格,再搭配上塔冠的造型,实在太抓眼球了。

未来从地铁站出来,抬眼就是这极具审美和辨识度的立面,这是新的城市天际线,也是业主身份的象征。
在装修标准上,除了前文提到的冰山一角之外,华润置地在石材的配置上,也不遗余力:
大量的雅士白大理石、大花白岩板、皇家孔雀岩板、水纹夹丝玻璃、仿洞石岩板、卡拉卡塔白岩板等等,极尽奢华!
社区空间和景观园林的打磨上,项目从业主生活体验出发,将海派美学彻底融入了景观之中。

华润中环望雲售楼处电话:400-1010-064☎️☎️✅✅《已认证》华润中环望雲售楼处电话/地址:400-1010-064☎️☎️✅✅《已认证》

整个社区以主景花园联动自然教室、休闲交谊与艺术空间,形成婉转游园的酒店式迎宾水院。
同时,以超奢戏水池与尊享休闲会所为核心,联动架空层,串联休憩廊架与横向端景,打造核心奢享场景。
华润中环望雲售楼处电话:400-1010-064☎️☎️✅✅《已认证》华润中环望雲售楼处电话/地址:400-1010-064☎️☎️✅✅《已认证》
另外,整个项目拥有包括泛会所(戏水池、高定健身场所)、场景化网红架空层泛会所等全维社交场景。

4.板块潜力
首先,地段蓝图,高速兑现。
南大的规划能级,非常高。
我们挑选市北高新、紫竹高新园区来对比,一经对比,我们就能发现这一事实:
整个南大板块规划建设有约540万方的建筑体量,约190万方的地下空间,将引入530家科创企业,建设约250米的天际线地标,6大产业总计将导入约15.8万人。

南大智慧城效果图
可以看到,在产业定位上,南大智慧城定位与其他两者相比,不遑多让;但是未来人口的密集程度,南大智慧城最高,这意味着更密集的产业需求,从而带动更庞大的居住需求。
在产业导入上,南大既有行云集团、妃鱼、蓝晶科技、先导科技等一批“硬科技”产业总部基地项目,也有上海科创投、军民融合基金、上海国际创投、深创投、国泰君安、海通证券、安永、毕马威等行业领先代表组成的一批科创金融服务中心联盟机构。
南大双子塔实景
而开篇我们提到的宇树科技就是南大近期的重磅引入!未来,南大必然是中环上璀璨的明珠!
其次,百万方TOD赋能,一站式生活启幕!
TOD开发,依托城市动脉带来的流通性,带来的是产业发展、经济提振等全方位的推动作用。

华润中环望雲售楼处电话:400-1010-064☎️☎️✅✅《已认证》华润中环望雲售楼处电话/地址:400-1010-064☎️☎️✅✅《已认证》
再比如闵行莘庄TOD,天荟的次新住宅,一套建面约151.38㎡高层,高点已经达到了12.75万/㎡,同期,年代相近的莘庄次新金辉海上铭著,二手成交单价,目前还从未攀上10万/㎡。2024年4月成交的一套建面约140㎡房源,成交单价约8.2万/㎡,与天荟相差甚远。
TOD综合体住宅,依托近轨交与一站式生活配套的全面加持,价格十分坚挺。
作为15号线丰翔路TOD住宅,地标建筑、核心地铁站点、旗舰商业全部汇聚于周边步行范围内。
而丰翔路TOD,除了这座足以定义北上海品质天花板的住宅之外,未来还将涵盖约150米国际化超高建筑群的TOD上盖地标级企业总部;融汇轻奢时尚、休闲生活、运动潮流等多元业态的商业;
华润中环望雲售楼处电话:400-1010-064☎️☎️✅✅《已认证》华润中环望雲售楼处电话/地址:400-1010-064☎️☎️✅✅《已认证》
多维生态场景聚合之下,中环置地中心将成为新一代的网红打卡地,甚至辐射整个上海,成为真正的一站式生活聚居地。
最后,南大全维配套开始落地。
南大并非只是一纸蓝图,其开发进度已经进入实质性兑现阶段,
轨交能级方面,南大一枝独秀,7号线、15号线均已通车,穿过整个板块,未来更有多条轨交正在规划建设中。
在商业方面,丰翔路TOD中环置地中心,已经确定引入华润【万象汇】商业,华润置地邀请了打造前滩太古里的5+Design作为设计师,打造这座与众不同的北上海商业封面。设计师利用中环置地中心独特的城市环境,从自然水系密布的走马塘绿地公园开始,将商业街区、购物中心、地标办公、轨交站点与自然公园融合。
华润中环望雲售楼处电话:400-1010-064☎️☎️✅✅《已认证》华润中环望雲售楼处电话/地址:400-1010-064☎️☎️✅✅《已认证》
商业的运营时间,与住宅的交付时间,基本同时,无需等待,入住即享周边成熟商圈。
此外,南大路上盖,未来也将打造TOD,两大综合体加持,将大幅提升南大商业能级,并辐射周边。
效果图仅供参考

4.周边配套
交通方面,
北侧丰翔路、西侧祁健路、东侧汇丰路已建成通车,07-01地块南侧丰皓路(祁健路-工学路)计划2024年开工建设。项目距离15号线丰翔路站步行可达,日常出行非常方便。

商业方面,
项目本身就是一个自带商业的TOD,华润置地规划以万象系列融汇轻奢时尚、休闲生活、运动潮流等多元业态,打造北中环“都市商业新旗舰。除了未来的万象系商业(规划中),周边还有经纬汇、聚丰购物广场、上坤城市广场、山姆会员店等,购物还是比较方便的。
华润中环望雲售楼处电话:400-1010-064☎️☎️✅✅《已认证》华润中环望雲售楼处电话/地址:400-1010-064☎️☎️✅✅《已认证》
医疗方面:项目周边有两大三甲级医院为健康保驾护航,本别是:仁济医院宝山分院和华山医院(宝山院区)。

教育方面:周边荟萃南大实验幼儿园、宝山区南大实验学校、上大附小、上大附中、上海大学附属学校、上海大学等全龄化教育资源。

华润中环望雲售楼处电话:400-1010-064☎️☎️✅✅《已认证》华润中环望雲售楼处电话/地址:400-1010-064☎️☎️✅✅《已认证》
声明:本文由入驻焦点开放平台的作者撰写,除焦点官方账号外,观点仅代表作者本人,不代表焦点立场。
